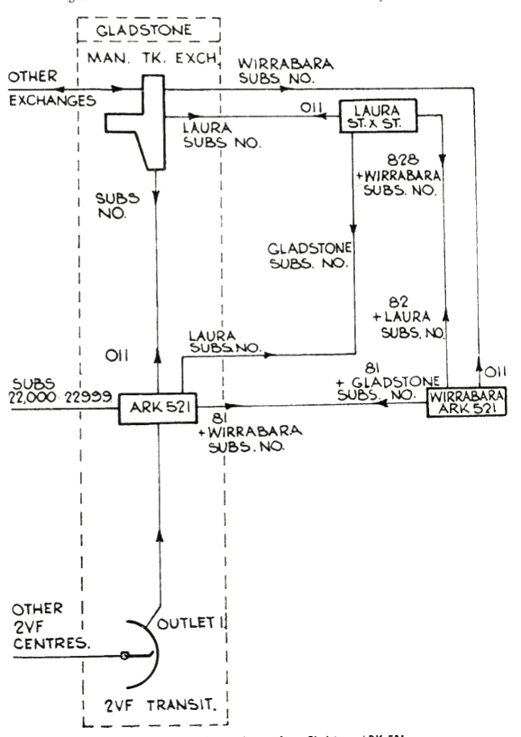
Australie
Dans aucun autre pays du monde, les télécommunications
modernes n'ont joué un rôle aussi crucial pour franchir
de grandes distances à l'intérieur d'un pays et pour mettre
un continent isolé en contact direct avec le monde "extérieur"
par rapport à l'Australie.
Avant 1901, c'était la période coloniale, lAustralie
était un groupe de colonies britanniques distinctes jusquà
la Fédération (formation du Commonwealth dAustralie).
Chacune des six colonies australiennes disposait de son propre
réseau de communication téléphonique avant la
Fédération.
En 1854, La première ligne télégraphique
d'Australie a été construite entre Melbourne et Williamstown
et ouverte le 3 mars 1854, en 1861, il y avait 110 stations télégraphiques
opérant le long des États de l'Est.
En 1877, une ligne télégraphique Perth-Adélaïde
est ouverte.
Ces lignes télégraphiques ont été immédiatement
populaires. À Victoria, 14 738 messages ont été
envoyés en 1856 et ce chiffre a presque triplé en un an
pour atteindre 35 792 en 1857.
Les différentes colonies acceptèrent bientôt de
collaborer sur un réseau télégraphique intercolonial.
Les premiers liens entre Melbourne et Adélaïde puis Melbourne
et Sydney sont activés en 1858. A cette époque, les messages
traversant les frontières coloniales sont transcrits sur papier
par un opérateur, transportés à travers la frontière
puis retransmis.
Un câble sous-marin a été posé de la Tasmanie
à Victoria en 1859. Cependant, cela a rapidement échoué
et ce n'est qu'en 1869 qu'un remplaçant a fonctionné avec
succès.
La première ligne télégraphique du Queensland a
été introduite en 1861 et connectée à Sydney
la même année. Cependant, la première ligne en Australie
occidentale n'a pas été introduite avant dix ans et Perth
n'a été connectée au réseau intercolonial
qu'en 1872 avec une ligne vers Adélaïde.
En 1861, il y avait 110 stations télégraphiques réparties
dans les colonies de l'est et en 1867, Victoria à elle seule
envoyait 122 000 messages par an (contre environ 7,92 millions aux États-Unis
et 5,78 millions au Royaume-Uni).
Dans les années 1870, les colonies ont commencé à
établir des liaisons de télécommunications internationales,
avec un câble privé à Singapour depuis Port Darwin
introduit en 1870. La première liaison avec la Nouvelle-Zélande
était en place en 1876 et une liaison avec Jakarta (Batavia)
en 1889.
sommaire
Les Australiens ont adopté la nouvelle technologie très
rapidement. À bien des égards, ce système a aidé
l'Australie à commencer à se penser et à agir comme
une seule nation plutôt que comme un ensemble de colonies isolées.
Les réseaux australiens étaient des actifs gouvernementaux
fonctionnant sous une législation coloniale
inspirée de celle de la Grande-Bretagne.
Le UK Telegraph Act de 1868, par exemple, habilite le ministre
des Postes à «acquérir, entretenir et utiliser des
télégraphes électriques» et laisse présager
la nationalisation en 1870 des sociétés de télégraphe
britanniques concurrentes.
Station télégraphique d'Eucla, à la frontière
entre les colonies d'Australie occidentale et méridionale, vers
1898. Chaque camp recevait ses messages et les transmettait à
l'opérateur de l'autre côté, par une fenêtre
percée dans le muret de séparation, pour retransmission
!
Les bureaux de poste et les réseaux télégraphiques
gérés par le gouvernement - la plus grande partie de la
bureaucratie - ont été fusionnés en un seul département
dans chaque colonie sur le modèle de la poste britannique : l'Australie
méridionale en 1869, Victoria en 1870, le Queensland en 1880
et la Nouvelle-Galles du Sud. en 1893.
sommaire
Pour le téléphone, c'est la que tout commence partout
dans le monde, en septembre 1876, le magazine
Scientific Américan publie un article consacré
au téléphone de Bell , expliquant comment construire un
appareil, le succès est foudroyant. Article qui inspira les pionniers
du monde entier y compris en Australie.
Premier
brevet de Bell en 1976
à la page 163, voir
en pdf
|
Symonds qui était loncle de Bell,
a aquis lors d'une visite à la famille Bell à
Brantford, en Ontario, cet appareil (photo ci contre) et l'a emmené
par la suite en Australie (mais à quelle date ? ).
L'émetteur était utilisé conjointement avec
le récepteur du télégraphe harmonique.
On peut le voir au musée de Victoria.
Loncle SYMONDS développa un réseau
téléphonique sur le continent australien oriental
(à savoir les trois principaux états du Queensland
- Brisbane, à la nouvelle Galles du Sud - Sydney et au
Victoria - Melbourne).
|
  |
sommaire
Les tous premiers téléphones (principalement expérimentaux)
utilisés dans les colonies australiennes auraient été
des modèles "Box" de Bell (ou des copies fabriquées
localement). Mais il ne reste peu de traces sur ce point sauf à
Victoria.
C'étaient des instruments très simples composés
d'un grand aimant en "fer à cheval", de deux bobines
de fil isolé et d'un diaphragme en tôle de fer enfermé
dans une boîte en bois.
Acune tension de batterie nétait appliquée. L'unité
servait à la fois d'émetteur et de récepteur.
Ces téléphones ne conviennent que pour les services de
courte distance et de point à point et les premières versions
ne disposaient même pas de système de signalisation (obligeant
l'appelant à crier ou à appuyer sur l'émetteur
pour attirer l'attention du destinataire!).
Le deuxième brevet de Bell début 1877

Plusieurs sources signalent qu'un certain nombre
d'expériences téléphoniques avaient été
réussies dans les colonies à la fin de 1877.
 |
M. Henry Sutton de Ballarat,
qui possédait des magasins de musique était un inventeur
prolifique, a d'abord enseigné à la Ballarat School
of Mines de 1883 à 1886. En 1883, à la suite de son
travail sur les batteries, Sutton fut admis comme associé
de la Société des ingénieurs télégraphes
et des électriciens.
M. Louis Adolphe Cochery, ministre
des Postes et Télégraphes de France, l'invita.
comme membre de la Société internationale des électriciens.
Il se voit également proposer l'adhésion des
sociétés d'électriciens originaires d'Amérique,
de Belgique et de Russie. Il repartira pour l'Angleterre en 1890
pour exploiter son procédé d'impression "Suttontype".
Le procédé n'a pas été considéré
comme particulièrement innovant et n'était pas fiable.
Il a abandonné pour retourner en Australie en 189 ... |
Après avoir lu l'annonce de l'invention du
téléphone faite par Bell en 1876, Sutton avait annoncé
qu'il avait effectué 20 versions du téléphone,
le tout dans les 12 mois suivants. Sutton aurait dit "avoir cru
en la libre circulation de l'information". comme un cadeau à
la science
peu breveté, bien que seize de ses vingt conceptions
téléphoniques originales aient été brevetées
à l'étranger.
La première connexion téléphonique australienne
en 1878 a été établie par Sutton à
Ballarat et Ballarat East, reliant les casernes de pompiers
des deux villes. L'emplacement exact de l'un des appareils téléphoniques
est visible dans la caserne de pompiers Ballarat East.
L'appareil permettait autrefois la communication entre les deux casernes
de pompiers afin qu'ils puissent localiser plus précisément
les incendies dans leurs tours de guet.
Sutton avait également connecté les magasins de musique
de Sutton, les entrepôts et les bureaux de son entreprise familiale,
à un réseau téléphonique deux ans plus tôt
que le système téléphonique australien officiel.
Sutton a aussi mis au point une méthode d'utilisation de conduites
de gaz et d'eau dans un circuit téléphonique.
En février 1878, des expériences réussies
furent menées entre Melbourne et Ballarat (115 km) à l'aide
de téléphones fabriqués par un M. Challon du Central
Telegraph Office, Melbourne.
...
Sutton voyagea avec Alexander Graham Bell de Melbourne à Ballarat
le 15 août 1910, où ils discutèrent de leurs découvertes
respective.
1877 On pense que la première conversation téléphonique
sur le brevet de Bell a été donnée par W. J.
Thomas, inspecteur des douanes à Geelong à
Victoria . Le premier appareil experimental était fabriqué
par W. J. Thomas utilisé entre Geelong et Queensclif
Interprétation
de la Box de BELL selon Thomas
(agrandir)
(agrandir)
Dès 1877, WJ Thomas de la douane de Geelong
a expérimenté des téléphones faits maison
et a réussi à relier des maisons dans sa localité.
Au moyen de ses téléphones et de ses fils, Thomas s'est
arrangé pour la transmission d'une maison à l'autre de
la musique ainsi que de la conversation. Des rassemblements sociaux
ont été organisés pour essayer le téléphone,
ce qui a aidé à tester et a également fourni une
nouvelle forme de divertissement. Plus tard, Thomas a transmis sur de
plus longues distances, en utilisant une ligne télégraphique
entre Geelong et Melbourne et entre Geelong et Queenscliff.
Le premier test entre Geelong et Queenscliff a eu lieu le soir
du 9 janvier 1878. Certaines des contributions ont été
entendues clairement, notamment une interprétation vocale de
"Yankee Doodle" à l'extrémité Geelong
de la ligne et de "Genevieve" à l'extrémité
Queenscliff .
Lorsque 33 abonnés ont été
inscrits, le premier centre téléphonique de Geelong a
été établi dans l'ancien bureau de poste en septembre
1888. Une connexion avec la Bourse de Melbourne a été
faite en 1889 la même année que l'ancien bureau de poste
a été démoli, faisant place à un bâtiment
de 2 étages avec une tour de l'horloge.
sommaire
En Australie méridionale, AW Dobbie, est reconnu
comme étant le pionnier du téléphone en Australie,
voila ce que l'on raconte.
Alexander Dobbie est né à Glasgow en 1848, arrivé
à Adélaïde avec sa famille en 1851, avait suivi une
formation de fondeur de cuivres et, à 19 ans, puis avait ouvert
sa propre entreprise. La fonderie Dobbie est devenue bien connue pour
la gamme de produits quelle produisait pour lutilisation
agricole et domestique, y compris plusieurs de ses propres inventions.
Alexander était fasciné par les progrès scientifiques
et techniques de son époque et aurait été le premier
dans l'hémisphère sud à concevoir un téléphone
téléphone lors de la publication de la découverte
de Bell en 1876.
Il navait pas dautre guide que les dessins de Scientific
American , mais il les utilisa à des fins telles quil
eut lhonneur dêtre le premier à construire
un téléphone performant dans ces colonies, il créa
un marché pour sa propre version et un certain nombre de lignes
privées, commencèrent à fonctionner, notamment
entre les entrepôts de Port Adelaide et les bureaux
de la ville. .

Il réalisa de nombreuses expériences utiles et amusantes
avec différents types de microphones et construisit un phonographe
avec la conviction qu'il ne s'agirait jamais que d'un jouet scientifique.
Il présenta un téléphone en décembre
1877, et un mois plus tard, les ateliers de la PMG (The Postmaster Generals
Department) construisaient des téléphones . Dobbie a utilisé
une de ses fabrications artisanales pour reler deux maisons de son quartier
à la fin de 1877.
(agrandir)
Description du récepteur téléphonique de Bell,
Edward Symonds la peut-être écrite entre 1876
et 1877.
Symonds était loncle de Bell. Il a été acheté
par Symonds lors dune visite à la famille Bell à
Brantford, en Ontario, puis emmené en Australie. Source: Musée
de Victoria .
Overland Telegraph Line, a déclaré dans un rapport
au Parlement:
«Nous l'avons essayé ici très tôt ... et avec
des téléphones de type Bell fabriqués dans notre
propre atelier, nous avons effectué une communication, d'abord
entre Semaphore, Adélaïde et Kapeenda, en
janvier 1878, puis entre Semaphore et Port Augusta, à
une distance de 385 km. Il a également été essayé
avec succès sur la ligne de Port Darwin ...
sommaire
On pense que M. Unbehaun a mené à bien des expériences
avec divers instruments à la fin de 1877,
Il avait 25 ans lorsque Sir Charles Todd décida qu'il
serait l'homme qui «introduirait les nouveaux moyens de communication
en Australie méridionale», mais il occupait déjà
un poste important au sein du département Telegraph de New South
Wales.
A lâge de 14 ans, alors qu'il était encore apprenti
dans sa ville natale de Rudelstadt, en Allemagne , il senfuit
et, après de nombreuses épreuves et aventures, a trouvé
son chemin à New York.
La formation qu'il avait reçue lui étant très utile,
il s'associa à la Singer Sewing Machine Company et, dans le cadre
de ses fonctions, parcourut une grande partie des États-Unis.
Après avoir rencontré le Dr Alexander Graham Bell, l'inventeur
du téléphone électrique moderne, M. Unbehaun s'est
vivement intéressé à l'invention et a entamé
avec enthousiasme un nouveau travail.
Au début de la guerre franco-prussienne, M. Unbehaun, comme dautres
jeunes hommes de nationalité allemande, a été appelé
rappelé sous les drapeaux de l'Allemagne. Homme de principes,
il a refusé de plaider l'invalidité, et a déclaré
franchement aux autorités allemandes qu'il était opposé
à la guerre, qu'il jugeait injuste et inutile. Il a définitivement
refusé de retourner dans son pays. Pour cela, il a été
officiellement mis à l'écart en Allemagne et a perdu tous
ses droits légaux et civils.
Ses dispositions aventureuses et son amour de la liberté civile
se tournèrent vers le nouveau monde et, au début des années
1870, il se rendit à Sydney, où sa connaissance du système
téléphonique, qu'il avait acquise du docteur Bell lui-même,
était d'une valeur inestimable.
Il entra au département de télégraphie de NSW en
tant quinstructeur pour aider à léquipement
de la salle dopération du bureau de poste de Sydney, qui
était en cours de construction.
En 1877, il fut transféré à Adélaïde
à la demande de sir Charles Todd.
À son arrivée, il n'y avait que huit instruments du système
Simplex-Morse dans la salle d'opération du télégraphe
d'Adélaïde. Il n'y avait pas de dynamos, de moteurs électriques,
de lampes électriques, de machines à écrire ni
de téléphones.
Au jour de Noël 1877, deux instruments «fabriqués
et installés par M. Unbehaun» à des fins expérimentales
se trouvaient dans l'enceinte de la Poste générale, à
Adélaïde.
M. Alfred B. Biggs de Tasmanie, aurait également
construit plusieurs téléphones en 1877;
il est donc difficile d'attribuer des "droits " aux premiers
téléphones australiens.
La première expérimentation significative fut menée
par The électric Télégraphe Département
de toutes les colonies le en janvier 1878 à Sydney par
par W. J. Cracknell, surintendant des Télégraphes.
Il était assisté de G.Kopsch qui avait fabriqué
les téléphones à l'identique du modèle de
Bell.
Ce fait est vu dans la presse The Sydney Morning Herald du 14 janvier
1878 .
Plan du modèle utilisé.
Guidé par les plans de Bell, il fabriqua plusieurs téléphones
à main sur son tour d'atelier.
Il les a positionnés dans les gares de Launceston et de Campbell
Town et a transmis la distance de 80 km entre ces deux points le long
de la ligne télégraphique qui longeait la voie ferrée.
Son expérience a été un succès complet.
Certains ont prétendu que c'était la première fois
qu'un téléphone était effectivement utilisé
en Australie, bien qu'il n'y ait aucune preuve concluante de cela.
sommaire
Brisbane Queensland
Les premières expériences avec des téléphones
furent conduites le 26 janvier 1878
Le 28 janvier 1878, un téléphone du bureau de Cracknell
à Brisbane fut mis en communication pour la première
fois avec Ipswich.
Il utilisait des téléphones parfaitement identiques au
"Hand Téléphone" de Bell et 80 km de fil.
Au cours des deux années suivantes, 36 appareils à connexion
deux par deux ont été installés. Lorsque le central
manuel de Brisbane ouvrit en juin 1880, les entreprises privées
demandèrent rapidement une connexion: les entrepreneurs étaient
intéressés par la transmission rapide d'informations entre
leurs différents bureaux et étaient heureux de financer
la nouvelle technologie . Les téléphone Edison /Bell ont
dû être achetés par les abonnés au prix de
10 £ chacun. Ils devaient également louer les circuits
à un fil parcourant les rues au prix de 5 £ le mile et
payer une redevance de maintenance de 1 £ par an.
La brasserie Castlemaine est devenue le premier abonné du Queensland
lorsque les bureaux de Queen Street ont été connectés
à la brasserie Milton. Le bureau du courrier de Brisbane à
Queen Street, les fournisseurs de matériaux de construction James
Campbell et Sons à Creek Street et la société Apollo
Candle à Bulimba, ainsi que déminents citoyens de
Brisbane ayant souscrit pour des raisons commerciales, financières
et de prestige, dont Edward Robert Drury, le directeur général
de la Banque nationale du Queensland et Sir Thomas McIlwraith, alors
premier ministre du Queensland.

En août 1878, un service téléphonique permanent
de "point à point" fut installé entre le Government
House et le bureau du secrétaire des colonies à Washington
(probablement le premier service "commercial" en Australie)
Et, au début de 1879, des services commerciaux similaires. apparaissaient
dans les autres colonies australiennes.
Le premier service téléphonique australien reliant
les bureaux de Robinson Brothers à Melbourne a été
ouvert en 1879.
En juillet 1879, une société d'ingénierie
de Melbourne, Robison Brothers, installa un téléphone
entre leurs bureaux de Flinders Street et la fonderie de South Melbourne...
Suivirent d'autres installations entre le "Parliament House"
et les journaux de Melbourne, et d'autres entreprises de Melbourne ont
emboîté le pas pourconnecter leurs bureaux et leurs ateliers
dans toute la ville.
Avant septembre 1880, le système de Robison était un service
de point à point (sans centre manuel ou switchboard).
MJE (John Edward?) Edwards, qui est enregistré comme «équipant
son propre téléphone breveté pour relier le bureau
des travaux publics et la poste», le 7 mai 1880 à Melbourne,
est une autre personne intéressante à cette période.
Probablement le premier service téléphonique permanent
"point à point" d'Australie a été installé
pour McLean Bros et Rigg à Melbourne en février
1878 par M. Edwards susmentionné. En août 1878, deux instruments
furent connectés entre Government House et le bureau du secrétaire
aux colonies à WA, donc aussi un service «commercial»
très précoce en Australie.
Le premier central téléphonique d'Australie
a été ouvert à Melbourne (Victoria) en août
1880. Il était exploité par la Melbourne
Telephone Exchange Company. Propriété de W. H.
Masters et T. T. Draper, le gérant de la société
était H. Byron Moore.
"The Australasian Sketcher", janvier 1881, a écrit
à propos du nouvel échange téléphonique
de Melbourne:
. . de son utilité, il ne peut y avoir deux opinions. En tant
qu'invention qui permettra à un homme assis dans son propre bureau
de demander un découvert à son directeur de banque, de
commander un manteau à son tailleur et d'envoyer à sa
femme toute excuse raisonnable pour sa non-apparition à la maison
à l'heure habituelle, mérite un certificat de première
classe dans l'annuaire téléphonique".
Le premier central manuel d'Australie fut installé
à Melbourne en septembre 1880 (Brisbane suivit en octobre 1880,
manquant ainsi le droit de se vanter de quelques semaines !).
En 1881, à Melbourne il y avait 128 abonnés.
Mais la fourniture de services téléphoniques nécessitait
une infrastructure importante, et il est vite devenu évident
que les entreprises privées auraient du mal à les fournir.
( Plus tard en 1887, le service téléphonique avait été
repris par le gouvernement, géré par le service postal.
Par la suite, il s'est développé rapidement : en 1890,
il y avait 1 914 abonnés dans la région de Melbourne,
avec des liaisons à Geelong, Ballarat, Bendigo et Warrnambool.
Au sein de la Fédération, la fourniture des services téléphoniques
a été transférée au Commonwealth, administrée
par le ministère des Postes.)

Les tout premiers systèmes manuels étaient de type à
magnéto et ont persisté dans certaines zones rurales jusqu'à
la fin du 20e siècle.
Au début, chaque appel individuel devait être connecté
manuellement via un standard téléphonique, généralement
appelé « central ». Un appelant s'est connecté
au central, a demandé à parler à une personne ou
à un numéro et a été connecté par
l'opérateur. À ce moment-là, l'opérateur
était censé se déconnecter de l'appel, mais il
est rapidement devenu un mythe bien connu selon lequel l'opérateur
du central téléphonique était toujours le mieux
informé dans chaque quartier. Dès le début, les
centraux étaient dirigés par des femmes, employées
comme standardistes téléphoniques. Le fait quil
sagisse généralement de femmes a sans doute contribué
à alimenter la réputation de commères des standardistes.
Elle garantissait également que le travail était considéré
comme un travail féminin, avec un faible taux de rémunération
et avec peu de possibilités de promotion. Néanmoins, il
y avait toujours une demande pour ce travail, qui était sans
doute plus attrayant que de travailler toute la journée dans
un magasin, même s'il ressort clairement des images des premiers
échanges que les téléphonistes étaient également
censés se tenir debout. Le premier échange était
modeste, comme le révèle la gravure de Julian Ashton représentant
la « salle téléphonique » de 1881 (ci-dessus),
mais il sest rapidement développé à mesure
que le nombre dabonnés augmentait.
sommaire
La Melbourne Telephone Exchange Company
était située au 367, rue Collins HB Moore fut le
premier directeur.
Elle devint plus tard la Victorian Telephone Exchange
Company.
Cette compagnie privée a continué jusqu'en 1887, date
à laquelle elle a été rachetée par le gouvernement
colonial victorien .
Au cours de la première année, elle comptait 23 abonnés,
mais en 1887, il y avait 887 abonnés.
Une copie de l'annuaire téléphonique de Melbourne pour
1882 est disponible ici Cliquez
pour télécharger la copie PDF.
Annuaire de Melbourne en 1882. The first Australian telephone exchange
at 367 Collins St 1886 .
1880 C'était seulement deux ans après
le premier échange mondial aux États-Unis et quatre ans
seulement après que Bell a parlé pour la première
fois au téléphone.
Le central était située dans l'ancien bâtiment de
la Bourse au 367 Collins Street, un site maintenant occupé par
la Commonwealth Bank.
En 1884, les activités de la Compagnie, connue alors sous le
nom de Victorian Telephone Exchange Company, s'étaient considérablement
développées et ont été transférées
à Wills Street, Melbourne. La propriété privée
de cette société s'est poursuivie jusqu'en 1887, date
à laquelle elle a été rachetée par le gouvernement
colonial victorien. D'autres gouvernements coloniaux ont suivi cet exemple.
James Trackson, ingénieur électricien formé
à lÉcole polytechnique de Londres, a été
envoyé pour y installer le Melbourne Telephone Exchange.
Il est arrivé sur le Copernic en décembre 1883 et avait
25 ans.
Plus tard, il a été engagé par le gouvernement
du Queensland pendant deux ans pour aider à ériger le
premier centre de Brisbane.
En 1885, il fonda avec son frère William Trackson Brothers, une
importante entreprise délectricité de lorigine
à Brisbane.
À la fin de 1880, le Département
des postes et télégraphes avait mis en place un réseau
téléphonique municipal reliant la police, les pompiers,
les bureaux du gouvernement, le parlement et le palais présidentiel.
En août 1880 , W.H Masters et T. Draper fondaient
la Melbourne Telephone Exchange Company
et établissaient un central téléphonique de 100
lignes, ils ont connecté les connexions téléphoniques
point à point existantes et attribué le numéro
1 à Robison Bros.
Le téléphone pénétra jusque dans les
îles Fiji, au sud de l'Australie.
Une ligne téléphonique, qui rend les plus grands services,
y fut installée, sur les plantations de sucre, au commencement
de l'année 1881.
La nature des réseaux signifiait que la réglementation
en Australie était peu exigeante: le personnel du réseau
était des employés ou des agents du gouvernement, la législation
était améliorée progressivement et des restrictions
pouvaient être obtenues grâce à l'infrastructure.
Toutes les colonies ont exploité leurs réseaux télégraphiques
en déficit grâce à des investissements dans les
infrastructures et à la subvention de l'accès régional,
généralement avec un soutien bipartisan.
Les bureaux de poste et les réseaux télégraphiques
gérés par le gouvernement - les plus grandes parties de
la bureaucratie - ont été regroupés en un seul
département dans chaque colonie sur le modèle du bureau
de poste britannique: Australie-Méridionale en 1869, Victoria
en 1870, Queensland en 1880 et Nouvelle-Galles du Sud en 1893.
Tandis que les expériences passionnantes se déroulaient
à Adélaïde, des amateurs enthousiastes travaillaient
dans les régions rurales.
À l'hiver de 1881, le révérend W. Carter,
un méthodiste en poste à Melrose, organisa des spectacles
à plusieurs endroits pour démontrer le fonctionnement
du téléphone. L'un d'entre eux a été donné
à l'église méthodiste d'Amyton, à
environ 20 milles de Melrose. Une ferme située à environ
un kilomètre de distance était reliée à
léglise, lutilisation dun fil de fer ordinaire
étant la nouveauté pour faire la connexion électrique.
À ce fil étaient reliés environ douze téléphones
récepteurs. Le public de l'église en les passant de l'un
à l'autre a pu apprécier les efforts de la chorale, même
si celle-ci était distante de plusieurs kilomètres.
Un divertissement similaire a eu lieu à Melrose, le hall
a été relié à la ligne téléphonique
et à neuf heures, le carillon de lhorloge de la poste dAdélaïde
a été entendu distinctement par le public.
Sir Charles Todd a également envoyé des messages
au peuple par téléphone. Les instruments ont été
empruntés aux autorités et Sir Charles Todd et son personnel
ont tout mis en uvre pour aider M. Carter à faire
de son divertissement novateur et instructif un succès complet.
Les tarifs étaient suffisamment élevés:
12 £ par an à moins dun kilomètre de léchange
et 25 shillings de plus par quart de mile supplémentaire, mais
les abonnés pouvaient parler toute la journée et tous
les jours sils le souhaitaient.
En 1883, des centraux téléphoniques ont
été établis à Adélaïde
(48 abonnés), Hobart (10 abonnés) et Launceston
(35 abonnés).
A Melbourne, on comptait sept cent trente abonnés au réseau
téléphonique de cette ville au commencement de 1884
et environ 7 757 appels ont été traités en 1884.
L'augmentation du nombre des abonnés dépassait tellement
les prévisions qu'on dut, à cette époque, agrandir
le bureau central et le transporter dans un bâtiment plus vaste.
En 1884, les activités de la Compagnie, connue
alors sous le nom de Victorian Telephone Exchange
Company, s'étaient considérablement développées
et ont été transférées à Wills Street,
Melbourne. La propriété privée de cette société
s'est poursuivie jusqu'en 1887, date à laquelle elle a été
rachetée par le gouvernement colonial victorien. D'autres gouvernements
coloniaux ont suivi cet exemple.
Byron Moore a commenté:
«Le gouvernement, qui nous avait regardés comme des rêveurs
oisifs, est vite devenu jaloux de notre succès et sept ans plus
tard, il nous a très indignement évincés ...».
Le premier échange en Australie-Occidentale, créé
en 1887, était situé dans un petit chalet de trois pièces
de Wellington Street, à Perth, avec 17 abonnés.
L'année 1888 marque l'ouverture du centre de Fremantle
dans une petite salle à l'arrière de la mairie. Il y avait
neuf abonnés.
Au moment de la prise de contrôle par le gouvernement en septembre
1887, il y avait 887 abonnés et la société
comptait 21 employés. L'année suivante, le nombre d'abonnés
était de 1462.
sommaire
Le centre téléphonique central d'Adélaïde,
du General Post Office (GPO), a ouvert ses portes le 14 mai
1887 avec 27 abonnés. En l'espace de trois ans, environ 700
abonnés s'étaient inscrits.
Le premier central téléphonique (manuel) de Fremantle
a été installé dans une pièce située
à l'arrière de l'hôtel de ville nouvellement construit
et était ouvert le 1er février 1888
La première commande coloniale de téléphones
de WA concernait 50 appareils Western Electric à Magneto,
récepteur Bell et émetteur Blake.
Image de la commande originale.
 

Une commande de 50 instruments semblait probablement extravagante
à l'époque, car un article de journal de novembre 1887
indiquait que seuls 23 abonnés (17 à Perth et six
à Fremantle) avaient été reliés avant l'ouverture,
mais, comme l'indique le premier annuaire de février 1888 (qui
tenait sur une seule feuille), les abonnements ont progressés
et plus de téléphones auraient dû être commandés.
On trouva donc des Berthon Ader vers 1890 et, à partir
du début du siècle, des modèles Ericsson.
À cette époque de lhistoire de la téléphonie
en Australie occidentale, tous les centres manuels étaient à
batteries locales, la magnéto et la batterie centrale ne fonctionnant
pas avant 1911. Les lignes étaient à un fil avec retour
à de terre.
Ericsson a commencé à vendre en
Australie en 1890 par l'intermédiaire de son agent CA Fahlstedt
à Sydney. Initialement, les ventes se composaient exclusivement
de téléphones et de pièces détachées
pour téléphones, et non de postes téléphoniques.
Cependant, les ventes par téléphone ont été
très fructueuses et, au cours des années 1890, l'Australie
et la Nouvelle-Zélande sont devenues l'un des plus grands marchés
d'Ericsson en dehors de l'Europe. En fait, en 1900, les ventes en Australie
étaient plus importantes qu'en Suède.
sommaire
À Brisbane, En 1881, 36 téléphones
étaient connectés au central, y compris un certain nombre
de téléphones privés. Le mécanicien était
un M. Starke. Il a testé les téléphones privés
avant l'installation - ils coûtaient 10 livres chacun.
La demande augmente rapidement et le central commença un service
continu en avril 1883, date à laquelle 175 abonnés étaient
déjà connectés. C'était lent et coûteux,
la plupart des gens préféraient encore la poste et le
télégraphe.
Néanmoins, le téléphone se répandit rapidement
dans la ville et, en 1885, le central comptait plus de 300 abonnés.
En 1927, 200 téléphonistes exploitaient le Common Battery
Manual Exchange du General Post Office Brisbane et, le 30 novembre 1929,
le central téléphonique automatique était enfin
opérationnel dans le Queensland, plus de 17 ans après
le premier central automatique à Melbourne.
Brisbane 1903 
La nature des réseaux signifiait que la réglementation
en Australie était peu exigeante: le personnel du réseau
était un employé ou un agent de l'État, la législation
était améliorée progressivement et des restrictions
pouvaient être mises en place grâce à l'infrastructure.
Toutes les colonies utilisaient leurs réseaux télégraphiques
en déficit en investissant dans les infrastructures et en subventionnant
l'accès régional, généralement avec un soutien
bipartite.
Les premiers téléphones publics à
prépaiement semblent avoir été installés
vers 1890, quelques années seulement après leur apparition
aux États-Unis. À ce stade, il nexistait toujours
pas de réseau téléphonique national - les maîtres
de poste de chaque colonie étaient responsables du réseau
de leur colonie.
Dans les années 1890, un nouveau style de téléphone
plus petit a été introduit, présenté en
trois parties.
L'émetteur se trouvait sur un support, appelé "chandelier"
pour sa forme. Lorsqu'il n'était pas utilisé, le récepteur
était accroché à un crochet doté d'un commutateur,
appelé "crochet commutateur".
 
Le premier téléphone public est installé au bureau
de poste général de Sydney. En 1900, il y a 30 000 services
téléphoniques opérationnels, mais aucune autorité
centrale pour les gérer et les entretenir.
sommaire
1900 Le point avant la fédération :
Avant la Fédération en 1901
, chaque colonie australienne gérait ses propres affaires, y
compris les télégraphes et la téléphonie.
Il y avait donc une pléthore de types déquipements
dispersés sur le continent.
Avant 1901, les réseaux téléphoniques étaient
sous le contrôle du personnel de l'Electric
Telegraph dans les colonies indépendantes.
Le premier central téléphonique d'Australie fut inauguré
à Melbourne en 1880 et, en 1887, des centraux avaient été
installés dans chaque capitale.
Le développement se concentra initialement autour des centres-villes,
mais des centraux de banlieue furent établis dès 1901
dans toutes les villes, à l'exception de Hobart. À cette
époque, chaque réseau urbain avait développé
sa propre identité, qui allait influencer la croissance future
pendant des décennies.
Sous les gouvernements coloniaux, une attitude de laisser-faire prévalait
à l'égard des téléphones ruraux. Si un nombre
spécifié de demandes de service était reçu
dans une ville, un central téléphonique était ouvert.
Ce nombre était de 15 en Nouvelle-Galles du Sud et des chiffres
similaires étaient appliqués ailleurs. Sous ces politiques,
le développement fut lent et irrégulier.
La préparation du plan :
En 1901, le ministre des Postes du premier Parlement australien
créa une commission, présidée par Sir Charles
Todd, chargée de faire rapport sur les systèmes téléphoniques
et télégraphiques coloniaux, repris par le Commonwealth.
Ce rapport résume la technologie mondiale de l'époque
telle que perçue par les ingénieurs australiens.
Il donne une description détaillée de la situation australienne
à cette époque et contient également des recommandations
pour les travaux à entreprendre au cours des trois prochaines
années. Il constitue donc un point de départ pratique
pour un historique de la commutation téléphonique en Australie.
Des statistiques sont jointes et montrent qu'il y avait 22 299
lignes, dont 79 % dans les capitales.
En 1901, les réseaux des capitales se divisaient en deux catégories,
Sydney et Melbourne étant bien plus étendus.
SYDNEY comptait 3 710 lignes d'abonnés connectées
au central téléphonique central du GPO et 4 207 autres
connectées à 2 ou 3 centraux secondaires, dont la taille
variait de 432 à Edgecliff à 20 à Liverpool.
Les villes comparables à l'étranger disposaient d'un nombre
bien plus restreint de centraux téléphoniques relativement
importants pour desservir leurs banlieues, et Sydney constituait à
cet égard une anomalie.
On ignore si cela était dû à une politique délibérée,
ni si des sanctions ont été appliquées.
Du côté positif, les lignes courtes, rendues possibles
par les centraux rapprochés, ont permis des économies
de matériel, tandis que les petits centraux de banlieue, non
multiples, étaient peu coûteux et pouvaient être
installés dans les recoins libres des bureaux de poste.
Du côté négatif, des coûts d'exploitation
supplémentaires étaient liés à la dotation
en personnel de nombreux petits sites et à la commutation du
trafic important aux carrefours engendré par les petits centraux.
À terme, de nombreux nouveaux bâtiments seraient nécessaires,
car les centraux deviendraient trop grands pour l'espace disponible.
Globalement, les avantages et les inconvénients se sont probablement
équilibrés. Cependant, le réseau de 1901 a eu un
impact profond sur le développement futur. Le central était
un central multiple à embranchements de conception récente
et avait remplacé un central multiple série obsolète
15 mois plus tôt. Cependant, le rapport exprimait des doutes quant
à sa fiabilité. Des fiches d'un diamètre de 4,8
mm (3/16") étaient utilisées pour une capacité
multiple de 9 000 lignes et s'usaient rapidement. Cependant, il
semble que ce soit un problème de jeunesse, et le central est
resté en service jusqu'en 1915.
Les centraux de banlieue étaient tous non magnéto-multiples
et principalement construits pour des lignes métalliques. Il
existait un plan, qui a peut-être été mis en uvre,
visant à installer des centraux multiples en série à
Edgecliff en utilisant des parties reconstruites de l'ancien central
central. Trois ou quatre centraux devaient disposer d'installations
de transfert, probablement des circuits de dérivation.
MELBOURNE comptait 3 057 abonnés connectés
à Central et 17 47 autres connectés à 12 centraux
de banlieue. Trois centraux représentaient 12 73 de ces
lignes. Le réseau était plus conventionnel que celui de
Sydney en termes de zones de central. Même ici, certains ont suggéré
qu'avec les centraux CB, il serait souhaitable de Fusionner Windsor,
Hawthorn et Malvern en un seul grand central. Central était un
vieux central multiple en série, qui avait grand besoin d'être
remplacé. Il était équipé d'une commutation
monofilaire, ce qui était inacceptable pour un central de cette
taille, et les cordons étaient suspendus au-dessus du tableau,
ce qui rendait l'exploitation difficile pour les athlètes.
La capacité multiple était de 3 600 lignes et on
estimait que ce chiffre serait dépassé d'ici deux ans.
Le deuxième plus grand central était Windsor, avec 62 abonnés,
et il avait récemment été équipé
d'un tableau multiplex moderne. Tous les autres centraux n'étaient
pas multiples. Malvern et Hawthorn disposaient chacun de quatre positions
et disposaient probablement de transferts de dérivation. Aucun
autre central ne dépassait deux positions.
Certains centraux de banlieue étaient équipés pour
des lignes métalliques, mais les lignes étaient presque
entièrement monofilaires et subissaient des interférences
avec le réseau électrique.
PERTH possédait le plus grand réseau du deuxième
groupe et, grâce à la prospérité engendrée
par la ruée vers l'or, disposait de centraux modernes. Perth
Central comptait 973 abonnés sur un tableau multiplex.
Fremantle en comptait 430, également sur un tableau multiplex,
et trois centraux plus petits en comptaient 204 de plus.
DELAIDE était similaire à Perth
avec 1 207 abonnés à Central, 205 à Port Adélaïde
et deux centraux similaires. Elle disposait d'un central multiple série
monofilaire obsolète mais adéquat à Central et
d'un central non multiple à trois positions à Port Adélaïde.
BRISBANE disposait d'un central multiple à embranchements
presque neuf à Central avec 1 207 lignes et 108 lignes sur
deux centraux de banlieue.
HOBART disposait d'un seul central avec 494 abonnés connectés.
Ce central comptait douze postes non multiples de 50 lignes et les transferts
compliquaient la vie des opérateurs.
En zone rurale, on comptait des centraux dans 60 villes, totalisant
4 751 lignes connectées. La liste des emplacements suggère
une surreprésentation des villes minières.
À l'exception des champs aurifères d'Australie-Occidentale,
tous les centraux étaient à magnéto non multiples
et seuls sept centraux dépassaient 200 lignes. La plupart de
ces lignes desservaient des locaux commerciaux ou industriels en ville,
et très peu de propriétés agricoles ou de pâturages
étaient équipées de téléphones.
Le comité a formulé des recommandations pour répondre
à la croissance et moderniser le système téléphonique
si nécessaire.
sommaire
Le PLAN
Ces recommandations, raisonnables, impliquaient le remplacement des
centraux de Melbourne et Sydney Central par des lignes à commutation,
le remplacement du tableau monofilaire d'Adelaide Central par des lignes
multiples et l'installation de lignes multiples dans les autres centraux
à mesure qu'ils dépassaient cinq positions environ.
Malheureusement, le service téléphonique a manqué
de fonds jusqu'en 1907 et les remplacements recommandés n'ont
pas été effectués.
Le chaos qui en a résulté, ainsi que d'autres problèmes,
ont conduit à la création d'une Commission royale et à
la mise en uvre d'un programme de modernisation vigoureux, principalement
dans les réseaux métropolitains.
Ce programme était presque entièrement achevé en
1915, lorsque les pénuries liées à la guerre ont
interrompu les travaux.
Le calendrier des différents projets était basé
sur les besoins et la disponibilité des bâtiments, de sorte
que chaque réseau était affecté différemment.
Jusqu'en 1914, les nouveaux centraux étaient des CB (à
batterie centrale) ou des PABX (centraux multiples à embranchements).
Suite au succès de l'automatique à Geelong en 1912, il
fut décidé d'utiliser l'automatique de préférence
aux centraux manuels si plus de cinq positions étaient nécessaires.
En raison des changements majeurs qui ont suivi l'introduction des centraux
automatiques dans les villes, il est préférable de traiter
la modernisation initiale à l'aide de la technologie manuelle
comme un premier sujet et la conversion ultérieure à l'automatique
comme un second sujet.
La ligne de démarcation est différente pour chaque ville,
allant de 1914 à Perth et Sydney à 1925 à Brisbane.
Un certain nombre de nouveaux départements du gouvernement fédéral
ont été créés pour assumer la responsabilité
des questions nationales. L'un d'entre eux était le ministère
des Postes (PGM), chargé des téléphones,
des télégraphes et du courrier.
Son organisme commercial était l'Australian Post Office, bien
que ce nom n'ait pas été largement adopté avant
les années 1950.
Ils ont repris une large gamme de téléphones des différentes
administrations de l'État et ont entrepris de les rationaliser
pour bénéficier de contrats de fourniture plus importants
et de pièces de rechange et d'entretien simplifiés.
Vers 1914, la portée avait été réduite au
point qu'une liste des téléphones « standards »
restants pouvait désormais être publiée. Chaque
téléphone s'est vu attribuer un numéro de téléphone.

Gustav Kopsch, premier mécanicien en chef du département
PMG . Ateliers téléphoniques, Sydney, 1912
Avec 16 000 employés (et des actifs de plus de 6 millions de
livres), le PMG représentait 80% de la nouvelle bureaucratie
fédérale.
Des téléphones publics étaient disponibles dans
une poignée de bureaux de poste.
Les téléphones des abonnés étaient initialement
réservés aux grandes entreprises, aux agences gouvernementales,
aux institutions et aux résidences plus riches. Huit millions
de télégrammes ont été envoyés cette
année sur 43 000 milles de ligne.
Il y avait environ 33 000 téléphones en Australie,
avec 7 502 abonnés dans le centre de Sydney et
4 800 dans le quartier central des affaires de Melbourne.
Les liaisons par câble outre-mer avec l'Australie sont restées
entre des mains privées, reflétant les réalités
de la politique impériale, les exigences imposées aux
ressources du nouveau gouvernement et la perception de ses responsabilités.
DE NOUVEAUX CENTRAUX MANUELS DANS LES VILLES
MELBOURNE a été la ville la plus touchée
pendant les années de vaches maigres et a été la
principale ville à accueillir les nouveaux centraux multiples
après 1907. Le principal problème était Central
et, entre 1908 et 1919, des travaux majeurs ont été effectués
pour éviter l'effondrement complet du service. Le résultat
a été un arrangement viable, mais extrêmement inhabituel.
Les éléments de preuve présentés à
la Commission royale indiquaient qu'il y avait :
- un central multiple série de 3 600 lignes
- un tableau de distribution multiple de 300 lignes
- 12 tableaux non multiples de 100 lignes
- un tableau multiple de 4 800 lignes
La capacité effective était de 4 800 lignes, composée
du central d'origine de 3 600 lignes et des 12 postes non multiples
de 100 lignes.
Le tableau de distribution multiple de 300 lignes était apparemment
un ensemble de postes B mentionnés en passant dans le
rapport 1901. Il comptait au moins 3 600 lignes dans le multiple
et était peut-être plus grand.
Le tableau multiple de 4 800 lignes devait être un ensemble
similaire avec accès à la fois à l'ancien tableau
et aux postes non multiples.
Des astuces ont dû être utilisées pour obtenir ce
résultat. Cette histoire mérite d'être étudiée
et démontrerait les compétences des ingénieurs
de l'époque. En raison de la nécessité d'un nouveau
site et d'un nouveau bâtiment pour le CB, ce central « de
fortune » resta en service jusqu'au 26 août 1911 et
fut ensuite étendu à une capacité de 5 400
lignes. Il fut ensuite remplacé par un nouveau central CB, rue
Lonsdale, qui atteignit plus de 10 000 lignes en peu de temps.
En 1908, les trois plus grands centraux de banlieue étaient tous
en difficulté. Hawthorn disposait de 10 postes non multiples,
tandis que Malvern en comptait 11. Tous deux firent l'objet de vives
critiques de la part de la Commission royale. Des postes de jonction
entrants semblent avoir été prévus pour soulager
la situation avant leur remplacement par des postes CB à Hawthorn
en 1911 et des postes magnéto multiples à Malvern. Le
poste magnéto multiple de Windsor, installé en 1901, se
trouvait dans une salle de commutation relativement petite et atteignit
sa pleine capacité en 1907. Un petit poste non multiple à
Yarra assura une détente temporaire. Un poste CB fut installé
à Windsor en 1910 et Yarra fut fermé. Les autres postes
étaient beaucoup plus petits et ne présentaient aucun
problème immédiat pour les postes magnéto non multiples.
La conversion suivante fut celle de Brighton, qui passa à l'automatique
en 1914. Ce point sera abordé dans la section suivante.
SYDNEY Les problèmes rencontrés par Sydney pendant
les sept années de vaches maigres étaient différents
de ceux de Melbourne.
Le central téléphonique central était satisfaisant,
malgré les craintes d'usure des jacks. Malgré cela, la
conversion au CB était intéressante, tant pour améliorer
le service que pour réduire les coûts d'exploitation. La
salle du central téléphonique était suffisamment
grande pour permettre une transition progressive, qui fut entreprise
dès que les fonds furent trouvés. Un central téléphonique
CB d'une capacité initiale de 500 lignes fut mis en service le
12 août 1908, dans la même salle que le central téléphonique
de dérivation. Le nouveau central fut baptisé « City »
pour le distinguer de l'ancien central. Des extensions et des transitions
progressives permirent de remplacer progressivement l'ancien central,
mais il continua à acheminer le trafic interurbain jusqu'en 1915,
date à laquelle un nouveau central interurbain permit sa fermeture.
Les principaux problèmes de Sydney résidaient dans les
centraux de banlieue.
Ces derniers présentèrent rapidement tous les inconvénients
des grandes installations non multiples, aggravés par la forte
proportion de trafic de jonction. En l'absence de postes de jonction
dédiés, les terminaisons de jonction entrantes étaient
réparties sur les postes A et chaque opérateur avait une
charge mixte d'abonnés, de jonctions entrantes et de transferts
depuis d'autres postes. Les appels des abonnés et des jonctions
entrantes devaient souvent être transférés vers
un autre opérateur pour établir la connexion. Trois opérateurs
étaient fréquemment impliqués dans un même
appel, tandis que quatre ou cinq étaient parfois nécessaires.
Il en résultait une surcharge de travail pour les opérateurs
et des temps de connexion excessifs.
En 1907, on comptait dix centraux non multiples avec cinq postes A ou
plus, et il était clair qu'il faudrait plusieurs années
pour les remplacer tous. Il y en avait également sept autres,
qui passèrent à cinq postes (positions) au cours des trois
années suivantes.
Face à ce problème, Une solution a été tentée,
probablement inspirée du central de Melbourne, et s'est avérée
très efficace. Elle consistait à ajouter des positions
B multiples pour les jonctions entrantes à une suite non multiple.
Ces positions étaient des sections de centraux multiples série
standard, avec quelques modifications mineures apportées à
ces positions et aux positions A existantes pour les rendre compatibles.
Le résultat semble avoir dépassé les attentes.
Le transfert du trafic de jonction depuis les positions A a éliminé
la surcharge, tandis que les opérateurs des positions B ont traité
ce trafic plus rapidement. Cette amélioration a eu un impact
sur l'opérateur d'origine, dont la charge de travail a également
été réduite. Au moins sept centraux étaient
équipés de ces positions B. Elles n'étaient pas
destinées à être permanentes et ont toutes été
remplacées en 1916. Cependant, elles ont permis au réseau
de surmonter une période difficile et se sont pleinement justifiées.
Cinq centraux ont pu être équipés de ces positions
pour le coût d'un seul central multiple à embranchements,
et les performances étaient légèrement inférieures.
L'installation était simple et ne nécessitait pas beaucoup
de main-d'uvre. Que la cause en soit ou non la disponibilité
d'une solution satisfaisante à court terme, l'installation de
centraux multiples complets à Sydney fut plus lente et, en 1912,
seuls six centraux multiples complets avaient été installés.
À cette époque, les centraux automatiques étaient
privilégiés et des détails sur les centraux automatiques
de Sydney seront présentés plus loin dans cette page.
L'expérience acquise avec ces postes B a peut-être modifié
l'attitude du personnel d'ingénierie et d'exploitation. Ils ont
découvert une alternative au central multiple complet, peu performante
et bien moins coûteuse. Cela s'explique en partie par le fait
qu'avec de nombreux petits centraux, la proportion de trafic local était
faible et que la pénalité liée à l'élimination
des centraux multiples sur les postes A était faible. Il semble
que ces postes B aient fait l'objet de nombreuses expérimentations.
Des améliorations, telles que la signalisation par lampes, ont
été apportées à certains d'entre eux. Quoi
qu'il en soit, cette solution a conduit au développement d'un
modèle local qui a connu une durée de vie relativement
longue.
Ces centraux combinaient des positions A non multiples et des positions
B multiples. Cette conception a permis de surmonter les problèmes
de compatibilité liés aux expédients et a apporté
quelques fonctionnalités supplémentaires. Les appels locaux
étaient transférés via les positions B, selon les
mêmes procédures d'exploitation que pour les appels vers
d'autres centraux. Cela a éliminé les nombreux petits
groupes de transferts A-A utilisés auparavant. Les jonctions
utilisaient la signalisation par lampes et le fonctionnement par fil
d'ordre avec la même efficacité opérationnelle que
les meilleurs centraux multiples complets. La charge réduite
des positions A permettait d'utiliser des positions A jusqu'à
220 abonnés, mais 200 constituait la limite normale. Au moins
onze centraux de ce type ont été installés, les
premiers étant à Waverley, Randwick et Manly vers 1911.
Une exploitation efficace des jonctions était encore plus importante
pour Sydney que pour Melbourne, et les fils d'ordre et la signalisation
par lampes étaient largement utilisés. Cependant, de nombreuses
petites lignes ne convenaient pas au fonctionnement par fil d'ordre.
Le fonctionnement en tandem automatique a finalement été
utilisé pour réduire ces problèmes.
Les réseaux de jonctions australiens ont suivi les pratiques
étrangères, mais on a observé quelques différences
et de brèves traces de conception locale. Ces différences
se traduisent par la modernisation des centraux magnétos utilisant
des méthodes développées pour les centraux CB,
comme l'utilisation de lampes de signalisation pour les jonctions magnétos.
De plus, l'utilisation de positions A non multiples avec plusieurs B
a été utilisée à l'étranger dans
les grands centraux CB, mais jamais dans les magnétos.
PERTH, ADÉLAÏDE et BRISBANE ont connu moins de problèmes
pendant les sept années de vaches maigres, car elles disposaient
chacune d'un central central adéquat et d'aucun grand central
de banlieue.
Sur le réseau de Perth, les seuls centraux modernisés
avec de nouveaux équipements manuels ont été Fremantle,
remplacé par le CB n° 9 (un type conçu pour les centraux
de taille moyenne) en 1911, et Cottesloe, où un multiplexeur
magnéto a été installé. Les autres centraux
de banlieue étaient petits et sont restés non multiples,
tandis que Central a conservé son central magnéto multiple
à embranchements jusqu'à son remplacement par un central
automatique en 1914.
À Adélaïde, le central multiple série Central
a été maintenu en service (non sans difficultés)
jusqu'en 1910, date à laquelle il a été remplacé
par CB dans un nouveau bâtiment. Port Adélaïde a été
remplacé par CB n° 9 en 1908. Le reste du réseau a
continué à fonctionner sans problème avec le central
magnéto non multiple.
À Brisbane, le central magnéto multiple à embranchements
a été remplacé par CB en 1912. Le seul grand central
de banlieue était celui de Toowong, qui a été converti
en central magnéto multiple à un moment donné.
Les autres ont continué à être desservis par des
central magnéto non multiples, probablement avec des postes B
multiples série.
Hobart est resté non multiple jusqu'en 1908, date à laquelle
il a accueilli le premier central CB d'Australie. .
En 1902, l'ingénieur principal d'Ericsson,
Hemming Johansson, qui deviendra par la suite président de la
société, se rend en Australie et en Afrique du Sud, qui
constituent également un marché important. Johansson voulait
démontrer l'expertise technique de l'entreprise et avait apporté
avec lui un petit tableau avec un système de batterie central.
Hemming Johansson a écrit plus tard sur la visite comme suit.
"Par un coup de chance, des ingénieurs de premier plan
de diverses sociétés de téléphonie assistaient
à une conférence à Sydney lors de ma visite. Une
offre d'organiser une démonstration pratique des derniers équipements
et de discuter de questions techniques avec ces messieurs a été
facilement acceptée". Parallèlement au voyage
de Johansson, Fahlstedt a été remplacé à
Sydney par l'homme d'affaires écossais James Paton. Ericsson
a également recruté des agents dans d'autres régions
du pays, et les ventes ont également été étendues
pour inclure les commutateurs.
Après la Première Guerre mondiale, l'Australian
Post Office (APO). a examiné la gamme de téléphones
dont elle disposait et a commencé à rechercher des économies
et des mises à jour. Ils avaient déjà opté
pour le téléphone britannique Ericsson N2500 pour remplacer
le téléphone mural Commonwealth Ericsson. Les téléphones
de bureau en forme de boîte en fer blanc se sont montrés
prometteurs et ont été brièvement utilisés,
mais ils ont été rapidement remplacés par les nouveaux
téléphones en bakélite. Le BritaniquePO a testé
un modèle et lAPO la rapidement adopté également.
Ils ont également tenté d'encourager la fabrication locale
de téléphones. L'industrie téléphonique
australienne a connu des débuts plutôt difficiles, mais
les sociétés locales Western Electric, AWA, puis STC et
TMC ont rapidement adopté cette technologie et ont pu produire
de nombreuses pièces localement. En retour, les ateliers PMG
ont coopéré étroitement avec eux et partagé
le développement de nouvelles technologies. L'APO accorde de
plus en plus de contrats aux entreprises locales.
Les téléphones d'Ericsson étaient
réputés pour leur haute qualité et les ventes ont
continué à être suffisamment fructueuses pour permettre
à James Paton de créer une société de vente
au début des années 1920 qui a été nommée
Ericsson Telephone Manufacturing Company.
Le système de numérotation des modèles de téléphones
a été modifié dans les années 1930, lorsque
les premiers téléphones en bakélite ont été
introduits. Les Britanniques avaient désigné leurs premiers
téléphones comme la série 100, et cela a également
été adopté en Australie. Un modèle similaire
était adopté à l'étranger, ce qui allait
plus tard provoquer une certaine confusion dans la série australienne
parmi les collectionneurs. En période durgence et de pénurie,
les téléphones provenaient des États-Unis pour
répondre à la demande. Leurs numéros de série
américains ont parfois été incorrectement remplacés
par des numéros de série australiens.
L'Australie n'est devenue un marché majeur qu'après la
mort de James Paton en 1949. Le nouveau responsable du marché
australien était un Australien nommé Rowe, qui a créé
une nouvelle société de vente Ericsson appelée
LM Ericsson Telephone Co. Pty Ltd (ETA) pour la vente de systèmes
de commutation. Il a cependant fait face à un défi de
taille. L'APO avait déjà signé un vaste contrat
pluriannuel avec deux sociétés britanniques, STC et TEI,
pour la livraison de postes téléphoniques.
Après la fédération
Une ligne principale entre Melbourne (siège du département
PMG) et Sydney a été établie en 1907, avec une
extension à Adélaïde en 1914, Brisbane en 1923, Perth
en 1930 et Hobart en 1935.
Le 12 juillet 1906, les premiers messages australiens sans fil outre-mer
ont été envoyés entre Point Lonsdale, Victoria
et Devonport, Tasmanie.
L'Australie et la Nouvelle-Zélande ont ratifié la Convention
radio-télégraphique de Berlin de 1906 en 1907.
Le département PMG est devenu responsable de certains services
internationaux à ondes courtes - en particulier à partir
des années 1920 - et d'un nouveau service de radio côtière
en 1911, avec le premier d'un réseau des stations opérationnelles
en février 1912.
En 1911, 100 000 téléphones étaient
en service.
À mesure que le nombre dabonnés augmentait, il devenait
de plus en plus difficile de connecter chaque appel individuel.
il y avait 23 504 abonnés privés et 500 cabines
téléphoniques publiques. Même si bon nombre d'entre
eux étaient concentrés à Melbourne et dans les
grandes villes, les propriétés rurales ont également
installé des lignes téléphoniques, même si
certaines étaient plutôt improvisées.
Le PMG s'est avéré totalement incapable de répondre
à la demande en raison des limites financières imposées
par le gouvernement.
Les bénéfices annuels ont été retournés
au gouvernement au lieu d'être réinvestis dans le système.
Le plan à long terme pour moderniser le réseau avait été
présenté mais était totalement non financé
et l'ancienne infrastructure devenait moins fiable et plus coûteuse
à entretenir. Bien que des mesures aient été prises
pour automatiser les centrex plus petits, les plus grandes villes étaient
toujours desservies par des centres manuels. Les numéros de téléphone
étaient rares, les lignes aériennes et les câbles
souterrains étaient limités et la pression politique augmentait
pour que quelque chose soit fait.
sommaire
LES CAPITALES ACCÉDENT À L'AUTOMATISME
Le premier centre automatique privé d'Australie
a été installé dans le GPO à Sydney,
en 1911, pour un usage interne.
« En privé, un test de central téléphonique
automatique Strowger a été
effectué au bureau de poste général de Sydney,
où 34 téléphones officiels étaient connectés,
et cela a donné une telle satisfaction que l'installation de
Geelong a été décidée.
Il a été installé par Automatic
Electric (AE) comme modèle de démonstration.
Il sagissait en fait dun PABX qui servait le personnel de
PMG et qui est resté en service pendant de nombreuses années.
Le 6 juillet 1912, le premier central téléphonique
automatique Strowger a ouvert ses portes à Geelong, Il
comptait 800 abonnés.
L'équipement est fabriqué aux États-Unis par l'Automatic
Electric Company de North Lake, dans l'Illinois.
Le premier centre téléphonique automatique publique en
Australie a été ouvert à Geelong le 6 juillet 1912,
au premier étage du nouveau bureau de poste. Ce système
fabriqué en Amérique par la Automatic Electric Company
de North Lake, Illinois est resté en place jusqu'en 1939.
« Un test de ce système a été réalisé
au bureau de poste général de Sydney, où tous les
téléphones officiels étaient reliés à
un standard automatique. Trente-quatre appareils ont été
connectés au tableau, et le résultat a été
si satisfaisant que l'installation à Geelong a été
décidée. »
L '«Annonceur Geelong» a décrit le centre en ces
termes:
"Rien ne pourrait être plus proche de l'humain: le voir
fonctionner et saisir ce qu'il fait, le fait paraître surnaturel.
C'est tellement ingénieux que la description complète
presque mendiante".
Ce centre était le premier centre automatique dans l'hémisphère
sud et le deuxième dans l'Empire britannique de l'époque
- il n'a été précédé que par celui
de Epsom en Angleterre.
Suite au succès il fut décidé d'utiliser un équipement
automatique comme type privilégié pour les nouveaux centraux
des réseaux multi-centraux.
Cette décision fut maintenue dans la mesure où les circonstances
le permirent et seuls quelques nouveaux centraux manuels furent installés
dans les villes après 1914. Un facteur important dans cette décision
fut les coûts d'exploitation élevés des réseaux
multi-centraux manuels.
Rétrospectivement, cette décision semble plutôt
audacieuse. On pensait généralement que les équipements
automatiques disponibles étaient inadaptés aux grands
réseaux. On doutait de la capacité des abonnés
à mémoriser des numéros à cinq et six chiffres,
et le semi-automatique était activement développé.
Les mêmes arguments réapparurent des années plus
tard pour la commutation interurbaine, mais avec une pertinence accrue
en raison de la complexité des réseaux interurbains.
Jusqu'à cette époque, la plupart des équipements
Strowger avaient été installés aux États-Unis
par de petites entreprises indépendantes sous forme de centraux
uniques. Les deux seuls grands réseaux se trouvaient à
Los Angeles. avec 13 centraux et San Francisco avec moins de 10. Il
s'agissait de réseaux principaux/dérivés, dont
la quasi-totalité des lignes étaient connectées
aux centraux principaux. Les villes australiennes avaient des exigences
différentes, mais le concept s'est avéré suffisamment
adaptable pour répondre aux besoins de Sydney, Melbourne et des
villes plus petites pendant de nombreuses années.
En raison du programme de modernisation lancé en 1907, l'application
initiale de l'automatique fut inégale et limitée. Chaque
réseau présentait des problèmes différents
et nécessitait une solution individuelle.
Il est pratique de commencer par PERTH, où le central central
a été converti le 26 septembre 1914.
LA TONALITÉ ARRIVE À PERTH...
Il n'y avait que deux autres centraux importants sur le réseau :
Fremantle et Cottesloe. Tous deux avaient été récemment
modernisés et avaient au moins dix ans de vie utile devant eux.
Le central téléphonique de Murray St Perth fut
mis en service le 26 septembre 1914, avec 3 200 abonnés, le premier
à desservir un quartier d'affaires central et installé
seulement deux ans après celui de Geelong (premier central téléphonique
automatique public d'Australie).
Il s'agissait du plus grand du pays à l'époque et du premier
dans un centre d'affaires. Dès le départ, il présentait
deux problèmes majeurs : le premier était la méconnaissance
de la téléphonie par ligne téléphonique
par les clients et, plus grave encore, l'insuffisance des commutateurs
fournis par les sous-traitants américains pour le trafic téléphonique
prévu. Les plaintes fusèrent, mais après environ
un an et de nombreuses procédures juridiques, l'équipement
fut modernisé et tout s'installa. Il fut finalement mis hors
service en 1987.
Cependant, presque aucune information n'avait été publiée
sur cette contribution aux télécommunications australiennes.
Même Telstra avait omis de le mentionner dans son historique en
ligne à l'époque. Il faut dire que la mise en service
du central téléphonique a coïncidé avec la
déclaration de la Première Guerre mondiale, son importance
a donc été éclipsée par cet événement
capital.
Le téléphone est rapidement devenu un outil essentiel
pour les entreprises et bientôt, il y a eu tellement de téléphones
installés dans des locaux commerciaux plus grands qu'ils ont
eu besoin de leurs propres standards pour gérer le volume des
appels entrants et sortants.
Salle de commutation Strowger.
Lors de l'installation en 1914, l'équipement des premiers sélecteurs
était totalement insuffisant pour répondre à la
demande pendant les heures de pointe, ce qui a suscité de nombreuses
plaintes d'abonnés mécontents. La cause principale de
la congestion était, au moins en partie, l'absence de tonalité
dans les centraux construits par l'Automatic Electric Coy, ainsi
que le manque de connaissances de l'abonné moyen sur l'utilisation
correcte du téléphone. Suite à cette congestion,
AE a admis avoir largement sous-estimé le trafic et, en 1915,
a modernisé l'équipement à ses frais.
L'ingénieur installateur, H. Janes, en réponse aux plaintes,
a adressé un appel pressant aux abonnés dans le West Australian
du 16 février 1915; Il demande désormais à chaque
abonné, s'apprêtant à composer un numéro,
de maintenir le combiné raccroché avec un doigt de la
main droite, de le maintenir raccroché tout en portant le combiné
à son oreille avec la main gauche, puis de le relâcher
et, seulement s'il entend un clic rapide précédé
d'un silence, de poursuivre son appel de la manière habituelle.
De cette façon, l'abonné peut savoir si sa ligne est libre
ou non.
L'écoute du clic suivi d'un silence était apparemment
le seul indice qu'un premier sélecteur avait été
bloqué.
Le central de PERTH a été équipé pour fournir
la tonalité vers 1940.
Ceci est confirmé par un article du West Australian du 28 août
1941, qui indique qu'un programme de modernisation de la tonalité
était en cours.
West Australian 28 août 1941
TÉLÉPHONES AUTOMATIQUES. Élimination des pannes.
Quatre-vingt-sept pour cent des téléphones de Perth
étaient connectés à des centraux automatiques,
a déclaré hier le directeur adjoint des Postes et
Télégraphes (M. J. G. Kilpatrick). Ces 87 pour cent
excluaient les téléphones du district de Fremantle,
qui pouvaient être appelés directement par les abonnés
équipés de téléphones automatiques.
Perth se comparait très favorablement aux autres capitales
en ce qui concerne la proportion de téléphones automatiques.
Dans tout le Commonwealth, on comptait environ 715 000 téléphones
en service. En Australie-Occidentale, on en comptait 24 864
sur le réseau métropolitain et 13 252 dans les
districts ruraux. L'observation du trafic téléphonique
a révélé qu'un certain nombre d'appels étaient
inefficaces, l'appelant ne laissant pas suffisamment de temps pour
obtenir une réponse, a déclaré M. Kilpatrick.
Des erreurs étaient également causées par des
appelants de téléphones automatiques, qui, après
un appel, en lançaient un second sans attendre suffisamment
longtemps pour libérer complètement la connexion précédente.
De ce fait, la deuxième série d'impulsions de numérotation
était reliée à la partie de la connexion précédente
non libérée, ce qui provoquait une connexion vers
un mauvais numéro.
L'installation, dans tous les centraux automatiques du réseau
de Perth, de la « tonalité »
ce ronflement grave et continu qui se faisait entendre dès
que l'on décrochait le combiné et qui indiquait que
le commutateur était prêt à établir un
appel avait permis de minimiser les problèmes de brouillage.
Cependant, pour garantir un service satisfaisant aux abonnés,
il était conseillé de laisser s'écouler un
délai raisonnable après un appel avant d'en lancer
un autre. |
Il semble que le premier central téléphonique
de Perth équipé de la tonalité ait été
celui de Cottesloe en 1930, comme le détaillent les caractéristiques
du nouveau central téléphonique dans le West Australian
du 1er janvier 1930.
West Australian du 1er janvier 1930.
COTTESLOE LE TÉLÉPHONE
Caractéristiques du nouveau central téléphonique
Les abonnés au nouveau central téléphonique
automatique de Cottesloe bénéficieront d'un service
plus moderne que les abonnés du central téléphonique
de Perth. En décrochant leur combiné, ils recevront
un signal automatique indiquant si la ligne est libre et, après
avoir composé le numéro, un autre signal si le numéro
est injoignable. Un signal indiquant qu'un numéro est occupé
est déjà familier aux utilisateurs du central téléphonique
de Perth.
Lorsqu'un abonné de Cottesloe décroche son combiné,
si les conditions sont réunies pour appeler le numéro
souhaité, il entendra la tonalité d'appel (un clic
grave) et pourra poursuivre ses appels. En l'absence de signal,
il peut penser qu'il y a une difficulté intermittente dans
le circuit, qui se résoudra rapidement. S'il décroche
ensuite le combiné et, après quelques secondes, perçoit
la tonalité, il peut appeler le numéro souhaité.
La tonalité de numéro injoignable un son aigu
et continu l'informera que le numéro appelé
est soit déconnecté, soit temporairement hors service.
Le passage au nouveau central aura lieu samedi prochain. Les premiers
essais de l'appareil sont en cours et donnent de bons résultats.
Hier, le directeur adjoint des Postes et Télégraphes
(M. S. R. Roberts) a exprimé l'espoir que les abonnés
feraient tout leur possible pour coopérer avec le ministère
afin de minimiser les désagréments. |
Siemens en Allemagne qui concevait
et fabriquait sa version Strowger était plus en avance, car ils
avaient introduit la tonalité dans leurs autocommutateurs vers
1908 en Allemagne. Celle-ci constituait une étape essentielle
dans l'automatisation du travail de la téléphoniste :
la tonalité que l'on entendait en décrochant le téléphone
était l'équivalent de la voix de l'opératrice demandant
quel numéro appeler.
Vu dans la presse en 1987
Le premier central téléphonique automatique de Perth
a ouvert ses portes il y a plus de 100 ans sur la rue Murray,
dans un grand bâtiment de brique et de pierre qui existe encore
aujourd'hui.
1887
Le téléphone était arrivé en Australie
occidentale 27 ans plus tôt, avec le premier entre manuel
ouvert dans un cottage de trois pièces situé à
Wellington Street, avec 12 abonnés.
Le centre manuel Fremantle a ouvert un an plus tard dans une petite
pièce à larrière de la mairie comptait
9 abonnés, a déclaré M. Offen.
En 1910, le centre manuel de Perth était complètement
surchargé et le Post Master General qui visitait alors les
services téléphoniques et télégraphiques
en Australie a commencé à enquêter pour la création
dun nouveau centre.
John Hesketh, ingénieur électricien en chef du PMG,
était absolument convaincu de la nécessité
d'un central automatique.
Il a été envoyé en mission aux États-Unis
et en Europe pour s'enquérir des techniques et des marchés
des centres automatiques.
JF Moynihan écrit dans Early Automatic Telephony en Australie
que l'appel d'offres a été remporté par la
Automatic Electric Company de Chicago
à un prix contractuel de 42 612 £ , comprenant 3 350
téléphones muraux, 750 postes téléphoniques
et 40 lignes d'abonnés au téléphones, plus
100 téléphones publics payants.
En conséquence, le premier central téléphonique
à composition automatique a ouvert ses portes à Murray
Street, à Perth, le 26 septembre 1914.
Il s'agissait du plus grand central du genre en Australie, a déclaré
M. Offen.
Equipement de commutation Strowger / Automatic Electric (à
droite de l'image) installé en 1914-15. - Équipement
de recherche de ligne "Plunger" montré à
gauche de l'image.
Malgré sa taille, le nouveau centre était débordé
dès le début car les gens n'étaient pas habitués
à composer les numéros avec leurs doigts et ils étaient
beaucoup plus habitués à la voix serviable d'un téléphoniste
qui demandait, 'Numéro s'il vous plaît ?'",
En outre, ils étaient très méfiants , craignant
un choc électrique ou à la gêne de faire un
mauvais numéro.
Plus sérieusement, la société qui a fourni
l'équipement a sous-estimé grossièrement l'équipement
de commutation et, avec tous ces abonnés, de très
graves problèmes se sont posés.
Les plaintes adressées au maître des postes ont monté
en flèche. Dans une lettre au rédacteur en chef de
The West Australian neuf jours après louverture, un
résident sest plaint du service médiocre.
Monsieur, puis-je raconter mes expériences avec ce système
tant vanté ?
Depuis le lundi matin dernier, malgré le strict respect de
la réglementation, tous les efforts pour entrer en contact
avec l'un de mes amis d'affaires se sont avérés vains.
Après environ un an et beaucoup de disputes juridiques, les
équipements ont été modernisés et tous
installés", a déclaré M. Offen.
Le bâtiment est resté le central téléphonique
automatique de Perth jusqu'en 1987, année de la construction
de l'immense nouveau bâtiment juste derrière. |
Le premier centre automatique de Melbourne a
été ouvert dans la banlieue de Brighton en 1914;
le premier centre automatique public en NSW a commencé à
fonctionner à Newtown, Sydney en 1915; et
le premier du Queensland a été installé
à South Brisbane en 1925.
Tout le matériel a été entièrement importé
des États-Unis, y compris les téléphones. Le petit
téléphone mural noir de 1908 avec le cadran Mercedes et
le chandelier de 1918 ont tous deux été utilisés.
Malgré quelques problèmes initiaux, Hesketh, l'ingénieur
électricien en chef de la Poste, fut suffisamment impressionné
pour annoncer qu'à l'avenir, tous les grands centres seraient
automatiques. À ce stade, les deux seuls grands réseaux
automatiques se trouvaient à San Francisco et à Los Angeles,
cétait donc une décision courageuse.
La majorité des téléphones étaient connus
sous le nom de PMG Type 31, mais également connu familièrement
sous le nom de Geelong.
Ces téléphones étaient équipés d'un
cadran Mercedes et disposaient d'un circuit très basique. Il
n'y a pas de bobine d'induction dans le téléphone et le
récepteur ne contient pas d'aimants permanents. L'émetteur
et le récepteur sont connectés en série mais cela
donne des résultats d'utilisation plutôt médiocres.
Finalement, une instruction a été émise interdisant
leur utilisation à plus d'un mile du central téléphonique.
Le cadran était légèrement plus petit que le cadran
britannique, bien que certains téléphones aient ensuite
été modifiés pour adopter le modèle plus
grand. Le modéle 35 à été modifié
pour le fonctionnement en ligne partagée.
En 1916 en France dans les Annales des postes,
télégraphes et téléphones on
peut lire ce rapport :
Frais d'exploitation des centraux téléphoniques AUTOMATIQUES
ET MANUELS
Par M. JOHN IIESKETH, Ingénieur en chef du Post Office
australien.
Ayant entrepris, en 1904, puis en 1912, un voyage dans les différents
pays du monde, pour y étudier les derniers perfectionnements
réalisés en téléphonie et en télégraphie,
j'ai été à même de comparer un nombre
considérable d'installations.
J'ai pu ainsi acquérir la conviction qu'avec le temps, le
système téléphonique automatique finirait par
supplanter le système manuel dans les grands réseaux,
et que les frais d'exploitation annuels, déduction faite
des intérêts et de l'amortissement, se trouveraient
en même temps réduits.
C'est il la suite de cette étude que j'ai préconisé
l'installation d'un Central automatique à Geelong, petit
réseau isolé, qui, vu son peu d'importance, constituait
à mon avis l'épreuve la plus dure à laquelle
on pouvait soumettre le système.
Les résultats obtenus ont pleinement confirmé mes
prévisions ; si l'on met en parallèle les frais d'exploitation
de ce réseau avec ceux de deux centraux manuels, de même
importance et placés dans les mêmes conditions de trafic,
on constate une économie de près de 10 % en faveur
du réseau de Geelong.
Pour établir une estimation, on peut prendre comme base un
nombre moyen de 10 communications quotidiennes par ligne.
Le 24 août 1915, ce nombre, dans le réseau urbain
de Sydney, s'élevait à 10,7, et, dans l'ensemble
du réseau, à 6,8 ; si donc j'ai pris le chiffre 10
comme nombre représentatif des communications par abonné
d'un central urbain de 5 000 lignes, on admettra que je n'ai rien
exagéré.
J'ai supposé aussi que le nombre des communications, pendant
l'heure la plus chargée de la journée, pouvait être
fixé au huitième des communications quotidiennes.
Pour favoriser le système manuel, j'ai supposé que
la charge maximum de travail par opératrice A (groupe de
départ) était de 225 communications pour l'heure la
plus chargée, et de 400 communications pour une téléphoniste
B.
Le rapport du nombre de communications pendant l'heure la plus chargée,
et le trafic total, à Sydney et à Melbourne,
est, en ce moment, d'environ 1/1,6. Je n'envisage pas, dans mon
estimation, les dépenses de construction de lignes, qui sont
les mêmes, quel que soit le système, automatique ou
manuel. Je n'y ai pas fait entrer non plus les frais d'administration,
mon intention étant seulement de montrer l'économie
qui résulte de l'emploi des commutateurs automatiques. Cependant,
j'ai jugé utile d'y comprendre les charges d'intérêt,
d'amortissement et de dépréciation ; et j'ajoute que
mes données représentent bien le résultat de
l'expérience.Les frais de premier établissement, pour
un réseau de 5 000 lignes, peuvent être évalués
de la manière suivante :
Les dépenses se rapportant aux locaux sont naturellement
plus élevées pour le central manuel, étant
donné qu'il faut considérablement plus d'espace pour
le personnel (salles de réfectoires, vestiaires, etc.) ;
la rubrique « Équipement du Central » comprend
les frais d'installation dans les deux cas. Les chiffres s'appuient
sur des données certaines, représentant ce qui a été
réellement fait en Australie. Voici quels seraient les frais
de premier établissement d'un réseau de 10 000 lignes
Il résulte de ces chiffres que le prix de revient par ligne,
pour le commutateur manuel, augmente avec l'importance du meuble
lui-même. Les frais d'entretien sont les suivants. : Réseau
de 5 000 lignes.

Réseau de 10 000 lignes.

Les frais d'entretien des postes d'abonnés seraient les mêmes
dans chaque cas, si, dans le système automatique, le poste
d'abonné n'était pas muni d'un cadran pour l'appel.
Sous tous les autres rapports, les deux appareils sont identiques
et, par conséquent, la seule différence à envisager
repose sur les frais d'entretien de ce cadran. En ce qui concerne
les dépenses d'entretien des bâtiments, j'ai pris les
chiffres fournis par le Département de l'Intérieur.
Dans ces deux comparaisons, j'ai donné des évaluations
modérées, car j'ai la conviction que les différences
constatées représentent le minimum qu'on puisse espérer.
Certaines des Compagnies automatiques prétendent que leurs
dépenses d'entretien des locaux peuvent être réduites
de moitié; je n'ai pas accepté ce chiffre ; j'ai fait
mes calculs en m'appuyant sur les résultats de l'expérience
australienne, et j'estime que la réduction qu'on peut attendre
sur le chapitre des locaux est de 25 % environ.
J'ai admis que la durée des deux systèmes était
la même.Cette supposition est encore en faveur du système
manuel, parce que je pense que le système automatique est
plus durable.
A ce sujet, je puis me référer à une publication
faite par la Compagnie « Automatic Electric -», de Chicago,
qui déclare que le téléphone automatique aura
une durée considérablement plus longue que le téléphone
manuel ; cependant je ne suis pas d'avis que la différence
entre les deux sera de dix années, comme certains constructeurs
l'affirment.
Étant donné que l'expérience ne nous a pas
encore fourni de précisions sur ce point, la plus sage pour
nous est de supposer que la durée des deux systèmes
est la même.
En 1911, un groupe d'ingénieurs anglais s'est rendu en Amérique,
pour s'informer des frais d'installation d'un réseau automatique
par rapport à un réseau manuel. Les résultats
de ses investigations sont résumés dans les chiffres
suivants
Il convient d'observer que ces chiffres sont plus nettement en faveur
du système automatique que ceux que j'ai donnés ;
ce fait ne saurait cependant modifier mes évaluations. I
l est nécessaire d'insister sur cette circonstance que les
dépenses des réseaux manuels augmentent avec leur
impqrtance.
Le système automatique, dans certaines limites, revient à
meilleur compte. Les conditions sont d'ailleurs très différentes,
suivant que tous les abonnés sont reliés à
un seul central par de longs câbles ou qu'ils sont tributaires
d'un certain nombre de centraux, ce qui réduit beaucoup les
frais de câbles.
Dans un réseau automatique bien agencé, on peut faire
toutes les extensions possibles sans augmenter sensiblement les
frais de revient par ligne, alors que ce n'est pas possible dans
un réseau manuel. Les moyens physiques des opératrices
influent largement sur .l'agencement des tableaux manuels, circonstance
qui n'existe pas quand il s'agit de commutateurs automatiques.
On peut établir une installation automatique dans un espace
plus réduit que s'il s'agissait d'un système à
batterie centrale. Cela résulte de ce fait que les appareils
nécessaires pour établir les communications occupent,
dans le système automatique, moins de place que les mêmes
appareils du système manuel.
Dans ce dernier système, les frais d'installation des bureaux
augmentent avec le nombre des centraux, fait qui ne s'applique pas
au système automatique, ou, tout au moins, dans la même
mesure; avec celui-ci, en effet, l'augmentation est très
minime et, parfois même, on peut arriver à une réduction.
En général, les dépenses par ligne, quand celles-ci
atteignent un certain nombre, sont parfaitement constantes et c'est
là incontestablement un des avantages du système automatique.
En ce qui concerne le fonctionnement d'une installation automatique
et l'accueil fait par les abonnés à ce système,
on peut citer un rapport de M. Howson sur le service automatique
de Geelong. On avait dit au Ministre que certains abonnés
se montraient mécontents du service, aussi avait-il chargé
M. Howson de faire une enquête sur ce sujet.
J'ai visité également Geelong et ne puis que confirmer
les déclarations de M. Howson : le rapport établit
que, sur 26 commerçants consultés, deux seulement
ont formulé quelques plaintes, les autres ayant affirmé
que, pour tout au monde, ils ne voudraient pas revenir à
l'ancien système.
Par la lecture de ce rapport et par les observations que j'ai faites
moi-même à Geelong, j'ai acquis la conviction que ce
réseau fonctionne parfaitement bien. J'ajouterai, pour terminer,
qu'à Geelong, nous n'avons eu aucune réclamation.
Et si, au début de la transformation du réseau de
Sydney, il s'en est produit une ou deux, on peut dire que la très
grande majorité des abonnés lui est favorable.
Toute innovation entraînant inévitablement des plaintes,
cette remarque est particulièrement intéressante.
|
En 1925, l'ATM (automatique telephone
manufacturing) assurait les échanges pour Sydney, marquant le
passage aux sources britanniques pour la poste australienne. L'équipement
a ensuite été acheté auprès des cinq fournisseurs
britanniques.
Le Rural Automatic Exchange (RAX), un petit central
automatique transportable autonome, a été développé
dans les années 1920 et 1930. Il était basé sur
les premières conceptions de Siemens Brothers en Grande-Bretagne,
elles-mêmes basées sur un système antérieur
de Siemens & Halske Strowger
en Allemagne.
Les RAX étaient largement utilisés en Australie. Le premier
a été installé à Barup dans le Victoria
en 1925. Même dans les années 1950, environ 75 % des centraux
nationaux comptaient moins de 20 lignes connectées. À
cette époque, il y avait plus de 1 000 RAX en service en Australie.
Certains étaient encore importés de Grande-Bretagne, mais
la plupart étaient désormais construits en Australie.
En 1925, seul un petit nombre de centre d'échange étaient
automatiques, car la plupart des échanges manuels étaient
relativement nouveaux et leur remplacement ne pouvait être justifié.
Au fur et à mesure que ces centres vieillissaient, ils ont été
transformées, en 1939, 75 % de Melbourne était connecté
à des centres automatiques.
Une filiale d'Automatic Electric, Automatic Electric Telephones Pty
Ltd, a été créée à Sydney à
une date assez précoce mais inconnue.
Elle ne semble pas avoir fabriqué de téléphones
et était probablement un point de vente et de contact pour sa
société mère américaine.
Vers 1933, elle s'appelait Automatic Telephones Ltd, dont le siège
social était situé à Geelong House, 26 Clarence
Street, Sydney.
À un moment donné (peut-être après la Seconde
Guerre mondiale), la société australienne est devenue
British Automatic Telephone & Electric Pty Ltd. Son siège
social était maintenant au 84-88 William Street, Melbourne, avec
un autre bureau au 54 Oxford Street à Sydney et des agents à
Brisbane, Perth et Hobart. La même société était
également présente en Nouvelle-Zélande.
En 1930, les premiers appels d'outre-mer d'Australie
sont devenus possibles avec l'introduction d'un service de radiotéléphonie
en Angleterre, et par là en Europe et en Amérique. Un
service similaire a été ouvert à la Nouvelle-Zélande
la même année.
L'APO a continué à encourager la fabrication locale et
a attribué des contrats sur une base de concurrence limitée
pour y parvenir. Des contrats importants ont été attribués
à AWA, STC, TMC et Ericssons pour renforcer et préserver
l'expertise et les capacités australiennes. Cette politique a
fonctionné et, progressivement, l'APO a pu contribuer au développement
d'une grande industrie manufacturière australienne.
L'image de 1937 ci-dessous est celle d'un petit centre
manuel semi-rural australien (Kalamunda - à environ 25 km à
l'est de Perth WA) - typique de la première moitié du
20e siècle. La téléphoniste (qui serait Mlle Doreen
Penrose) est assise au standard et les répartiteurs de câbles
sont visibles en arrière-plan. L'arrière gauche est ce
qui semble être un petit tableau de distribution sans fil «pyramide»
(exemple ci-dessous).
Il y a eu un petit centre à Kalamunda de 1911 à 1921 avant
la construction de ce bureau de poste. Il est même possible que
ce soit là et simplement déménagé dans les
nouveaux locaux.

Les derniers centres manuels publics ont été clôturés
en Australie occidentale (Tenindewa) en avril 1985 et en Australie en
décembre 1991.
Le centre manuel de Wanaaring (NSW) n'a été fermé
que en 1991, lorsque le réseau australien est devenu un
système entièrement national et automatique.
Une numérotation à cinq chiffres a
été adoptée
Les positions Auto-B du central automatique étaient utilisées
pour les appels du mode manuel vers le mode automatique. Pour ce faire,
l'abonné composait un code d'accès pour le central souhaité.
Fremantle et Cottesloe étaient des centraux multiples complets
et les positions B ont probablement été converties en
Auto-A.
Les autres centraux comptaient moins de 200 lignes et ne disposaient
que d'une seule position et de jonctions à prise.
Aucune modification significative n'a été apportée
à ce réseau avant 1930, date de la conversion de Cottesloe.
La numérotation a été complètement modifiée
à la même époque.
Une certaine ingéniosité a été déployée
pour rendre les codes de centraux faciles à mémoriser.
Des plans furent élaborés pour la conversion des centraux
restants en centraux automatiques et 11 centraux, dont un sur un nouveau
site à Vaucluse, furent installés en 1915. Des appels
d'offres furent lancés pour 8 autres centraux, mais la guerre
ne permit pas de trouver les fonds nécessaires et aucun contrat
ne fut attribué. Un plan de commutation et de numérotation
fut élaboré en 1913, prévoyant 10 centraux principaux
et une numérotation à 5 chiffres. L'installation récente
de centraux multiples eut une influence négative sur ces plans,
car ils incluaient des emplacements, comme North Sydney et William Street,
qui auraient dû être des centraux principaux. C'est pourquoi
certains des premiers centraux principaux furent considérés
comme temporaires et 3 furent remplacés par la suite. Deux centraux
multiples (Mosman et Burwood) furent remplacés par des centraux
automatiques et les standards furent réutilisés ailleurs
sur le réseau.
Pour diverses raisons, le plan initial fut modifié au cours des
premières années, et la référence décrit
ces changements.
En 1920, le réseau avait atteint la forme qu'il allait conserver
jusqu'en 1938.
En 1933, l'accès automatique entrant a été fourni
à Fremantle avec une numérotation à 6 chiffres.
Entre 1935 et 1940, quatre nouveaux centraux ont été établis
en anneau autour de Perth Central. South Perth et Fremantle furent toutes
deux converties en 1941. Le réseau était alors doté
d'une structure conventionnelle, principale et secondaire. Sydney comptait
28 centraux et, en 1914, 7 d'entre eux, représentant 5,5 % des
lignes, étaient équipés de standards multiples
relativement récents. La conversion des centraux restants en
centraux automatiques fut envisagée.
Des postes B automatiques avec émetteurs à
clé étaient utilisés à City, North, Edgecliff,
Petersham et peut-être dans d'autres centraux, mais la plupart
des centraux manuels étaient équipés de cadrans
sur les postes A. Initialement, les abonnés automatiques atteignaient
tous les numéros manuels en composant B pour joindre un opérateur
à City, mais fin 1915, des codes d'accès furent introduits
pour tous les centraux manuels, à l'exception de Liverpool.
Le réseau automatique était également utilisé
pour commuter le trafic entre les centraux manuels qui n'étaient
pas reliés par des voies de jonction directes. La commutation
manuelle en tandem à Central a été presque totalement
supprimée. Sydney a peut-être été la première
ville au monde à adopter cette pratique. On sait que New York
a utilisé des « tandems mécaniques » à
cette fin dès 1920 environ, plusieurs années avant l'installation
des centraux automatiques locaux, et que la première installation
automatique à Londres comprenait un tandem mécanique.
Le développement ultérieur du réseau de Sydney
jusqu'en 1938 a suivi le plan établi.
La numérotation à 6 chiffres a été introduite
central par central, selon les besoins, et les centraux manuels ont
été convertis lorsqu'ils ont atteint leur capacité
ou sont devenus obsolètes. Jusqu'en 1935 environ, les limites
des centraux sont restées pratiquement inchangées.
Au cours de cette période, 4 nouveaux centraux ont été
ouverts dans de nouvelles banlieues, tandis que City, William et Paddington
ont été remplacés par City North, City South et
City East dans le cadre d'une rationalisation des limites.
En 1925 et 1926, des équipements de terminaison automatique ont
été installés à North, Edgecliff et Kogarah,
permettant aux abonnés automatiques de composer les numéros
des abonnés de ces centraux.
Cela a nécessité des conceptions spéciales de sélecteurs
finaux, dont aucune trace n'a été retrouvée.
Un premier type de répéteur de sélecteur de commutation
a été installé à Burwood, Homebush, Lidcombe
et Parramatta lors de leur mise en service en 1915 , mais ceux-ci ont
été retirés peu après.
Un meilleur type de SSR a été installé dans
la plupart des centraux téléphoniques locaux vers 1927.
SSR = Répéteur sélecteur de commutation.
Un sélecteur pas à pas capable de commuter le trafic vers
son propre central et certains centraux voisins via des routes directes,
et de commuter le trafic restant via son central parent principal. Une
forme antérieure de DSR.
Au milieu des années 1930, une étude des zones de centraux
téléphoniques de Sydney a été réalisée,
probablement parce que l'utilisation accrue des câbles créait
des problèmes de transmission.
Au total, 77 centraux téléphoniques étaient prévus,
ce qui dépassait la capacité d'un système à
6 chiffres, composé d'un central téléphonique principal
et d'un central téléphonique local. Le problème
a été résolu par une utilisation limitée
de centres satellites (1 000 groupes de lignes détachés
d'un central téléphonique local), ce qui a permis de transférer
quelques appels sur cinq jonctions en tandem.
Deux modifications majeures du réseau ont été intégrées
à ce plan.
Le central téléphonique principal à huit niveaux
a été déplacé de Balmain à Drummoyne
en 1941, car le bâtiment et le site de Balmain étaient
limités. Le central téléphonique « temporaire »
de Mosman, établi en 1915, a été supprimé
lors de la conversion de North Sydney du réseau CB à l'auto
en 1938.
En 1914, 85 % des abonnés de Melbourne étaient raccordés
à des centraux datant de moins de quatre ans, et le seul central
nécessitant une intervention immédiate était celui
de Brighton. Ce central a été converti en 1914, suivi
de Sandringham en 1918 et de Malvern vers 1919.
Un plan de numérotation et de commutation a été
élaboré en 1921, probablement une révision d'un
plan antérieur. Il s'agissait d'un système de numérotation
principale et de dérivation avec huit centraux téléphoniques
principaux et une combinaison de cinq et six chiffres. Seulement trois
autres centraux automatiques furent installés en 1925, mais après
ce lent démarrage, des progrès plus rapides furent réalisés
et, en 1939, plus de 75 % des lignes étaient automatiques.
Lorsque Central a atteint sa capacité maximale, l'installation
de nouveaux centraux automatiques dans les banlieues a permis de soulager
le trafic.
Le quartier central des affaires est resté manuel jusqu'en 1938,
date à laquelle City West a été créé
dans une extension du bâtiment Central et a occupé une
partie de la ville. Le premier projet pour Adélaïde prévoyait
un équipement semi-automatique dont les étages de sélection
étaient contrôlés par des opérateurs. Les
conditions étaient favorables à ce type d'équipement
et seuls trois centraux relativement petits ont été initialement
proposés : Port Adélaïde, Unley et Norwood.
Ces deux derniers étaient de nouveaux centraux, ce qui a soulagé
Central. Port Adélaïde, quant à lui, était
un central CB n° 9, qui avait atteint ses limites de capacité.
L'équipement a été commandé en Angleterre
et le central de Port Adélaïde a été livré
par Siemens et mis en service en 1914-1915. La fourniture d'équipements
pour Unley et Norwood fut retardée par la guerre et ces centraux
furent mis en service les 12 avril et 21 juin 1919, grâce à
des équipements Western Electric. Les opérateurs étaient
basés à Central, à l'exception d'une équipe
de jour à Port Adélaïde. Pour l'abonné, il
n'y avait aucune différence visible entre les systèmes
semi-automatiques et manuels, et les modalités de commutation
et de numérotation relevaient de la compétence interne
des opérateurs. Aucune autre conversion ne fut nécessaire
avant 1927, date à laquelle le système semi-automatique
perdit sa popularité.
Les équipements Siemens de Port Adélaïde furent convertis
en systèmes entièrement automatiques et maintenus en service
jusqu'en 1934, mais Norwood et Unley n'étaient pas compatibles
et furent remplacés par des systèmes automatiques standard
en 1928. La numérotation et la commutation d'Adélaïde
étaient similaires, mais en version réduite, aux réseaux
de Sydney et de Melbourne. L'une des caractéristiques principales
était la mise en place d'un central principal « tandem »
à Central, qui fournissait des premier et deuxième sélecteurs
pour quatre centraux secondaires. Un système similaire avait
été utilisé à Sydney de 1914 à 1920,
en attendant la création de City North, mais l'installation d'Adélaïde
semblait avoir été conçue pour être permanente.
Les numéros à cinq chiffres suffirent jusqu'après
1945.
Entre 1927 et 1930, huit centraux furent convertis en centraux automatiques
et deux nouveaux centraux automatiques furent ouverts.
Central CB resta en place et, sa superficie ayant été
réduite par l'ouverture de nouveaux centraux, il put faire face
à la croissance pendant un certain temps. Des postes de distribution
de clés furent aménagés pour le trafic vers les
centraux automatiques. Il existait également cinq petits centraux
manuels dans les collines d'Adélaïde, avec moins de 1 000
lignes entre eux. Un système semi-automatique fut proposé
à Brisbane en 1914, sur des lignes similaires à celles
d'Adélaïde, mais le projet ne fut pas concrétisé.

Le réseau resta entièrement manuel jusqu'en 1926. Un programme
assez rapide suivit et dix centraux furent mis en place en 1930, convertissant
plus de 85 % du réseau en automatique. Les centraux manuels restants
étaient un grand central magnéto à Toowong et deux
petits centraux à Sandgate et Wynnum.
L'équipement utilisé à Brisbane était un
Siemens n° 16, à commutation pas à pas. Son principe
était similaire à celui des autres villes, mais il existait
des différences de détail. Un système de commutation
principal/dérivation à cinq chiffres fut de nouveau adopté.
En 1929/1930, le central CB de Hobart fut remplacé par deux centraux
automatiques à Hobart et Newtown. Seul un petit nombre de lignes
manuelles subsistait sur le réseau.
La numérotation à quatre chiffres était utilisée
à Hobart et à cinq chiffres à Newtown. Un central
automatique fut ouvert à Canberra en 1927 pour remplacer un ancien
petit central manuel.
Ce système était probablement justifié par des
raisons politiques plutôt qu'économiques et utilisait une
numérotation à trois chiffres, étendue plus tard
à une numérotation mixte à trois et quatre chiffres.
LES TÉLÉPHONES EN VILLE
Les téléphones en campagne se divisent en deux catégories :
ceux des villes ou des grands villages et ceux des fermes ou des stations.
Pour les besoins de cet article, ces deux catégories seront appelées
téléphones urbains et téléphones ruraux.
Jusqu'en 1901, le développement du téléphone en
campagne fut lent et irrégulier, conséquence du laisser-faire
mentionné précédemment. À l'époque
de la Fédération, 60 villes de campagne disposaient de
centraux, totalisant 4 751 lignes connectées. La liste des
emplacements suggère une surreprésentation des villes
minières. À l'exception des champs aurifères d'Australie-Occidentale,
tous les centraux étaient à magnéto non multiple
et seuls sept centraux dépassaient 200 lignes.
La même politique fut suivie après la Fédération,
mais avec une libéralisation des conditions d'ouverture de nouveaux
centraux.
En 1939, presque toutes les villes de campagne et les grands villages
disposaient d'un central. La plupart de ces centraux étaient
petits et utilisaient des équipements à magnéto
non multiple. Leurs modèles allaient des cartes pyramidales de
10 lignes aux postes de 200 lignes. Seuls quelques centraux dépassaient
200 lignes et nécessitaient deux postes ou plus.
Le programme de modernisation de 1908 à 1916 incluait au moins
cinq, et probablement sept, villes de campagne, comme indiqué
ci-dessous, mais il fut suivi d'une accalmie. L'introduction de 200
postes de ligne et l'utilisation de transferts plus efficaces portèrent
la taille maximale acceptable des magnétos non multiples à
1 000 lignes. En 1940, seuls quatre autres centraux de campagne
furent convertis en automatique.

LES TÉLÉPHONES RURAUX
Des coûts élevés et, initialement, des avantages
limités ont freiné le développement des téléphones
ruraux pendant de nombreuses années.
Avec le temps, l'interaction des pressions politiques et des réalités
économiques a créé un cadre offrant à la
plupart des propriétés rurales un service acceptable,
les coûts étant subventionnés par une politique
complexe définie dans des circulaires, régulièrement
mises à jour.
Ces circulaires établissaient des règles pour déterminer
la quantité de lignes à fournir aux frais du Département
et pour décider de l'ouverture d'un nouveau central. Ces règles
favorisaient l'abonné plutôt que le Département.
La ligne départementale était décrite comme un
« droit », c'est-à-dire la longueur de
ligne à fournir aux frais du Département. L'abonné
devait fournir ou payer le reste et l'installait généralement
lui-même. Ces lignes étaient appelées « lignes
partiellement privées » ou « lignes PPE ».
Diverses mesures de réduction des coûts étaient
autorisées sur ces lignes, notamment l'utilisation de fils de
fer, de circuits de retour à la terre et de faibles gardes au
sol. Les lignes multi-abonnés étaient courantes, mais
il était déconseillé d'utiliser plus de six abonnés
sur une même ligne.
Le central et sa connexion au réseau étant payants pour
le Ministère, les intérêts des abonnés étaient
mieux servis par la mise en place de nombreux petits centraux et la
réduction de la longueur des lignes PPE nécessaires.
Les coûts d'exploitation des petits centraux étaient cependant
relativement élevés. Bien que maîtrisés par
la restriction des heures d'ouverture et leur exploitation par des agences,
ces coûts dépassaient généralement les revenus
supplémentaires générés par les abonnés.
Les subventions aux abonnés ruraux étaient financées
par les bénéfices des autres parties du réseau,
et il existait toujours un équilibre délicat entre l'encouragement
des services ruraux et le maintien de la santé globale du service.
La réglementation était périodiquement révisée
afin de maintenir cet équilibre (du moins en théorie,
mais avec une certaine influence politique).
L'objectif, tel que décrit plus loin, était de fournir :
- un téléphone qui fonctionne, ou mieux,
- un téléphone qui fonctionne en permanence, ou mieux
encore,
- un téléphone qui fonctionne bien en permanence.
En 1939, ces politiques eurent pour effet que, dans les zones agricoles
où les propriétés mesuraient en moyenne moins de
2,50 hectares, un réseau de centraux téléphoniques
à temps partiel existait et que le téléphone était
à la portée de la plupart des agriculteurs, même
si beaucoup n'en bénéficiaient pas. Dans les zones de
pâturage où les propriétés étaient
beaucoup plus vastes, le téléphone restait cher. Dans
certains cas, les lignes PPE atteignaient jusqu'à 160 kilomètres
de long, avec dix abonnés ou plus, et n'offraient qu'un service
marginal. Cependant, les réalités technologiques et économiques
empêchaient toute amélioration. La réglementation
autorisait un abonné à construire une ligne soit jusqu'au
central téléphonique le plus proche, soit jusqu'au central
téléphonique à service continu le plus proche,
et les riches éleveurs étaient parfois prêts à
construire de longues lignes simplement pour bénéficier
d'un service continu. Le résultat final de tous ces facteurs
fut un réseau désordonné de lignes privées,
dont le seul atout était son bon fonctionnement et le meilleur
que le pays pouvait se permettre à l'époque.
Même avec les accords d'agence, les coûts d'exploitation
des petits centraux représentaient un fardeau, surtout si le
central justifiait un service continu. L'idée d'un petit central
automatique était donc séduisante, et le premier central
automatique rural aurait été conçu et installé
localement à Barep, dans l'État de Victoria, en 1925.
En 1930, quelques RAX standard de sociétés
anglaises avaient été installés, apparemment à
titre d'essais sur le terrain. Ils ont permis au Ministère de
comprendre les capacités et les limites de ces centraux. Leur
utilisation était soumise à diverses contraintes, notamment
en matière d'alimentation électrique, de signalisation
des lignes principales et de connexion des lignes PPE. Cependant, les
cas où les RAX pouvaient être utilisés à
bon escient justifiaient leur adoption comme l'un des types de centraux
disponibles.
Après une interruption pendant la Grande Dépression, des
commandes en gros furent passées à quatre entreprises
anglaises pour des RAX d'une capacité allant jusqu'à 200
lignes. Chaque entreprise avait une approche différente pour
construire une unité économique de cette taille, mais
toutes fournissaient essentiellement les mêmes installations.
Au total, 38 appareils furent installés en 1941, avant que la
guerre n'interrompe les livraisons.

ÉVOLUTION DE LA COMMUTATION INTERURBAINE JUSQU'EN 1939
Avant 1930 environ, les centraux interurbains australiens étaient
conçus pour des lignes physiques avec signalisation magnéto
et d'autres types de circuits ne pouvant pas transmettre de signaux
à 16 Hz. Ils étaient équipés de dispositifs
de signalisation (sonneries) pour les rendre compatibles avec les standards.
Dans la plupart des cas, le volume du trafic interurbain était
trop faible pour justifier un central interurbain séparé,
et celui-ci était alors combiné, dans une certaine mesure,
avec un central local. Trois configurations différentes existaient
à cette époque.
(1) Les très petits centraux disposaient d'une ou deux positions
A et interurbaines combinées, et chaque opérateur gérait
l'ensemble du trafic. Parfois, un groupe spécial de prises et
d'indicateurs était prévu pour les lignes interurbaines
et les jonctions.
(2) Les centraux plus grands disposaient d'une ou plusieurs positions
spéciales pour la commutation interurbaine, faisant partie intégrante
du central. (3) Si le trafic interurbain était suffisamment important
ou s'il y avait un problème pour combiner les standards locaux
et interurbains (par exemple, si le central local était automatique),
un central interurbain distinct était installé.
À mesure que le trafic interurbain augmentait, un central passait
du premier au troisième de ces dispositifs. Les deux premiers
étaient les plus courants et ont été utilisés
jusque dans les années 1980. Comme il n'y avait pas de différence
essentielle entre les interurbains et les jonctions de dérivation,
cette solution était à la fois logique et pratique. Il
fallait prévoir des horloges de chronométrage et des casiers
pour les enregistrements, et si des postes interurbains spécialisés
étaient prévus, quelques aides à l'exploitation
mineures étaient incluses. Certains standards étaient
fabriqués localement, et deux ont été fabriqués
dans les ateliers de Sydney pour Wagga et Wollongong en 1920.
Les premiers centraux interurbains autonomes étaient nécessaires
dans les réseaux de la capitale. Ils étaient importés
et étaient en stock. Ils étaient conçus pour fonctionner
en différé et disposaient de postes d'enregistrement et
de commutation séparés.
Un central de ce type était en service à Melbourne en
1908, à Wills Street, et fut remplacé plus tard par un
autre à Central. Ce système atteignit finalement 40 postes
de commutation et 9 postes d'enregistrement et fut progressivement remplacé
entre 1940 et 1942.

Sydney a utilisé une partie du central magnéto multiple
pour la commutation interurbaine de 1900 à 1915, et le premier
central dédié a été mis en service en 1915.La
spécification de ce central existe et peut être considérée
comme représentative de l'époque, bien que le central
réel ait pu s'en écarter. Les circuits étaient
essentiellement les mêmes qu'un central local magnéto multiple
à signalisation par lampe, avec quelques améliorations.
En particulier, le circuit à cordon permettait à l'opérateur
de parler séparément à l'un ou l'autre interlocuteur,
ou aux deux, et d'appeler l'abonné local sans l'aide de l'opérateur
B. Un maximum de six lignes interurbaines pouvaient être connectées
à chaque position, et deux positions disposaient de circuits
de ligne et de cordon spéciaux pour les lignes interurbaines
phonophores, un des premiers types de systèmes composites. Ces
circuits utilisaient des « hurleurs » pour la
signalisation au lieu de la sonnerie magnéto.
Lors de la conversion du central d'Adélaïde Central en CB,
un central interurbain fut installé dans la même salle.
Les deux tableaux étaient séparés, mais étroitement
intégrés. Le nombre de postes passa à 15 et, en
juillet 1929, il fut remplacé par un nouveau central dans une
salle séparée, afin de permettre la croissance du central
CB. Le nouveau central comptait 24 postes opérationnels. Des
dispositions similaires furent probablement appliquées à
Brisbane et Hobart, tandis que le central interurbain de Perth fut installé
dans le nouveau bâtiment de la centrale automobile fin 1913. Newcastle
aurait installé un central interurbain en 1923, qui aurait été
à signalisation magnéto. En 1950, il fut agrandi avec
des centraux magnéto à signalisation par lampes. On ne
connaît pas de détails concernant Geelong ou Canberra,
qui devaient disposer de petits centraux interurbains. D'autres localités
étaient suffisamment petites pour que les dispositions décrites
aux points (I) ou (2) ci-dessus soient adéquates, et il n'existe
aucune trace d'autres centraux interurbains dédiés.
À partir de 1905, des téléphones à condensateur
ou « phonopores »
ont été utilisés pour superposer des lignes interurbaines
aux lignes télégraphiques existantes. Cela a permis d'étendre
considérablement le réseau interurbain à faible
coût. Ils utilisaient une signalisation hurlante et nécessitaient
des circuits de ligne et/ou de cordon spéciaux.
Les systèmes composites, fonctionnant sur le même principe,
ont remplacé les phonopores et utilisaient des sonneries VF fonctionnant
à une fréquence de 13,5 Hz, ce qui offrait des conditions
d'interface magnéto standard au standard.
Lors de l'introduction des systèmes téléphoniques
à courants porteurs en 1925, des sonneries VF utilisant 500 Hz,
puis 1 000 Hz, ont été utilisées pour
ces systèmes et sont devenues la norme.
La fréquence de 135 Hz a continué d'être utilisée
dans les endroits où l'électricité n'était
pas disponible, car elle pouvait être alimentée par des
piles sèches.
Avec la conversion des réseaux des capitales à l'automatisme,
il est devenu intéressant de permettre aux opérateurs
ruraux de composer les numéros des abonnés au lieu de
demander à l'opérateur interurbain de le faire pour eux.
Ce système est mentionné pour la première fois
dans le rapport annuel de 1923/24, date à laquelle il n'aurait
été utile qu'à Sydney, Perth et peut-être
Geelong. L'équipement semble avoir été entièrement
fabriqué localement, selon diverses méthodes. La signalisation
CC sur la boucle et divers chemins de signalisation dérivés
ont été utilisés au départ, mais ces techniques
étaient d'application limitée. Le même problème
a été résolu à l'étranger par le
développement de la numérotation VF, mais aucun équipement
n'était disponible commercialement. Des initiatives locales en
Nouvelle-Galles du Sud, en Australie-Méridionale et dans le Queensland,
lancées dès les années 1930, ont permis de mettre
au point des systèmes fonctionnels et largement utilisés.
L'Australie-Méridionale a été la première
à utiliser une fréquence de 2 200 Hz et un système
assurant un fonctionnement bidirectionnel. 4,7 lignes interurbaines
ont été installées en 1940 et plus de 100 en 1945.
La Nouvelle-Galles du Sud a développé un système
plus simple, limité au fonctionnement unidirectionnel, utilisant
également 2 200 Hz. et comptait environ 30 circuits en service
en 1945. Le Queensland a développé un système utilisant
des sonneries VF modifiées, mais aucune ne fut installée
avant 1945.
Le trafic à la demande a été introduit prudemment
à partir de 1925 environ sur les lignes courtes, là où
les réseaux interurbains le permettaient. Dans les petits centraux
interurbains, cela n'a posé aucun problème. Il s'agissait
simplement d'un changement de procédures. Les centraux plus importants,
en revanche, ne pouvaient pas être utilisés pour le trafic
à la demande sans modifications importantes.
Ce problème a été évité à
Sydney et Melbourne en complétant le central existant par un
nouveau système adapté au trafic à la demande et
au trafic différé.
La croissance du trafic interurbain a été satisfaite par
l'extension de ce système et le transfert de lignes vers celui-ci.
Les abonnés ont reçu pour instruction d'appeler l'un des
deux indicatifs pour le service interurbain, selon l'emplacement requis.
Grâce à une planification minutieuse, toutes les lignes
sur lesquelles le trafic à la demande était possible se
trouvaient sur le nouveau central, et l'ancien central a continué
d'être bien chargé. L'introduction des systèmes
à porteuse et des amplificateurs en 1925 a permis pour la première
fois d'envisager un réseau interurbain à l'échelle
de l'Australie. Sa réalisation nécessitait des installations
supplémentaires dans les centraux, notamment des commutateurs
à pad et parfois des amplificateurs à circuit filaire.
Ces besoins et l'émergence de nouveaux systèmes de signalisation
ont conduit au développement des tableaux de commutation à
commande par manchon.
Le premier central de ce type en Australie a été installé
à Hobart en 1929, dans le cadre de la conversion à l'automatisme.
Le central de Hobart était conçu pour le trafic différé,
mais a ensuite été modifié pour le trafic à
la demande. Quelques autres tableaux de commutation à commande
par manchon ont été installés entre cette date
et 1942. Deux cas particuliers ont eu lieu à Tamworth en 1939
et à Wagga en 1940, lorsque les centraux locaux ont été
convertis à l'automatisme.
La gestion quotidienne d'un grand central avec une capacité de
trafic à la demande était une tâche complexe. Il
fallait décider quand une ligne devait être retardée
et attribuer des positions pour ces lignes. Cela devait se faire avec
très peu d'outils de gestion.
Les opérateurs rencontraient également des difficultés.
Il leur fallait savoir où chaque ligne figurait sur le multiple
et vers quelles destinations les lignes pouvaient être commutées
à l'extrémité éloignée. Cette tâche
difficile n'était pas facilitée par les changements constants
d'itinéraires et les réaménagements périodiques
du réseau multiple pour accueillir des lignes supplémentaires.
Au cours de la période étudiée, seuls deux centraux
interurbains en Australie étaient suffisamment importants pour
que ces problèmes soient graves. Il s'agissait bien sûr
de Sydney et de Melbourne. En 1936, ils devaient être remplacés
et des appels d'offres furent lancés pour des centraux semi-automatiques
dans les deux villes. Cependant, un standard de contrôle de ligne
fut acheté pour Sydney et mis en service en août 1938.
La raison de cette décision est inconnue, mais l'examen du calendrier
des appels d'offres suggère que l'espace disponible pour l'équipement
automatique était insuffisant. Ce central a atteint plus de 100
postes avant d'être remplacé.
Un central semi-automatique fut acheté pour Melbourne, mais son
installation proprement dite sera décrite dans la section suivante.
En 1939, le réseau interurbain avait atteint sa maturité.
En 1937-1938, 40 000 000 d'appels interurbains étaient
passés, chiffre qui atteignait 48 000 000 en 1942-1943.
Les appels longue distance étaient courants, même si la
transmission n'était pas toujours de bonne qualité, surtout
lorsque plusieurs lignes étaient commutées en tandem.
Ce service avait toujours été considéré
comme un service de prestige et, conformément à cette
philosophie, diverses fonctionnalités spéciales avaient
été introduites. Parmi celles-ci, on compte les appels
personnels, les appels pré-réservés pour une durée
déterminée jusqu'à une semaine à l'avance
et les appels à prix réduit. Sur demande, le coût
d'un appel pouvait être communiqué immédiatement
après l'appel (tarification de rappel). Il était même
possible de payer un messager pour appeler un non-abonné au central
afin de recevoir un appel.
La qualité du service variait considérablement selon les
régions et dépendait fortement du volume de trafic. Les
trajets courts et à fort trafic pouvaient bénéficier
d'un service de qualité à faible volume. Les lignes longue
distance étaient contraintes d'accepter de longs délais
et une transmission souvent médiocre. En 1939, la ligne Adélaïde-Perth
ne disposait encore que d'une seule ligne amplifiée à
deux fils, et lorsqu'elle fut prolongée jusqu'à Melbourne
ou Sydney, la transmission était médiocre. L'objectif
à long terme était d'offrir un service à la demande
sur toutes les lignes et une transmission satisfaisante pour tous les
appels, mais cet objectif fut loin d'être atteint.
LA SIGNALISATION
Certains circuits dérivés ne pouvaient pas transmettre
une sonnerie à 16 Hz. Ces circuits utilisaient des sonneries
VF utilisant des fréquences comprises entre 13,5 Hz et 1000 Hz.
Ces signaux assuraient la signalisation magnéto au standard.
La sonnerie magnéto provenant du standard était détectée
et provoquait la transmission des signaux VF au circuit. À l'extrémité
distante, le signal VF était détecté et provoquait
la transmission d'une sonnerie à 16 Hz au standard. Il existait
également un système antérieur dans lequel un signal
VF était généré par un buzzer et reçu
sur un « hurleur », un haut-parleur réglé
approximativement sur la fréquence du buzzer. Cela nécessitait
des dispositifs spéciaux, tels que des touches sur le standard
associées à la ligne ou des circuits de cordon spéciaux.
Avec l'automatisation des réseaux locaux, il est apparu nécessaire
que les opérateurs distants puissent appeler eux-mêmes
les abonnés de ces réseaux au lieu de demander à
l'opérateur entrant de le faire. Lorsque le circuit principal
était adapté, la signalisation CC était assurée
par la boucle ou par un circuit composite dérivé. Si la
signalisation CC était impossible, la signalisation VF était
utilisée. Des salves de tonalités de durée variable
étaient utilisées pour représenter différentes
conditions, telles que la prise, la libération ou la numérotation.
Les systèmes utilisant une fréquence unique, appelés
systèmes monofréquence ou FIV, étaient limités
dans la gamme de signaux qu'ils pouvaient fournir. Les systèmes
bifréquences (2FV) étaient plus polyvalents et pouvaient
offrir des fonctionnalités supplémentaires, ce qui offrait
des avantages opérationnels aux réseaux manuels. Les fabricants
d'équipements de transmission ont également répondu
au besoin de meilleures installations de signalisation et des voies
de signalisation ont été intégrées à
certains systèmes de transmission. Les premiers systèmes
de ce type achetés pour l'Australie ont été installés
sur le câble Sydney-Maitland vers 1942. Sur les systèmes
ultérieurs, les fils de signalisation ont été désignés
E et M, et la signalisation E et M est devenue le nom générique
de cette configuration.
CONSIDÉRATIONS RELATIVES À LA TRANSMISSION
La téléphonie longue distance nécessite l'utilisation
d'amplificateurs et, comme la communication vocale bidirectionnelle
est nécessaire, elle pose des problèmes de stabilité.
Une amplification excessive produit un son sifflant, creux ou un écho
excessif. Une amplification insuffisante produit une voix trop faible.
Des installations supplémentaires étaient nécessaires
dans les centraux interurbains pour résoudre ces problèmes.
Lorsque des lignes amplifiées étaient commutées
ensemble, la meilleure solution consistait à prévoir des
voies vocales séparées dans le central pour les deux sens
de transmission, c'est-à-dire une commutation à quatre
fils. Cette solution s'est avérée difficile à mettre
en uvre et un compromis, appelé « tail eating »,
presque aussi performant, a été développé.
Il nécessitait toujours quatre fils dans le central, mais ne
nécessitait pas de modifications majeures des standards existants.
Il était également nécessaire de faire varier le
gain d'un circuit interurbain en fonction du type de circuit sur lequel
il est commuté. Cela était généralement
réalisé en installant des atténuateurs commutés
dans les relais des lignes principales, ce qui nécessitait des
signaux entre les relais pour contrôler la commutation des atténuateurs.
Une autre façon de contrôler la transmission consistait
à équiper certains circuits de cordon d'amplificateurs
et à les utiliser lorsque des lignes principales particulières
étaient connectées entre elles. Par exemple, lorsque les
lignes principales Adélaïde-Melbourne et Melbourne-Sydney
étaient toutes deux des circuits physiques, un amplificateur
de circuit de cordon à Melbourne permettait une transmission
satisfaisante lors d'un appel Adélaïde-Sydney.
TABLEAUX DE COMMUTATION À MANCHON
Les centraux manuels à commande à manchon ont été
conçus pour pallier les limitations des centraux à magnéto.
Le principe de ce type reposait sur le fait que tous les relais de ligne
principale offraient les mêmes conditions d'interface avec le
tableau. Cela permettait d'introduire de nouvelles méthodes de
signalisation sans modifier les circuits du tableau. Leur nom vient
du fait que la plupart des signaux entre le tableau et les relais de
ligne transitaient par le fil à manchon.
Les quelques centraux à commande à manchon installés
avant 1940 étaient des modèles entièrement importés.
Le premier, à Hobart, disposait d'une commutation à deux
fils et d'une commutation à plots pour contrôler les niveaux
de transmission. Le central de Sydney, plus sophistiqué, comportait
une fonction de dérivation. Des relais de ligne standard étaient
fournis pour la signalisation magnéto ou 2VF, et des conceptions
locales ont été développées pour connecter
les systèmes de signalisation VF locaux.
sommaire
Le sélecteur Strowger type 2000
Le matériel de type 2000 est devenu la norme de l'APO à
partir de 1938, mais de petites quantités de matériel
antérieur à 2000 ont continué d'être achetées
pour combler les lacunes des ensembles existants. Au début de
la guerre, au moins un contrat a également été
passé pour la fourniture de matériel Strowger en provenance
des États-Unis, lorsque les approvisionnements en provenance
du Royaume-Uni étaient limités.
Entre 1939 et 1945, les réseaux de la capitale étaient
soumis à une pression considérable et, avec peu de nouveaux
équipements disponibles, il était nécessaire d'exploiter
au maximum les ressources disponibles. La plupart des « bricolages »
n'ont jamais été documentés.
Le Département était également tenu de contribuer
à l'effort de guerre de multiples façons, et comme il
s'agissait souvent d'une activité secrète, il en existe
peu de documents. Les notes suivantes ne sont que quelques éléments
connus personnellement de l'auteur.
À Sydney et, vraisemblablement, dans d'autres villes, un système
d'alerte aux raids aériens, avec sirènes, fut mis en place
sur toute la zone, utilisant des lignes PMG et des équipements
conçus et fabriqués par le Département. Ce système
était contrôlé depuis un point central. Un réseau
fut également mis en place pour éteindre l'éclairage
public lors des raids aériens, également contrôlé
depuis ce point.
Des plans d'urgence furent élaborés pour être utilisés
si un central téléphonique était détruit
par l'ennemi.
Outre les dispositions prises pour transférer les abonnés
d'urgence vers un central proche, un réseau de centraux fantômes
fut mis en place. Il s'agissait de petits centraux manuels installés
dans des endroits discrets, à proximité des principaux
axes de câbles. Plus tard, quelques centraux fantômes furent
construits à partir d'unités disponibles, dans l'intention
de les utiliser pour rétablir le service. Vers la fin de la guerre,
ils ont été mis en service comme extensions de centraux
existants, sachant qu'il pourrait être nécessaire de les
retirer dans le cas improbable d'un bombardement ou d'un sabotage. Bien
que ces petits centres n'aient jamais été nécessaires
à leur fonction initiale, ils se sont révélés
précieux dans les années d'après-guerre pour résoudre
les problèmes de réseau à court terme et de nombreux
autres ont été construits et utilisés jusqu'en
1970 environ.
Des années plus tard, des centres fantômes ont été
utilisés pour rétablir le service à Canberra après
l'incendie du central Civic.
Pendant de nombreuses années après la guerre, il y a eu
une pénurie chronique de paires de câbles et des concentrateurs
de lignes ont été utilisés pour assurer le service
là où des problèmes inhabituels se posaient pour
fournir des câbles de secours. Ils n'ont jamais joué un
rôle important sur la scène australienne.
Entre 1945 et 1963, les réseaux de la capitale ont été
progressivement étendus et ont atteint environ quatre fois leur
taille d'avant-guerre. Cela a nécessité des changements
majeurs dans les réseaux et, dans les cas de Sydney et de Melbourne,
la limite de la numérotation à 6 chiffres a été
atteinte. Les comptes rendus suivants de chaque réseau présentent
les principales évolutions.
SYDNEY
Comme mentionné dans la section précédente, une
refonte des zones de commutation avait été réalisée
juste avant la guerre et un plan provisoire de numérotation avait
été élaboré. Ce plan allait bientôt
manquer de numéros et la première tâche de la nouvelle
section de planification dirigée par E. Sawkins fut de revoir
la numérotation. Différentes solutions pour passer à
7 chiffres furent étudiées et rejetées au profit
d'une réorganisation des zones de commutation principales afin
de prolonger la durée de vie de la numérotation à
six chiffres. Les satellites furent largement utilisés et des
études furent menées sur les performances d'impulsion
des routages multi-liaisons concernés. Le nouveau plan de numérotation
et de commutation prévoyait neuf zones de commutation principales
au lieu de huit et nécessitait des modifications de la commutation
et de la numérotation d'une vingtaine de centraux, ainsi que
la mise en place des deux nouveaux centraux principaux à Redfern
et Homebush. Le centre-ville devait être desservi par cinq centraux
en configuration commune. À l'époque, le plan du comté
de Cumberland visait à contenir la population de Sydney et à
l'entourer d'une ceinture verte. On pensait donc que six chiffres suffiraient
pour au moins 20, voire 30 ans. Ce plan imposait l'utilisation du niveau
O pour la zone de central téléphonique principal de Homebush,
et il n'était plus disponible pour l'indicatif interurbain. Une
étude du trafic frauduleux au niveau I a été menée
et il a été conclu que les indicatifs commençant
par 11 seraient utilisables pour les indicatifs interurbains. L'opinion
à l'égard de ce plan était plutôt ambivalente.
Il offrait le potentiel d'une solution à long terme pour le réseau
de Sydney, et même ceux qui en doutaient reconnaissaient qu'un
plan plus ambitieux, impliquant sept chiffres et, très probablement,
des registres, dépassait les ressources du Département.
Il s'est avéré que La décision de conserver le
système à six chiffres et d'autres décisions prises
à l'époque ont permis à l'APO d'adopter le système
crossbar comme système standard pour toutes les applications
en 1960. L'un des avantages de ce plan était sa mise en uvre
progressive, alors que les propositions à sept chiffres auraient
nécessité des dépenses importantes au début
du programme. Ce plan a servi de base à la planification des
15 années suivantes, mais il n'a jamais été complètement
mis en uvre.
La limite des six chiffres a été dépassée
pour la première fois en 1958 dans le comté de Sutherland,
desservi par trois centraux : Miranda, Sutherland et Cronulla,
qui partageaient un seul groupe de numéros de 10 000 lignes.
Un simple pansement a permis de remédier à la situation,
le temps d'examiner la question de la renumérotation.
À cette époque, il avait été décidé
d'introduire la "zone de service local étendue"
(ELSA) et d'étendre la zone de numérotation fermée
à un rayon d'environ 40 km. L'introduction précoce
des numéros à 7 chiffres était donc essentielle,
et il était également nécessaire de libérer
le niveau O pour la numérotation interurbaine des abonnés.
Un nouveau plan de numérotation et de commutation a été
élaboré, permettant une progression ordonnée vers
la numérotation à 7 chiffres. Ce plan a été
suivi jusqu'à présent, avec des ajustements mineurs. Il
s'agit essentiellement d'un système de numérotation par
étapes, qui doit le rester jusqu'à ce que tous les centraux
à étapes aient été remplacés. Le
système de commutation crossbar, cependant, ne suit pas toujours
ce plan par étapes.
MELBOURNE
Jusqu'en 1939, le système de numérotation et de commutation
proposé pour Melbourne en 1921 était adéquat. Un
plan révisé a été élaboré
en 1944, prévoyant 57 centraux. Il impliquait le remplacement
de trois des premiers centraux principaux, qui avaient dû être
placés dans des emplacements peu propices. Comme pour le projet
de Sydney, il pouvait être mis en uvre progressivement,
selon les besoins ou les opportunités, et il était encore
incomplet en 1960.
L'introduction d'ELSA en 1960 s'est faite grâce à l'utilisation
du niveau 7, encore très peu utilisé.
Un recours important a été fait au routage alternatif
des DSR du réseau de Melbourne afin d'obtenir une liaison
plus efficace.
DSR = Répéteur sélecteur discriminant.
Un sélecteur pas à pas capable de rediriger le trafic
vers ses propres centraux et certains centraux voisins via des routes
directes, et de rediriger le trafic restant vers son central parent
principal.
ADÉLAÏDE, PERTH, BRISBANE, HOBART
Le seul changement significatif apporté au réseau d'Adélaïde
a été le remplacement définitif du central téléphonique
central en 1955.
Le système de numérotation et de commutation à
5 et 6 chiffres n'a nécessité que des modifications mineures
pour permettre l'installation de nouveaux centraux, et la capacité
de la numérotation à 6 chiffres était suffisante.
Perth a connu une croissance plutôt lente jusqu'en 1963 et aucun
changement fondamental n'a été apporté au réseau.
À Brisbane, l'équipement Siemens n° 16 a posé
quelques problèmes lors de l'introduction du type 2000, en raison
d'incompatibilités fondamentales. Des relais d'interface ont
dû être conçus pour résoudre ces problèmes
et le plan de commutation a été modifié pour en
réduire l'impact.
Hormis cela, aucun changement fondamental n'a été apporté.
HOBART
Hobart est passée d'un système mixte à 4 et 5 chiffres
à un système uniforme à 5 chiffres et, en 1963,
approchait de la limite des 5 chiffres.
CANBERRA
Canberra a continué d'être un central téléphonique
mixte à 3 et 4 chiffres jusqu'en 1949, date à laquelle
un deuxième central téléphonique à 5 chiffres
a été ouvert à Civic. L'ancien central téléphonique
central a été progressivement remplacé par de nouveaux
centraux à Barton et Deakin, et un système complet à
5 chiffres a été introduit. Un quatrième central
téléphonique a été ouvert à Yarralumla
en 1954 et intégré à Barton.
Le 2 septembre 1961, le central Civic fut détruit par un incendie
et le rétablissement du service fut un exploit colossal, auquel
de nombreux services du ministère jouèrent un rôle
important. Un central de remplacement fut mis en service 51 jours après
l'incendie .
CENTRAUX ET RÉSEAUX RURAUX
En 1939, de nombreux centraux ruraux atteignaient le point où
la conversion à l'automatique était justifiée.
L'automatisation de la plupart des grandes villes de campagne semblait
être un processus assez rapide. Cependant, la guerre interrompit
ce processus après la conversion de seulement quatre centraux,
comme indiqué dans la section précédente.
Après la guerre, la Poste australienne fut confrontée
à un important retard de demandes non satisfaites, à des
ressources limitées et à une pénurie mondiale d'équipements
automatiques et de capacités de production. La justification
économique de la conversion des centraux ruraux de moins de 2 000
lignes environ était marginale, car il fallait généralement
un central manuel et le personnel d'exploitation pouvait partager les
installations. Le multiplexeur CB a donc été adopté
comme équipement standard pour les centraux nationaux jusqu'à
2 000 lignes, avec une augmentation de 3 000 lignes possible
en augmentant le multiple. L'automatique ne devait être utilisé
que pour les centraux de plus grande taille ou dans des cas particuliers,
par un seul central.
Les années les plus fastes pour l'installation du "Common
Battery Manual" CBM se situent entre 1950 et 1956,
période à laquelle les équipements automatiques
sont devenus plus facilement disponibles. Quelques autres ont été
installés dans des villes rurales à croissance lente en
1957 et 1958. Parmi les centraux CBM inhabituels en Nouvelle-Galles
du Sud, on trouve Bathurst, mis en service en 1955 et Dubbo en 1956.
Ils étaient équipés d'un accès automatique
terminal permettant aux opérateurs de ligne principale de composer
directement les abonnés. À Toowoomba, dans le Queensland,
un central CBM a été installé en complément
du central magnéto-multiplexeur, et plus de 5 000 abonnés
manuels étaient desservis par ces deux centraux avant leur remplacement.
La plupart des centraux CBM étaient installés dans des
bâtiments à ossature bois ou en aluminium de conception
standard.
Un standard non multiple CB a également été conçu
pour les centraux plus petits. Il était prévu de l'utiliser
lors du remplacement d'un petit central magnéto, mais peu d'applications
ont été trouvées. Le premier a été
installé à Berry à titre d'essai. Seulement 30
ou 40 ont été installés et ils n'ont pas joué
un rôle significatif dans le réseau.
À l'exception des RAX, les conversions automatiques dans les
zones rurales entre 1945 et 1956 étaient limitées aux
cas où il y avait une raison économique ou autre impérieuse.
L'automatisme était généralement installé
si le central devait bientôt dépasser 2 000 lignes,
mais il y avait des exceptions, comme à Toowoomba, détaillées
ci-dessus.
Un autre exemple des mesures prises pour minimiser les dépenses
est l'utilisation de l'automatisme à Goulburn pour répondre
à la croissance tout en maintenant le central magnéto
en service. Un projet majeur réalisé à cette époque
était la conversion du réseau de Newcastle, qui sera examinée
plus en détail plus loin.
Les centraux à magnéto ont été autorisés
à se développer jusqu'à la limite de l'espace disponible
dans les salles de commutation, malgré l'inefficacité
des opérations de transfert. Le plus grand central magnéto
non multiple de Nouvelle-Galles du Sud se trouvait à Cowra. Il
avait été déplacé dans une nouvelle salle
de commutation pendant la guerre et avait été autorisé
à s'étendre jusqu'à 2 600 lignes.
Après 1956, la politique consistait à utiliser l'automatique
dès qu'un central devait être remplacé et que cela
se justifiait économiquement, mais sans convertir délibérément
les centraux disposant encore d'une capacité de réserve.
Des réseaux de centraux automatiques ont commencé à
émerger et des plans ont été élaborés
pour l'automatisation complète des appels locaux, avec au moins
une certaine numérotation interurbaine courte distance par les
abonnés. Ces plans supposaient un équipement progressif,
mais on a rapidement reconnu la nécessité d'une solution
plus polyvalente.
En 1960, il existait plusieurs types distincts de centraux et de réseaux
automatiques dans les zones rurales.
Le plus courant était un seul central automatique avec une numérotation
à trois ou quatre chiffres, avec accès à un opérateur
au niveau O et parfois à des centraux manuels proches avec des
codes à un chiffre. C'était la configuration standard
pour les RAX, connue par analogie sous le nom de « système
de jonction RAX ».
Quelques villes ont développé des réseaux simples
de deux ou trois centraux. À Tumworth, par exemple, un central
a été établi dans une nouvelle zone industrielle
à West Tamworth. Un autre modèle était un anneau
de RAX entourant la ville, avec des instructions de numérotation
spéciales.
Un troisième cas concernait un petit central automatique situé
en périphérie d'une grande ville, la zone centrale étant
toujours manuelle.
Ceci visait à prolonger la durée de vie du central manuel.
L'un des cas était celui de Toowoomba.
Une autre catégorie concernait un central automatique situé
à proximité de la périphérie d'une zone
à tarif unitaire, à une distance d'une partie, mais pas
de la totalité, de cette zone. Par exemple, Palm Beach disposait
d'un accès aux appels locaux (à tarif unitaire) vers le
central de Mona Vale, mais pas vers le reste de la zone à tarif
unitaire de Sydney.
Grâce à un choix judicieux d'indicatifs et à des
restrictions d'accès, les abonnés de Palm Beach appelaient
Mona Vale via des numéros d'annuaire, tandis que les abonnés
de Mona Vale composaient un préfixe spécial pour Palm
Beach. D'autres cas limites étaient plus complexes, mais, dans
la mesure du possible, si deux centraux automatiques se trouvaient à
une distance d'un tarif unitaire, la numérotation entre eux était
assurée.
Les grands réseaux étaient rares et présentaient
des caractéristiques spécifiques. Trois exemples, tous
situés en Nouvelle-Galles du Sud, sont Newcastle, Wollongong
et Campbelltown, décrits ci-dessous. Newcastle constituait un
cas particulier, étant la plus grande ville de campagne d'Australie.
C'était la seule ville suffisamment grande pour être déclarée
réseau à tarif unitaire. Le réseau s'étendait
sur huit kilomètres à partir du bureau de poste de Newcastle
et comptait trois grands centraux : Newcastle, qui était
équipé d'un système de magnétos multiples
à embranchements installé en 1910, Hamilton et Waratah,
qui disposaient de postes A non multiples et de postes B multiples en
série. Il existait également quelques centraux non multiples
plus petits. La conversion à l'automatique était prévue
avant 1930, mais a été reportée par la Grande Dépression.
Le plan du réseau semblait prévoir trois centraux principaux
à Newcastle, Hamilton et Mayfield (en remplacement de Waratah),
avec une numérotation à cinq chiffres. La première
conversion effective, à Newcastle, eut lieu le 19 mars 1994,
l'une des dernières commandes d'avant-guerre à être
exécutées. En mars 1944, pour répondre aux besoins
des industries de guerre, un central automatique temporaire fut installé
à Hamilton, complétant le central manuel. Construit à
partir de matériel récupéré, il servait
de solution provisoire. Après la guerre, les centraux de Hamilton,
Waratah et New Lambton nécessitaient un remplacement urgent,
et l'automatisation était fortement préconisée.
Les plans d'avant-guerre n'étant plus adaptés, ils furent
révisés avant toute nouvelle conversion. Certains détails
de ces plans révisés ont survécu et montrent des
changements majeurs par rapport à ce qui semble avoir été
le plan d'avant-guerre. L'un des principaux facteurs était que
le réseau approchait du point où une extension à
un rayon de 16 kilomètres serait justifiée par la réglementation
téléphonique. Cela ajouterait neuf centraux supplémentaires
au réseau, desservis par des lignes à fil ouvert, dont
la capacité était limitée et dont le remplacement
par des câbles serait coûteux. Le plan de commutation devait
tenir compte de ces limitations, du moins à court terme. Une
grande partie de la zone supplémentaire était encore rurale
et de nouveaux centraux seraient probablement nécessaires lorsque
le terrain serait aménagé à des fins résidentielles.
Dans la partie la plus ancienne du réseau, une étude avait
identifié la nécessité de plusieurs centraux supplémentaires.
Le nouveau plan de commutation prévoyait deux centraux principaux,
six embranchements et sept satellites. Une numérotation mixte
à cinq et six chiffres était proposée. Les deux
centraux automatiques suivants du réseau furent Mayfield et New
Lambton en 1947. Ils furent intégrés aux embranchements
de Hamilton conformément au nouveau plan, bien que le réseau
ne fût étendu qu'en 1950. Le plan 1947 fut initialement
suivi pour cette extension, mais des modifications majeures furent apportées
au fur et à mesure du développement des zones périphériques,
et la forme finale fut un réseau principal/embranchement avec
quatre centraux principaux. À bien des égards, ce réseau
était alors une version à petite échelle d'Adélaïde,
Brisbane ou Perth.
L'introduction de l'ELSA en 1960 et la renumérotation
STD signifiant «Subscriber Trunk Dialing»
ont nécessité l'intégration de la zone de tarification
unitaire de Newcastle à une zone de numérotation fermée
beaucoup plus vaste. La renumérotation devait permettre la poursuite
de la commutation progressive tout en permettant aux abonnés
de composer autant d'appels à tarification unitaire que possible
et en interdisant l'accès aux lignes interurbaines.
Les objectifs étaient incompatibles, mais un plan de numérotation
et de commutation a été élaboré qui s'en
est rapproché. L'existence de quatre premiers chiffres de réserve
a contribué à cet objectif. Tout cela a été
réalisé dans le respect des contraintes de la tarification
progressive et des limites des centraux individuels. Ce n'est que bien
plus tard, avec l'installation d'un central interurbain ARM à
Hamilton, que la numérotation par les abonnés de l'ensemble
du trafic à tarification unitaire et interurbain a été
possible.
Wollongong est un exemple typique de plusieurs grands complexes industriels
qui se sont développés hors des capitales après
la guerre. Son développement a en fait commencé avant
la guerre avec l'aciérie BHP. En 1945, Wollongong était
le centre commercial d'un ensemble de villes minières le long
de la côte et du complexe industriel de Port Kembla. On prévoyait
une croissance rapide et il était évident que les villes
voisines deviendraient des banlieues de banlieue. Cependant, le développement
du téléphone ne suffisait pas à la déclarer
zone à tarif unitaire. Chaque central ne disposait donc d'un
accès à tarif unitaire que pour les centraux situés
dans un rayon de huit kilomètres. Trois centraux, Wollongong,
Port Kembla et Unanderra, se trouvaient à une distance de tarif
unitaire les uns des autres. De plus, Unanderra pouvait appeler Dapto
et Wollongong Corrimal moyennant un tarif unitaire. Un système
de numérotation fermé fut donc mis au point, s'étendant
initialement d'Unanderra à Corrimal, avec la possibilité
de l'étendre à Thirroul. Dapto a été converti
au CBM en 1952 et les quatre autres centraux ont été convertis
en automatiques entre 1952 et 1956. Des restrictions d'accès
ont été mises en place à chaque central, selon
les indicatifs des centraux interurbains. Chaque central figurait toujours
comme une entrée distincte dans l'annuaire, avec des instructions
de numérotation différentes. On s'attendait à ce
que la multimétrie permette à terme aux abonnés
de composer tous les appels entre ces centraux.
Lors de l'introduction d'ELSA, les restrictions d'accès ont été
supprimées et le plan de numérotation a été
étendu à une zone plus vaste.
En 1960, la zone secondaire de Campbelltown était en transition,
passant d'un district rural à une banlieue de Sydney et commençait
à se doter d'industries légères. Le plan de commutation
prévoyait un centre secondaire à Campbelltown et des centres
secondaires à Camden et Picton. Il y avait plusieurs RAX dans
la zone, et Campbelltown et Camden avaient besoin d'être remplacés.
De nouveaux câbles de jonction et de liaison ont été
prévus dans le cadre du projet de câble coaxial Sydney-Melbourne.
L'application de la multimétrie progressive semblait donc pertinente,
et des plans ont été élaborés pour convertir
les trois centraux secondaires en automatismes et fournir le maximum
de données standard possible, tant dans la zone qu'à Sydney.
Au moment du début de la planification, le plan téléphonique
communautaire était sur le point d'être publié,
avec une simplification du système de tarification, ce qui était
prévu dès la conception. En effet, il aurait été
impossible d'élaborer un plan satisfaisant autrement.
Le plan de numérotation et de commutation qui en a résulté
était complexe, avec des codes choisis pour séparer autant
que possible le trafic à tarif unitaire et le trafic multimétrique,
ainsi que pour séparer certaines classes de transmission. La
complexité du câblage était considérable,
et les premiers sélecteurs de Campbelltown, Camden et Picton
ont été divisés en blocs avec des dispositions
de câblage différentes. Campbelltown était un centre
secondaire, une partie du trafic devait donc être commutée
à quatre fils. Les commutateurs pas à pas furent modifiés
pour permettre une commutation à deux ou quatre fils à
différents niveaux. C'était un exemple de ce que le pas
à pas pouvait faire, mais aussi de ce qu'il ne fallait pas lui
demander. L'expérience acquise avec cette configuration et d'autres
configurations moins complexes a joué un rôle dans la décision
de passer à un système contrôlé par registre.
Pendant cette période, les zones rurales continuèrent
d'être desservies par de petits centraux magnéto, des RAX
et des lignes PPE. PPE Partie érigée à
titre privé. Ligne d'abonné. Une partie est construite
par l'abonné.
La réglementation fut révisée en 1950 et publiée
sous le numéro 4 de 1950 (CM4/50).
Ce document, accompagné de plusieurs additifs au fil des ans,
resta en vigueur jusqu'en 1970.
Deux RAX standard de type APO furent utilisés pendant cette période,
et entre 700 et 800 furent installés. L'ampleur globale du programme
RAX était fixée par le siège, tandis que les États
étaient responsables de l'allocation des unités disponibles.
Les règles de décision utilisées tenaient compte
de facteurs tels que la justification économique, l'impact sur
les revenus de l'agent administratif, l'adéquation des installations
de lignes et l'adéquation des lignes interurbaines. Les RAX étaient
généralement installés dans des zones densément
peuplées et dans des centraux de 25 à 100 lignes. Au début,
ils remplaçaient généralement les centraux manuels
existants.
Progressivement, l'intérêt de définir de nouvelles
zones de centraux lors de l'installation des RAX a été
reconnu et, par la suite, les installations ont souvent combiné
deux centraux ou plus.
Des efforts ont été déployés à cette
époque pour trouver un substitut rentable aux lignes PPE, mais
sans grand succès.
À partir du matériel de surplus de guerre, des essais
de radio VHF ont été menés en tant que services
exclusifs et lignes partagées, mais l'obstacle était la
fourniture d'une alimentation électrique fiable chez l'abonné.
Un réseau haute fréquence basé à Broken
Hill a été établi en 1948, mais sa portée
était limitée. Quelques réseaux similaires ont
été mis en place sur d'autres bases. La plupart des éleveurs
qui en auraient bénéficié ont trouvé le
service Flying Doctor Radio Network moins cher et plus adapté.
Des systèmes de télécommunication ruraux, conçus
pour les services d'abonnés, ont été introduits
à partir de 1958/59. Ils ont été efficaces dans
certains cas, mais le CM4/50 n'était pas suffisamment flexible
pour les prendre en charge.
Ce problème a été résolu en créant
un central fictif appelé central électronique
télécommandé, abrégé en RCEE.
En 1984, on comptait 201 points RCEE avec 67 services connectés.
Des centraux magnéto télécommandés ont été
introduits pour les cas où aucun agent administratif n'était
disponible et où l'installation de ligne était inadaptée
à l'automatisation. Quelques unités de type « ALL »
ont été achetées auprès de LME à
titre d'essai et, après un certain temps d'expérience,
un modèle local a été produit dans le Queensland.
Seules quelques applications ont été trouvées,
mais elles ont fourni des services là où aucune autre
solution n'était possible. En 1984, on en comptait 55 pour 570
abonnés. Pour l'abonné le plus éloigné,
cependant, la situation en 1960 était restée la même.
En effet, dès 1965, les laboratoires de recherche étudiaient
des méthodes d'amélioration des jonctions des lignes PPE.
ALL = A remotely controlled magneto exchange.(centre à
magnéto télécommandé)
COMMUTATION INTERURBAINE 1945 à 1963
Au cours de cette période, le réseau interurbain est passé
d'un système presque entièrement manuel à un système
semi-automatique, avec généralement un opérateur
par appel. Le système de signalisation dominant était
le 2VF, mais un nombre important d'autres types de signalisation étaient
utilisés. 2VF = Système de signalisation
interurbaine utilisant deux tonalités de fréquence vocale
pour la signalisation.
Le processus a été progressif, l'automatisation étant
introduite lorsque les conditions étaient favorables.
Les facteurs qui ont joué un rôle majeur étaient
le volume de trafic, l'existence de centraux locaux automatiques et
la disponibilité des ressources pour fournir des lignes et des
centraux de commutation interurbains adéquats. Les détails
précis étant toujours difficiles à cerner, ce compte
rendu décrit les grandes lignes mises en lumière par quelques
cas précis pour lesquels des détails sont disponibles.
Les changements ont commencé avec l'achat d'un autocommutateur
semi-automatique pour Melbourne, mis en service progressivement de 1940
à 1942. Ce central était conçu pour fonctionner
comme un autocommutateur manuel, avec un équipement automatique
permettant des conditions d'exploitation plus flexibles. Les opérateurs
et les superviseurs pouvaient modifier le comportement de l'autocommutateur
de diverses manières. Les opérateurs atteignaient une
ligne sortante en composant un code, permettant à l'autocommutateur
de rechercher une ligne libre. Si toutes les lignes étaient occupées,
des voyants lumineux spécifiaient l'une des trois actions suivantes :
(1) Attente de mise en mémoire. L'abonné était
invité à attendre et, lorsqu'une ligne se libérait,
elle était proposée à l'opérateur.
(2) Libération de la mémoire. Comme précédemment,
mais l'abonné était invité à raccrocher.
Il s'agissait d'une étape intermédiaire vers le traitement
par temporisation formel, et son utilisation permettait souvent d'éviter
ce type de traitement.
(3) Retard. Demandez à l'abonné de raccrocher et transmettez
le ticket aux postes de retard par tube pneumatique. Une indication
du retard probable était transmise à l'opératrice,
qui pouvait ainsi informer l'abonné. Les superviseurs disposaient
d'écrans indiquant le nombre d'appels en mémoire sur chaque
ligne et décidaient du moment opportun pour modifier le statut
des lignes. De nombreux autres outils de gestion permettaient aux superviseurs
d'ajuster les effectifs et de suivre l'évolution des performances
du central.
La signalisation 2VF faisait partie intégrante du central et
était utilisée sur toutes les lignes qui y étaient
connectées, à l'exception de quelques lignes multi-bureaux
qui continuaient d'utiliser la signalisation magnéto. Le central
et la signalisation 2VF ont été développés
par Siemens Bros. selon les spécifications de l'APO. Ces spécifications
de signalisation étaient basées sur les recommandations
du CCITT, avec quelques variantes pour s'adapter
aux conditions locales. Le fonctionnement bidirectionnel et la signalisation
de supervision sans ambiguïté étaient des caractéristiques
du 2VF, qui, à cet égard, était bien supérieur
au magnéto et supérieur aux systèmes de signalisation
VF locaux. Des emplacements spéciaux étaient prévus
pour le trafic inter-États, conçus pour un fonctionnement
« dos à dos », une méthode qui permettait
d'optimiser l'utilisation des lignes. En fait, les tarifs étant
arrondis aux trois minutes supérieures, il n'était pas
rare d'obtenir plus de 60 minutes de temps de connexion payant par heure
sur chaque ligne. Geelong et Ballarat n'ont pas été inclus
dans la transition initiale, mais ont continué à être
desservis par l'ancien central à la demande pendant un certain
temps.
Dans les centraux ruraux où l'équipement 2VF a été
installé, les tableaux magnéto ont été modifiés
pour assurer la signalisation par lampes et la supervision directe.
Aucune disposition n'était prévue pour la commutation
automatique de transit à cette époque. Des doutes ont
même été exprimés quant à l'intérêt
de la commutation de transit dans les conditions australiennes de faible
trafic et de lignes longues et coûteuses. Le central interurbain
de Melbourne pouvait utiliser l'exploitation à la demande pour
surcharger ces lignes tout en offrant un service jugé bon par
les abonnés. Dans ces conditions, la probabilité de réussite
d'un appel de transit automatique était faible. Par conséquent,
le coût du transit automatique représentait une augmentation
significative de la fourniture de lignes interurbaines. L'ampleur du
problème est illustrée par le tableau des besoins estimés
en lignes interurbaines pour 1941, figurant dans l'appel d'offres pour
le central interurbain de Melbourne. Il y avait 72 routes avec 10 lignes
principales ou moins et seulement sept avec plus de 10. La plupart d'entre
elles étaient conçues pour le traitement différé
ou la libération à la demande. Cependant, la conception
du central téléphonique permettait l'ajout ultérieur
de la commutation de transit.
L'automatisation du réseau de lignes principales avait fait l'objet
de nombreuses recherches au cours de la décennie précédente,
et l'installation de Melbourne fut l'une des premières à
tenter de mettre en pratique ces nouvelles idées. Elle fut également
la dernière à être construite avant que la guerre
ne mette fin aux nouvelles installations et suscita donc une attention
considérable dans le monde entier. Un central similaire fut installé
à Adélaïde en 1947 (1948), puis récupéré
et réinstallé à Lismore. Immédiatement après
la guerre, de nouveaux plans de réseau de lignes principales
furent élaborés avec des objectifs plus ambitieux. L'objectif
ultime était une commutation de transit entièrement automatique
avec un opérateur par appel et la possibilité d'un nombre
limité de numéros de lignes principales avec multimétrie.
Plusieurs facteurs avaient conduit à ces nouvelles attitudes.
Le trafic de lignes principales avait considérablement augmenté
pendant les années de guerre et les coûts des opérateurs
étaient plus bas. En particulier pour les longues liaisons avec
des systèmes à 12 canaux, les salaires des opérateurs
étaient plus élevés. Les États-Unis avaient
développé un plan et un équipement de numérotation
interurbaine par opérateur, démontrant comment le routage
alternatif automatique pouvait réduire le coût d'un tel
réseau à un niveau acceptable.
Les nouveaux plans de commutation interurbaine étaient totalement
différents de ceux d'avant-guerre.
Sur un réseau entièrement manuel, la commutation de transit
était évitée comme la peste, mais sur un réseau
automatique, elle était essentielle. Il y avait donc davantage
de centres de commutation et de niveaux hiérarchiques. Les centres
de commutation étaient désignés comme nationaux
(un seul à Melbourne), principaux, primaires, secondaires et
secondaires. L'acheminement alternatif automatique faisait partie intégrante
du plan. Les exigences de transmission rendaient la commutation à
quatre fils essentielle, ou du moins hautement souhaitable, dans les
centres interurbains de statut secondaire ou supérieur. De nouveaux
équipements étaient nécessaires pour répondre
aux besoins du nouveau plan de réseau et deux nouveaux types
de centraux interurbains furent conçus. Les centres primaires
et de niveau supérieur devaient être équipés
de centraux semi-automatiques, similaires à ceux de Melbourne,
mais avec quelques modifications de fonctionnalités. Certaines
installations qui s'étaient avérées inutiles furent
supprimées et la commutation de transit automatique devint partie
intégrante de la conception. Une fois de plus, l'APO précisa
ses besoins et Siemens Bros. réalisa la conception. Les petits
centraux interurbains devaient utiliser un tableau de contrôle
à manchon de conception locale, autonome ou intégré
à un central CBM dans la même salle de commutation. Un
équipement de commutation automatique de transit était
disponible en option. Les besoins de transmission devaient être
satisfaits par la mise en place d'une commutation par plots et l'utilisation
de câbles réseau pour une commutation à quatre fils
(dérivation). La signalisation 2VF a été adoptée
comme norme, mais elle était coûteuse et d'autres systèmes
ont été utilisés lorsque les installations 2VF
complètes n'étaient pas nécessaires. Un système
de fréquences composées adapté aux lignes interurbaines
bidirectionnelles a été conçu et utilisé
en Nouvelle-Galles du Sud. Une autre innovation utilisée sur
les câbles porteurs Sydney-Maitland et Sydney-Orange était
un système de signalisation à courant porteur. Il s'agissait
de la première utilisation de la signalisation de type E et M
en Australie. L'utilisation de ce type de signalisation s'est lentement
développée avec l'acquisition de systèmes dotés
de canaux de signalisation intégrés. Le manque de ressources
de l'après-guerre a retardé le remplacement du tableau
de contrôle à manchon de Sydney. Plusieurs expédients
ont été utilisés pour optimiser la capacité
de ce central. Le premier était un simple central interurbain
semi-automatique, développé localement et installé
au GPO pour le trafic inter-États. Il utilisait des commutateurs
de type 2000 et disposait d'installations minimales, mais remplissait
sa fonction. Plus tard, des postes sans fil ont été construits,
réservés au trafic retardé. Enfin, un central de
secours à manchon a été installé à
Dalley, permettant de gérer le trafic vers un nombre réduit
de lignes à très fort trafic. Les archives d'autres expédients
à cette époque sont rares, car leur durée de vie
était généralement assez courte. Un central inter-États
a été conçu et construit à Adélaïde
pendant la guerre. Wollongong disposait d'un central semi-automatique
de type 2000, similaire à celui du GPO de Sydney. Newcastle disposait
d'un équipement de commutation de transit à Hamilton,
à 3 km du central interurbain associé. Les abonnés
de Melbourne bénéficiaient d'un accès par numérotation
à plusieurs centraux manuels de campagne à proximité.
Les opérateurs préparaient les bordereaux et connectaient
les appels. Cela a soulagé le central interurbain de Melbourne
et a réduit les coûts d'exploitation. Cette mesure n'a
pas été appliquée de manière générale,
car la situation était défavorable ailleurs. Bien que
les avantages de la commutation automatique de transit aient été
reconnus et que l'objectif à long terme d'un opérateur
par appel ait été fixé, la pénurie de lignes
interurbaines a freiné son introduction. La commutation de transit
a été introduite avec prudence au début, à
commencer par Melbourne, où des sélecteurs de transit
ont été installés le 15 août 1953. Une forte
augmentation de la commutation de transit a été observée
lors de la mise en service du central interurbain semi-automatique de
Sydney à Dalley en 1957. Ce central avait une capacité
maximale de 89 lignes interurbaines sortantes et, comme il y avait déjà
beaucoup plus de lignes au départ de Sydney, certaines ont dû
être supprimées et la destination a été desservie
par un centre de commutation de transit. Au lieu d'augmenter le nombre
de postes de transit dans ces centres, Il a été décidé
d'installer des équipements de commutation automatique de transit.
Ces équipements ont été presque tous installés
dans les centraux de contrôle de manchon, et quelques-uns dans
les centraux magnéto. L'installation de centraux interurbains
semi-automatiques dans les centres primaires a débuté
vers la fin de cette période, mais très peu ont été
mis en place. Le réseau interurbain semi-automatique prévu
n'était qu'à moitié achevé lorsqu'il a été
dépassé par le développement du STD «Subscriber
Trunk Dialing».
MULTIMÉTRIE PAS À PAS
L'attitude de l'APO à l'égard de la multimétrie
était plutôt ambiguë dans les premières années
d'après-guerre. On pensait que son utilisation serait limitée
pendant de nombreuses années aux courtes distances et aux itinéraires
à fort trafic, et qu'un réseau complet ne se justifiait
pas. Elle n'a pas été prioritaire dans l'immédiat
après-guerre, bien que l'APO RAX disposait de suffisamment d'espace
pour des relais de multimétrie.
Un comité de multimétrie a été formé
peu après 1950 afin d'examiner les possibilités et de
formuler des recommandations. Les travaux de ce comité ont permis
de résoudre un certain nombre de problèmes concernant
les bases de tarification et de définir les installations nécessaires.
Il a notamment identifié la nécessité de simplifier
le système de tarification avant de pouvoir généraliser
la multimétrie. L'utilisation de la multimétrie s'est
avérée plus économique que la commutation manuelle
sur les lignes courtes. Après une expérience concluante,
limitée au personnel de l'APO, deux modèles d'équipement
ont été produits : l'un dans les laboratoires de
circuits du siège de l'APO et l'autre en Nouvelle-Galles du Sud.
Tous deux ont été installés sur plusieurs lignes
courtes autour de Melbourne et de Sydney, la première reliant
St. Marys à Sydney en 1956. Des codes d'accès arbitraires
ont été utilisés, car les travaux sur un plan national
de numérotation venaient à peine de débuter.
Des ingénieurs expérimentés doutaient même
de la nécessité ou de la faisabilité d'un plan
national de numérotation.
Une troisième série de relais multimétriques pour
équipements pas à pas a été produite lorsque
les détails des systèmes de mesure et de facturation crossbar
ont été disponibles.
Ces équipements fournissaient à la fois les interfaces
nécessaires pour permettre aux centraux pas à pas d'utiliser
le crossbar STD et un relais de facturation permettant la multimétrie
pas à pas en l'absence de crossbar. Une version crossbar a été
produite pour les lignes à tarif fixe. Elle était largement
utilisée avant l'apparition d'un registre spécifique et
constitue toujours un élément important du système
STD «Subscriber Trunk Dialing». La plupart des premières
lignes à multimesure sont passées au tarif unitaire avec
l'introduction d'ELSA, mais l'équipement de facturation a ensuite
été redéployé.
(Note : Dans l'usage moderne, la multimesure est la méthode
de facturation des appels STD, mais avant 1963, ce terme désignait
à la fois la numérotation interurbaine et la facturation.
Par souci de commodité, l'ancien usage a été adopté
ici.)
sommaire
TECHNOLOGIE DE 1939 À 1963 : CB et MAGNÉTO
La décision d'utiliser le CB dans la plupart des grands centraux
nationaux était une réponse pragmatique aux pénuries
d'après-guerre.
Il était clairement impossible d'entreprendre des conversions
automatiques à grande échelle dans les villes rurales.
Il était donc judicieux de développer un nouveau central
manuel d'une capacité de l'ordre de 2 000 lignes. Pour un
central manuel de cette taille, le CB était clairement le meilleur
choix. Les modèles britanniques existants n'étaient pas
entièrement adaptés et, comme il était prévu
de fabriquer les centraux localement, une refonte complète a
été entreprise.
Ces centraux présentaient quelques caractéristiques
inhabituelles.
Il n'y avait pas de champ de réponse et des voyants d'appel étaient
installés dans le multiple, éliminant ainsi l'identification
et permettant ainsi des économies. Les positions B n'étaient
généralement pas prévues, compte tenu du faible
trafic aux jonctions. Un cadran ou un simple émetteur à
clé pouvait être installé. Tous les relais étaient
montés à l'écart du standard, dans un local technique
séparé. La hauteur totale était inférieure
à celle des standards précédents, créant
ainsi un effet plus ouvert.
Un central interurbain à commande par manchon a été
conçu simultanément et était généralement
installé dans une suite commune, avec un central local CBM sur
lequel s'étendait le multiple d'abonnés. Dans ce cas,
deux types de circuits de câbles étaient nécessaires :
des câbles de terminaison pour connecter les abonnés aux
lignes principales et des câbles de traversée pour relier
les lignes principales entre elles.
Les premiers centraux de ce type avaient des positions de terminaison
et de traversée distinctes. Les lignes principales recevaient
une réponse aux positions de terminaison et, si une connexion
de traversée était nécessaire, l'appel était
transféré vers une position de traversée. Ce système,
avec deux types de positions, n'était pas très efficace
et une solution alternative, avec des câbles de terminaison et
de passage sur chaque position, fut rapidement adoptée. Plus
tard, un circuit à câble composite commutant automatiquement
en mode de terminaison ou de passage fut conçu .
Ces centraux interurbains furent également installés dans
des réseaux automatiques où le nombre de positions était
trop faible pour justifier un système semi-automatique. Dans
ces cas, il n'y avait pas de multiplexage d'abonnés et toutes
les positions étaient équipées de câbles
de passage. Les études économiques des commutateurs à
commutation ont montré qu'un petit central à commutation
non multiple pouvait également être justifié. Ce
système fut conçu et construit en petit nombre, mais le
nombre d'applications fut inférieur aux prévisions.
Les commutateurs à commutation non multiple restèrent
la solution la plus utilisée dans les petites villes de campagne.
Plusieurs modifications furent apportées à la conception
de ces centraux, principalement pour leur permettre de continuer à
fonctionner avec des équipements plus modernes. L'une d'elles
consista à adopter progressivement des câbles à
trois conducteurs, des prises et des fiches. Le conducteur supplémentaire
(manchon) permettait un test intensif sur les lignes principales et
les jonctions multiples et servait également de circuit de numérotation,
offrant ainsi une meilleure configuration que l'ancienne méthode
à touches de numérotation sur les lignes automatiques.
La signalisation par voyants sur les lignes principales et les jonctions
a été introduite progressivement, à mesure que
les circuits à courants porteurs et les 2VF pénétraient
le réseau. Les anciens standards se prêtaient à
l'installation de voyants, de touches et de prises supplémentaires
pour répondre à ces nouvelles exigences et, en l'absence
de normes strictes, une grande partie des initiatives locales étaient
prises.
La dernière modification apportée aux centraux magnéto
a été l'installation d'un compteur commandé par
l'opérateur sur les lignes principales entrantes.Ce dispositif
permettait aux abonnés d'appeler le standard au central.
LES SELECTEURS type 2000 , SE50 et type 4000
Le système Strowger
de téléphonie automatique est la norme de la Poste depuis
1921 et est resté prédominant grâce à la
simplicité inhérente de son fonctionnement "pas à
pas" ou sxs "step by step), sur une base décimale,
les sélecteurs répondant directement aux impulsions composées.
Si le système Strowger est resté fondamentalement identique
à sa conception d'origine, son mécanisme de base, le sélecteur
à deux mouvements, a suscité une grande attention de la
part des concepteurs.
Avant la Seconde Guerre mondiale, deux principaux modèles
de sélecteurs à deux mouvements étaient couramment
utilisés. Le sélecteur Strowger était le plus ancien
et avait peu évolué depuis sa création. L'autre,
plus récent, était normalisé par la Poste britannique
en 1937 et désigné sélecteur type 2000.
Il fut adopté en Australie, les premières installations
ayant eu lieu à North Sydney et City West (Melbourne) en 1938.
Ces deux sélecteurs sont bien connus en Australie.
Tout au long de leur durée de vie, de nombreuses informations
pertinentes sur leurs performances opérationnelles ont été
obtenues. De plus, d'importants travaux de développement et de
recherche ont été entrepris pour répondre aux exigences
toujours croissantes de la téléphonie automatique. Un
examen attentif des données obtenues a permis d'établir
un tableau assez complet de l'état des sélecteurs à
deux mouvements.
En général, l'existence de deux modèles tendait
à souligner les faiblesses de chacun, et General
Electric Co. Ltd. a finalement été contrainte
d'envisager sérieusement l'introduction d'un nouveau modèle
de sélecteur. Un projet d'une telle envergure ne pouvait être
entrepris à la légère.
Après de longues discussions approfondies sur les problèmes
impliqués, il a été décidé d'adopter
une nouvelle conception axée sur une fiabilité maximale.
À cela s'ajoutaient un gain de place, une maintenance réduite
au strict minimum et un système de réglages uniforme permettant
d'obtenir un engagement métal sur métal maximal sur les
pièces d'usure, le tout associé à une référence
soigneusement définie, facilement accessible et fiable, garantissant
l'obtention de ces fondamentaux au moindre coût.
Le nouveau sélecteur S.E.50 développé par
General Electric Co. conserve tous les principes Strowger bien connus
et éprouvés. Une description détaillée de
ses caractéristiques, de ses points forts, de ses nombreux avantages
de construction, ainsi que de la facilité et de l'accessibilité
des réglages, est présentée ci-après. Une
rupture radicale a été opérée par rapport
à la procédure généralement acceptée
pour l'assemblage de mécanismes de ce type, en introduisant le
principe d'utilisation de sous-ensembles assemblés, réglés
et testés au lieu de l'assemblage habituel de pièces individuelles.
Ceci constitue non seulement un avantage considérable pour l'assemblage
des lignes de production, mais peut également s'avérer
très utile pour les administrations dont la qualité de
maintenance n'est pas particulièrement élevée.
Le personnel de maintenance peut être formé au réglage
correct de ces sous-ensembles, laissant les ajustements de détail
à un dépôt central où un technicien hautement
qualifié peut s'en charger.
Le premier sous-ensemble est l'ensemble châssis-colonne, base
sur laquelle reposent tous les autres sous-ensembles.
Le sélecteur S.E.50 SE50, est une
version améliorée du type 2000.
Cette nouvelle conception était plus fiable et plus facile
à entretenir. (Le dernier autocommutateur Strowger britannique
à être mis hors service se trouvait à Crawford,
en Écosse, et a été mis hors service en 1995).
Il s'agissait d'une refonte complète du concept de commutateur
bi-motionnel, visant à obtenir un commutateur plus économique
et plus fiable.
Tous les équipements étaient montés sur des
racks uniformes à simple face, ce qui permettait un gain
de place d'environ 20 % grâce à l'utilisation de racks
de 3,2 mètres de haut.
 |
Les avantages revendiqués
pour ce nouveau type de sélecteur peuvent être
résumés comme suit :
(a) Encombrement réduit.
(b) Poids réduit.
(c) Coût réduit.
(d) Meilleure efficacité magnétique.
(e) Similitude de conception des composants.
(f) Montage amélioré des ressorts à commande
mécanique.
(g) Facilité de démontage et de remplacement
du sélecteur.
(h) Possibilité de PBX 2/10 sur toutes les lignes d'un
sélecteur final multiple de 200 lignes.
(i) Capacité de la batterie supérieure.
(j) Facilité de réglage accrue. |

Encombrement réduit. |
Efficacité magnétique
accrue.
Les aimants verticaux et rotatifs logés dans les évidements
latéraux du châssis du sélecteur sont
de type monobobine avec des noyaux de dimensions généreuses
en forme de « H ». L'armature est parallèle
à l'axe du noyau et porte une lourde plaque auxiliaire
conçue pour produire rapidement un flux de haute densité.
L'efficacité des aimants peut être mesurée
par le fait qu'un modèle fourni à la Poste britannique,
équipé de dix batteries de 200 volts et des
mêmes aimants que les modèles à quatre
batteries, offrait une vitesse de commutation égale
à celle du sélecteur Strowger actuel.

|
|
 
Le sélecteur de type 2000 est devenu le mécanisme
de commutation bimotionnel standard en Australie dans les années
1930. Depuis, les versions Le mécanisme SE.50 occupe le
même support que le type 2000, et les sélecteurs
de groupe des deux types peuvent fonctionner côte à
côte sur la même étagère. (voir
détails ici)
Le Type 4000
Un nouveau sélecteur à deux mouvements a récemment
été normalisé par la Poste britannique. Appelé
sélecteur de type 4000, il est basé sur le modèle
SE 50 des différences mineures au niveau du circuit, principalement
dues à l'utilisation d'un aimant de déclenchement.
Il est développé par General Electric Company, Ltd.
entièrement interchangeable avec le sélecteur de
type 2000 en termes d'équipement, de montage et de disposition
des racks.
Parallèlement à l'adoption du sélecteur de
type 4000 pour les nouveaux centraux autres que ceux de l'U.A.X.,
la Poste a profité de l'occasion pour apporter des modifications
au circuit afin de faciliter l'introduction de la numérotation
interurbaine d'abonnés en temps voulu.
La décision d'adopter ce commutateur a été
prise suite aux résultats satisfaisants obtenus lors de
tests approfondis au Laboratoire des circuits de dérivation
téléphonique et d'essais sur le terrain d'environ
trois ans.
Les modifications mineures mentionnées ci-dessus résultent
principalement des tests en laboratoire, qui comprenaient la prise
d'enregistrements sur film à grande vitesse. Ces films
se sont révélés particulièrement utiles
pour évaluer l'étendue de la plage de réglage
et les tolérances de fabrication admissibles sur différentes
pièces. Cette technique a permis d'identifier les points
de risque de vibrations mécaniques et de rebonds, et ainsi
de déterminer l'adéquation des méthodes adoptées
pour les réduire.
|
Les commutateurs étaient généralement
équipés de 200 prises par essuie-glace. Cela permettait
une meilleure efficacité du trafic et la suppression des présélecteurs
de jonction. Le nouvel équipement était électriquement
compatible avec les équipements précédents, si
bien que la combinaison des deux types dans un même central posait
peu de problèmes.
Des détecteurs de lignes primaires et secondaires étaient
utilisés à la place des sélecteurs uniques d'abonnés,
sauf dans les centraux à débit d'appel élevé.
Ces commutateurs avaient des "commandes communes" et les circuits
étaient plutôt complexes, mais ils permettaient des économies
considérables. Après quelques années d'expérience
avec les détecteurs de lignes, il s'est avéré que
les coûts de maintenance plus élevés et la faible
fiabilité l'emportaient sur les économies d'investissement.
Les sélecteurs uniques ont alors été adoptés
comme standard.
Le commutateur équivalent à un SSR, appelé DSR,
offrait des fonctionnalités supplémentaires, notamment
la commutation directe vers d'autres centraux de la même zone
principale et vers le central interurbain au niveau 0.
Ce commutateur a peut-être été spécialement
conçu pour répondre aux besoins australiens, car il n'était
pas utilisé au Royaume-Uni.
Par ailleurs, le reste de l'équipement de type 2000 était
conforme aux spécifications et normes BPO.
Entre 1912 et 1945, les Australiens ont peu contribué à
la technologie des centraux automatiques, comme on pouvait s'y attendre,
la production étant entièrement étrangère.
Il y a cependant eu quelques initiatives locales. La plupart d'entre
elles étaient de petites améliorations et ne sont pas
documentées. Huit cas connus sont listés ci-dessous.
C. McHenry a réalisé des travaux préliminaires
sur les liaisons interurbaines, avec une application aux présélecteurs
à deux étages.
Un dispositif de protection de libération a été
ajouté aux premiers modèles de sélecteurs de groupe
grâce à des méthodes développées pour
les commutateurs de type 2000.
Les relais statiques ont été modifiés dans
un cas pour permettre une commutation directe entre centraux de dérivation
et dans un autre pour une discrimination sur le troisième chiffre.
Un circuit spécial a été développé
pour répondre à un problème de commutation particulier
à Adélaïde.
Les relais statiques et les relais statiques ont été
modifiés pour permettre un routage alternatif.
Le RAX de Sutherland a été modifié pour
pouvoir être intégré au réseau de Sydney
au lieu d'être rattaché au central interurbain.
Le premier RAX d'Australie a été conçu et construit
localement.
Ré-occupation automatique des circuits de jonction.
Un petit laboratoire de circuits téléphoniques existait
depuis de nombreuses années au siège. Il s'occupait principalement
d'examiner les appels d'offres et de conseiller les États sur
les problèmes inhabituels. Vers 1940, il a été
renforcé et a commencé à produire ses propres modèles
spécifiquement adaptés aux besoins australiens.
L'un des premiers modèles de ce type fut le PBX « Silvester ».
Les laboratoires ont également fait un excellent travail.
Les laboratoires ont également mené de nombreuses recherches
sur les circuits d'impulsion et de test, les deux fonctions les plus
critiques des systèmes pas à pas. On ne sait pratiquement
rien des premiers RAX installés avant 1930.
La première utilisation à grande échelle des RAX
a débuté en 1935, grâce à des équipements
achetés auprès de quatre entreprises anglaises. Chaque
entreprise avait sa propre conception, avec des moyens ingénieux
de réduire les coûts pour rendre un petit central économiquement
viable.
Ces RAX n'étaient pas entièrement adaptés aux conditions
australiennes et certains d'entre eux ont été modifiés
pour résoudre un problème local. L'expérience acquise
avec ces unités a montré à l'APO les installations
nécessaires dans le contexte australien.
Après la guerre, deux modèles de RAX ont été
produits dans les laboratoires de circuits de l'APO et fabriqués
en grande quantité. Lorsque le commutateur SE50 a été
fabriqué en Australie, sa conception a été modifiée
en conséquence. Ces appareils semblent être les premiers
équipements de central automatique entièrement conçus
par l'APO. La conception était un amalgame des conceptions des
quatre entreprises avec un fort penchant pour les méthodes simples,
de sorte que le résultat était un bon cheval de bataille
qui offrait une longue durée de vie.
En raison des problèmes d'approvisionnement en
matériel pendant la guerre, il fut décidé de devenir
aussi autonome que possible dans la fabrication d'équipements
téléphoniques. Après des négociations, STC
et TEI créèrent des usines et, au fil des années,
développèrent leurs capacités jusqu'à ce
que tous les équipements de central automatique soient produits
localement. Le commutateur choisi pour la fabrication locale était
le sélecteur SE50, une version améliorée du type
2000 .
L'APO a joué un rôle important dans la conception des circuits
des commutateurs produits localement, et notamment dans les circuits
d'impulsion et de test, qui intégraient des améliorations
développées dans les Laboratoires de Circuits. Dans le
cas du DSR SE50, l'APO semble avoir été presque entièrement
responsable de la conception.
L'attention portée par l'APO à l'impulsion découlait
de la taille et de la complexité des réseaux de Sydney
et de Melbourne, en particulier. Ces réseaux présentaient
les caractéristiques suivantes :
La zone couverte était plus vaste que celle de tout autre
réseau pas à pas au monde ;
De ce fait, les résistances de boucle des jonctions étaient
plus élevées qu'ailleurs ;
La proportion d'appels utilisant trois jonctions en tandem était
exceptionnellement élevée ;
Sydney possédait un grand nombre d'équipements
anciens ;
Les plans d'après-guerre prévoyaient un grand nombre
de satellites fonctionnant avec jusqu'à cinq jonctions pour certains
appels.
Des limites de résistance de boucle pour des performances de
signalisation acceptables ont été établies pour
les configurations de réseau prévues, y compris le fonctionnement
par satellite. Ces méthodes ont permis la mise en uvre
des refontes des réseaux d'après-guerre et ont joué
un rôle clé dans la prolongation de la durée de
vie du pas-à-pas dans ces réseaux jusqu'en 1963, année
de l'introduction du crossbar.
Les limitations du pas-à-pas en termes de trunking étaient
une source constante d'irritation à cette époque, et divers
commutateurs discriminants plus flexibles et/ou économiques ont
été suggérés et étudiés. Quelques-uns
d'entre eux ont eu une utilisation limitée dans les réseaux.
La liste suivante n'est peut-être pas exhaustive, mais elle illustre
la diversité des méthodes étudiées :
Commutation DSR de type SE50 sur le premier ou le deuxième chiffre.
- DSR de type SE50 modifié pour un routage alternatif.
- SR (répéteur de commutation) fournissait une route directe
et tout le reste du trafic via le réseau fédérateur.
- SDR (répéteur double de commutation, conçu en
Nouvelle-Galles du Sud), commutant sur n'importe quel chiffre avec routage
alternatif.
- RDR (registre de détermination d'itinéraire, conçu
en Nouvelle-Galles du Sud), jusqu'à 18 routes directes sur n'importe
quel code. Utilisation d'un régénérateur d'impulsions
pour stocker les chiffres composés jusqu'à la prise de
décisions de routage.
- DR (Répéteur discriminant) Utilisait des commandes communes
dotées de la logique discriminante.
- SOS (Sélecteur double à commutation, conçu en
Nouvelle-Galles du Sud) Une modification du SE50 DSR pour lui conférer
des propriétés similaires.
- Répéteur discriminant à commutation, conçu
à Adélaïde pour résoudre un problème
spécifique.
Dans le même esprit, deux modèles de relais à absorption
de chiffres ont été développés en Nouvelle-Galles
du Sud pour remplacer les sélecteurs lorsque la numérotation
du réseau le permettait. La première application concernait
le niveau I, où le seul deuxième chiffre utilisé
était le I.
Après la guerre, des systèmes de transmission ont été
utilisés dans les réseaux locaux comme relais de secours
à court terme, notamment en cas de retard dans la mise en place
d'un conduit important. Des relais de signalisation spéciaux
ont été conçus pour ces systèmes. La plupart
de ces systèmes ont été récupérés
et réutilisés dans le réseau principal après
une très courte période de service. Cependant, quelques-uns
dans les réseaux ruraux étaient plus permanents.
L'introduction de répéteurs à impédance
négative a entraîné une augmentation des résistances
de boucle aux jonctions et le système de signalisation SCDC
de la BPO (British Post Office) a été adapté aux
besoins australiens.
SCDC = Communication simple et signalisation à
double courant. Technique utilisée pour la signalisation CC sur
les circuits à haute résistance.
D'autres ensembles de relais de signalisation de ligne ont été
conçus pour les réseaux ruraux utilisant des circuits
fantômes.
L'introduction du STD «Subscriber Trunk Dialing» a nécessité
des modifications aux DSR, conçus pour assurer des conditions
auto-manuelles au niveau 0, sans fonction de multimétrie.
D'autres modifications mineures de l'équipement pas à
pas ont été nécessaires pour assurer le blocage
d'accès STD. Des détails sont donnés ailleurs sur
les travaux sur le STD pas à pas, utilisé dans des endroits
appropriés pendant le développement des installations
STD à barres croisées.
En 1961 et 1962, deux installations d'essai ont été réalisées
avec des équipements pas à pas Siemens
n° 17 et Siemens et Halske EMO. Ces équipements étaient
envisagés comme prochain type d'équipement. Tous deux
utilisaient des sélecteurs unisélecteurs motorisés
comme sélecteurs de groupe de 200 prises et présentaient
certains avantages par rapport aux systèmes bi-motionnels.
Cependant, ils manquaient de la polyvalence du système à
barres croisées et aucune autre installation n'a été
réalisée.
Un central à barres croisées Pentaconta a également
été installé à Kew dans le cadre du processus
d'évaluation.
Depuis 1961, peu de modifications ont été apportées
à l'équipement pas à pas existant et celles-ci
ont concerné l'interfaçage avec la barre transversale.
sommaire
TECHNOLOGIE DES CENTRAUX INTERURBAINS
En 1939, l'automatisation des réseaux interurbains était
considérée comme une tendance future plutôt qu'une
possibilité immédiate.
De nombreuses fonctions d'un opérateur interurbain étaient
difficiles, voire impossibles à automatiser avec les technologies
disponibles.
Parmi ces fonctions :
(1) Gérer les files d'attente nécessaires pour exploiter
au mieux les petites et coûteuses lignes interurbaines ;
(2) Fournir un enregistrement écrit de chaque appel à
des fins comptables ;
(3) Fournir des services personnalisés tels que les appels à
durée fixe, de personne à personne et à prix inversé ;
(4) S'adapter aux changements de routage à mesure que le réseau
se développait et que de nouvelles lignes directes étaient
mises en place ;
(5) Adopter des schémas de routage spécifiques en cas
de panne.
Dans le même temps, la croissance du trafic interurbain créait
des problèmes d'exploitation et certains grands centraux interurbains
étaient quasiment ingérables. Face au dilemme : les
méthodes manuelles ne pouvaient pas répondre à
la demande et seules certaines fonctions d'exploitation des lignes interurbaines
pouvaient être automatisées, un système semi-automatique
était nécessaire. La meilleure option était d'automatiser
complètement les communications. Deux fonctions étaient
plus performantes dans un central semi-automatique que dans un grand
central manuel : la distribution des appels des abonnés
aux opérateurs et l'accès à un grand multiplexeur.
Il s'agissait des principales fonctions des premiers centraux semi-automatiques
australiens. Le multiplexeur automatique du central de Melbourne était
conçu pour imiter les actions d'un opérateur dans un standard
téléphonique filaire, tout en le rendant plus efficace.
Par exemple, dans un central filaire, si toutes les lignes d'une ligne
à la demande étaient occupées, l'opérateur
mettait l'appel en attente et scrutait les voyants d'occupation de la
ligne pour voir si une ligne se libérait. Dans le central de
Melbourne, si l'opérateur composait le code d'une ligne et que
tous les circuits étaient occupés, l'appel était
mis en mémoire et un voyant lumineux indiquait qu'une ligne se
libérait. La mise en place d'un multiplexeur automatique permettait
en principe à un opérateur distant de transférer
un appel via le central vers un réseau sortant (commutation de
transit automatique). Cependant, ces appels ne pouvaient pas bénéficier
du stockage des appels et, compte tenu des conditions de trafic en vigueur
en 1940, le transit automatique était fortement désavantagé.
Les centraux ont donc été conçus pour permettre
l'ajout ultérieur de cette fonctionnalité.
Le fonctionnement semi-automatique nécessitait des signaux positifs
du central appelé lorsque l'appel était pris et lorsque
l'opérateur distant raccrochait. De nouveaux systèmes
de signalisation étaient nécessaires pour fournir des
signaux supplémentaires, et un système utilisant deux
fréquences de signalisation (600 Hz et 750 Hz), appelé
2VF, a été adopté comme norme australienne. Les
fréquences et les durées des signaux suivaient les recommandations
du CCITT, mais, faute de recommandations détaillées sur
le système à ce moment-là, il a été
spécifiquement conçu pour répondre aux exigences
de l'APO. La signalisation 2VF et les centraux interurbains semi-automatiques
Siemens étaient conçus pour fonctionner ensemble, mais
le central pouvait en principe fonctionner avec n'importe quel type
de signalisation et le 2VF pouvait être utilisé dans d'autres
types de centraux. Les versions ultérieures du central interurbain
semi-automatique Siemens étaient fondamentalement similaires,
mais la commutation de transit était intégrée au
central et certaines fonctionnalités opérationnelles ont
été abandonnées. L'acheminement alternatif automatique
des appels de transit était assuré par des registres de
transit appelés en cas d'occupation. Pour répondre aux
besoins de l'APO, des ensembles de relais ont été conçus
pour d'autres types de signalisation, notamment pour la signalisation
par dérivation E et M. Cette solution était plus économique
que le 2VF pour les circuits porteurs intégrant cette fonctionnalité.
À l'exception de quelques installations anciennes, les centraux
interurbains de contrôle d'après-guerre ont été
conçus et construits en Australie. Ils pouvaient être co-implantés
avec un central CBM, auquel cas le multiple d'abonnés s'étendait
sur les positions interurbaines. Les procédures d'exploitation
utilisaient cette fonctionnalité pour éliminer les transferts
entre les positions locales et interurbaines. Le multiple d'abonnés
présentait des conditions d'interface différentes avec
le multiple interurbain et deux types de circuits de cordon étaient
nécessaires : un pour les appels de terminaison et un pour
les appels directs. Les premiers centraux disposaient de positions de
terminaison et de transfert distinctes, mais il s'est avéré
plus pratique de prévoir une combinaison des deux types de circuits
sur chaque position. Plus tard, un circuit de cordon « composite »
a été développé, utilisable pour les deux
types d'appels. La commutation à quatre fils (avec dérivation)
a été prévue grâce à des prises de
ligne et de réseau pour les lignes principales à quatre
fils, ainsi que quelques paires de cordons réseau pour connecter
les prises réseau des appels à quatre fils à quatre
fils. Une commutation par plots a également été
prévue.
Vers 1955, une commutation automatique de transit a été
ajoutée à certains centraux à commande par manchon.
Ce circuit utilisait des sélecteurs unisélecteurs à
moteur Siemens, et de nouveaux relais de ligne 2VF ont été
conçus pour cette application. Une version a également
été construite pour les centraux à magnéto,
utilisant les mêmes circuits de commutation.
Les développements précédents ont permis la mise
en place d'un réseau de lignes principales avec opérateur
unique, assurant la commutation et le contrôle des appels. Il
s'agit du niveau d'automatisation maximal possible dans un réseau
de lignes principales avec opérateur, et il était en voie
d'être atteint en 1960. Une automatisation plus poussée
a nécessité le remplacement complet de l'opérateur
principal et le passage au standard.
MULTIMESURE
Avant que les abonnés puissent composer eux-mêmes leurs
appels interurbains, une méthode de facturation était
nécessaire pour remplacer les bordereaux d'appels manuels. Deux
méthodes étaient connues en 1955. Les États-Unis
et quelques autres pays avaient adopté la tarification automatique
des péages avec des machines produisant des bandes de papier
perforées. La plupart des pays avaient adopté la méthode
plus simple de la multimesure. Le principal inconvénient de la
multimesure résidait dans l'impossibilité de fournir des
relevés d'appels détaillés, mais l'expérience
internationale a montré que, du moins pour le trafic courte distance,
les abonnés l'acceptaient.
En 1955, il existait suffisamment de liaisons courtes sur lesquelles
la multimesure pouvait être économiquement justifiée
pour justifier le développement du concept. Des problèmes
commerciaux et techniques devaient être résolus avant l'introduction
du STD, et les premières installations sur le terrain ont été
réalisées en 1956. Les caractéristiques de ces
premières installations, qui ont ouvert la voie aux développements
ultérieurs, étaient les suivantes :
(1) Le comptage était incrémenté d'une unité
de facturation à intervalles réguliers, au lieu de plusieurs
enregistrements au début de chaque tranche de trois minutes.
(2) Tous les tarifs interurbains étaient exprimés en multiples
de l'unité de facturation.
(3) Les abonnés pouvaient se passer de la multimétrie,
mais devaient payer pour ce privilège.
Trois modèles de multimétrie pas à pas ont été
produits, un en Nouvelle-Galles du Sud et deux au siège. Dans
chaque cas, il s'agissait d'une famille de relais, capable en principe
de fournir une multimétrie à l'échelle nationale,
mais en pratique assez limitée.
L'Australie n'utilisait pas le système britannique
à trois lettres. Il n'y avait aucune corrélation entre
les lettres et le nom d'un central téléphonique, par exemple
BA (21) était un central téléphonique de Perth.
Il est intéressant de noter que le central téléphonique
de Bulwer St (North Perth) a ouvert vers 1950 avec le préfixe
28 (BW) . Une recherche dans les annonces de journaux
a montré qu'ils publiaient un mélange de numéros
alphanumériques et uniquement numériques en 1959, mais
qu'en 1960, tous étaient des numéros de clients uniquement
numériques. L'Australie a donc complètement abandonné
son système de numéros de téléphone alphanumériques
au début de 1960. L'idée susmentionnée concernant
les chaînes de chiffres s'est avérée fausse.
sommaire
RÉSEAUX DE 1963 À 1980
LE COMITÉ ANSO
L'ère du Crossbar
en Australie a été inaugurée par les travaux du
Comité ANSO (Automatic Network and Switching Objectives) et la
publication du « Plan de téléphonie communautaire
pour l'Australie 1960 ».
Le Comité a été créé en 1957, lorsqu'il
est apparu que plusieurs études indépendantes nécessitaient
une orientation commune et que le moment était venu de donner
une nouvelle orientation au système téléphonique
de l'APO. Il a pris le contrôle de ces études et a lancé
les études complémentaires nécessaires à
l'élaboration d'un plan national. Le Plan téléphonique
communautaire, l'un des derniers produits du Comité, a exposé
en termes généraux les conclusions et le cadre dans lequel
le développement téléphonique futur serait mené.
Il s'agissait en grande partie d'une formalité ; de nouvelles
décisions et procédures de planification ont été
mises en uvre progressivement au cours de l'existence du Comité.
Par exemple, les nouvelles zones de tarification ont été
rendues publiques lors du dépôt d'un livre blanc au Parlement
le 12 août 1959 et avaient déjà été
introduites au moment de la publication du rapport. Il s'agissait néanmoins
d'un document clé qui a servi de base à la planification
des 20 années suivantes. Le hasard a voulu que les circonstances
favorisent une révision aussi complète du réseau.
Les expédients d'après-guerre avaient permis à
l'APO de répondre à la majeure partie de la demande sans
nécessiter de nouvelles technologies, mais tous atteignirent
leurs limites à peu près au même moment. Sydney
et Melbourne avaient besoin d'une refonte pour le système à
sept chiffres et il était opportun d'envisager une rupture avec
la méthode progressive. Les centraux CBM des villes rurales atteignaient
leur capacité maximale et devaient être remplacés
par des centraux automatiques. Des réseaux comme celui de Wollongong
avaient révélé les anomalies du système
de tarification existant et les limites de la méthode progressive
dans ces zones. Des supports haut débit étaient en cours
d'introduction sur les principaux axes, notamment le câble coaxial
Sydney-Melbourne. La numérotation par abonné devenait
attractive pour de nombreux axes et les coûts d'exploitation avaient
augmenté au point qu'une grande partie du trafic interurbain
à courte distance était devenue non rentable. D'autres
pays avaient élaboré des plans pour de larges segments
de leur réseau téléphonique, mais le Plan Téléphonique
Communautaire était le premier d'une telle exhaustivité.
Aux États-Unis, Bell avait élaboré le plan ODD
(Direct Distance Dialling) pour le réseau interurbain, mais celui-ci
ignorait nécessairement les réseaux locaux, dont beaucoup
appartenaient à des entreprises indépendantes.
Le BPO (Britanique) avait également élaboré un
plan de réseau interurbain assez complet, indépendant
de la commutation locale. Dans ce cas, on partait du principe que les
systèmes progressifs et Director existants continueraient à
répondre aux besoins de commutation locale. Par ailleurs, la
plupart des grandes entreprises manufacturières développaient
de nouvelles lignes d'équipement.
L'APO avait une occasion unique de choisir un nouveau système
et de l'adapter à ses besoins. Les exigences décrites
dans le Plan Téléphonique Communautaire ne pouvaient être
satisfaites qu'avec un système contrôlé par enregistreur
utilisant une signalisation VF à haut débit. Il existait
des systèmes crossbar et électromécaniques présentant
ces caractéristiques et le potentiel de répondre aux besoins
des APO. Tous les principaux fabricants ont été invités
à proposer tout type d'équipement susceptible de répondre
à leurs exigences.
Après trois ans de travail, l'ANSO a produit le Plan de téléphonie
communautaire pour l'Australie de 1960, peut-être le plan le plus
complet produit, à cette époque, par une administration
téléphonique.
D'un point de vue technologique, les fonctionnalités
importantes comprenaient :
numérotation ultime des abonnés
à l'échelle nationale ;
numérotation nationale fermée comportant
un maximum de neuf chiffres ;
regroupement de centraux pour la facturation des
appels ;
zones de service locales étendues;
multi-mesure automatique sur les appels interurbains
;
Système de commutation à grande
vitesse contrôlé par registre, utilisant un routage alternatif
automatique ; maximum de neuf liaisons en tandem.
Alors que de nombreux fabricants mondiaux d'équipements
de commutation développaient alors de nouvelles gammes d'équipements,
il était opportun pour l'APO de choisir un nouveau système
et de l'adapter à ses besoins. Un appel d'offres fut donc lancé
et, après des investigations approfondies menées par une
équipe placée sous la direction de FP O'Grady, le système
crossbar de LM Ericsson fut retenu.
L'offre de LME pour le crossbar comprenait des centraux terminaux ARF,
des centraux de petite ligne ARM série 50, des centraux
de grande ligne ARM série 20, des centraux de petite ligne
ARK (M) et, apparemment ajoutés pour répondre aux
besoins spécifiques de l'APO, des tandems ARF et des centres
mineurs ARK. Les blocs de commutation de tous ces types de centraux
étaient utilisés depuis un certain temps, principalement
avec des techniques de signalisation CC et dans des réseaux à
registres contrôlés, mais, bien que LME évoluât
vers la signalisation MFC, les détails n'étaient pas encore
finalisés. L'APO et le LME, utilisant initialement des ressources
suédoises, puis développant ensuite une expertise considérable
en Australie, ont collaboré au développement des versions
MFC de la barre transversale. Le résultat a été
un système parfaitement adapté aux besoins australiens,
doté de la flexibilité nécessaire pour satisfaire
aux exigences d'autres pays. Au cours de ce processus, le système
a subi d'importantes modifications.
Les propositions comprenaient une version d'ARF pour les réseaux
des capitales, une autre pour les centraux de grands pays, ARK
pour les centraux de plus petite taille et ARM pour la commutation
interurbaine.
ARF An LME type crossbar exchange for local area switching.
ARK An LME type of crossbar exchange for small exchanges.
Maximum size is 2000 lines.
ARM An LME type of crossbar exchange equipped with four wire
switching for secondary and higher switching centres.
Ces types de centraux crossbar utilisent des relais
et des commutateurs similaires, mais diffèrent considérablement
en termes de techniques de jonction et de contrôle internes.
Les centraux d'essai installés à Templestowe, dans l'État
de Victoria, et à Sefton, en Nouvelle-Galles du Sud, utilisaient
un modèle appelé ARF 51, fonctionnant comme un
système pas à pas utilisant des commutateurs crossbar.
Aucun registre central n'était utilisé, mais des registres
très simples étaient associés à chaque étage
de commutation. Aucun autre central de ce type ne sera acheté.
Le central d'essai de Toowoomba est un modèle appelé ARF
10, utilisant un registre central et un code D0 pour la signalisation
interne à haut débit.
Ce modèle a été modifié pour intégrer
une méthode de signalisation à haut débit utilisant
un code de fréquence multivoie, et tous les futurs équipements
destinés à l'Australie incluront une signalisation multifréquence
entre les registres, et entre les registres et les ensembles de contrôle
de marqueurs.
Deux types de centraux ARK sont utilisés en Australie :
(voir le document)
L'ARK 51 est conçu sous la forme d'une unité de
30 lignes. Il peut être étendu de 30 unités supplémentaires
jusqu'à un maximum de 90 lignes.
L'ARE 52 a une capacité initiale de 100 abonnés
et peut être étendu à 2 000 abonnés.
Ces centraux sont conçus pour un fonctionnement normal avec un
central parent ARM où les registres de contrôle
sont centralisés. Cependant, un fonctionnement avec d'autres
types d'équipements de central parent est possible.
Il existe deux types de centraux ARM : l'ARM 50 pour les
petites installations et l'ARM 20 pour les très grands
centres de commutation.
Un développement considérable était nécessaire
pour répondre aux besoins des APO, et LME et l'APO ont joué
un rôle important dans ce processus.
Afin d'acquérir une première expérience
avec les équipements crossbar, un contrat a été
attribué pour l'installation d'un central ARF 101 avec signalisation
CC à Toowoomba, dans le Queensland, où les problèmes
d'interfonctionnement seraient limités. Il a été
mis en service en 1960, trois ans avant la mise en service du premier
central ARF 102 avec signalisation MFC en mai 1963. Le nouveau
système ARF était codé ARF102 et, bien qu'il ait
été développé à partir du type ARF101,
il était à bien des égards un système nouveau.
Les principales modifications étaient les suivantes :
- Fourniture d'un fil supplémentaire (fil
UHE 'C') via les sélecteurs de groupe pour fournir un chemin
de signal entre FIR et FUR et permettre aux ensembles de relais d'être
réglés en fonction du type de connexion.
- Éliminer le délai de sonnerie
de la partie B défini par LKR en ajoutant cette fonctionnalité
aux ensembles de relais FIR et SR.
- Offrir beaucoup plus de capacité d'analyse
et transférer l'analyse de l'étape Reg-L à l'étape
IGV.
- Ajout d'une fonction « place d'attente
» à l'IGV afin de réduire les délais après
numérotation.
- Ajout d'une fonction d'envoi décadique
au Reg-L et au Reg-I au lieu de fournir un registre de conservation
du signal (Reg-U) à l'interface étape par étape.
- Produire une étape IGV différente
avec une plus grande flexibilité dans l'allocation de disponibilité
et des installations de routage alternatives plus étendues
- Augmentation du nombre de fréquences
arrière de trois à cinq, permettant 10 signaux différents.
- Conception du code de signalisation MFC pour
permettre les signaux supplémentaires nécessaires à
l'analyse dans l'étape GV et la signalisation décadique
à partir des registres. Deux nouvelles configurations d'étape
SL ont été fournies pour les abonnés à très
haut débit d'appel et un marqueur d'étape SLK plus rapide
a été développé.
À ce stade, l'ampleur des efforts de conception
avait été reconnue et il était évident que
la conception serait en retard sur les besoins du réseau pendant
plusieurs années. Un programme et un calendrier de conception
formels ont donc été élaborés afin de garantir
la priorité aux points les plus urgents. Parallèlement,
divers expédients ont été adoptés pour surmonter
certains problèmes liés à la non-disponibilité
des conceptions. En particulier, des ensembles de relais de ligne pas
à pas existants ont été utilisés pour convertir
d'autres types de signalisation de ligne en boucle, nombre de ces ensembles
étant fabriqués dans un atelier protégé,
Centre Industries, qui avait acquis des équipements de fabrication
de relais de type 2000 auprès de STC.
Fin 1963, les conceptions achevées comprenaient
des centraux terminaux ARF pour les réseaux métropolitains
et ARK-D pour les centraux nationaux jusqu'à environ 1 400 lignes.
Les centraux nationaux plus importants pouvaient utiliser l'ARF métropolitain
et, bien qu'une conception moins élaborée pour les zones
rurales ait été prévue, ce n'était pas un
besoin urgent. La priorité de conception fut alors donnée
à l'ARM, et en particulier aux parties de celui-ci devant établir
un STD complet depuis les capitales. L'APO avait précédemment
exprimé son intérêt pour un sélecteur de
groupe à trois niveaux pour une plus grande disponibilité
et les travaux de développement nécessaires furent entrepris
localement, avec une contribution majeure de NMH Smith. Initialement,
il était prévu d'utiliser l'ARM pour tous les centres
de commutation interurbains, à l'exception de quelques petits
centres mineurs pour lesquels une conception ARK523 avait été
proposée. Au fur et à mesure de l'avancement de la conception
de l'ARM, le coût initial augmenta considérablement et
des alternatives furent recherchées pour les petits centres mineurs,
notamment l'étude de l'ARK523, mais sa capacité de trafic
limitée se révéla inadaptée. Lattention
a ensuite été portée sur la possibilité
dutiliser lARF comme centre mineur, en sappuyant sur
un centre secondaire de lARM pour entreprendre les tâches
plus complexes.
Le rôle et la conception du centre mineur ARF
ont évolué au fil du temps, passant d'idées initiales
basées sur des installations minimales à un centre mineur
complet. Initialement, les terminaux devaient être ARK-D avec
multi-mesure fournie par le centre secondaire parent, à l'exception
de quelques routes à tarif fixe, et avec le trafic interurbain
dans la zone mineure « trombiné » via le secondaire,
un arrangement qui aurait nécessité peu de nouveaux travaux
de conception, et en fait, la plupart des premiers centraux ARF du pays
étaient truqués de cette manière, sauf qu'au lieu
d'une route vers un centre secondaire, il y avait une route vers un
central interurbain manuel. De nouvelles possibilités, cependant,
sont apparues avec le développement par LME d'une architecture
de registre modulaire destinée à simplifier la fourniture
de fonctionnalités spéciales dans les registres, réduisant
le registre à un peu plus qu'une mémoire de chiffres avec
accès aux périphériques qui étaient appelés
selon les besoins pour fournir des fonctions de signalisation et d'analyse.
Le registre provincial proposé, REG-LP, a été développé
sur cette base, le contrôle des centraux ARK-M étant assuré
par une unité complémentaire qui deviendrait REG-ELP.
Deux autres ajouts ont été apportés au centre mineur
de l'ARF, le plus important étant le REG-H4, qui offrait des
installations de tarification locale, initialement pour éviter
le trombonage du trafic intra-mineur, mais qui a ensuite été
développé pour facturer l'ensemble du trafic au centre
mineur. Le second était un registre de terminaison, REG-YILP,
permettant un routage direct en contournant l'ARM de terminaison.
Le développement d'un centre mineur ARF
a également modifié la nature des centraux ARM. La fonction
REG-E de contrôle d'ARK-M n'a jamais été mise en
uvre et la plupart des ARM n'avaient pas à fournir de facturation.
Les fonctions restantes de l'ARM étaient la commutation de transit
à quatre fils, l'analyse de terminaison, le contrôle des
suppresseurs d'écho et la commutation des positions d'assistance
manuelle AFG. Bien que le nouveau registre offrait une conception économique
pour les centres mineurs de taille moyenne, une conception adaptée
aux petits centres desservant entre 500 et 2 000 lignes était
nécessaire. Cependant, sa justification économique a été
érodée par la réduction des coûts de transmission
et le projet a été reporté.
Vers 1970, des plans étaient en cours d'élaboration
pour un projet de modernisation des registres. L'objectif principal
était de rendre le REG-LM aussi puissant que le REG-LP, d'introduire
un nouveau système de signalisation MFC Mark 2, d'ajouter la
numérotation par touches et l'identification de la ligne appelante
(CLI), une fonctionnalité nécessaire à l'enregistrement
du coût des appels STD individuels comme alternative à
la facturation groupée par multi-mesure. Cependant, LME proposa
à l'APO un sous-système SPC pour assurer les fonctions
de contrôle communes d'un central ARF, initialement connu sous
le nom de ROM30, puis d'ANA30 et enfin d'ARE11. Ce sous-système
était à la fois moins cher et plus polyvalent que les
registres et marqueurs existants. Il était également plus
économique de remplacer les REG-LM par les registres de contrôle
communs que de les mettre à niveau. Bien que le potentiel d'ARE11
fût limité en raison de l'imminence de la commutation numérique,
les économies supplémentaires liées au programme
REMO suffisaient à justifier l'introduction de ce nouveau type
d'équipement. La plupart des centraux transversaux métropolitains
ont été convertis en ARE11, les REG-LM ont tous été
remplacés et les zones rurales ont été principalement
desservies par des REG-LP modernisés.
L'introduction du crossbar dans le système
mixte existant, manuel et pas à pas, a nécessairement
nécessité une refonte du réseau et une réévaluation
de nombreux concepts et pratiques existants. L'un des facteurs déterminants
du processus a été la rapidité avec laquelle les
fabricants australiens d'équipements d'échange ont pu
passer à la production du nouveau type d'équipement sous
licence de LM Ericsson et cette dernière a pu établir
ses propres installations de production. Ces questions ont fait l'objet
de longues négociations, notamment la décision d'abandonner
progressivement la fabrication pas à pas dans un délai
de trois ans.
Une exigence clé pour chacune des capitales
était un système de numérotation, non seulement
pour les vingt prochaines années, incluant l'extension ELSA,
mais aussi capable d'évoluer pour répondre aux tendances
de croissance qui pourraient émerger. Une autre exigence était
que tout abonné puisse émettre et recevoir des appels
de et vers n'importe quel autre abonné ou, plus formellement,
il était nécessaire de disposer d'un réseau de
commutation pour les origines step-by-step, avec accès aux destinations
step-by-step et cross-bar, et d'un réseau de commutation pour
les origines cross-bar, avec accès aux destinations step-by-step
et cross-bar. Ainsi, la commutation tandem, qui avait été
un facteur important depuis le développement des premiers réseaux
manuels, est restée un élément essentiel du développement
des réseaux contrôlés par registre. L'Australie
ne disposait d'aucune expérience pertinente en matière
de commutation contrôlée par registre, et il n'existait
pas non plus de réseaux étrangers suffisamment similaires
pour servir de modèles utiles. Après une analyse approfondie,
les structures adoptées comprenaient des éléments
du réseau interurbain hiérarchique et des pratiques step-by-step.
Il est rapidement devenu évident que la mise en place rapide
de réseaux tandem cross-bar était nécessaire, car
il était inefficace de transporter la majeure partie du trafic
commuté en tandem via les tandems pas à pas.
Le sélecteur de groupe à trois niveaux,
spécialement conçu pour offrir la plus grande disponibilité
nécessaire dans les grands échanges et auquel l'APO a
apporté une contribution significative, a été largement
utilisé dans les échanges terminaux et les tandems. Le
REG-LP initialement proposé comme registre provincial s'est avéré
offrir de meilleures installations à un coût inférieur
à celui du REG-LM et est devenu le registre métropolitain
préféré.
Le développement du STD à partir
des centraux métropolitains a été freiné
par la présence de quantités considérables d'équipements
de commutation de type antérieur à 2000 dans certaines
capitales, ce qui a finalement conduit à des plans de remplacement
accéléré à mesure que les économies
offertes par le STD augmentaient et que la demande du public pour l'installation
augmentait. Initialement, le STD était limité aux centraux
principaux crossbar et pas à pas, car les DSR avaient été
conçus pour donner accès à un central manuel au
niveau 0 et ne pouvaient ni répéter la numérotation
à ce niveau ni transmettre des signaux de multi-mesure. Des modifications
ont donc été développées par les Circuit
Laboratories et tous les DSR des capitales ont été mis
à niveau pour offrir des capacités STD.
APERÇU DES CAPITALES
Entre 1963 et 1980, le crossbar est devenu le type d'équipement
dominant sur les réseaux des capitales.
Contrairement aux changements d'équipement précédents,
celui-ci s'est déroulé à un rythme relativement
uniforme et de manière essentiellement similaire sur tous les
réseaux. C'est pourquoi un aperçu général
du processus est fourni, complété par des détails
sur les caractéristiques inhabituelles de chaque ville.
Un facteur déterminant dans le passage du pas-à-pas au
crossbar a été la rapidité avec laquelle les fabricants
australiens ont pu adopter le nouveau type d'équipement. Les
négociations entre le LME, l'APO, le STC et le TEI ont abouti
à un calendrier assez serré et, en fin de compte, plutôt
optimiste. Ce calendrier impliquait implicitement l'arrêt complet
de la fabrication par pas-à-pas sur une période de trois
ans. Après cette période, la seule façon d'étendre
progressivement les échanges était de remplacer d'autres
installations par des traverses et de récupérer les éléments
pour les réutiliser.
Parallèlement à la transformation des
procédés de fabrication, il était nécessaire
de planifier l'installation de crossbars et leur intégration
aux réseaux existants. Pour les réseaux des capitales,
cette planification devait également couvrir leur extension aux
zones ELSA. Ces plans, élaborés en 1960 et 1961, prévoyaient :
(1) Une capacité de numérotation pour l'ajout de zones
ELSA et une croissance sur au moins 20 ans, assortie de stratégies
de croissance satisfaisantes.
(2) Un réseau de commutation pour les départs d'appels
en mode pas à pas, avec accès aux destinations pas à
pas et crossbars.
(3) Un réseau de commutation pour les départs d'appels
en mode pas à pas, avec accès aux destinations pas à
pas et crossbars.
La deuxième exigence était la plus restrictive, car elle
imposait une conception du réseau permettant une liaison pas
à pas jusqu'au remplacement de tous les sélecteurs pas
à pas, premier et deuxième. Dans le cas de Sydney et de
Melbourne, cela impliquait une importante numérotation à
sept chiffres et des commutations supplémentaires. Selon l'utilisation
de ces commutations supplémentaires, le réseau ainsi créé
pouvait comporter davantage de centraux principaux, davantage de centraux
secondaires dans une ou plusieurs zones de centraux principaux ou des
centraux terminaux comptant plus de 10 000 numéros. Une
combinaison des trois s'est avérée nécessaire.
L'utilisation de la commutation en tandem dans les réseaux crossbar
était une préoccupation majeure. Après avoir vécu
pendant un demi-siècle avec les contraintes de la numérotation
progressive et les efforts d'après-guerre pour enfermer Sydney
et Melbourne dans une camisole de force à six chiffres, la commutation
crossbar était considérée comme la solution à
une multitude de problèmes. Malheureusement, l'Australie n'avait
aucune expérience de réseau local contrôlé
par registre, et aucun réseau étranger n'était
suffisamment similaire au nôtre pour servir de modèle.
La structure tandem finalement adoptée, après de longues
réflexions, comportait des éléments empruntés
au réseau hiérarchique interurbain et à la pratique
progressive. Des études détaillées menées
dans chaque État ont permis de concevoir des systèmes
spécifiques à chaque ville, adaptés aux conditions
locales.
Pendant un certain temps après l'introduction du crossbar, on
a pensé que les tandems pas à pas pourraient acheminer
la majeure partie du trafic commuté en tandem, mais cette solution
s'est rapidement avérée inefficace. Des réseaux
tandems crossbar ont donc été mis en place dès
le début du programme crossbar. Ces réseaux initiaux,
qui nécessitaient peu de modifications ultérieures, ont
servi de base au développement jusqu'à l'introduction
du centre électronique AXE en 1981.
L'une des options offertes par l'ARF était la possibilité
de remplacer le premier étage de commutation d'un central pas
à pas par un crossbar, en utilisant des circuits SR-B avec des
registres standard et des sélecteurs de groupe crossbar.
Ce système apportait une solution efficace à certains
problèmes de réseau et constituait un élément
essentiel des réseaux nationaux. On espérait que ce dispositif
constituerait une méthode économique pour donner le contrôle
des registres à tous les centraux pas à pas existants.
Les économies réalisées au niveau des jonctions
compensant la majeure partie du coût de la conversion, des études
de réseau détaillées ont toutefois montré
que les économies réalisées étaient insuffisantes
dans la plupart des cas. Un nombre modeste de ces équipements
a été installé sur les réseaux urbains au
cours des premières années, mais leur application principale
se situait dans les zones rurales. Deux améliorations de l'équipement
ARF d'origine ont été disponibles peu après la
mise en place des premiers centraux et ont trouvé une utilisation
considérable dans les réseaux métropolitains. Le
sélecteur de groupe à trois étages a été
spécialement conçu pour offrir la plus grande disponibilité
nécessaire aux grands centraux et, lorsqu'il est devenu disponible
en 1967, il a été largement utilisé dans les centraux
terminaux et les tandems terminaux (Y). Une caractéristique importante
était qu'un sélecteur de groupe à deux étages
existant pouvait être facilement mis à niveau vers un sélecteur
à trois étages. Le REG-LP n'était pas initialement
destiné aux réseaux métropolitains, mais il offrait
de meilleures fonctionnalités à moindre coût et
est devenu le registre privilégié. Cependant, les installations
REG-LM existantes étaient généralement étendues
jusqu'à la limite d'un module (100 Regs) avant de passer au REG-LP,
ce qui prenait généralement un temps considérable.
En 1968, on constatait la présence d'un grand nombre d'équipements
automatiques très anciens, ce qui posait problème de maintenance.
Depuis 1930, pratiquement aucun remplacement n'avait été
effectué, sauf en cas d'urgence, et même dans ce cas, les
équipements étaient fréquemment réutilisés.
Un problème particulier concernait les équipements antérieurs
à 2000, tous installés avant 1939. Les pièces de
rechange étaient devenues difficiles à obtenir et les
normes STD étaient inexistantes. En septembre 1968, l'objectif
était de remplacer tous les équipements antérieurs
à 2000 avant 1982. Cet objectif a été largement
atteint.
L'introduction du STD était initialement limitée aux centraux
principaux crossbar et pas à pas, mais il est rapidement apparu
que la pénétration STD souhaitée ne pouvait être
atteinte sans l'intégration des autocommutateurs DSR. Ces autocommutateurs
étaient conçus pour donner accès à un autocommutateur
manuel au niveau O et ne pouvaient ni répéter la numérotation
à ce niveau ni transmettre les signaux de multimétrie.
Il existait deux types principaux d'autocommutateurs DSR (2000 et SE50),
chacun doté d'un grand nombre de circuits légèrement
différents. Des modifications ont été développées
par le Laboratoire de conception de circuits et tous les autocommutateurs
DSR des réseaux des capitales ont été mis à
niveau pour intégrer le STD.
À partir de 1970 environ, une longue série d'études
a examiné la possibilité de moderniser les registres afin
d'offrir de nouvelles fonctionnalités et de corriger certaines
déficiences de conception constatées en service. Elles
ont abouti à l'approbation de principe d'un programme de modernisation
des registres (REMO) en janvier 1975. Ce programme a été
retardé lorsqu'il a été constaté que la
méthode la plus économique pour les réseaux de
la capitale consistait à convertir les centraux à l'AREi.
Le programme a finalement débuté en 1977/78. Les principaux
objectifs étaient de fournir de nouvelles installations, d'améliorer
les performances du réseau et de réduire les coûts
de maintenance. À long terme, l'AREi Il a permis de réaliser
des mises à niveau ultérieures par des modifications logicielles.
Les sections suivantes décrivent quelques caractéristiques
intéressantes de chaque réseau.
SYDNEY
Sydney avait déjà introduit des numéros à
sept chiffres et ne disposait d'aucun niveau de réserve dans
la zone ELSA.
De plus, le niveau Y (0), utilisé pour prolonger la durée
de vie de la numérotation à six chiffres, a dû être
récupéré pour l'accès STD.
Le plan de numérotation et de commutation pas à pas utilisait
une numérotation à sept chiffres au niveau 6, avec des
sélecteurs secondaires de niveau 6 à chaque central principal
pour créer des centraux principaux supplémentaires. Cela
a permis d'utiliser le niveau à la fois pour récupérer
le niveau Y et pour alimenter la plupart des centraux ELSA.
Sur certains centraux principaux, des troisièmes sélecteurs
ont été installés pour certains codes afin d'éliminer
les liaisons satellite et les problèmes d'impulsions qu'elles
créaient. Sur le reste du réseau, chaque central a été
étendu, si nécessaire, par une numérotation à
sept chiffres sur un code de réserve. Ce code était généralement
réservé au crossbar.
Le niveau 6 de numérotation devait être suffisant pendant
environ 20 ans et aucun plan spécifique n'a été
élaboré pour une croissance au-delà. Une possibilité
était de convertir tous les équipements au contrôle
des registres et de développer un nouveau plan de numérotation
exempt de contraintes progressives. Si cela ne se justifiait pas, le
niveau 8 pouvait être utilisé de la même manière
que le niveau 6, et le plan a délibérément laissé
ce niveau à un niveau légèrement engagé
afin de réduire les coûts.
D'importantes économies de réseau étaient attendues
grâce au crossbar, grâce à l'indépendance
de la numérotation et de la commutation, ainsi qu'à la
possibilité de routage alternatif. Il était de notoriété
publique qu'un réseau tandem conçu pour le pas-à-pas
ne serait pas optimal pour le crossbar. Les seuls réseaux existants
utilisant un routage alternatif étaient les réseaux interurbains
hiérarchiques, qui ont servi de point de départ à
la conception du tandem de Sydney. On pensait que le choix de l'emplacement
des tandems pouvait avoir une influence considérable sur les
coûts. Ces considérations ont conduit au développement
de deux outils d'aide à la conception. Le premier était
un enregistreur de dispersion du trafic qui fournissait des détails
sur les destinations et les durées d'un échantillon d'appels
provenant d'un central pas-à-pas. Il empruntait certaines techniques
aux équipements américains de télépéage
automatique et utilisait l'ordinateur électronique SILLIAC de
l'Université de Sydney pour traiter les kilomètres de
bande perforée produits par l'enregistreur. Une suite de programmes
a d'abord produit une matrice du trafic point à point existant,
qui a servi de base à la prévision du trafic futur. Il
s'agissait de la première utilisation technique significative
des ordinateurs électroniques en Australie. Les systèmes
actuels de prévision du trafic dans les télécommunications
sont directement issus de ces travaux.
Il s'agissait de la première application des ordinateurs électroniques
à l'ingénierie des télécommunications en
Australie et l'une des premières au monde (les systèmes
actuels de prévision du trafic de Telecom Australia sont directement
issus de ce système original). En effet, à cette époque,
des bandes AMA similaires étaient encore traitées aux
États-Unis par des équipements électromécaniques
sophistiqués. Ces données étaient utilisées
comme données d'entrée pour un programme informatique
appelé « COMET » (Calcul des Tandems les
Plus Économiques), qui fournissait des estimations des quantités
et des coûts de jonction pour des configurations de tandem spécifiques.
Certaines simplifications étaient nécessaires pour adapter
le problème aux capacités des ressources disponibles.
Il s'agissait de la première application des ordinateurs électroniques
à l'ingénierie des télécommunications en
Australie et l'une des premières au monde (les systèmes
actuels de prévision du trafic de Telecom Australia sont directement
issus de ce système original). En effet, à cette époque,
des bandes AMA similaires étaient encore traitées aux
États-Unis par des équipements électromécaniques
sophistiqués. Ces données ont été utilisées
comme données d'entrée pour un programme informatique
appelé « COMET » (Calcul des Tandems les
Plus Économiques) qui fournissait une estimation des quantités
et des coûts de jonction pour des configurations de tandem spécifiées.
Certaines simplifications ont été nécessaires pour
adapter le problème aux capacités des ordinateurs disponibles,
mais les résultats ont constitué un guide utile pour la
conception du réseau. De manière inattendue, ils ont montré
qu'un système de routage alternatif avait une capacité
considérable à s'adapter et à optimiser le réseau
tandem disponible. Par conséquent, compte tenu des conditions
applicables au modèle, le choix du nombre et de l'emplacement
des tandems n'était pas aussi crucial que prévu.
Le réseau tandem proposé pour Sydney accordait donc la
plus grande importance aux itinéraires de jonction existants
et proposés, les tandems étant situés à
des nuds externes de l'usine. Sans surprise, la plupart de ces
tandems étaient des tandems à paliers existants. La figure
illustre le réseau adopté.

Le premier central à barres croisées de Sydney se trouvait
à Petersham et fut mis en service en mai 1963, avec 2 800
lignes installées.
Il s'agissait d'une extension d'un central à commutation progressive
dans une nouvelle salle de commutation et constituait le modèle
pilote d'ARFI02 avec signalisation MFC. Cette mise en service eut lieu
environ un an plus tard que prévu, en raison des nombreuses modifications
nécessaires pour répondre aux exigences de l'APO. À
cette époque, plusieurs installations dans différents
États étaient presque terminées et attendaient
les retours d'information concernant les modifications de dernière
minute nécessaires. Le deuxième central de Sydney se trouvait
dans un nouveau bâtiment à Haymarket, mis en service à
la fin de la même année. Environ 3 000 abonnés
existants de City South furent ainsi concernés. Le débit
d'appel prévu pour Haymarket dépassait la limite des plans
de regroupement d'abonnés LME disponibles et deux nouveaux plans
de regroupement furent élaborés pour les conditions australiennes.
La capacité d'appel des marqueurs d'abonnés a également
été dépassée et un nouveau marqueur à
plus haut débit a été produit. Ce marqueur est
finalement devenu la norme pour tous les centraux ARF australiens.
En deux ans, le crossbar a été installé dans la
plupart des centraux de la zone de Sydney et, jusqu'en 1982, la croissance
s'est faite presque entièrement par crossbar. Une petite quantité
de crossbar a été récupérée, réutilisée
lorsqu'une salle de commutation était presque pleine et pour
répondre à la croissance dans les zones à faible
croissance, notamment à la campagne.
Le premier programme crossbar à Sydney comprenait l'équipement
SR-B pour environ 40 000 lignes. Cet équipement a été
installé principalement pour libérer les sélecteurs
de groupe pas à pas nécessaires à la numérotation
à sept chiffres. Il a également permis de réaliser
des économies de jonction grâce à l'utilisation
du routage direct, mais comme cela ne suffisait pas à justifier
le changement, le SR-B a été peu utilisé sur le
réseau, sauf dans les zones ELSA où le partage pas à
pas était inadéquat. Le réseau tandem a également
été mis en place assez rapidement, mais certains sites
ont dû attendre la construction de bâtiments, notamment
à Lakemba. Les tandems ont dû être mis en place avant
la conception des relais de ligne tandem et des solutions de fortune
utilisant des relais de commutateurs terminaux ont été
utilisées. Ces relais ont ensuite été remplacés
par des relais tandem et réutilisés dans les commutateurs
terminaux. Des sélecteurs de groupe à trois étages
ont été introduits dès leur disponibilité
et ont été largement utilisés dans la première
étape de commutation des commutateurs terminaux et dans les tandems
Y. Même avec des commutateurs à trois étages, la
taille des étages de commutation était limitée
en raison de la complexité des interconnexions homogènes
et de la politique de mise à disposition de bâtiments pour
des périodes de dix ans. Par conséquent, en 1980, de nombreux
commutateurs terminaux et la plupart des tandems Y constituaient en
réalité deux ou plusieurs entités distinctes.
Début 1979, le réseau de Sydney comptait un million d'abonnés
en service. Le réseau avait atteint 1 116 971 services
en juin 1981, dernière année avant l'introduction de l'AXE.
MELBOURNE
Les plans du crossbar à Melbourne étaient légèrement
différents de ceux de Sydney. Heureusement, le niveau 7 était
disponible et a été utilisé pour les zones ELSA,
permettant une mise en réseau progressive plus simple. La numérotation
à sept chiffres était principalement assurée par
l'ajout de troisièmes sélecteurs à certains niveaux
des centraux principaux. Ce système pouvait à terme fournir
une centaine de groupes de 10 000 lignes distincts dans chaque
zone de central principal. Le niveau 9 a été retenu pour
une utilisation ultérieure possible en complément du niveau
7 dans les zones ELSA, car il était peu utilisé.
Les données de trafic nécessaires à la conception
du réseau tandem crossbar ont été générées
par un enregistreur de dispersion des appels développé
localement. Plus simple que celui de Sydney, il permettait toutefois
d'obtenir des échantillons plus importants car les temps d'attente
n'étaient pas mesurés.
Lors de la conception du réseau tandem, des catégories
spécifiques de trafic ont été ciblées, représentant
une part importante du trafic total. La situation était très
différente de celle de Sydney, avec seulement quatre sites tandem
pour desservir l'ancienne zone à tarif unitaire. Ces sites étaient
situés près du centre du réseau et chacun disposait
de trois étages de commutation spécialisés. Les
facteurs de transmission ont joué un rôle important dans
la conception et les tandems ont été choisis pour minimiser
la quantité de câble de 0,9 mm (20 lb) nécessaire.
Les zones extérieures devaient être desservies par cinq
tandems plus petits avec des étages X et Y.
Les tandems intérieurs ont été installés
en 1964, suivis plus tard d'un cinquième tandem à Lonsdale.
Comme à Sydney, la conception d'origine n'a pratiquement pas
nécessité de modifications.
Une politique de récupération et de réutilisation
assez importante des équipements à paliers a été
adoptée pendant les premières années de l'introduction
du crossbar. Les avantages à court terme étaient de différer
le coût de nombreuses installations initiales et de disposer dès
le départ de commutateurs crossbar de grande taille. La concentration
progressive sur un nombre réduit de sites présentait également
des avantages. Cette politique a permis d'améliorer l'efficacité
du réseau, mais le processus a nécessité une main-d'uvre
importante.
Environ 70 000 lignes pas à pas ont été converties
au SR-B, dont 20 000 dans les zones périphériques
où des centraux pas à pas existants avaient été
installés avant ELSA et nécessitaient une capacité
de commutation supplémentaire, ce qui pouvait être réalisé
de la manière la plus économique.
Des sélecteurs de groupe à trois étages et des
commutateurs REG-LP ont été utilisés aussi largement
sur le réseau de Melbourne que sur celui de Sydney. Une stratégie
adoptée à Melbourne consistait à remplacer les
étages IGV par de nouveaux équipements et à réutiliser
l'étage récupéré pour étendre les
GIV. Par conséquent, les centraux de Melbourne avaient tendance
à disposer de circuits plus ordonnés que ceux de Sydney.
Ces différences étaient minimes et pourraient s'expliquer
par des ressources plus limitées à Sydney.
Le premier nouveau central AREi I en Australie a été installé
à Elsternwick en juin 1976 à titre d'essai sur le terrain.
En juin 1981, le réseau de Melbourne comptait 1 019 870
en service.
ADÉLAÏDE
Le plan national de numérotation d'Adélaïde prévoyait
une numérotation définitive à sept chiffres avec
l'indicatif régional 08 et les chiffres B 2, 3 et 4. Initialement,
la numérotation à six chiffres devait toutefois être
maintenue avec l'indicatif régional 082.
Le plan du réseau prévoyait des niveaux de réserve
pour les zones ELSA. La zone intérieure était desservie
par trois tandems Y et un seul tandem X. Le réseau d'Adélaïde
se caractérisait par des zones de central plus vastes que celles
des autres villes australiennes, ce qui a permis l'utilisation d'un
réseau tandem aussi simple. La zone sub-métropolitaine
était desservie par un tandem central.
La numérotation à sept chiffres a été introduite
sur le réseau le 30 septembre 1973. L'indicatif régional
est passé de 082 à 08 et la plupart des numéros
sont passés à sept chiffres, le premier chiffre étant
2 ou 3. Certains numéros à six chiffres ont été
conservés aux niveaux 5, 6, 7 et 8, ce qui a nécessité
une commutation et une analyse spécifiques pour les distinguer
des numéros nationaux dont l'indicatif régional était
085, etc.
Lorsqu'il a été décidé d'introduire l'AREi
I, le réseau du central de Salisbury, situé à la
périphérie d'Adélaïde, a été
choisi pour un essai sur le terrain des techniques nécessaires
à la conversion d'un central ARF existant en ARE..
En juin 1981, le réseau comptait 352 513 en service.
BRISBANE
Le central de Cleveland, dans la région de Brisbane, a été
choisi pour l'un des centraux ARF d'essai sur le terrain et a été
mis en service en 1963.
Comme Adélaïde, Brisbane a reçu la numérotation
définitive à sept chiffres le 07, utilisant les chiffres
B 2, 3 et 4, mais initialement à six chiffres. Un réseau
de quatre tandems X et six tandems Y a été adopté,
suivi d'un septième par la suite. Environ 20 000 lignes
SR-B ont été installées, principalement aux débuts
du crossbar. La numérotation à sept chiffres a été
introduite en 1975.
En juin 1981, le réseau comptait 357 299 en service.
PERTH
Perth disposait également d'une numérotation initiale
à six chiffres, puis a été entièrement convertie
à sept chiffres le 29 octobre 1977. Le réseau tandem
comprenait deux tandems X et sept tandems Y, ainsi qu'un « tandem
X supérieur » pour renforcer la hiérarchie.
Perth a connu une croissance plus rapide entre 1960 et 1980 que les
autres capitales et disposait donc d'une proportion plus faible d'équipements
à paliers. Le SR-B a été davantage utilisé,
ce qui a permis au réseau de compter, en juin 1981, 311 243
en service.
HOBART
Le plan de numérotation à cinq chiffres de Hobart étant
inadapté au développement, un nouveau plan à six
chiffres a été élaboré pour couvrir l'ensemble
de la zone secondaire de Hobart. La ville et les zones ELSA adjacentes
étaient desservies par un seul tandem à paliers croisés.
En juin 1981, le réseau comptait 58 824 services, dont 7,4 %
à paliers croisés ou à registres.
CANBERRA
La capitale australienne a connu une croissance très rapide entre
1960 et 1980, notamment en raison de l'incendie du central de Civic
en 1961. Le réseau affiche la plus forte pénétration
de crossbar de toutes les capitales. Les deux centraux restants ont
été équipés du SR-B afin de créer
un réseau entièrement contrôlé par registre.
Au départ, le réseau de Canberra faisait partie d'une
zone plus vaste à six chiffres, mais la partie la plus éloignée
a été séparée et dotée d'un nouvel
indicatif régional lorsque la croissance a créé
des difficultés. La zone de numérotation fermée
de Canberra englobe toujours l'ensemble de la zone mineure, mais le
nombre de centraux et de services en dehors de la ville et de ses banlieues
est très faible.
Un seul central tandem était installé à Civic et
a desservi le réseau jusqu'en 1980 environ, date à laquelle
un deuxième central tandem a été installé
à Deakin. Ce système visait principalement à renforcer
la sécurité.
L'une des caractéristiques du réseau était la présence
de plusieurs grands autocommutateurs privés (PABX) de 2 000
lignes ou plus. Ces derniers ont été construits avec des
équipements ARF modifiés permettant l'accès au
réseau en tant que commutateurs terminaux.
DÉVELOPPEMENT DU RÉSEAU RURAL
En 1960, la commutation automatique avait eu un impact modeste et assez
inégal sur les zones rurales. Le rapport annuel 1959/60 indiquait
que sur 539 718 services ruraux, 63 % étaient avec
la magnéto et 37 % automatiques.
Les chiffres détaillés pour la Nouvelle-Galles du Sud
montraient que 37 % étaient magnéto, 20 % CB
et 43 % automatiques. Cependant, les réseaux de Canberra
et de Newcastle représentaient plus d'un quart des lignes automatiques.
La construction de réseaux de centraux automatiques ruraux n'avait
guère progressé. La figure 3.6 montre comment les centraux
automatiques standard étaient concentrés dans quelques
zones.
Au cours des 20 années suivantes, la plupart des centraux
ruraux de moyenne et grande taille furent convertis à l'automatique.
Ces installations étaient peu variées et les cas spécifiques
présentés ici peuvent être considérés
comme représentatifs d'une catégorie.
Il y en avait tellement qu'une liste détaillée des lieux
et des dates serait de peu d'utilité. Le Plan de téléphonie
communautaire a défini de nouveaux objectifs en matière
d'automatisation des centraux nationaux, en mettant l'accent sur la
construction de réseaux. Ce processus a démarré
assez lentement, faute d'équipements adaptés, mais une
initiative, le système de tarification de groupe, a immédiatement
stimulé le processus en transformant de nombreuses liaisons interurbaines
de courte distance en jonctions. Dans la mesure du possible, deux centraux
automatiques situés à une distance de tarif unitaire ont
pu se connecter par ligne commutée. Les codes d'accès
ont été choisis, dans la mesure du possible, pour s'intégrer
au plan de réseau final. Un plan de commutation et les grandes
lignes d'un plan de numérotation, attribuant des codes STD aux
zones de numérotation fermées, ont été intégrés
au Plan de téléphonie communautaire. Par la suite, les
détails de la numérotation ont été étendus
aux centraux individuels et le plan de commutation a été
révisé à la lumière des études économiques
des zones secondaires individuelles. La conception systématique
des réseaux nationaux n'avait jamais été tentée
auparavant à l'échelle envisagée dans le Plan de
téléphonie communautaire, et il a fallu plusieurs itérations
avant que les réseaux ne prennent leur forme définitive
et que les équipements nécessaires ne soient finalisés.
Dès la publication des principaux axes du Plan Téléphonique
Communautaire (vers 1959), tout central automatique installé
dans un centre secondaire était conçu en tenant compte
des implications du réseau et du plan de numérotation
de la zone. Cela allait au moins jusqu'à l'attribution d'indicatifs
aux zones de tarification et aux centraux au sein de ces zones. Jusqu'en
1963, ces centraux étaient mis en place progressivement, ce qui
imposait certaines contraintes aux installations disponibles. À
partir de 1963, des centraux ARF furent installés dans les centres
secondaires. Jusqu'en 1970, ils utilisaient le système REG-LM
et étaient conçus en partant du principe que les centraux
ARM offriraient à terme des fonctions de commutation de niveau
supérieur. Afin de minimiser les interventions manuelles.
L'accès automatique aux centraux de la zone mineure a été
assuré, autant que possible, de manière temporaire. Certains
STD ont également été fournis à l'aide d'équipements
à tarif fixe.
Trois centraux ARM 50 ont été installés comme centres
mineurs en 1969/70 à Gladstone, Jamestown et Melrose, en Australie-Méridionale,
conformément aux propositions du LME, mais avant même leur
installation, leur coût était devenu évident. Comme
indiqué plus en détail ailleurs, des études ont
été lancées pour développer un centre mineur
à deux fils. Entre-temps, la conversion des centraux manuels
en centres automatiques ne pouvait être différée
et l'utilisation de l'ARF de type métropolitain, telle que décrite
ci-dessus, s'est poursuivie.
Il devenait également évident que les coûts initiaux
de tout type de centre de commutation mineur étaient plus élevés
que prévu et que nombre des centres mineurs proposés ne
pouvaient être justifiés économiquement.
Les plans de commutation ont été progressivement révisés
et leurs résultats ont eu un impact sur la conception du centre
secondaire ARF.
Les premières livraisons massives d'équipements pour centres
secondaires ARF, équipés de REG-ELP/H4 et de systèmes
STD complets, ont eu lieu en 1969/70, date à laquelle un grand
nombre de centres secondaires avaient été équipés
de REG-LM.
Le nouvel équipement a été principalement utilisé
dans les nouveaux centres secondaires, mais, dans la mesure des ressources
disponibles, il a également servi à moderniser les centres
plus anciens. La priorité a été donnée aux
centres secondaires à commutation progressive, équipés
de SR-B et de premiers étages à barres croisées.
Le remplacement des équipements REG-LM a été moins
prioritaire, les gains étant généralement moindres.
À cette époque, une approche uniforme de la conception
des centres secondaires avait été établie. La plupart
des centres secondaires se trouvaient dans des villes de 1 000
abonnés ou plus et utilisaient l'ARF pour la commutation locale
et secondaire. La plupart des centraux terminaux de la région
étaient de petite taille et utilisaient un mélange de
magnétos. Centrales APO RAX, centraux ARK-D et ARK-M.
La numérotation à six chiffres était standard,
plusieurs zones mineures étant incluses dans une seule zone de
numérotation. Les centrales APO RAX ne pouvaient pas bénéficier
d'une numérotation fermée et conservaient l'ancienne configuration
de numéros locaux à deux ou trois chiffres, tous les autres
étant préfixés par « 0 ».
Un central interurbain manuel était fréquemment installé
au même endroit que le central mineur, généralement
à commande par manchon. Lorsqu'un central automatique à
commande par paliers avait été installé avant le
central mineur, il était converti en central à commande
par registres avec SR-B. Dans certaines grandes villes, il existait
un ou deux centraux de banlieue. Il pouvait s'agir de centraux ARE,
ARK ou à commande par paliers. En cas de commande par paliers,
le central reliait le central au centre mineur par trombone.
La conversion des centraux terminaux ruraux à l'automatisation
utilisant ARK a été poursuivie avec une certaine vigueur
dès que l'équipement est devenu disponible. La plupart
de ces centraux se trouvaient dans des bâtiments portables et
des conceptions standard pour des tailles allant jusqu'à 1 400
lignes ont été développées.
Certains ARK ont été utilisés dans les banlieues
périphériques des capitales et d'autres grands réseaux
urbains.
Il arrivait que deux de ces centraux portables soient installés
côte à côte pour desservir plus de 2 000 lignes,
mais, bien que cette solution soit plus économique que l'installation
d'un central crossbar permanent, des objections environnementales se
posaient.
En juin 1981, on comptait 2 686 centraux ARK en service en Australie.
On comptait quelques grandes zones rurales de l'ordre de 100 000
habitants, vivant de l'industrie ou du tourisme, et disposant de réseaux
comprenant plusieurs grands centraux. Wollongong, Geelong et la Gold
Coast en sont trois exemples typiques.
On trouvait également de grandes villes rurales disposant de
réseaux similaires, mais de plus petite taille. Ces réseaux
étaient similaires à ceux des capitales, mais à
plus petite échelle et généralement intégrés
dans une zone mineure, en partie rurale. Les centres secondaires de
ces réseaux devaient être conçus individuellement
pour fonctionner comme un centre tandem pour la zone bâtie et
un centre secondaire pour la périphérie. Ces réseaux
comportaient généralement des centraux installés
progressivement avant l'arrivée des crossbars, qui devaient être
modifiés pour s'intégrer à un réseau plus
vaste. La solution habituelle consistait à installer des SR-B.
Ces réseaux plus petits étaient souvent plus difficiles
à concevoir que les réseaux plus vastes, mais plus homogènes,
des capitales. Malheureusement, très peu d'entre eux ont été
documentés sous une forme publiable. Les détails des intentions
figurent dans les plans d'aménagement, mais la mise en uvre
s'est souvent écartée de ces plans.
Une étape importante dans le remplacement des centraux manuels
a été franchie en 1977, lorsque la Tasmanie est devenue
le premier État à se doter de services locaux entièrement
automatiques.
Durant cette période, il a fallu s'attaquer aux problèmes
des longues lignes PPE. Bien qu'il s'agisse principalement d'un problème
d'installation externe, des modifications d'équipements de commutation
ont également été nécessaires. Il s'agissait
notamment de fournir des installations pour connecter les abonnés
de plusieurs zones tarifaires à un central. Deux systèmes
radio ont également été développés,
comprenant des concentrateurs sur les sites de répéteurs.
Pour les abonnés les plus éloignés, un système
satellite a été développé avec une certaine
intégration de la commutation et de la transmission, mais cela
dépasse le cadre de cet historique.
LE PASSAGE AU NORMALISÉ
Le Plan de téléphonie communautaire a apporté trois
modifications majeures au réseau interurbain :
( 1) L'extension des zones à tarif unitaire a immédiatement
réduit de moitié le trafic interurbain, permettant aux
standards interurbains existants de répondre à la croissance
pendant environ cinq ans sans extension.
(2) L'engagement d'une utilisation intensive du STD rendait probable
que le trafic interurbain commuté manuellement n'atteigne pas
les niveaux antérieurs à ELSA avant de nombreuses années.
(3) Cela a entraîné une certaine intégration des
réseaux locaux et interurbains, rendant les anciennes limites
moins pertinentes.
Bien que ces limites soient devenues floues, certaines parties du système
étaient encore presque exclusivement concernées par la
commutation interurbaine. Aux fins de cette section, l'équipement
de commutation interurbaine est défini comme l'équipement
secondaire et supérieur du centre de commutation, les centraux
d'assistance manuelle et l'équipement de taxation.
ELSA a été introduit le 1er mai 1960, et de nombreux appels
interurbains courte distance ont été reclassés
comme locaux.
En 1959/60, on comptait 134 000 000 d'appels interurbains,
et ce nombre a été réduit à 75 000 000
en 1960/61, première année complète d'ELSA. Cela
a permis un répit pour le développement d'équipements
STD complets. Entre-temps, l'équipement STD point à point
conçu par l'APO était disponible et pouvait être
utilisé à partir de points d'origine, soit pas à
pas, soit à partir de points d'origine crossbar, lorsque les
conditions étaient favorables.
Bien que le réseau interurbain manuel puisse répondre
à cette demande réduite, de fortes incitations économiques
s'imposaient pour fournir le STD aussi rapidement et largement que le
permettaient les autres contraintes. Des liaisons point à point
furent donc établies là où la fourniture de lignes
interurbaines était adéquate et où des flux de
trafic importants étaient impliqués, utilisant l'équipement
conçu localement. En juin 1967, 19 % de tous les appels interurbains
étaient effectués par les abonnés via ces liaisons.
Une nouvelle phase dans la fourniture du STD fut franchie avec la mise
en service des centraux ARM en 1967/68/69.
Les premiers furent mis en service à Sydney, Canberra, Newcastle,
Geelong et Launceston entre septembre et décembre 1967. Cela
permit l'accès à un large éventail de destinations
depuis les lignes d'environ 250 000 abonnés. Le réseau
ARM a été rapidement étendu pour inclure toutes
les capitales et 18 centres secondaires en juin 1969. La croissance
des appels interurbains connectés manuellement a été
pratiquement stoppée en juin 1968, et le pic de ces appels a
été atteint en 1968/69, avec 114 200 000 appels
interurbains manuels. Les installations ARM ont remplacé certaines
liaisons STD point à point, mais ces équipements ont trouvé
de nouvelles applications sur les liaisons prioritaires, notamment entre
les centres secondaires ruraux et les capitales, une application envisagée
dès le départ. De nouvelles liaisons de ce type ont continué
à être mises en place et étendues à grande
échelle.
Entre 1960 et 1967, le plan de commutation interurbaine avait été
modifié de manière presque méconnaissable suite
à des études de coûts détaillées.
Les principales causes étaient les coûts initiaux plus
élevés des crossbars par rapport aux systèmes progressifs,
ainsi qu'une baisse générale des coûts de transmission.
Il en résulta une réduction du nombre de centres de commutation
et un déclassement de la plupart des centres restants. Initialement,
ces changements furent freinés par la nécessité
de disposer de suffisamment de centraux ARM pour facturer tous les appels
interurbains. La mise en place de la facturation dans les centres secondaires
ARF a levé cette contrainte et a entraîné une nouvelle
réduction du nombre de centres de commutation à quatre
fils. L'ensemble du processus consistait à optimiser la conception
des crossbars aux besoins du réseau et à adapter la structure
du réseau à la nature des équipements crossbars.
En 1967, ce processus était en grande partie achevé, mais
de nouvelles réductions furent encore réalisées
jusqu'en 1980, lorsque les propositions de centres secondaires individuels
furent examinées.
Le tableau suivant présente le nombre de centres de commutation
prévus à différentes dates.
Numéro de centre de commutation proposé
Classification 1960 1968 1975 1978
Principal _____ 6___ 5 __ 5 ___ 5
Primaire _____43 ___0 __ 1 ___ 1
Secondaire _ 196 __55 __35 ___35
Mineur ____796 __300 _257 __210
Total ____1041 __360 _298 __251
Certains centres secondaires, notamment Goulburn et Griffith en Nouvelle-Galles
du Sud, ont été créés avant que les implications
des modifications du réseau ne soient pleinement prises en compte.
Quelques centres mineurs ont également été créés,
ce qui ne pouvait être justifié compte tenu des coûts
ultérieurs.
L'autre composante du réseau STD était le centre mineur
ARF avec REG-ELP-H4. Les premiers ont été installés
au cours de l'année 1969/70 et les détails sont fournis
dans le chapitre sur les réseaux nationaux. Pendant plusieurs
années, le réseau interurbain de l'opérateur est
resté quasiment inchangé, les efforts se concentrant sur
le STD. Il suffisait à répondre à la demande et
il était inutile d'abandonner un atout aussi précieux.
Il a été maintenu aussi indépendant que possible
du réseau STD, mais une certaine interopérabilité
était essentielle. Une politique a été adoptée :
les appels commutés par l'opérateur utilisaient le réseau
interurbain de l'opérateur pour atteindre le centre secondaire
cible et ne partageaient que la commutation du centre secondaire et
la liaison terminale avec les abonnés. Bien que le niveau d'appels
interurbains connectés manuellement n'ait jamais atteint le niveau
de 1958/59, de nouveaux centraux interurbains manuels étaient
encore nécessaires. Avec la conversion des petits centraux nationaux
en automatismes, leur trafic interurbain manuel a été
transféré vers d'autres centres, ce qui a entraîné
une croissance rapide de certains centraux interurbains. Le réseau
2VF et les centraux interurbains associés étaient obsolètes
et un nouveau type de central était nécessaire. LME proposait
un central de type AFG, intégré à un central interurbain
ARM. Après quelques modifications pour répondre aux exigences
australiennes, le premier fut installé à Wangaratta en
1969/70, suivi de dix autres au cours des quatre années suivantes.
L'interconnexion avec le réseau 2VF fut assurée, utilisant
des itinéraires interdits aux abonnés, mais les opérateurs
bénéficièrent également de l'accès
au réseau STD. À partir de cette date, le réseau
2VF connut un déclin constant.
Pour les centres d'assistance manuelle dépourvus d'ARM, l'APO
a conçu deux tableaux de commutation à quatre fils de
type cordon, appelés AFM 401 et AFM 402. L'AFM 401 était
un tableau de commutation à manchon modifié, conçu
en Nouvelle-Galles du Sud et installé dans le central téléphonique
d'outre-mer de Sydney et à Parkes. L'AFM 402 était un
projet plus ambitieux, développé dans le Queensland sous
la direction des Circuit Laboratories, et comprenait l'évaluation
du service, l'information sur l'annuaire et d'autres fonctions auxiliaires.
La croissance rapide du trafic des lignes interurbaines STD dépassait
les limites de l'ARM dans les capitales et un appel d'offres fut lancé
le 5 avril 1968 pour la construction d'un central interurbain de grande
capacité à Sydney, dont la mise en service était
prévue en 1973. Le système ITT I OC fut sélectionné
et adopté comme alternative au système à barres
croisées, lorsque cela était approprié. Il s'agissait
d'un système SPC plus flexible que le système Crossbar
et doté de fonctionnalités supplémentaires, notamment
la possibilité d'enregistrer les frais d'appel (CCR), un atout
majeur pour !SD. Il incluait également un nouveau type de poste
d'assistance manuelle avec affichage visuel des détails des appels
remplaçant les bordereaux. Ces postes pouvaient être situés
jusqu'à 400 km de l'équipement de commutation automatique.
Des centraux 10C ont été installés dans toutes
les capitales, à l'exception de Hobart, en commençant
par Waymouth à Adélaïde. Ils ont servi à la
fois à répondre à la demande de STD et à
fournir de nouvelles fonctionnalités difficiles, voire impossibles,
à mettre en place dans les centraux ARM. Les postes manuels ont
été adoptés comme standard afin de centraliser
la commutation de tout le trafic d'assistance manuelle vers les centraux
IOC, avec des groupes décentralisés de standards dans
les villes de campagne appropriées. Un central IOC a également
été installé à Bendigo afin d'évaluer
son adéquation aux centres plus petits. Cependant, ce fut la
seule installation de ce type. À mesure que les appels à
durée déterminée ont pris le relais des opérateurs
pour les appels simples de numéro à numéro, la
proportion d'appels interurbains, à durée fixe, à
facturation inversée et autres appels similaires a augmenté
et des politiques ont été élaborées pour
les éliminer. Cela a principalement été réalisé
par des changements administratifs et la sensibilisation des abonnés.
Au lieu de réserver des appels interurbains, les abonnés
ont été encouragés à effectuer un bref appel
pour savoir quand la personne recherchée serait présente.
Les appels à durée fixe ont disparu lorsque la congestion
du réseau a cessé d'être importante. Des surtaxes
ont été ajoutées pour décourager le recours
aux opérateurs.
Les appels à durée déterminée dans les téléphones
publics nécessitaient un nouveau type d'appareil, qui a été
introduit lorsque la disponibilité des appels à durée
déterminée était suffisamment importante pour le
justifier.
INWATS (un service proposant un tarif unitaire national aux frais des
abonnés sur les codes 008) a été introduit en 1979,
principalement comme une nouvelle fonctionnalité pour les abonnés
qui pouvaient l'utiliser pour améliorer le service à la
clientèle, mais il a également eu un léger impact
sur les appels à facturation inversée. En 1985, seuls
3 % des appels interurbains étaient encore passés par
les opérateurs.
L'appel à distance (ISD) a été introduit en 1976
grâce à la multimétrie et à la facturation
appliquée aux centraux 10C. Contrairement à l'appel à
distance (STD), il n'était disponible que sur demande. Il a été
suivi en 1980 par l'appel à distance avec enregistrement des
frais d'appel (CCR) des centraux disposant de l'identification de la
ligne appelante. En 1985, 78 % des appels internationaux étaient
passés par les abonnés.
LA TECHNOLOGIE CROSSBAR
Le commutateur crossbar a une longue histoire, mais jusqu'en 1935, il
n'était qu'une solution à la recherche d'un problème.
Jusqu'alors, il était considéré comme une alternative
robuste, fiable mais coûteuse aux sélecteurs électromécaniques.
Il n'était utilisé qu'en Suède dans deux applications
où la fiabilité et la robustesse justifiaient son coût.
Le système Crossbar n'a pris son essor que lorsque les connaissances
sur les liaisons et le contrôle des marqueurs ont été
approfondies. Cela a permis de construire des étages de commutation
de toute taille à partir de petites unités, et le commutateur
Crossbar était parfaitement adapté à ces utilisations.
Lorsque l'APO a décidé d'adopter le système Crossbar,
plusieurs systèmes étaient à divers stades de développement.
Un facteur déterminant dans le choix du système LME était
que les étages de commutation avaient déjà été
largement utilisés sur le terrain et pouvaient répondre
aux besoins de l'APO avec peu, voire aucune, modification de conception.
Par ailleurs, le système LME nécessitait de nombreux développements
pour répondre aux besoins de l'APO, qui étaient différents
de ceux des autres pays et plus étendus que la plupart . Cette
refonte a été facilitée par la modularité
de l'équipement, qui comportait quatre sous-systèmes relativement
indépendants :
(1) Les blocs de commutation avec leurs marqueurs associés ;
(2) Les ensembles de relais de signalisation de ligne et les circuits
de cordons.
(3) Registres
(4) Équipement de signalisation d'information, pour la communication
entre les registres et les marqueurs.
Initialement, les commutateurs crossbar Ericsson étaient
fabriqués sous licence par STC et TEI en Australie, qui fournissaient
alors les équipements pas à pas. En 1960, Ericsson acheta
Trimax Transformers Pty Ltd, rebaptisée LM Ericsson Pty Ltd (Ericsson
Australia) en 1963. Peu après, une nouvelle usine de production
fut construite par Ericsson à Broadmeadows, dans l'État
de Victoria, ce qui permit à Ericsson de conquérir un
tiers du marché des centraux téléphoniques publics
en Australie
BLOCS DE COMMUTATION
Les blocs de commutation initialement proposés par LME répondaient
à la quasi-totalité des besoins des APO et seuls deux
types supplémentaires ont été développés.
La conception des marqueurs a également été revue.
En raison des débits d'appel très élevés
dans les centraux urbains, deux nouvelles configurations d'étages
SL ont été produites, codées I0C et IOD. Il s'agissait
de simples extensions de groupements existants, sans aucun nouveau concept.
Cependant, il a également été nécessaire
de repenser le marqueur d'étage d'abonné afin de réduire
son temps de fonctionnement. Le nouveau marqueur, codé SLM/S,
est devenu la norme APO. Ce travail a été achevé
avant la mise en service des premiers centraux ARF.
L'autre nouveau bloc de commutation était le sélecteur
de groupe à trois étages, conçu par LME pour répondre
au souhait des APO de disposer d'un sélecteur de groupe ARF offrant
une plus grande disponibilité. Les deux premiers étages
utilisaient des bâtis de commutation identiques à ceux
du sélecteur de groupe ARF standard. Certains éléments
du marqueur étaient également identiques à ceux
du sélecteur à deux étages, mais un nouveau bâti
de marqueur était nécessaire. Une deuxième version
a été produite, permettant d'étendre un sélecteur
de groupe à deux étages existant à trois étages,
mais ne bénéficiant pas de certaines fonctionnalités
d'une nouvelle installation à trois étages. Les deux étaient
disponibles pour les installations en masse à partir de 1967.
Un nouveau marqueur de groupe était nécessaire pour la
version métropolitaine de l'ARF, principalement en raison de
la fonction de poste d'attente (décrite ci-dessous). Cette opération
a été réalisée avant la mise en service
des premiers centraux ARFI02. Tous les marqueurs ont nécessité
de légères modifications ponctuelles, au fur et à
mesure de l'introduction de nouvelles fonctionnalités. La plupart
d'entre elles concernaient des modifications du récepteur de
codes et de l'analyse des chiffres reçus.
CHANGEMENTS LIÉS À LA SIGNALISATION D'INFORMATION
Dans les sections suivantes, chaque évolution majeure est décrite
en premier lieu par ses objectifs. Ensuite, les modifications de signalisation
nécessaires à leur mise en uvre et, enfin, les modifications
des registres et des marqueurs.
L'offre initiale du LME décrivait un système MFC, qui
était une traduction directe de la signalisation CC utilisée
dans l'ARFI0I. La possibilité d'utiliser le MFC pour offrir des
fonctionnalités supplémentaires était évoquée
et prévoyait 15 signaux directs et six signaux inverses, avec
la possibilité d'augmenter le nombre de signaux inverses. Ce
chiffre était comparé à 11 et 3 dans l'ARFI0I.
La conception du nouveau langage de signalisation MFC, qui a véritablement
révolutionné la conception des systèmes de commutation,
est le fruit d'une collaboration entre l'APO et le LME.
Le premier a défini les problèmes et, en coopération
avec le LME, a élaboré des protocoles de signalisation
adaptés et la signification des signaux. La traduction matérielle
de ces informations a été principalement réalisée
par le LME.
Le système de signalisation reposait sur deux jeux de signaux
de contrôle. Le premier utilisait trois signaux pour contrôler
l'envoi des chiffres : envoyer le chiffre suivant. Envoi du premier
chiffre et de la fin de la sélection (c'est-à-dire qu'aucun
autre chiffre n'est nécessaire). Le deuxième ensemble
était utilisé après le signal de fin de sélection
pour indiquer le sort de l'appel ou le type de ligne atteinte :
ligne libre, ligne occupée, ligne marquée pour interception,
etc. Au total, six signaux de cette série étaient spécifiés
dans l'offre initiale.
D'autres signaux ont été introduits pour faciliter l'interfonctionnement
entre le pas-à-pas et le crossbar. La pratique du LME (et même
la pratique mondiale) consistait à insérer un registre
pour la traduction du signal en cas de changement de méthode
de signalisation. Un REG-U devait être installé à
l'interface entre le crossbar et le pas-à-pas, recevant les chiffres
MFC et transmettant les signaux décimaux. Un REG-H devait être
installé à l'entrée du réseau interurbain
et un REG-Y à la sortie.
Lors de la conception détaillée de l'ARFI02, il est rapidement
apparu que certains de ces registres pouvaient être éliminés
si un registre pouvait fonctionner dans deux ou plusieurs modes de signalisation,
en utilisant des signaux de contrôle pour lui indiquer le moment
de changement.
La première victime fut le REG-U. Lors de la phase initiale de
l'introduction du crossbar, presque toutes les jonctions sortantes disposaient
d'une signalisation décadique. Il a été établi
que l'intégration du REG-L à la signalisation décadique
et la suppression du REG-U entraîneraient d'importantes économies
initiales et peu ou pas de pénalités à long terme.
Cela impliquait la fourniture de signaux de contrôle pour passer
au mode décadique et spécifier les chiffres à envoyer.
Cela nécessitait plus de six signaux différents dans le
sens inverse et une cinquième fréquence a été
ajoutée pour permettre dix signaux.
L'examen plus approfondi des détails de l'interfonctionnement
entre le pas à pas et le crossbar sur les réseaux australiens
a permis d'identifier deux problèmes. Le premier était
que le REG-LM devait connaître la longueur du numéro pour
tous les appels, ce qui, compte tenu des grandes variations de longueur
des numéros existants, nécessitait une analyse beaucoup
plus approfondie que celle prévue dans la conception du registre.
Le deuxième était que les délais après numérotation
seraient très longs pour les appels vers les destinations crossbar,
qui débordaient via les tandems pas à pas. On craignait
que les abonnés habitués à la commutation pas à
pas concluent que l'appel était infructueux.
La solution adoptée pour minimiser le deuxième problème
a été l'introduction d'une zone d'attente au niveau du
premier sélecteur de groupe Crossbar. Les appels vers les destinations
Crossbar étaient commutés via le premier sélecteur
avant que l'abonné appelant n'ait terminé sa numérotation.
Si l'appel devait être commuté en mode Crossbar complet,
il était mis en attente jusqu'à ce que l'abonné
appelant ait terminé sa numérotation. Si la commutation
était effectuée par pas à pas, l'appel était
immédiatement commuté. Cela nécessitait que le
premier sélecteur indique à l'enregistreur qu'un appel
devait être mis en attente, et une autre série de signaux
de contrôle était nécessaire. De plus, comme le
premier sélecteur disposait d'un analyseur pour sélectionner
les itinéraires, il a été décidé
d'augmenter sa capacité d'analyse afin qu'il puisse analyser
la longueur des numéros pour l'enregistreur. Une autre série
de signaux de contrôle était nécessaire pour transmettre
les informations sur la longueur des numéros à l'enregistreur.
Une autre modification apportée à cette époque
a permis de transmettre certaines informations sur la catégorie
de l'abonné appelant à l'extrémité distante
de la connexion. Le processus de sélection de fin utilisait un
signal en deux parties et le registre envoyait initialement un chiffre
fictif en réponse au signal demandant la seconde partie. Ce chiffre
a ensuite été remplacé par une indication générale
de la catégorie de l'appelant.
Le résultat final de toutes ces décisions était
initialement appelé MFC-M. Il comportait cinq séries différentes
de signaux de contrôle, dont deux étaient utilisées
uniquement entre le registre et le premier sélecteur de groupe.
La mise en uvre nécessitait un registre entièrement
nouveau, le REG-LM, et un nouveau marqueur de sélecteur de groupe.
Le registre de la technologie CROSSBAR était presque deux fois
plus volumineux et deux fois plus coûteux que celui de l'ARFI0I,
et cette augmentation était principalement due aux fonctionnalités
d'interfonctionnement. Le nouveau marqueur était également
assez complexe en raison de la nécessité d'analyser la
longueur du numéro et le type d'équipement de terminaison.
Le temps de maintien du marqueur a également été
augmenté et différents circuits d'accès aux marqueurs
ont été conçus pour réduire les délais
lors de cette étape de commutation. Cela a été
réalisé en permettant à deux marqueurs de fonctionner
en équipe plutôt qu'indépendamment. Le nouvel étage
de sélection de groupe et le marqueur ont été baptisés
2/160 et l'ancien 1/80. Une allocation plus flexible de la disponibilité
et un routage alternatif plus polyvalent ont également été
proposés.
Peu après le développement de ce registre, le besoin est
apparu d'envoyer la zone d'origine d'un central au point de charge,
initialement un ARM. Grâce à une innovation astucieuse,
MFC a également réalisé cette opération
grâce à une séquence de signaux qui ne se produirait
normalement pas.
La conception de l'ARM a ensuite été abordée, ce
qui a nécessité la définition du langage de signalisation
MFC pour le réseau interurbain, appelé MFCT. À
ce stade, on a supposé que la signalisation MFC sur le réseau
interurbain serait totalement distincte de celle du réseau local.
Plusieurs types de registres seraient nécessaires pour les centraux
ARM :
REG-HI pour les appels provenant d'un central local, qui assurerait
l'interface entre le réseau local et le réseau interurbain
et déterminerait également le tarif et le définirait
dans le relais de ligne.
Lors de la conception de l'ARM, on a rapidement constaté que
la signalisation MFC nécessaire à la commutation interurbaine
était un sous-ensemble du système MFC-M, à l'exception
d'un ajout : le contrôle du suppresseur d'écho. Cette
fonctionnalité n'était nécessaire que pour une
très faible proportion d'appels, et la nécessité
d'un registre à l'interface du réseau interurbain pour
répéter les signaux MFC a été remise en
question. Il a été établi qu'un REG-HI ou un REG.YI
pouvait être supprimé après la commutation de l'appel
via le central ARM (à l'instar des marqueurs dans les centraux
ARF), sauf s'il s'agissait du dernier ARM ou si l'appel nécessitait
des suppresseurs d'écho. Le registre était nécessaire
au dernier ARM pour permettre l'analyse de l'extrémité
terminale. D'autres cas particuliers se sont présentés
où le registre devait rester connecté. Les REG H2, Y2
et E ne pouvaient pas être supprimés car ils étaient
décadaires côté entrant. Les économies réalisées
grâce à la suppression des registres étaient bien
supérieures aux coûts supplémentaires liés
au choix du moment opportun, et cela a été intégré
à la conception de l'ARM. Le nombre de registres H2, Y2 et E
nécessaires dans un ARM était faible et il a été
décidé de les regrouper dans un seul REG-EHY2.
Comme précédemment, le langage de signalisation MFC-M
a été développé en collaboration par l'APO
et le LME, et la majeure partie de l'implémentation détaillée
a été réalisée par le LME. Le schéma
de signalisation du suppresseur d'écho était unique et
permettait de les fournir dans une configuration de transmission optimale,
ce qui n'était pas possible avec les configurations utilisées
ailleurs.
Pour le développement de la fonction REG-E, il a été
nécessaire de concevoir le schéma de signalisation MFC
pour les centraux ARK (MFC-K). Pour la terminaison des appels, il était
pratiquement identique au MFC-M, mais certains signaux supplémentaires
devaient être fournis entre lui et le REG-E. La conception de
l'ARK-M n'était pas encore finalisée lors de l'installation
des premiers ARM, tout comme celle de la partie REG-E du REG-EHY2.
Ces registres étaient très volumineux et coûteux,
ce qui a entraîné une augmentation significative du coût
initial d'installation de l'ARM, qui était de toute façon
bien supérieur à celui estimé dans les études
de réseau de 1960, basées sur une technologie progressive.
Ce coût était inacceptable pour les centres secondaires,
et seuls trois centres secondaires ARM ont été installés.
Le dernier élément majeur de la conception du registre
devait être le REG-LP, considéré comme une version
simplifiée du REG-LM adaptée aux zones rurales. Cependant,
de nouvelles installations ont été ajoutées au
cours du développement, modifiant complètement sa fonction
et sa forme.
Ces modifications résultaient des retours d'expérience
sur le terrain concernant les installations de REG-LM en zones rurales
et du coût initial plus élevé que prévu de
l'ARM. En attendant le développement du REG-LP, plusieurs centraux
ARF avaient été installés dans des centres secondaires,
avec des liaisons temporaires pour assurer une commutation locale et
quelques routes STD, en attendant l'installation d'un centre secondaire
ARM. L'objectif était de supprimer les liaisons temporaires lors
de l'installation des ARM.
L'expérience acquise avec ces installations a clairement démontré
que la plupart des fonctions d'un ARM pouvaient être assurées
de cette manière. La commutation au sein de la zone avec numérotation
fermée était assurée et des méthodes relativement
simples de blocage du trafic entre zones non adjacentes avaient été
conçues. La majeure partie du trafic STD pouvait être acheminée
sur des routes utilisant des relais multimètres provisoires pas
à pas, et le coût de la commutation du reste via le centre
secondaire était faible. Il n'était pas possible de contrôler
les centraux ARK-M, mais l'ARK-D pouvait être utilisé.
L'attention s'est alors portée sur la possibilité d'utiliser
ces dispositions provisoires comme base pour la conception d'un centre
secondaire ARF. Quelques améliorations mineures étaient
nécessaires, mais le coût pouvait être maîtrisé
en utilisant le centre secondaire parent comme « panier trop rigide
». Les routes STD depuis le centre mineur étaient limitées
aux routes à tarif fixe (pouvant acheminer la majeure partie
du trafic), tandis que la facturation complexe devait être effectuée
au centre secondaire.
L'ARF devait identifier la zone d'origine de tout appel STD et la transmettre
à l'ARM. Il devait également identifier les appels intra-mineurs
non soumis à tarif unitaire et les transmettre à l'ARM
pour facturation. Ces appels seraient « trombonnés »,
mais les volumes de trafic seraient généralement assez
faibles. Il a été décidé que le contrôle
d'ARK-M serait appréciable, mais pas indispensable.
Cela nécessitait une modification assez importante du REG-LP,
qui était encore considéré comme un registre relativement
simple.
Cependant, le LME avait développé une nouvelle architecture
de registre en Suède. Sa principale caractéristique était
que des fonctions complexes nécessitant des temps de maintien
courts étaient exécutées sur des périphériques,
et que le registre lui-même était relativement simple et
peu coûteux. Il était conçu pour simplifier l'ajout
de nouvelles fonctionnalités.
Lorsque les nouvelles fonctionnalités REG-LP ont été
spécifiées, le LME a suggéré, plutôt
que de modifier davantage le REG-LP existant, partiellement développé,
de le repenser en utilisant la nouvelle architecture.
L'un des atouts de cette proposition était qu'il s'agissait d'un
enregistreur potentiellement très puissant, mais que si certaines
fonctionnalités n'étaient pas nécessaires, les
périphériques appropriés pouvaient être omis.
Il était également possible d'utiliser le même enregistreur
pour les réseaux métropolitains, où il offrait
des avantages économiques par rapport au REG-LM et offrait la
possibilité d'ajouter des fonctionnalités telles que la
numérotation par touches et l'identification de la ligne appelante.
Avec le nouveau enregistreur, le coût de contrôle d'ARK-M
était inférieur à celui d'avant, car il était
principalement réalisé par des périphériques.
Cette fonctionnalité a donc été ajoutée
à la conception et le enregistreur associé a été
baptisé REG-ELP. Parallèlement, il a été
reconnu que les ARM ne seraient jamais nécessaires pour contrôler
ARK-D et les parties concernées du REG-EHY2 n'ont jamais été
conçues. Une dernière modification a été
apportée à la conception du centre secondaire ARF. La
facturation des appels STD intra-zone secondaire au centre secondaire
parent avait toujours suscité des inquiétudes. Une solution
a été trouvée grâce à la liaison réentrante.
Ces appels étaient commutés par le sélecteur de
groupe vers une voie de retour vers la même entrée d'étage
via un relais multimètre local à débit fixe. Une
fois le concept établi, une évolution évidente
a consisté à utiliser un relais multimètre à
débit variable, la tarification étant déterminée
par un analyseur capable de calculer la facturation de tout appel provenant
de la zone secondaire. L'analyseur a été baptisé
REG-H4 et cet ajout a permis de créer un centre secondaire ARF
doté de toutes les fonctionnalités. Ce centre est devenu
le centre secondaire standard, avec un coût initial environ quatre
fois inférieur à celui de l'ARM, désormais réservé
aux centres de commutation d'ordre supérieur. La seule fonction
de l'ARM que le REG-LP ne proposait pas était l'analyse de terminaison.
Un REGYILP a été développé à cette
fin, mais est arrivé trop tard pour être largement utilisé.
De nombreux centres mineurs étaient encore proposés, dont
le coût de mise en place d'une installation ARF était bien
supérieur aux économies réalisées.
Ces économies concernaient principalement, mais pas exclusivement,
les équipements de transmission, dont les coûts diminuaient
rapidement. La possibilité de concevoir un centre mineur moins
coûteux, basé sur la proposition initiale ARK-503, a été
étudiée pendant quelques années, mais aucune solution
efficace n'a été trouvée.
CENTRALES ARK
Des ARK étaient utilisés en Suède avec un registre
simple et une numérotation de type RAX depuis quelques années.
L'APO souhaitait une numérotation fermée et la possibilité
de travailler avec des parents pas à pas ou à barres croisées.
Le type pas à pas était le plus urgent et la spécification
était simple. La conception a été réalisée
principalement par le LME et les centres étaient disponibles
dès 1963. La conception de l'ARK-M était liée à
celle de ses parents, d'abord l'ARM, puis le centre mineur ARF. Sa production
fut donc retardée et les premières livraisons en gros
eurent lieu en 1969/70. Une troisième version, l'ARK-L, fut produite.
Elle fonctionnait avec un parent manuel et pouvait être convertie
en ARK-M lorsque ce parent devenait automatique.
RELAIS DE LIGNE
Des efforts considérables furent consacrés à la
conception des relais de ligne. Il en existait de nombreux types, selon
le type de signalisation de ligne, le type de central et le type de
registre, le cas échéant, auquel ils devaient être
connectés. Leur conception fut continue de 1960 à 1975
environ, conformément à une priorité définie
dans une liste de conception. La capacité du LME à produire
de nouveaux modèles et celle de l'APO à les tester et
à les approuver constituèrent une limitation importante
pendant la majeure partie de cette période.
Les retards dans la production de la gamme complète de relais
de ligne ont contraint le personnel d'installation de l'État
à développer des solutions provisoires. Celles-ci prenaient
souvent la forme de légères modifications d'un modèle
existant, avec des fonctionnalités similaires à celles
requises. Certaines modifications ont ensuite servi de base à
une conception standard, ce qui a constitué une contribution
significative des ingénieurs d'APO à la conception des
crossbars. Dans d'autres cas, un ensemble de relais de « conversion
» a été ajouté à un ensemble de relais
standard. Ces ensembles de relais de conversion étaient souvent
basés sur des ensembles de relais de ligne pas à pas,
car les conditions d'interface avec un central ARF étaient similaires
à celles du pas à pas.
SCHÉMAS DE SIGNALISATION MFC MARK II ET MARK III
En 1967, l'introduction de nouvelles fonctionnalités dans les
crossbars, notamment l'interception centralisée et l'identification
de la ligne appelante, a été envisagée.
Cela nécessitait des signaux de contrôle supplémentaires
et l'occasion fut saisie de revoir l'ensemble du système de signalisation.
Le résultat fut le système de signalisation MFC Mark II,
plus logique et offrant une marge de manuvre considérable
pour des extensions ultérieures. Dès lors, toutes les
nouvelles conceptions de registres permirent de modifier la signification
des signaux par re-strapping. Ce système, avec de légères
modifications, fut adopté par le CCITT sous le nom de système
de signalisation R2.
L'introduction de ce système s'avéra bien plus difficile
que prévu. Il était nécessaire de modifier tous
les registres d'une zone de numérotation fermée avant
de pouvoir utiliser les nouveaux signaux. Un système moins ambitieux
fut donc élaboré, baptisé Mark III (14). Il permit
de répondre aux besoins immédiats en signaux de contrôle
et ne nécessita des modifications que dans les centraux où
les nouvelles fonctionnalités étaient nécessaires.
Le système put être étendu pour offrir à
terme les mêmes fonctionnalités que Mark II.
LE PROJET REMO ET AREII
Le système de signalisation Mark III était l'un des éléments
d'un important projet de modernisation des enregistreurs, nécessaire
à l'introduction de nouvelles fonctionnalités. Ce projet
impliquait des modifications majeures du REG-LM et, bien que le REG-LP
ait été conçu pour intégrer ces nouvelles
fonctionnalités, certaines modifications étaient nécessaires,
ainsi que l'installation de périphériques supplémentaires.
Les principales fonctionnalités ajoutées étaient :
(1) Le système de signalisation Mark III, indispensable pour
les versions (3) et (4)
(2) L'identification de la ligne appelante, indispensable pour les versions
(3) et (4)
(3) L'enregistrement des frais d'appel (CCR) en standard sur les versions !SD
et en option sur les versions STD
(4) Des fonctionnalités d'interception plus puissantes, incluant
la possibilité de traçage automatique des appels malveillants
(5) La possibilité de numérotation VF par touches
(6) Un plus grand nombre de classes de service
(7) Plusieurs améliorations mineures, issues de l'expérience
acquise sur le terrain, ont été intégrées
à la prochaine mise à niveau majeure.
Les travaux de conception nécessaires furent achevés et
un programme de modernisation des registres (REMO) fut approuvé
en janvier 1975.
Peu de temps auparavant, le LME avait proposé à l'APO
un nouveau système, initialement appelé ANA-30, qui remplaçait
essentiellement les registres ARF et certains marqueurs par un système
SPC. Des essais sur le terrain se déroulèrent parallèlement
à la planification du REMO. Ce système offrait de meilleures
installations que les registres à relais existants et, dans les
installations de taille raisonnable, son coût était bien
inférieur. En fait, dans la plupart des cas, le remplacement
des REG-L existants par l'ANA30, plutôt que leur mise à
niveau, était économiquement justifié. Le volume
de ce type d'équipement, utilisé de cette manière,
était suffisant pour justifier les coûts de développement
et d'introduction. Il fut donc décidé de remplacer tous
les REG-LM et la plupart des REG-LP des réseaux métropolitains
par le nouvel équipement. Les échanges utilisant le registre
électronique ont reçu la nouvelle désignation AREi
1. Le programme REMO a débuté en 1977/78 et devait être
achevé dans les zones métropolitaines en cinq ans.
CENTRAUX MANUELS
Entre 1960 et 1970, les effets combinés d'ELSA et de STD ont
retardé le besoin de nouveaux centraux manuels et la production
d'un nouveau modèle a été reléguée
au second plan. Des besoins spécifiques (à Newcastle et
Brisbane) ont déclenché le développement d'une
nouvelle carte sans fil. Ce système, appelé AFG, utilisait
l'ARM comme élément de commutation. La conception reposait
sur le central LME existant, avec des modifications de circuit pour
répondre aux besoins de l'APO, notamment un système formel
de mise en file d'attente pour les appels. L'APO ayant récemment
conçu une console sans fil pour une application différente,
celle-ci a servi de base aux postes sans fil.
L'opérateur disposait de registres différents pour les
abonnés, ce qui permettait de proposer différentes fonctionnalités.
Celles-ci comprenaient des routes réservées à l'opérateur,
principalement pour l'accès au réseau 2VF, et des méthodes
de gestion du trafic vers des routes surchargées sans gêner
indûment les abonnés recherchant la même route.
Un développement antérieur à la conception de l'AFG
concernait un standard téléphonique à quatre fils
de type cordon. Le besoin s'est fait sentir avec l'ouverture du câble
SEACOM vers le Canada. Les circuits internationaux fournis sur ce câble
nécessitaient une commutation à quatre fils à Sydney,
et un ensemble de standards téléphoniques à manchon
a été modifié à cet effet. La principale
modification a été l'installation d'un standard téléphonique
à double fil de type porteuse. Prises et fiches, et permettant
aux opérateurs de disposer d'un circuit vocal à quatre
fils. Ce modèle a été adopté comme norme
pour les petits centraux interurbains nécessitant une commutation
à quatre fils et a été baptisé AFM401. Cependant,
un seul autre a été installé à Parkes.
Lorsque l'application de ce type de standard a été reconnue
comme relativement large, il a été décidé
de produire une conception plus moderne. La conception a été
réalisée dans le Queensland sous la direction générale
du Laboratoire de circuits du siège. Ce fut le dernier standard
interurbain à cordon développé pour l'Australie
et a été baptisé AFM402.
CENTRAUX INTERURBAINS SPC
La conception ARM présentait des limites de taille maximale et
il était difficile de l'agrandir ou d'y ajouter de nouvelles
installations. C'est pourquoi l'APO s'est tenue informée des
développements des centraux SPC et, en 1968, un appel d'offres
a été lancé pour un grand central interurbain à
Sydney. Le système IOC proposé par I.T.&T. était
considéré comme répondant aux exigences et supérieur
à l'ARM pour les très grandes installations. En 1970,
l'utilisation de l'IOC a été approuvée comme alternative
à l'ARM lorsque cela était économiquement justifié.
L'IOC devait être utilisé autant que possible pour de nouvelles
fonctionnalités telles que l'interception centralisée
et l'enregistrement des taxes d'appel. Le développement logiciel
pour répondre aux besoins spécifiques de l'APO a été
un processus assez long et le premier central IOC a été
mis en service en 1975.
L'un des composants du système IOC était un nouveau type
de poste d'exploitation aux caractéristiques attrayantes (21).
En particulier, les postes d'exploitation pouvaient être situés
jusqu'à 400 km de l'équipement de commutation. Cela a
permis une approche totalement nouvelle de l'assistance aux opérateurs.
Différentes fonctionnalités ont été ajoutées
au fil du temps, notamment la multimétrie ISD, l'enregistrement
des taxes d'appel ISD et l'INWATS.
|
INSTALLATIONS PILOTES DE CENTRAUX
ARK CROSSBAR
En 1959, la Poste australienne a adopté
le système crossbar fourni par L. M. Ericsson de Stockholm,
en Suède, comme future norme pour les centraux départementaux
australiens. Ce système utilise trois principaux types
d'équipements de commutation automatique :
Il existe l'ARM pour les principaux centres de commutation interurbains,
l'ARP pour les centraux métropolitains et les grands centraux
nationaux, et l'ARK pour les centraux nationaux plus petits.
Chaque type est subdivisé en fonction des applications.
Par exemple, parmi les équipements ARK, on trouve les centraux
ARK 511, ARK 521 et ARK 523.
Le plus petit central ARK est l'ARK 511, qui dispose d'une capacité
maximale de 90 lignes d'abonnés et de sept jonctions, tandis
que l'ARK 521 compte 2 000 lignes d'abonnés et environ
130 jonctions, selon les besoins du trafic local.
L'ARK 511 et l'ARK 521 sont des centraux terminaux sans possibilité
de commutation de transit.
Cependant, cette possibilité est offerte. Dans l'équipement
ARK 523, qui combine un ARK 521 et un étage de commutation
de transit.
Cet article décrit les équipements ARK 511 et ARK
521.
Il sera notamment fait référence à un central
ARK 511 installé à Reeves Plains
et à un central ARK 521 installé à
Gladstone, tous deux en Australie-Méridionale.
Le central de Gladstone, d'une capacité initiale de 300
lignes, a été mis en service le 30 novembre 1963.
Il s'agissait du premier central ARK mis en service en Australie.
Ces deux centraux ont été installés par le
personnel technique du ministère : l'ARK 511 dans
un petit bâtiment transportable à ossature bois et
à revêtement métallique, et l'ARK 521 dans
un bâtiment permanent en maçonnerie.
FONCTIONNEMENT DE L'ARK
Généralités
Dans le système crossbar de L.M. Ericsson, utilisé
à l'étranger, les centraux ARK 511 et ARK 521 sont
des centraux terminaux des centres de groupe ARM ou ARK 523.
Dans ce système, tous les appels provenant du central terminal
sont établis par des registres centraux du centre de groupe.
Un code multifréquence (M.F.C.) est utilisé pour
signaler au central terminal ARK si le numéro requis est
disponible. Le central ARK est donc équipé d'un
équipement de réception et de connexion de codes,
mais aucun registre n'est requis pour établir un appel.
Il est toutefois courant de fournir des registres locaux (REG-L)
qui servent de registres de débordement pour accepter les
appels provenant de l'ARK vers les numéros disponibles
de l'ARK, lorsque toutes les jonctions vers le centre de groupe
sont occupées. Deux REG-L peuvent être installés
sur un ARK 511 et jusqu'à sept sur un ARK 521.
L'un des problèmes fondamentaux de l'introduction de ce
type de central ARK en Australie résidait dans le fait
que les centraux ARK devaient interagir avec les centraux automatiques
à commutation pas à pas existants, dépourvus
de registres centraux. Comme l'ARK ne pouvait pas le faire avec
un système de numérotation fermé, une modification
de conception était nécessaire.
Deux possibilités se présentaient :
I. Laisser l'équipement ARK inchangé et concevoir
un registre central adapté à un central automatique
à commutation pas à pas.
2. Laisser les centraux pas à pas intacts et modifier
l'équipement ARK.
L'A.P.O. a décidé d'adopter la seconde solution
pour les centraux initiaux, qui seraient installés avant
la mise en service des centraux ARM 50 ou ARK 523. Les négociations
entre l'A.P.O. et L.M. Ericsson ont abouti à la conception
d'un nouveau type de registre discriminant REG-D, qui serait installé
au central terminal ARK.
Ce nouveau registre conserve les fonctions du REG-L, c'est-à-dire
qu'il gère les connexions locales si toutes les jonctions
vers le central parent automatique sont occupées, mais
dispose en plus de fonctionnalités permettant de distinguer
les appels locaux des appels destinés au central parent
automatique. Si l'appel est destiné à un abonné
local, le REG-D déconnecte immédiatement la jonction,
enregistre les informations relatives aux chiffres locaux et organise
l'établissement de l'appel local. Avec un commutateur parent
ARM 50, tous les chiffres seraient reçus par le commutateur
parent et les informations relatives au numéro local seraient
renvoyées à l'ARK avec MFC. Tous les centraux ARK
actuellement installés en Australie sont équipés
de REG-D. Les équipements de réception de codes
et les REG-L ne sont pas utilisés. Dans un commutateur
crossbar, il est important de minimiser la durée de maintien
de l'équipement commun. Des dispositifs de temporisation
et de verrouillage de ligne sont prévus pour empêcher
le maintien de cet équipement. En général,
un commutateur ARK ne comporte qu'un seul marqueur, qui peut être
utilisé plusieurs fois pour établir un appel. Cet
équipement se déconnecte automatiquement d'une boucle
de maintien en 2 à 3 secondes. Le REG-D se libère
temporairement si la numérotation n'est pas terminée
dans les 90 secondes.
Si un appel est passé vers un abonné ou une jonction
occupée, le REG-D se libère temporairement après
cinq secondes. Certains autres relais se libèrent également
après un délai prédéterminé.
Le verrouillage de ligne est une condition appliquée à
la ligne d'un abonné lorsque l'équipement maintenu
par l'abonné se libère.
La boucle de maintien est déconnectée de l'équipement
et une tonalité de nouvelle tentative est envoyée
à la ligne de l'abonné.
Interfonctionnement avec d'autres centraux
Le central terminal ARK 511 REG-D peut être relié
soit à un central automatique, appelé « central
à occupation avancée », soit à
un central manuel. Le central ARK 521 REG-D peut disposer de quatre
routes directes vers des centraux automatiques ou manuels, en
plus de son unique central automatique à occupation avancée.
Le terme « occupation avancée » s'applique
au central automatique distant, car tous les appels provenant
du central ARK occupent une jonction vers ce central lorsque l'abonné
décroche son combiné. La tonalité est transmise
du central à occupation avancée à l'abonné
appelant, dont les informations numériques sont ensuite
répétées à la jonction et au REG-D
du central ARK.
Le terme « route directe » désigne
les autres centraux qui peuvent interagir avec le central terminal
ARK. Avant qu'un abonné ARK puisse être connecté
à une jonction à routage direct, il doit composer
un indicatif à un ou plusieurs chiffres. Le REG-D établit
ensuite une nouvelle connexion entre l'abonné appelant
et la jonction souhaitée. Si le central à routage
direct est automatique, une seconde tonalité est émise
depuis ce central, indiquant que la numérotation peut commencer.
Si le central à routage direct est manuel, une sonnerie
retentit jusqu'à ce que l'opérateur réponde.
Si un central ARK interagit uniquement avec des centraux manuels,
la tonalité est transmise par le REG-D plutôt que
par le central à occupation avancée. Le REG-D reçoit
l'indicatif initial du central souhaité et établit
une nouvelle connexion entre l'abonné appelant et la jonction
souhaitée. Lorsque le central ARK est connecté à
un autocommutateur automatique à occupation avancée,
tous les chiffres composés par un abonné de l'ARK
sont répétés vers ce central ; l'abonné
appelant compose donc uniquement le numéro d'entrée
de l'abonné automatique. De même, si le central à
occupation avancée a accès à d'autres autocommutateurs
automatiques, par exemple dans un réseau métropolitain,
l'abonné ARK peut être commuté en tandem par
le central distant vers n'importe quel abonné du réseau
en composant uniquement le numéro d'entrée. Toutefois,
si une connexion est requise entre l'ARK 521 et un autocommutateur
automatique à voie directe, l'abonné ARK 521 doit
composer un préfixe et attendre une seconde tonalité
du autocommutateur automatique à voie directe avant de
composer le numéro d'entrée de l'abonné souhaité.
Les appels entrants du central automatique
d'occupation avancée vers l'ARK ne peuvent être dirigés
que vers un abonné de l'ARK et non via l'équipement
ARK vers des jonctions directes.
Seuls les derniers chiffres du numéro d'annuaire sont requis
par le central ARK pour établir un appel du central d'occupation
avancée vers un abonné ARK.
· Les chiffres précédents du numéro
d'annuaire peuvent être utilisés ou absorbés
avant la prise de la jonction vers l'ARK.
Les appels sur les routes directes vers le central ARK ne peuvent
être dirigés que vers les abonnés ARK.
Deux modes de fonctionnement sont possibles. Pour les appels entrants
d'autres centraux automatiques sur FIR-L-N, seuls les derniers
chiffres du numéro d'annuaire sont requis par le central
ARK pour établir l'appel, de la même manière
que pour les appels provenant du central d'occupation avancée.
Lors d'un appel provenant d'un autre autocommutateur sur un poste
relais manuel FDR-L-M, le numéro d'annuaire complet doit
être composé dans l'autocommutateur ARK. Dans ce
cas, l'abonné appelant dans l'autocommutateur d'origine
doit composer suffisamment de chiffres de préfixe pour
obtenir une jonction avec l'autocommutateur terminal ARK, puis
attendre la tonalité avant de composer le numéro
d'annuaire complet de l'abonné de l'autocommutateur ARK.
Cette deuxième méthode doit être utilisée
pour les appels sur des routes directes depuis les autocommutateurs
ARK, car dans ce cas, le temps nécessaire pour obtenir
une jonction avec l'autocommutateur terminal ARK peut être
supérieur à celui autorisé par la pause internumérique.
De même, un autocommutateur manuel reçoit la tonalité
de l'autocommutateur ARK avant que l'opérateur ne compose
le numéro d'annuaire complet de l'abonné souhaité.
Les codes d'accès et les routes associés au central
ARK 521 de Gladstone sont présentés à la
figure 1.
Dans ce réseau, Laura est le central automatique à
occupation avancée. Ainsi, les abonnés de Gladstone
qui appellent Laura composent les numéros d'annuaire de
Laura. De même, les abonnés de Laura composent les
numéros d'annuaire de Gladstone, mais les abonnés
de Gladstone et de Wirrabara qui s'appellent par la route directe
doivent préfixer leur numéro d'entrée d'annuaire
par le préfixe 81.
Dans ce système de jonction, une fonction supplémentaire
de débordement est prévue pour les appels de Gladstone
vers Wirrabara. Wirrabara étant également accessible
depuis Laura, les appels seront acheminés de Gladstone
vers Wirrabara via les sélecteurs Laura si toutes les jonctions
de la route directe sont occupées.
Fig. 1 Inter-exchange
Access de Gladstone ARK 521.
ÉQUIPEMENT ARK 511
Présentation de l'équipement
Étage sélecteur SL : Le central
a une capacité initiale de 30 lignes d'abonnés,
extensible par unités de 30 lignes, jusqu'à un total
de 90 lignes.
Un central de 30 lignes est équipé d'un commutateur
à barres croisées SL1, avec 10 lignes verticales
et 30 lignes horizontales.
Le fonctionnement d'un commutateur à barres croisées
Ericsson à 20 lignes horizontales a été décrit
par Strachan. Un commutateur à 30 lignes horizontales est
similaire, mais la position non utilisée de la barre HA/HB
est utilisée pour la connexion à un troisième
ensemble de contacts.
Les sorties des 10 lignes verticales sont multipliées horizontalement
afin que les équipements connectés à l'une
d'elles puissent être commutés sur l'une des 30 lignes
d'abonnés. Les 10 verticales (entrées) sont connectées
en permanence à des ensembles de relais de jonction (FDR),
des ensembles de relais de connexion locaux (SNR) ou des registres
de discrimination (REG-D), chacun d'entre eux pouvant être
commuté via SL1 vers n'importe quelle ligne d'abonné.
Les ensembles de relais SNR, FDR et REG-D sont appelés
« appareils ».
Un central de 60 lignes comporte en outre deux commutateurs crossbar
SL2 et SL3.
Les sorties des verticales des commutateurs sont multipliées
horizontalement, de sorte que chaque unité de 30 lignes
d'abonnés ait accès à 15 verticales. Les
verticales sont également multipliées verticalement
pour fournir 15 entrées pour la connexion aux SNR, FDR
et REG-D.
La multiplication des verticales est parfaitement illustrée
par le « diagramme du poulet » également
décrit par Strachan (5). Le regroupement des commutateurs
pour les centraux ARK de 30, 60 et 90 lignes est illustré
à la figure 2.
Fig. 2.-Grouping
Plans for ARK 511 for ~0-60-90 Lines.
On constate que le central de 90 lignes dispose des commutateurs
supplémentaires SL4 et SL5, dont 15 verticaux sont multipliés
horizontalement et verticalement selon le schéma de regroupement
de 60 lignes. Dans ce cas, il reste 15 entrées, chacune
pouvant être commutée vers l'une des 90 lignes d'abonnés.
Relais de ligne d'abonné LR/BR/BLR :
Il s'agit d'un ensemble de trois relais pour chaque ligne d'abonné,
qui appelle le marqueur pour établir un appel ou envoie
une tonalité de nouvelle tentative en cas de verrouillage
de ligne.
Marqueur M : Cet ensemble de relais contrôle
la sélection d'un chemin et établit une connexion
via l'étage SL entre un abonné et un appareil. Il
s'agit de l'équipement le plus complexe utilisé
dans le central. Il ne peut y avoir qu'un seul M par central.
Circuit de connexion local (SNR) : Il s'agit
du relais utilisé pour connecter deux abonnés lors
d'une communication locale. Il est constitué d'un pont
de transmission : un côté A et un côté
B, auxquels sont respectivement connectés l'abonné
appelant et l'abonné appelé. Le SNR occupe deux
verticales : une pour le côté A et l'autre pour
le côté B. Un central 511 peut accueillir jusqu'à
six SNR.
Ensembles de relais de jonction FDR, FIR, FUR :
Ils permettent détablir des appels entre lARK
511 et son central parent. FDR indique un fonctionnement bidirectionnel,
FUR sortant de lARK et FIR entrant vers lARK. Les
jonctions vers les centraux manuels magnéto, manuels CB
(batterie centrale) et automatiques nécessitent différents
types densembles de relais FDR, FIR et FUR.
(a) FDR-L-N, FIR-L-N et FUR-L-N sont utilisés sur les jonctions
vers un central automatique.
(b) FDR-V-M est requis sur les jonctions vers un central manuel
magnéto.
(c) FDR-L-M est utilisé sur les jonctions vers un central
manuel CB. (Dans lARK 521, FDR-L-M est également
utilisé sur les jonctions à acheminement direct
vers les centraux automatiques).
Connecteur de recherche de registre RS : Il
organise les connexions entre un FDR, un FIR ou un FUR-L-N et
le REG-D pour tous les appels dans le cas dun central ARK
511 avec autocommutateur automatique doccupation avancée.
Registre de discrimination REG-D : Ce relais
peut être connecté via une ligne de jonction ou directement
à létage SL. Il permet de distinguer les appels
locaux des appels sortants. Il stocke les chiffres locaux et établit
les connexions avec labonné ARK appelé.
PBX, AX et LFR : Il sagit de relais divers.
Le PBX permet la connexion des abonnés PBX, lAX permet
dattribuer aux abonnés différentes classifications
si nécessaire et le LFR est le relais dalarme.
Dispositions de commutation - ARK 511
Transfert vers un central manuel.
Appels dorigine : Lorsquun abonné
décroche son combiné, le marqueur M (Fig. 3)
est pris. M identifie l'abonné et exploite les lignes horizontales
correspondant à sa position dans le multiple SL. Simultanément,
M recherche un REG-D libre. Si un REG-D libre est trouvé,
M établit la connexion entre l'abonné et le REG-D
en exploitant la verticale SL associée au REG-D. La boucle
de l'abonné retient le REG-D, qui renvoie la tonalité.
M libère. Si aucun REG-D libre n'est trouvé, M est
libéré après quelques secondes et exploite
la ligne de l'abonné, qui renvoie alors la tonalité
de nouvelle tentative. L'abonné est alors bloqué
en ligne et le restera jusqu'à ce qu'il raccroche son combiné.
Cependant, si un REG-D est libre, l'abonné compose le numéro
souhaité et les chiffres sont stockés et analysés
dans le REG-D, qui détermine s'il s'agit d'un appel local
ou d'un appel manuel.
Appel local : Lorsque REG-D a reçu tous les
chiffres, il saisit M et lui demande de rechercher et de sélectionner
un relais de connexion local libre, SNR. REG-D transfère
alors les dizaines et les unités de labonné
appelé à M, qui teste létat de la ligne
de labonné B. Si la ligne appelée et un SNR
sont libres, M établit la connexion vers le côté
B du SNR sélectionné en effectuant lopération
des lignes horizontales et verticales SL appropriées. M
redirige ensuite labonné appelant via létape
SL vers le côté A du SNR ; ce réacheminement
est appelé « saut ». M et REG-D libèrent.
Le SNR transmet la sonnerie interrompue et la tonalité
dappel aux lignes des abonnés B et A respectivement.
Si l'abonné appelé est occupé ou qu'il n'y
a pas de SNR libre, l'abonné A reçoit une tonalité
de rappel du REG-D pendant quelques secondes, puis la ligne est
verrouillée et la tonalité de rappel se poursuit.
M et REG-D se libèrent.
Si l'abonné appelé est en ligne verrouillée
ou présente un défaut de ligne, M se libère
et l'abonné appelant est également verrouillé.
Le temps nécessaire pour effectuer un saut est de 400 ms
maximum. REG-D envoie une sonnerie continue à l'abonné
appelant après la composition du dernier chiffre, jusqu'à
ce que REG-D soit libéré. La tonalité appropriée
est alors appliquée.
Sans cette tonalité, l'abonné appelant se retrouverait
sans tonalité pendant ce délai post-numérotation
et pourrait mettre fin à l'appel.
Appel vers un central manuel : Une fois que REG-D
a reçu tous les chiffres du code manuel, il appelle M,
qui recherche alors un FDR libre. Si un FDR libre est trouvé,
M organise la liaison entre labonné appelant et le
FDR sélectionné. REG-D se libère. Après
la sonnerie continue initiale de REG-D, le FDR émet une
sonnerie interrompue. En labsence de FDR libre, M se libère
et bloque la ligne de labonné.
Appels entrants depuis un central manuel : Un FDR est dabord
pris en charge par le central manuel. Le FDR, présent dans
le multiple de labonné, prend alors M et une recherche
de REG-D libre est effectuée comme pour un appel sortant.
Dans ce type dappel, le REG-D doit recevoir tous les chiffres
du numéro dannuaire de labonné appelé.
Après la réception du dernier chiffre, REG-D, qui
a reconnu l'appel provenant d'un FDR, transfère les chiffres
des dizaines et des unités de l'abonné appelé
à M. M teste alors l'état de la ligne de l'abonné.
Si l'abonné est libre, M organise la connexion de l'abonné
au FDR via l'étape SL. Le FDR transmet alors la sonnerie
interrompue à l'abonné et la tonalité de
sonnerie interrompue à l'opératrice. M et REG-D
libèrent.
Si la ligne de l'abonné appelé est occupée,
verrouillée ou défectueuse, M demande au FDR de
transmettre une tonalité de réessai à l'opératrice.
M et REG-D libèrent ensuite.
Dispositions de commutation - ARK 511
Central à ressources partagées vers central automatique
à occupation avancée.
Appel initial : Lorsquun abonné ARK
lance un appel, il saisit M (Fig. 4) et est identifié
comme dans le cas manuel. M recherche alors tout FUR ou FDR-L-N
libre. Si des jonctions sont disponibles, M en sélectionne
une, puis établit la connexion entre labonné
et, par exemple, un FUR. Le FUR appelle ensuite le poste relais
RS qui sélectionne un REG-D libre. Si un REG-D libre est
disponible, il est saisi et connecté au FUR via un chemin
passant par le RS ; M libère. Le FUR étend
alors une boucle sur la jonction pour saisir le sélecteur
associé dans le central distant. Labonné reçoit
la tonalité de ce central, après quoi il compose
le numéro souhaité. Les impulsions de numérotation
sont répétées par le FUR sur la jonction
et également vers le REG-D via la connexion RS. Le REG-D
détermine le processus de commutation requis en analysant
les chiffres composés.
Appel vers le central d'occupation avancé :
Si le REG-D reconnaît que l'appel doit être acheminé
vers le central d'occupation avancé, il se libère
du FUR et du RS, et les chiffres restants sont répétés
sur la jonction.
Appel local : Lorsque le REG-D reconnaît l'indicatif
local, il signale au FUR de libérer la jonction. Une fois
le numéro complet reçu, il transfère les
informations numériques nécessaires à M,
qui teste l'état de la ligne de l'abonné appelé.
Parallèlement, M recherche un SNR libre.
Si l'abonné appelé est libre et qu'un SNR est disponible,
M organise la connexion entre les abonnés B et A et le
SNR, comme dans le cas du parent manuel. M, REG-D et FUR libèrent
ensuite. Si l'abonné appelé est occupé, en
ligne bloquée, en panne de ligne ou en l'absence de SNR
libre, M signale au REG-D d'envoyer une tonalité de réessai
pendant quelques secondes, après quoi le FUR bloque la
ligne de l'abonné appelant. M, FUR et REG-D libèrent
ensuite.
En l'absence de REG-D libre, M, toujours en attente à ce
stade, bloque la ligne de l'abonné, puis libère.
Le FUR est également libéré.
Ainsi, un appel ne peut pas être acheminé vers le
central parent en l'absence de registre libre, même s'il
existe des jonctions libres.
Si M ne trouve pas de FUR libre, il recherche et sélectionne
un REG-D libre via l'étape SL, comme dans le cas manuel.
Un appel local peut néanmoins être effectué.
Si REG-D reconnaît que l'appel est destiné au central
d'occupation avancé, il renvoie une tonalité de
réessai pendant un court instant, puis verrouille l'abonné
en ligne, puis libère. REG-D sert ainsi de registre de
débordement. Si M ne trouve pas de FUR ou de REG-D libre,
il libère et verrouille l'abonné en ligne.
Appel entrant : Pour un appel entrant provenant du
central d'occupation avancée, seuls les deux derniers chiffres
locaux sont reçus par le central terminal. Par conséquent,
la prise du REG-D au central terminal doit intervenir pendant
la pause internumérique précédant la composition
des deux derniers chiffres. La jonction entrante prend un FIR-L-N
(FDR-L-N) qui signale immédiatement au RS de trouver un
REG-D libre et de le connecter.
Une fois les deux chiffres reçus, le REG-D transmet les
informations du numéro à M, qui teste l'état
de la ligne de l'abonné. Si l'abonné est libre,
M organise la connexion au FIR. M et REG-D libèrent. Si
l'abonné est occupé en raison d'un blocage de ligne
ou d'un défaut de ligne, le REG-D émet une tonalité
de réessai pendant un court instant, puis se déconnecte
et le FIR continue d'émettre une tonalité de réessai
sur la jonction jusqu'à ce que le central distant libère.
En l'absence de REG-D libre, le FIR renvoie une tonalité
de nouvelle tentative à la jonction jusqu'à sa libération.
ÉQUIPEMENT ARK 521
Présentation de l'équipement
Un central ARK 521 a une capacité initiale de 100 lignes
d'abonnés et peut être étendu par unités
jusqu'à 100 lignes,
jusqu'à un total de 2 000 lignes. L'équipement de
ligne d'abonné et les dispositifs FDR, FUR, FIR et SNR
sont identiques, et le PBX, l'AX et le LFR remplissent des fonctions
similaires à celles de l'ARK 511.
La différence essentielle entre les équipements
ARK 521 et ARK 511 réside dans le fait que l'étage
SL est étendu à plusieurs étages SL partiels.
Par conséquent, l'équipement de marquage est plus
complexe. Étages partiels SL, SLA, SLB, SLC, SLD : (Voir
Fig. 5.)
Fig
5
Létage abonné comprend deux étages
sélecteurs : SLA et SLB (le terme « partiel »
est généralement omis dans la description de lARK
521). Chaque groupe d'abonnés de 100 lignes est desservi
par deux commutateurs crossbar SLA, SLA et SLA2, et deux commutateurs
crossbar SLB, SLB 1 et SLB2. Chaque commutateur dispose de 30
prises par verticale. Quatre-vingt-dix lignes sont connectées
au multiplexeur SLA. Les verticales SLA sont multipliées
horizontalement par groupes, de sorte que chaque abonné
ait accès à six ou sept verticales (c.I. ARK 511
où chaque abonné a accès à toutes
les verticales, ce qui garantit une disponibilité totale).
Les 10 lignes restantes du groupe de 100 lignes sont connectées
directement aux 10 premières prises du multiplexeur SLB
(horizontales), où elles bénéficient d'une
disponibilité totale pour toutes les verticales SLB. Les
20 prises SLB restantes sont connectées aux verticales
SLA. Pour une efficacité maximale, les lignes connectées
directement à l'étage SLB doivent être les
lignes les plus fréquentées du central. Ces lignes
sont donc généralement affectées aux jonctions
associées à un FDR-L-M ou un FDR-V-M et éventuellement
à certains abonnés PBX.
La capacité du central est augmentée au-delà
de 100 lignes par l'ajout d'étages d'abonnés. Dans
les centraux jusqu'à 100 lignes, seuls les étages
SLA et SLB sont requis, tandis qu'un étage SLC doit généralement
être ajouté pour une capacité supérieure
à 100 lignes. Un étage SLD est généralement
requis lorsque la capacité dépasse 400 lignes. Le
nombre maximal de commutateurs SLC et SLD par central est respectivement
de 20 et 16.
Les étages SLC et SLD sont composés d'unités,
chacune comprenant un commutateur crossbar avec les relais associés
pour la connexion au marqueur. Il y a 20 sorties par verticale
sur chaque commutateur (voir 30 pour SLA et SLB) et les verticales
sont multipliées horizontalement pour obtenir un total
de 20 sorties par commutateur. Chaque sortie est connectée
à une verticale de l'étage SLB ou SLC précédent.
Les dispositifs SNR, FDR, FIR, FUR et REG-D sont connectés
aux verticales SLC (SLD). En présence d'un étage
SLD, le côté B de chaque SNR est connecté
à une verticale SLC.
L'interconnexion des étages partiels SL dépend de
la capacité d'abonnés du central et de la densité
du trafic. Un groupement de 1 000 lignes est présenté
à la figure 5. Un schéma de jonction est présenté
à la figure 6.

Marqueur : Dans l'ARK 511, le marqueur M est un ensemble
de relais unique associé à un étage SL. Dans
l'ARK 521, le marqueur est divisé en ensembles de relais
distincts pour chaque étage partiel SL.
Les ensembles de relais ABMA, ABMB, CM et DM sont utilisés
respectivement pour les étages SLA, SLB, SLC et SLD. CDM
est l'ensemble de relais qui sélectionne les équipements
libres et CMTD sélectionne les liaisons libres entre les
étages SLC et SLD. Les ABMA et ABMB gèrent 400 lignes.
Pour chaque tranche de 400 lignes supplémentaires, un ensemble
de relais ABMT est requis. La partie du marqueur constituée
des ensembles de relais ABMA, ABMB et ABMT est appelée
ABM. Deux ensembles identiques d'équipements de marquage
peuvent être installés dans un central ARK 521.
Registre discriminant REG-D : Le REG-Dis ARK 521 est
similaire au REG-D ARK 511, mais il offre la possibilité
d'organiser la commutation sur quatre routes directes.
Connecteur de registre RS : Ce jeu de relais permet
de connecter un FDR, un FUR ou un FIR-L-N au REG-D.
Marqueur de connecteur de registre RSM : Le RSM est
le marqueur du RS. Il recherche et sélectionne un REG-D
libre. Un RSM est requis pour trois RS.
Connecteur de marqueur MIR-REG : Il s'agit d'un jeu
de relais d'équipement commun qui relie le SNR et le REG-D
au marqueur. Il empêche le fonctionnement simultané
d'une connexion locale et d'un pont.
Dispositions de commutation
Les opérations de commutation d'un central ARK 521 sont
fondamentalement similaires à celles d'un central ARK 511,
à la différence près que, s'agissant d'un
central plus grand, elles sont plus complexes.
Une différence majeure entre la commutation ARK 521 et
ARK 511 réside dans la manière dont le marqueur
établit le chemin de connexion entre un abonné et
un équipement. Dans l'ARK 511, il n'existe qu'un seul chemin
possible entre un équipement et l'abonné.
Ceci nécessite la sélection d'une position horizontale
et d'une verticale de l'étage SL. Cependant, dans l'ARK
521, l'interconnexion des étages partiels SL est telle
que plusieurs chemins sont possibles entre un équipement
et un abonné, dont l'un doit être choisi. Ce choix
est contrôlé par les ensembles de relais marqueurs,
qui interagissent pour exploiter les verticales et les horizontales
appropriées à chaque étage SL. À titre
d'exemple de sélection de chemin, le lancement d'un appel
sortant depuis un central avec un parent à occupation avancée
est décrit. (Voir la figure 6, où un SLD constitue
la dernière étape.)
Lors de l'appel, l'abonné appelant est connecté
à l'ABMA par le MIR-AB correspondant.
L'ABMA identifie le groupe de 100 lignes appelant, puis les dizaines
et les unités de l'abonné. Si le chiffre des dizaines
de l'abonné est compris entre 1 et 9, une verticale SLA
libre avec accès à l'abonné est sélectionnée.
Le MIR-AB gère l'horizontale SLA associée à
l'abonné. Selon la verticale SLA sélectionnée,
ABMB et MIR-AB interagissent pour gérer les horizontales
SLB appropriées.
Le marqueur lance alors la recherche d'une FUR-L-N (ou FDR-L-N)
libre vers le central parent. ABM demande à CDM de trouver
une FUR libre. CDM connecte les fils de toutes les FUR libres
afin que tous les commutateurs SLD disposant d'une FUR libre soient
« marqués inactifs ». (Le terme « marqué
inactif » désigne la condition appliquée
par le marqueur à un commutateur crossbar éligible
au chemin de connexion requis.) CMTD connecte ensuite les fils
de tous les commutateurs SLD marqués inactifs afin de marquer
inactifs tous les commutateurs SLC dont une verticale est libre
et accessible depuis l'un de ces commutateurs SLD. ABM sélectionne
une verticale libre parmi les SLB 1 et SLB 2, accessible
depuis un commutateur SLC marqué inactif. Cette verticale
désigne le commutateur SLC à utiliser. Les axes
horizontaux du commutateur SLC associés à la verticale
SLB sélectionnée fonctionnent désormais.
Dans le commutateur SLC, CM sélectionne une verticale libre
ayant accès à un commutateur SLD marqué inactif.
· Cette verticale désigne le commutateur SLD à
utiliser. L'exploitation des horizontaux SLD associés suit
immédiatement.
Enfin, dans le commutateur SLD, DM sélectionne une verticale
SLD à laquelle est connectée une FUR libre. Le marqueur
exploite alors la verticale sélectionnée à
chaque étape partielle, complétant ainsi le chemin
de connexion vers l'abonné. La FUR, ainsi prise, est connectée
à un REG-D via le RS, de manière similaire à
celle décrite dans l'ARK 511.
Ce processus de marquage de l'inactivité et de sélection
d'un chemin libre à travers les étapes partielles
SL de l'ARK 521 est répété pour chaque type
d'appel similaire, comme décrit dans le cas de l'ARK 511.
La fonctionnalité supplémentaire de l'ARK 521 est
la possibilité de se connecter à n'importe quelle
jonction de l'une des quatre routes directes lorsque le central
dispose d'un commutateur parent à occupation avancée.
Si, dans ce cas, un abonné a lancé un appel sortant,
il est connecté à un FUR libre vers le central parent
et à un REG-D. Lorsque le REG-D reconnaît le code
d'un commutateur à route directe, il demande au CDM de
rechercher un FDR-L-M ou un FDR-V-M libre vers le central requis.
Le marqueur sélectionne ensuite un chemin entre le FDR
choisi et l'abonné appelant. Une fois le saut effectué,
le marqueur et le REG-D sont libérés. Les appels
entrants provenant de l'un des quatre commutateurs à route
directe seront connectés comme décrit dans le cas
de l'ARK 511. Une autre fonctionnalité d'un central ARK
521 est le débordement via le commutateur automatique d'occupation
avancée. Cela est possible si un commutateur à voie
directe est également disponible depuis le commutateur
à occupation avancée. Supposons qu'un abonné
ARK 521 ait composé l'indicatif d'une voie directe. Si
aucune jonction libre n'est disponible vers ce commutateur, REG-D
se libère. La connexion entre l'abonné appelant
et le FUR-L-N est maintenue et l'impulsion se poursuit via le
commutateur automatique d'occupation avancée vers le commutateur
requis.
INSTALLATION
 
Un central ARK 511 de base de 30 lignes est composé de
deux racks. Un rack supplémentaire est nécessaire
pour les centraux d'une capacité de 30 à 90 lignes.
Ces racks peuvent être montés dos à dos ou
contre un mur.
Les baies murales du bâtiment Reeves Plains sont illustrées
à la figure 7.
Le câblage inter-baies étant réalisé
par des câbles à fiches, l'installation est simple :
les baies sont montées en position, les câbles MDF
et d'alimentation sont acheminés et raccordés, puis
les baies sont connectées entre elles.
Le seul raccordement requis dans l'ARK 511 concerne les circuits
locaux (SNR) ou les circuits de jonction (FDR), dont le nombre
peut varier selon le central. (Voir figures 3 et 4.)
Dans le cas de l'ARK 521, l'équipement, bien que similaire
à celui de l'ARK 511 (les SNR et les FDR sont identiques),
n'est pas monté dans des baies complètes comme dans
l'ARK 511, mais entre les côtés des baies, qui doivent
être fixés individuellement au sol. Ces derniers
sont reliés par une barre d'acier appelée fer de
jonction. Il y a un fer de jonction pour chaque rangée
de baies. Des barres de liaison sont posées à angle
droit sur les fers supérieurs jusqu'aux plaques murales.
Des goulottes sont ensuite fixées sur la barre de liaison
pour contenir les câbles inter-racks. Une rangée
de goulottes est prévue pour deux rangées d'équipements,
montées dos à dos. Les câbles ne sont pas
fixés dans les goulottes, mais peuvent être entourés
d'une attache circonférentielle tous les yard environ.
(Voir Fig. 8.)
Les câbles sont fixés à leur entrée
dans les racks, puis formés à l'arrière du
rack pour se terminer sur les bornes des prises à couteau
SO-point, dans lesquelles sont branchés les relais et les
commutateurs crossbar. Les racks utilisés dans l'ARK 521
sont appelés racks BDH. Ils sont identiques aux racks BDH
utilisés dans les commutateurs crossbar ARF. Les outils
de terminaison des racks BDH ainsi que les plaques de formage
utilisées sont décrits dans un article de McMurray.
Dans les installations sud-australiennes, les câbles sont
formés et dénudés sur les plaques de formage,
prêts à être raccordés avant le montage
des racks. ·
Comme l'équipement ARK 521 comporte plusieurs étages
partiels SL, la flexibilité est obtenue en connectant les
entrées et les sorties de chaque étage partiel,
ainsi qu'une partie du câblage de commande des marqueurs,
à un répartiteur de câbles intégré
(voir figure 5).
Les câbles pénètrent dans le répartiteur
de câbles intégré par des doigts verticaux
(figure 8) depuis la goulotte et pendent simplement derrière
le répartiteur de câbles intégré (voir
figure 9).
Les bandes de repérage du répartiteur de câbles
intégré peuvent être reliées par des
cavaliers ou des attaches pour obtenir le schéma de regroupement
requis pour l'échange.
L'équipement à barre transversale, bien que résistant
à la poussière, fonctionnera mieux si la poussière
pénètre dans le local technique. Les commutateurs
ARK pouvant être entièrement câblés,
terminés et pontés avant le déballage des
relais ou des commutateurs, toute poussière présente
peut être éliminée avant qu'elle ne pénètre
dans l'équipement. Les commutateurs sont nettoyés
à l'aide d'aspirateurs équipés de tuyaux
suffisamment longs pour diriger l'air d'échappement (qui
contiendra les petites particules de poussière non captées
par le sac) hors du local technique. Des chiffons imprégnés
d'une émulsion huile-eau sont utilisés pour nettoyer
les murs, les sols et les racks d'équipement avant la mise
en place des relais et des commutateurs à barres transversales.
Une fois l'équipement installé, toutes les personnes
entrant dans la salle d'échange doivent se changer pour
des pantoufles à l'entrée afin de minimiser l'entrée
de poussière. Des précautions particulières
sont également prises pour empêcher l'entrée
de poussière provenant d'autres sources. Dans les bâtiments
permanents, les portes et fenêtres sont scellées
et, si des climatiseurs sont nécessaires pour contrôler
la température ou l'humidité, des filtres spéciaux
sont installés. Une attention particulière a été
portée à l'étanchéité des locaux
techniques des bâtiments mobiles, qui sont généralement
situés à la campagne et plus exposés à
la poussière que les bâtiments permanents en zone
urbaine. Dans les bâtiments mobiles, un ventilateur pressurisant
est installé pour augmenter la pression au sein de la salle
d'échange. Cela entraîne un faible flux d'air sortant
des locaux techniques à travers les fissures ou les joints
imparfaits, empêchant ainsi l'entrée de poussière.
Dans le cas du système portable Reeves Plains, une pression
effective équivalente à 0,25 pouce d'eau a été
obtenue grâce à la technique du ventilateur pressurisant.
Un autre aspect important, notamment pour les bâtiments
portables étanches, est le contrôle de la température
et de l'humidité. L'équipement fonctionnera de manière
satisfaisante si la température ambiante ne dépasse
pas 49 °C et si l'humidité est maintenue entre 35 et
75 %. Comme un bâtiment ARK portable peut être installé
dans une région aride, loin des points d'approvisionnement
en eau et d'autres bâtiments, il peut être impossible
de l'ombrager sans installer des écrans. Le bâtiment
serait alors exposé à la lumière directe
du soleil alors que la température extérieure pourrait
dépasser 11 °C. Afin de minimiser l'entrée de
chaleur, les bâtiments sont beaucoup plus longs que larges
et orientés est-ouest, avec un large avant-toit en surplomb
au nord. Ainsi orienté, une petite surface murale est exposée
aux rayons du soleil levant et couchant, qui sont approximativement
perpendiculaires aux murs d'extrémité, tandis que
le grand mur orienté au nord est entièrement ombragé
par l'avant-toit lorsque le soleil est à son azimut. De
plus, les murs et le toit sont isolés avec dix centimètres
de laine de roche et du sisaling double face afin de minimiser
le transfert de chaleur vers le local technique. Avec des bâtiments
construits de cette manière, la température intérieure
maximale ne dépassera pas 49 °C dans la plupart des
endroits. Un problème plus important, cependant, pourrait
être celui du contrôle de l'humidité. Comme
le local des traverses est étanche, et que le transfert
d'air est donc minime, l'humidité diminue à mesure
que la température augmente. Des tests effectués
à Reeves Plains indiquent que la limite inférieure
d'humidité sera atteinte avant la limite supérieure
de température. C'est pourquoi, dans certains endroits
chauds et secs, il sera nécessaire d'installer un climatiseur
pour limiter la température à bien moins de 49 °C
(120 °F) afin d'obtenir des conditions d'humidité acceptables.
(Voir Fig. 10.)

Équipement de test
Testeur d'itinéraire de trafic individuel (TRT) :
Un TRT établit une connexion via un central automatique.
Il se connecte à l'équipement comme le ferait un
abonné normal et compose automatiquement un numéro
local. Si l'appel aboutit, la sonnerie est transmise par le SNR
à la ligne appelée, puis renvoyée au TRT
qui déclenche la sonnerie, complétant ainsi un cycle.
Le TRT est équipé de deux compteurs : l'un
enregistre le nombre total d'appels, l'autre le nombre de pannes.
Le TRT peut être configuré pour répéter
un cycle et ainsi fournir une indication de la qualité
de service. L'instrument peut être connecté au MDF.
avec des sabots de test normaux ou des numéros de test
spécialement attribués, affichés dans un
champ de prise en haut des racks ARK 521.
Testeur de charge : Cet équipement permet de tester
les équipements de marquage d'un central téléphonique
crossbar. De plus, grâce au choix de numéros de test
appropriés et à l'utilisation de clés de
blocage, il permet de tester chaque liaison entre les étages
de commutation. Le testeur établit un maximum de dix appels
simultanés et vérifie leur exécution correcte
vers dix numéros choisis dans le même central. En
l'absence de défaut, les connexions sont supprimées
et le processus est répété. Plusieurs milliers
d'appels de test peuvent être effectués par jour.
En cas de défaut, le testeur de charge déclenche
une alarme et se concentre sur le défaut jusqu'à
ce qu'il soit traité. Procédures de test :
les tests constituent une part importante de l'installation de
chaque central téléphonique crossbar. C'est particulièrement
le cas pour l'ARK 521, où plusieurs chemins sont possibles
entre les étages partiels SL.
Dans les installations pilotes de Gladstone et de Reeves Plains,
les tests se sont déroulés dans l'ordre suivant.
Une fois le câblage et les terminaisons terminés,
la continuité du câblage a été vérifiée
par vibreur. Chaque ensemble de commutateurs et de relais a ensuite
été déballé.
Avant d'être branché sur les racks, l'équipement
a été inspecté visuellement afin de détecter
d'éventuelles soudures sèches ou défauts
évidents, tels que des composants endommagés ou
mal réglés.
Bien que chronophage, cette vérification s'est avérée
précieuse, car plusieurs irrégularités ont
été détectées, constituant des défauts
potentiels qui n'auraient peut-être pas été
détectés lors des tests électriques.
Une fois les commutateurs à barres transversales en place,
des réglages supplémentaires ont été
effectués, notamment sur les barres horizontales et les
doigts.
Chaque commutateur a ensuite été mis sous tension
et les tests suivants ont été effectués avant
le basculement.
Tests opérationnels : Une série de tests
manuels a été réalisée pour vérifier
statiquement les processus de commutation. Les armatures des relais
de sélection appropriés, dans l'équipement
de marquage et les jeux de relais de connexion, ont été
fixées pour établir des chemins spécifiques
à travers les étages SL, jusqu'aux appareils. Cela
a permis de garantir que le câblage des racks, le câblage
inter-racks et le câblage I.D.F. étaient corrects
pour le schéma de regroupement spécifique.
Appel direct : Des appels locaux ont été établis
depuis la ligne de chaque abonné afin de vérifier
le fonctionnement de la voix et du compteur.
Tests d'acheminement : Un TRT biunivoque a été
utilisé pour acheminer plusieurs centaines d'appels via
chaque SNR et REG-D. Pour tester un SNR, tous les autres SNR ont
été bloqués et, lorsque tous les REG-D étaient
libres, le TRT a été mis en service. De même,
un REG-D a été testé en bloquant tous les
autres REG-D et en utilisant le TRT avec tous les SNR libres.
Ces tests ont permis de vérifier la fiabilité de
chaque SNR et REG-D, ainsi que les chemins de connexion possibles
entre la ligne appelante et les appareils. Le FDR-L-M n'a pas
pu être testé avec le TRT, car il applique une condition
de boucle lors de la prise. Le TRT ne redémarre que s'il
a déclenché la sonnerie. De nombreux appels via
chaque FDR-L-rM ont donc été effectués manuellement.
Tests de charge : Étant donné la présence
de cinq REG-D à Gladstone, le testeur de charge n'a permis
d'effectuer que cinq appels locaux simultanés. Des numéros
de test appropriés ont été choisis pour tester
tous les chemins de connexion possibles au cours des étapes
SL. À Reeves Plains, où il n'y avait que deux REG-D,
le testeur de charge n'a établi que deux appels simultanés.
De plus, s'agissant d'un ARK 511, deux numéros de test
quelconques ont été choisis, car il n'y a qu'une
seule étape SL. La fiabilité de l'équipement
de marquage a été prouvée par ces tests.
À Gladstone, seulement trois défauts ont été
constatés sur 10 000 opérations de l'ABMA.
Il n'a ensuite pas été possible de déterminer
s'il s'agissait d'irrégularités au niveau de l'équipement
de la traverse ou du testeur de charge lui-même.
Les tests dynamiques effectués lors des essais de
routage ont révélé divers défauts,
tels que des joints secs, des armatures de relais mal réglées
et des doigts horizontaux de l'interrupteur de la traverse, qui
n'ont pas été détectés lors de l'inspection
visuelle.
Les essais de routage ont été effectués en
premier lieu pour assurer le bon fonctionnement de chaque dispositif.
Tout défaut survenant ensuite lors des essais de charge
serait probablement limité à l'équipement
de marquage.
CONCLUSION
Les centraux Crossbar succèdent désormais aux centraux
automatiques à commutation progressive en Australie.
Les centraux ARK 511 seront installés à la place
des RAX de type B ou C, et les centraux ARK 521 à la place
des centraux à commutation progressive, d'une capacité
maximale de 2 000 lignes.
Dans un réseau automatique, les centraux ARK sont des centraux
terminaux qui peuvent être reliés à un seul
central automatique à occupation avancée. Un système
de numérotation fermé est disponible pour ce central.
De plus, un central ARK 521 peut commuter vers quatre centraux
automatiques à routage direct si des préfixes sont
composés. Cette fonctionnalité n'est pas disponible
pour les centraux ARK 511.
Les baies ARK sont câblées pour fonctionner en REG-D
et en MFC. Les centraux initiaux sont équipés de
REG-D, mais des commutateurs MFC et REG-L pourraient être
installés sur les mêmes baies d'équipement.
Il est proposé d'installer un central de commutation de
transit automatique ARM à Gladstone.
Une fois ce projet terminé, il sera nécessaire d'installer
différents FDR et de convertir le central ARK 521 de Gladstone
existant en MFC, afin de relier les lignes principales aux registres
centraux de l'ARM. Comme l'ARM sera situé dans le même
bâtiment que l'ARK, les jonctions entre les deux centraux
ne manqueront pas ; le REG-L ne sera donc pas nécessaire
dans le central terminal ARK de Gladstone. Parallèlement,
le central ARK 521 de Wirrabara sera également converti
en MFC pour interfonctionner avec l'ARM de Gladstone. La partie
REG-L du REG-D peut encore servir de registre de débordement
jusqu'à l'installation des REG-L.
On constate donc que les centraux de type ARK REG-D sont adaptés
au fonctionnement d'un réseau pas à pas et qu'ils
peuvent être facilement convertis en MFC à mesure
que les programmes australiens de numérotation crossbar
et de ligne d'abonné seront mis en uvre.
|
sommaire
La première grande installation d'équipement Crossbar
a eu lieu à Toowoomba, Queensland, où un central
téléphonique automatique de 6300 lignes a été
mis en service en septembre 1960.
Bien que les deux technologies aient existé simultanément
dans le réseau australien pendant la majeure partie du 20e siècle.
Les connexions ont été effectuées sur un réseau
(principalement) de fils de cuivre et commutées automatiquement
par des équipements électriques / électroniques
dans les centraux téléphoniques.
Le système téléphonique automatique choisi est
connu (dans le monde entier) sous le nom de PSTN (Public
Switched Telephone Network) et parfois surnommé POTS
(Plain Old Telephone System!).
Les centres automatiques d'origine utilisaient des technologies de transmission
analogique et de commutation électromécanique et les signaux
de numérotation étaient à l'origine des impulsions
électriques provenant d'un cadran rotatif .
En juin 1977, le central téléphonique manuel de
Swansea a été remplacé par un service automatique
et a fait de la Tasmanie le premier État d'Australie à
disposer d'un réseau entièrement automatique.
Le câble coaxial Sydney-Melbourne a été
officiellement ouvert le 9 avril 1962.
L'infrastructure de câble coaxial a soutenu l'introduction de
la numérotation par ligne d'abonné entre les villes et
des liaisons de télévision en direct.
Après sa mise en service en avril 1962, le câble a transporté
le trafic télégraphique et téléphonique.
Il a également fourni la première transmission de télévision
interurbaine en Australie, permettant pour la première fois la
diffusion télévisée simultanée à
Melbourne et à Sydney.
Optus a été créée sous le nom d'AUSSAT,
une société d'État en 1981. Elle a été
privatisée plus tard dans les années 1980 sous le gouvernement
travailliste de Bob Hawke. Telstra (anciennement Telecom), un autre
actif appartenant au gouvernement a également été
privatisé en 1997 sous le gouvernement libéral de John
Howard.
Si les progrès semblent un peu lents par rapport aux autres pays
occidentaux, il convient de rappeler que lAustralie a de grandes
distances à parcourir et une population relativement petite,
de sorte que la modernisation de toutes les zones rurales a pris beaucoup
de temps comme la plupart des pays avancés, l'Australie a connu
un essor de la croissance après la Seconde Guerre mondiale.
La demande pour toutes sortes de biens de consommation était
élevée, en particulier pour les maisons danciens
soldats.
Ceci a entraîné une croissance de la demande de services
téléphoniques.
Comme la plupart des pays avancés, après
la Seconde Guerre mondiale, l'Australie a connu un boom de sa croissance.
La demande pour toutes sortes de biens de consommation était
élevée, et en particulier pour les maisons des ex-soldats.
Cela a entraîné une croissance de la demande de services
téléphoniques.
Le service téléphonique en Australie était un monopole
gouvernemental entre les mains du Département du poste de maître
général.
Le PMG s'est avéré totalement incapable de répondre
à la demande en raison des limites financières imposées
par le gouvernement. Les bénéfices annuels sont restitués
au gouvernement au lieu d'être réinvestis dans le système.
Un plan à long terme de modernisation du réseau avait
été proposé mais n'était absolument pas
financé, et l'ancienne infrastructure devenait de moins en moins
fiable et plus coûteuse à entretenir.
Bien que certaines mesures aient été prises pour automatiser
les centres de pays plus petits, les grandes villes étaient encore
desservies par des centres à batterie centrale et magnéto.
Les numéros de téléphone étaient rares,
les lignes aériennes et les câbles souterrains étaient
limités et la pression politique augmentait pour que quelque
chose soit fait.
En 1975, la division téléphonique
du département du poste de maître général
a été scindée en Telecom Australia.
Les services postaux ont également été divisés
en Australia Post.
Chacune des nouvelles organisations était chargée de répondre
aux besoins de ses clients et de payer à sa manière.
Telecom était aux prises avec une dette de 840 millions de dollars
pour «la contribution des contribuables au système téléphonique».
Pour Telecom, cela signifiait que ses bénéfices (et la
division téléphonique était essentiellement un
service rentable) pouvaient désormais être utilisés
pour l'expansion et le remboursement de la dette. Des fonds supplémentaires
seraient levés par l'émission d'obligations de télécommunications
à court terme, par des hausses de prix à intervalles réguliers
et par les bénéfices d'une utilisation accrue et de nouveaux
services à long terme.
La grande confiance que l'APO accordait à Ericsson
en tant que fournisseur était évidente en 1977, lorsque
l'Australie, l'un des premiers pays, a acheté le système
AX. L'EPA a joué un rôle important dans la sensibilisation
de l'APO aux avantages du système AX, et la filiale australienne
a ainsi obtenu le contrat de fabrication du système.
Telecom Australia a hérité d'un large
éventail d'équipements et de problèmes.
La plupart des téléphones datent de l'époque de
la bakélite, et de nombreux téléphones en bois
antérieurs étaient encore utilisés.
Bien qu'un nouveau téléphone en plastique conçu
localement, la série 800, ait été introduit,
il manquait toujours.
Un plan avait été élaboré pour convertir
tous les centraux téléphoniques d'Australie en service
automatique. Cela signifierait que des milliers de centres manuels devraient
être mis à jour en mode automatique, y compris de nombreux
grands échanges CB dans les grandes villes.
Il faudrait littéralement des millions de nouveaux téléphones
sur au moins deux décennies.
De nombreux téléphones spéciaux plus anciens ou
des modifications basées sur les téléphones plus
anciens nécessiteraient le développement de nouveaux équivalents.
L'expérience aux États-Unis a montré que les clients
voulaient (et étaient prêts à payer) des téléphones
dotés de fonctionnalités qui n'étaient pas disponibles
dans les téléphones standard. Le domaine des pièces
jointes autorisées, éléments non PMG connectés
au réseau téléphonique, se développait à
un rythme incroyable. Plus grave encore, l'attitude du client avait
changé. Ils ne se contentaient plus d'être des «abonnés»
à un service téléphonique, ils devaient désormais
être considérés comme des «clients»
et traités comme tels.et traités comme tels.et traités
comme tels.
Cela a nécessité un changement d'attitude
au plus haut niveau du nouveau Telecom.
Le développement du système ne pouvait plus être
conduit uniquement par des personnes à l'esprit technique qui
savaient ce qui était le mieux - les souhaits des clients devaient
être pris en compte en premier.
Cela a conduit à la production d'une gamme plus large de téléphones
pour répondre à la demande. Bien que les concepteurs et
ingénieurs australiens puissent produire un téléphone
aussi bon que n'importe quel autre dans le monde, la taille même
du travail exigeait que certains téléphones soient achetés.
En raison du coût, ces téléphones devaient maintenant
être vendus carrément, non inclus dans le service annuel.
de location.
Inévitablement, les politiques, les pratiques
et les prix ont eu leurs gains et leurs pertes.
Obtenir le bon prix a toujours été un problème.
Les différences techniques entre le système téléphonique
australien et celui des autres pays ont conduit de nombreux clients
à apporter leurs propres téléphones et à
découvrir trop tard que les téléphones ne fonctionnaient
pas ici.
Certains des téléphones que Telecom a achetés pour
la vente ici ont souffert des mêmes problèmes. Ils ne sont
pas restés longtemps sur les étagères. Il y avait
aussi des victoires. Le téléphone T200 était un
téléphone extrêmement bon marché et fiable
qui a finalement permis d'utiliser un téléphone standard
dans toute l'Australie. Il a aidé à atteindre l'objectif
final d'un service téléphonique automatique à l'échelle
de l'Australie avec une numérotation directe nationale et internationale
pour chaque client avant le début du siècle.
Le téléphone public CT3 a finalement introduit STD et
la numérotation internationale dans un boîtier fiable et
à l'épreuve du vandalisme (presque).
C'était une tâche difficile, mais ils l'ont
fait. Les ingénieurs des télécommunications ont
surmonté les problèmes de distance, le faible niveau de
technologie disponible, le manque de capacité de fabrication
australienne et les décennies de négligence des gouvernements
successifs.
Pendant deux décennies, le réseau a été
rendu complètement automatique et principalement souterrain.
De nouvelles technologies telles que la radio numérique et la
fibre optique ont été développées et introduites.
L'énergie solaire a été largement utilisée.
Les téléphones plus anciens ont été régulièrement
remplacés par les téléphones en plastique de la
série 800, puis à nouveau par la série entièrement
numérique T200.
Toute l'Australie a reçu la numérotation par ligne d'abonné
et la numérotation internationale.
Le système de téléphonie publique a été
étendu et modernisé, avec un accès complet aux
STD et ISD. Tout cela a été fait dans le cadre d'une politique
de service universel.Chaque Australien pourrait avoir (en fin de compte)
le même niveau de service pour le même prix. D'une station
d'élevage éloignée dans l'Outback à un travailleur
du centre-ville, les accusations étaient les mêmes.
Les Australiens se sont rapidement adaptés aux
meilleurs services et les bénéfices ont commencé
à affluer.
Ceux-ci auraient dû être investis dans un meilleur service
et le développement de nouvelles installations comme les téléphones
mobiles, mais à ce stade, le gouvernement a commencé à
percevoir un «dividende» sur les bénéfices
de Telecom.
Ce doit être la seule entreprise au monde où les dividendes
ont été décidés à l'avance et les
charges ont ensuite été augmentées pour y faire
face. Cela a quelque peu ralenti le développement, mais le travail
s'est poursuivi.
Puis, voyant les bénéfices massifs à réaliser,
les entreprises privées ont commencé à faire pression
sur le gouvernement pour une part de l'action.
Dans les années 90, il a été décidé
que Telecom devait être privatisé même si des sondages
indiquaient que les personnes qui l'avaient payé, les utilisateurs
de téléphone, ne voulaient pas que cela se fasse.
La première étape consistait à «ouvrir des
zones à la concurrence».Cela signifiait que Telecom a été
forcée de louer une partie de sa capacité à des
tarifs moins qu'économiques à des entreprises «concurrentes»
sur le marché STD.
Dans une démonstration surprenante de fidélisation de
la clientèle, plus de 80 pour cent des clients sont restés
avec Telecom alors que les bourses étaient ouvertes à
la concurrence. Dans certaines régions, des sondages ont été
effectués pour essayer de convaincre davantage de gens de changer,
mais les chiffres sont généralement restés fermes.
Malgré cela, la privatisation devait se poursuivre.
Telecom Australia a été reconstitué sous le nom
de Telstra et a été privatisé à 49% jusqu'à
présent. Le gouvernement actuel va de l'avant pour se débarrasser
du reste en 2006 malgré une opposition électorale majoritaire
sérieuse.
sommaire
Meinrad Wendel Theiler Une autre belle histoire
Austrolo-Anglo-Suisse.
|
Meinrad Wendel Theiler est issu d'une famille
horlogère d'Einsiedeln, Suisse.
Grâce à son auto-apprentissage persistant en mécanique
et en électricité, la télégraphie
électromagnétique émergente devient sa spécialité.
De plus, la bonne connexion avec l'abbaye d'Einsiedeln est un
coup de chance.
Le père Athanasius Tschopp (1803 - 1862), successeur du
père Kälin et professeur de physique au lycée
du monastère, s'occupe de l'utilisation de l'énergie
galvanique pour la télégraphie. Cela donne à
Theiler la possibilité de «sauter dans le train en
mouvement».
Tschopp invente le "copieur-télégraphe électromagnétique",
qu'il appelle le "typo-télégraphe". Meinrad
Wendel Theiler construit le prototype du générateur
de signaux et du récepteur de signaux. À ce moment-là,
le Conseil fédéral suisse a posé la première
pierre de la construction de son propre système télégraphique
en Suisse.
Le conseil du gouvernement du canton de Schwyz se sent obligé
de recommander l'invention du père Athanasius Tschopp au
«grand conseiller fédéral». Dans sa
réponse, le Conseil fédéral reconnaît
les grandes réalisations de Tschopp et Theiler, mais rejette
l'introduction du nouveau système. La lettre montre que
l'invention revendiquée par Tschopp et Theiler a été
présentée il y a quelques années par l'Américain
Blaikwell et jugée trop compliquée. De l'avis du
Conseil fédéral, aucun opérateur télégraphique
n'est nécessaire, mais des mécaniciens qui peuvent
restaurer le fonctionnement de l'appareil s'il ne fonctionne plus,
ce qui est souvent le cas.
À ce moment-là, le Conseil fédéral
autorise le Service des postes et de la construction à
créer un atelier conformément au cahier des charges
de Steilheil et à employer deux contremaîtres appropriés.
Theiler a ensuite postulé pour le poste annoncé
pour le "chef de l'atelier télégraphique"
à Berne. Cependant, la candidature de Theiler ne sera pas
prise en considération. Vous lui offrez un emploi de «nettoyeur
de batterie», ce qu'il refuse naturellement. Comme on le
sait, Matthäus Hipp et Karl Kaiser obtiennent le poste.
Theiler ne se laissa pas décourager et continua de chercher
les clients de son Typo-Telegraph développé plus
avant et se rendit à Paris et à Londres.
En juin 1854, il déposa une première demande de
brevet «améliorations dans l'impression des télégraphes»
par l'intermédiaire de John Henry Johnson à Londres.
Un télégraphe fonctionnant selon le principe «start-stop»
est exposé au Science Museum de Londres.
1857, à la III ème Exposition professionnelle suisse
à Berne, son Typo-Telegraph reçoit la médaille
de bronze. Il a ensuite déménagé à
Londres avec sa famille, où il a accepté un poste
de «contremaître des travaux extraordinaires pour
la construction de nouveaux appareils» à l'Electric
Telegraph Company. La même année, il a reçu
un brevet anglais pour "un télégraphe à
impression directe sans relais et sans batterie locale" avec
le fascicule de brevet n ° 2453.
En 1858, il signe un accord de licence avec Brequet & Cie
à Paris. Il reçoit 375 CHF pour le prototype et
une redevance de 25 CHF pour chaque appareil télégraphique
construit en France.
-À l'automne 1877, la Société anglaise des
ingénieurs télégraphiques invita à
une assemblée générale extraordinaire à
Londres. ou Alexander Graham Bell, inventeur du téléphone,
donne une conférence.
- Lors d'une réunion d'ingénieurs télégraphiques
au printemps 1878, le physicien David Eduard Hughes a présenté
ses découvertes sur le microphone.
Ces deux événements incitent Richard et Meinrad
Theiler à faire face à la nouvelle technologie.
En conséquence, ils ont reçu plusieurs brevets
pour "Récepteur et émetteur de téléphone",
sur lesquels repose la construction de leurs propres postes téléphoniques
avec le microphone Theiler.
Afin de mettre en place des ventes en Suisse, Richard Theiler
séjourne en Suisse à l'été 1880 avec
deux jeux d'échantillons (téléphones).
Il visite l'administration des télégraphes afin
de les convaincre en tant que nouveau client. L'administration
des télégraphes s'intéressa à ces
appareils et construisit en 1881 son premier réseau
téléphonique à Bâle avec les postes
téléphoniques fournis par Theiler.
En plus du système Theiler-Theiler susmentionné,
les systèmes Blake-Bell et Crossley-Bell sont également
introduits en Suisse.
Cependant, en Suisse, le réseau téléphonique
de Bâle est le seul fonctionnant avec le système
Theiler-Theiler, pour des raisons économique.
En 1881 La London Company Theiler
fournissait 148 postes téléphoniques, 52 microphones
et autres 200 téléphones portables. L'année
suivante, 100 postes téléphoniques ... jusqu'en
1901
Les Téléphones Theiler :
Certains téléphones ont été
introduits en Australie en 1883, pour évaluation
par le NSW Electric Telegraph Department.
La plupart des téléphones magnétodynamiques
utilisent la vibration d'un diaphragme dans un champ magnétique
pour produire un courant variable à travers les bobines
de l'aimant. L'approche de Theilers consistait à connecter
le diaphragme directement à un pôle de l'aimant et
à faire vibrer l'aimant lui-même, comme un diaphragme.
Si les pôles étaient suffisamment proches les uns
des autres, la vibration produisait le courant variable nécessaire.
Cela a bien fonctionné et ils ont pu utiliser l'appareil
à la fois comme émetteur et comme récepteur.
Mais il n'était pas très efficace en tant qu'émetteur,
alors ils ont adoptés une version de microphone à
crayon de carbone (basés sur le travail de David Hughes),
c'était aussi un bon un moyen pour ne pas prendre les brevets
American de Bell .

Gauche: téléphone interphone. Droite: ligne téléphonique
d'échange. Illustrations avec l'aimable autorisation de
Ric Havyatt
Ces instruments incomplets ont été découverts
et reconstruits par Ric Havyatt et Linley Wilson.
Les premiers récepteurs ont également été
trouvés à Melbourne, où les téléphones
Theiler étaient utilisés sur certaines lignes téléphoniques
privées du gouvernement.
Tous les téléphones Theiler connus en Australie
semblent avoir été fabriqués en Angleterre.
Les émetteurs de ces téléphones sont une
première version à crayon de carbone, avec deux
tiges verticales collées au diaphragme en liège.
Une tige en laiton carrée horizontale avec une face en
carbone demi-ronde a été suspendue au cadre de montage
par des fils pour reposer légèrement contre les
charbons, donnant le contact variable nécessaire. L'arrangement
était plutôt grossier.
Les téléphones connus en Australie sont un interphone
à piles et un téléphone magnéto.
Dans le volume 12 de 1883 du Journal of The Society
of Telegraph Engineers and Electricians, le professeur
Sylvanus Thompson note que «MM. Theiler ont, à ma
connaissance, employé depuis longtemps des émetteurs
métalliques». La Société discutait
des émetteurs à contact unique à l'époque,
il semble donc que Theilers les ait également expérimentés.
Les premiers récepteurs étaient équipés
avec un aimant externe attaché à une coque en bois.
L'aimant annulaire externe à deux pôles est assez
distinctif et semble avoir été installé sur
les téléphones antérieurs de Theiler.
Dans une version ultérieure, l'aimant était enfermé
dans une coque en ébonite à l'intérieur du
récepteur et était de type unipolaire.
Le numéro de décembre 1885 de Scientific American
décrit une version d'un récepteur Theiler, qui utilisait
un aimant en fer à cheval, soit magnétisé
en permanence, soit avec un champ induit dans les bobines par
une batterie externe. Un disque attaché à l'un ou
aux deux pôles de l'aimant servait de diaphragme, le mouvement
de l'aimant lui-même sous le champ électromagnétique
variable étant suffisant pour déplacer le diaphragme
lorsque les membres de l'aimant s'attiraient et se repoussaient.
Cela aurait été plutôt inefficace et l'article
note que "les brevetés utilisent également
deux électroaimants ou plus dans le même circuit,
et utilisent les vibrations des deux aimants de la manière
décrite".
Dans certaines versions, la pièce polaire était
articulée pour permettre plus de mouvement du diaphragme.
Le diagramme de gauche montre une version à deux diaphragmes.
Notez les courtes pièces horizontales fixant les diaphragmes
directement au sommet des pôles de l'aimant.
La version de droite montre une pièce polaire fixée
à l'arrière du boîtier, tandis que le diaphragme
unique est fixé à l'autre pôle.
Les diaphragmes étaient en ivoire, en vulcanite, en bois
ou en gutta-percha. Ils ont été conçus pour
couvrir toute l'ouverture de l'oreille, probablement pour augmenter
leur efficacité.
Pour les longues lignes, il a été préféré
de polariser un aimant non permanent avec l'alimentation d'une
batterie locale, qui pourrait également alimenter l'émetteur.
La ligne était connectée à un circuit secondaire
dans la bobine. Cela a permis l'utilisation de batteries plus
puissantes, améliorant l'efficacité du téléphone
même sur des courants de ligne faibles.

Preece et Maier dans leur livre de 1889 "Téléphonie"
montrent un "téléphone portable" plus
tardif.
Le récepteur et l'émetteur sont combinés
en une seule unité, avec un grand cornet pour transmettre
la parole à l'émetteur. Le style est similaire au
"cornet" utilisé sur de nombreux téléphones
en France jusqu'aux années 1920. Le récepteur utilise
un grand aimant annulaire permanent, entourant une bobine qui
agit sur la pièce polaire. Cela induit un mouvement dans
le diaphragme en acier - en fait, le récepteur est maintenant
un type de cloche standard, modifié pour le rendre plus
petit.
La courbe intérieure du cornet de l'émetteur comporte
un certain nombre de trous - C1 à C4 sur le diagramme -
dont le but est inconnu, mais Preece et Maier ont signalé
qu'ils avaient amélioré la qualité de l'émetteur.
Pour l'émetteur, Theilers a opté pour le type à
granule de carbone, qui était également désormais
hors brevet. Une construction assez classique de deux diaphragmes
séparés par un récipient de granulés
de carbone, il était ajusté par une vis interne.
Les téléphones Theiler ont été produits
en petite quantité et sont maintenant assez rares.
Dans l'ensemble, leur efficacité aurait été
assez faible et il semble qu'ils auraient été utilisés
principalement pour contourner les brevets de Bell.
De bonnes photos détaillées d'un téléphone
néerlandais de P J Kipp en Zonen équipé d'un
émetteur Blake et d'un récepteur Theiler sont disponibles
sur le site Web du Dutch Online Telephone Museum.
Les informations australiennes recueillies par Ric Havyatt et
Linley Wilson sont disponibles sur le site Web de l'Australasian
Telephone Collectors Association.
Je suis redevable à M. Ron Bristow, qui a fourni une grande
partie de ces informations dans son article "M
W Theiler & Sons - Une acquisition précoce par Elliott
Brothers London".
Une partie de cet article a été présentée
pour la première fois à l'Institution of Electrical
Engineers History of Electrical Engineering Conference en juillet
2001. L'article complet a été publié dans
le Bulletin of the Scientific Instrument Society n ° 36 en
mars 1993 et est reproduit ici avec l'aimable autorisation de
M. Bristow et l'éditeur.
|
sommaire
Chronologie des télécommunications australiennes
et mondiales:
1830 - Joseph Henry construit le premier appareil télégraphique
longue distance, en envoyant des courants électroniques à
travers plus d'un mile de fil, activant par la suite un électroaimant,
faisant sonner une cloche.
1835 - Samuel Morse construit le premier télégraphe américain
(qui est également développé indépendamment
en Europe).
1837 - Samuel Morse fait breveter une machine télégraphique
fonctionnelle, utilisant un code de points et d'espaces à la
place des lettres de l'alphabet.
1838 - Samuel Morse envoie avec succès jusqu'à 10 mots
par minute via son nouveau système.
1842 - Alexander Bain invente le premier télécopieur,
capable de recevoir des signaux d'un fil télégraphique
et de les traduire en images sur papier. Il utilise un mécanisme
d'horloge pour transférer une image d'une feuille de papier électriquement
conducteur à une autre.
1850 - Samuel Morse et son assistant font évoluer le code simple
de points et de tirets, désormais connu internationalement sous
le nom de «code Morse».
1858 - Les premières liaisons télégraphiques inter-colonie
sont construites entre Adélaïde, Melbourne et Sydney. Trois
ans plus tard, Brisbane est lié à Sydney.
1861 - La ligne télégraphique Sydney-Brisbane est inaugurée.
1869 - Le premier câble télégraphique sous-marin
réussi reliant la Tasmanie au continent est posé.
1872 - La ligne de câble télégraphique Overland
de 2000 miles est achevée sous la direction du général
de poste sud-australien Charles Todd. À Darwin, il se connecte
plus tard à un câble sous-marin à Java, mettant
l'Australie en contact avec le reste du monde.
1876 - À l'âge de 29 ans, Alexander Graham Bell invente
le téléphone.
1877 - Ouverture de la ligne télégraphique Perth-Adelaide.
L'Australie du Sud devient la première colonie australienne à
rejoindre l'Union télégraphique internationale pour devenir
plus tard l'Union des télécommunications.
1878 - Suite à l'invention du téléphone, plusieurs
expériences de transmission longue distance sont menées
avec succès en Australie, à des distances allant jusqu'à
400 km.
1880 - Deux ans seulement après la construction du premier échange
au monde, les premiers centraux téléphoniques d'Australie
s'ouvrent à Melbourne et Brisbane, suivis de Sydney en 1881.
1883 - Les échanges s'ouvrent à Adélaïde et
Hobart, l'échange de Perth ouvre en 1887.
1893 - Le premier téléphone public est ouvert au GPO de
Sydney.
1898 - L'Overland Telegraph Line, également connue sous le nom
de Magic Chain, est constituée d'un seul brin de fil de fer.
Un deuxième fil de cuivre vient s'ajouter à la connexion
télégraphique avec l'Europe et reste un lien vital pendant
des décennies.
1900 - 30 000 services téléphoniques fonctionnent en Australie.
1901 - Le gouvernement du Commonwealth nouvellement formé prend
en charge tous les services téléphoniques, télégraphiques
et postaux.
1902 - Le Dr Arthur Korn invente et améliore un télécopieur
pratique: le système photoélectrique.
1907 - Ouverture de la ligne téléphonique principale Sydney-Melbourne.
1912 - Le premier échange automatisé public est introduit
à Geelong, Victoria.
1912 - La commutation téléphonique automatisée
est mise en place.
1914 - Ouverture du premier échange automatique en Nouvelle-Galles
du Sud, dans la banlieue de Newtown.
1914 - Edouard Belin établit le concept de reportage photo /
actualité par fax à distance.
1922 - La ligne téléphonique interurbaine Sydney-Brisbane
ouvre suite à l'introduction des répéteurs thermo-ioniques.
1923 - Les premières stations de radio australiennes, 2BL et
2FC, ouvrent à Sydney. La conversion se fait du Morse au fonctionnement
de la machine sur les principales routes télégraphiques.
1925 - Le premier système d'opérateur téléphonique
d'Australie (avec trois canaux) est installé entre Melbourne
et Sydney, permettant à un fil de transporter plus d'une conversation.
1930 - Le service sans fil de faisceau Australie-Royaume-Uni démarre
et un an plus tard, des échanges manuels internationaux s'ouvrent
dans divers États australiens.
1934 - Ouverture du premier service d'images à faisceau sans
fil entre l'Angleterre et l'Australie.
1936 - Un câble sous-marin est posé entre la Tasmanie et
l'Australie continentale, et à ce moment c'est le plus long du
monde.
1946 - Le gouvernement du Commonwealth crée l'Overseas Telecommunications
Commission qui devient un fournisseur monopolistique de toutes les formes
de télécommunications reliant l'Australie et le reste
du monde.
1948 - Un service téléphonique pour les navires en mer
est établi et la même année un service de radiotéléphone
direct relie l'Australie et les stations d'expédition en Antarctique
à Heard Island et Macquarie Island.
1952 - Des services temporaires sont établis entre l'Australie
et la Finlande pour la durée des Jeux Olympiques d'Helsinki.
Des services permanents suivront.
1953 - Perth devient la première capitale à disposer d'un
réseau téléphonique entièrement automatique.
En 1957, 98% des téléphones dans les capitales sont automatiques.
1954 - Le premier service d'échange de téléimprimeurs
d'Australie ouvre à Melbourne et Sydney avec 80 clients.
1956 - Les Jeux Olympiques de Melbourne constituent un point de départ
pour toutes les formes de croissance des télécommunications
en Australie, l'Overseas Telecommunications Commission développant
de nombreuses ressources et installations pour répondre à
la demande sans précédent. Un nouveau central radio-téléphonique
est établi reliant Perth à Londres.
1959 - L'augmentation du trafic de télégrammes oblige
l'APO à appliquer un système de commutation de messages
appelé Teleprinter Reperforator Exchange Switching System (TRESS).
C'est une innovation qui précipite la fin de la télégraphie
morse.
1964 - L'Australie devient membre fondateur de l'Organisation internationale
de télécommunications par satellite (INTELSAT).
1964 - La première installation majeure de câble coaxial
ouvre et relie Sydney, Canberra et Melbourne. Il a une capacité
potentielle de milliers d'appels téléphoniques simultanés,
avec la possibilité supplémentaire de relayer des programmes
de télévision.
1966 - Le service télex est converti en service entièrement
automatique. Il est lié à 100 pays d'outre-mer et à
environ 4000 clients dans toute l'Australie.
1966 - La première émission internationale par satellite
entre l'Australie et le Royaume-Uni a lieu.
1967 - Première diffusion directe par satellite d'Amérique
du Nord vers l'Australie. L'Australie est l'un des 22 premiers pays
à participer à une liaison télévisée
mondiale en direct par satellite dans le cadre du programme «Our
World».
1970 - Les transistors permettent de placer la plupart des équipements
de câbles coaxiaux dans de petits conteneurs souterrains, accessibles
par un trou d'homme.
1970 - Les fibres optiques sont produites commercialement pour la première
fois.
1974 - Vidéotex relie trois technologies déjà bien
établies de télévision, d'ordinateur et de téléphone
dans un nouvel outil, un système interactif qui comprend la possibilité
d'acheter des biens, de réserver des voyages, d'envoyer des messages
et de transférer de l'argent sur simple pression d'un bouton.
1975 - Le 12 juin, la Commission australienne des télécommunications
a été créée, sous le nom de Telecom Australia
- séparant la Commission postale australienne et la Commission
australienne des télécommunications.
1976 - La numérotation directe automatisée est introduite
en Australie, donnant accès à 13 pays. Sa popularité
est telle qu'à la fin de la décennie, son utilisation
a été multipliée par huit. Cette numérotation
internationale est maintenant appelée IDD et a une acceptation
universelle.
1977 - 2 millions sont dépensés en matériel de
télécommunications rien que cette année.
1978 - La numérotation par bouton poussoir est introduite en
Australie.
1979 - Ouverture du premier grand système de coffre à
énergie solaire au monde entre Alice Springs et Tennant Creek.
1980 - Internet fait son apparition: un code électronique qui
permet aux ordinateurs du monde entier de communiquer entre eux via
une ligne téléphonique.
1981 - Ouverture du premier central téléphonique entièrement
informatisé à Victoria.
1981 - Telecom lance le téléphone mobile, un développement
important dans la communication pour les travailleurs itinérants.
1983 - Le téléphone de conférence est présenté
au public, un téléphone qui peut stocker des numéros,
avoir des fonctions de numérotation abrégée et
de rappel.
1985 - Début de la facturation informatisée des clients.
1987 - Les téléphones payants Cardphone acceptant les
principales cartes de crédit sont introduits.
1988 - Les pages blanches électroniques sont introduites pour
fournir un accès direct à une base de données nationale
constamment mise à jour des pages blanches.
1989 - Lancement de la première phase de réseau de données
du réseau numérique à intégration de services
(RNIS).
1990 - Les télécartes sont introduites avec des cartes
disponibles dans les dénominations
1991 en Décembre arrêt du dernier des centre manuels
de l'Australie (à Wanaaring, NSW).
1992 - Le 1er février, Telecom et l'Overseas Telecommunications
Corporation (OTC) fusionnent pour devenir l'Australian and Overseas
Telecommunications Corporation.
1993 - Telecom change son nom commercial pour faire du commerce à
l'étranger en Telstra Corporation Limited en avril.
1993 - La dernière lettre envoyée par courrier a été
envoyée à Melbourne par Australia Post le 1er octobre
à 17 h HNE.
1995 - Le 1er juillet 1995, Telecom change son nom commercial en Telstra
pour le commerce intérieur.
sommaire
|