La
transmission par les ondes
Cest cette histoire que j'ai voulu résumer,
dont le seul but est de fournir, sous la forme la plus condensée
possible, tous les renseignements relatifs à cette application
de la science, à ce perfectionnement aux méthodes de
télégraphie en usage à cette époque. Textes
et photographies sont issus de documents anciens, livres scientifiques
...
Alors que le télégraphe électrique
filaire et le téléphone sont principalement nés
de l'imagination et de l'empirisme de quelques inventeurs de génie,
le télégraphe sans fil n'est apparu qu'au terme d'une
longue maturation dans les laboratoires des savants.
C'est la découverte des ondes électromagnétiques
et de leurs effets électriques à distance qui devait
conduire à cette invention.
Dans les années 1820, les savants du monde entier, à
travers nombre d'expériences, réussirent progressivement
à préciser les liens entre l'électricité
et le magnétisme. En 1831, dans la foulée d'rsted
et d'Ampère dont les découvertes et les inventions ont
permis l'avènement du télégraphe électrique
filaire, l'Anglais Michael Faraday mit en évidence le phénomène
de l'induction électromagnétique. Il montra qu'une variation
de courant dans une bobine induit un champ magnétique dans
des aiguilles en fer et, inversement, qu'une variation du champ magnétique
produite par un aimant qui est introduit dans une bobine, induit un
courant dans celle-ci. Ces phénomènes ont lieu sans
qu'il y ait aucune continuité physique entre, par exemple,
la bobine parcourue par un courant et l'aiguille qu'elle aimante.
Le physicien américain Joseph Henry montra que ce phénomène
d'aimantation peut être induit jusqu'à une distance de
plusieurs kilomètres.
C'est dans ce contexte que James Clerk Maxwell réussit en 1864,
en une synthèse magistrale, d'ailleurs peu accessible à
ses contemporains, à unifier les théories de l'électricité
et du magnétisme en postulant l'existence des ondes électromagnétiques
et en établissant, en quatre équations devenues célèbres,
leurs propriétés. Mais ce n'est qu'en 1887 que ces ondes
seront mises en évidence par le physicien allemand Heinrich
Hertz.
Heinrich Hertz |
Pour l'émission Hertz utilisait
une bobine d'induction, dont l'enroulement primaire était
branché sur une batterie par un interrupteur et l'enroulement
secondaire sur deux boules métalliques séparées
par un éclateur (deux petites sphères métalliques
séparées par un minuscule espace). La fermeture
de l'interrupteur induisait dans le secondaire un courant à
haute tension qui se déchargeait dans le condensateur formé
par les deux boules métalliques. À chaque manuvre
de l'interrupteur, une étincelle jaillissait dans l'éclateur.
Le récepteur était constitué d'une simple
boucle métallique interrompue par un éclateur dont
l'espace était réglable par une vis micrométrique.
Les étincelles de l'émetteur induisaient à
distance de petites étincelles dans le récepteur
(si petites qu'il fallait une loupe pour les voir). C'est avec
ce montage que Hertz non seulement prouva l'existence des ondes
électromagnétiques appelées tout d'abord
ondes de Maxwell, puis ondes hertziennes ,
mais encore précisa certaines de leurs propriétés.
Ces expériences eurent un grand retentissement à
l'époque. |
sommaire
La, télégraphie sans fil par les ondes électriques.
La télégraphie sans fil au moyen des ondes électriques
est encore dans la phase de son évolution du début.
Nous avons vu dans diverses expériences quil était
possible de télégraphier sans fil, en se servant pour
transmettre le courant sur une partie de son parcours, dun fleuve
ou dun bras de mer. On peut encore recevoir ce courant sans
communication appréciable en se servant de linduction;
il ny a pour cela quà tendre un fil téléphonique
pour surprendre tous les secrets des dépêches envoyées.
Mais cette fois, cest autre chose, et lorigine des expériences
vient en droite ligne des recherches du Dr Heinrich Hertz, mort le
5 janvier 1894, après avoir brillamment indiqué la voie
à suivre dans létude des phénomènes
électriques.
Maxwell avait soupçonné lidentité de la
lumière et de lélectricité, mais les expériences
qui devaient mettre en évidence cette identité nétaient
point faites. Cest au Dr Hertz quen était réservée
la démonstration. Grâce à son excitateur et à
son résonateur, tout un nouveau champ inexploré sest
ouvert devant les électriciens, et la première conquête
a été lunité des forces physiques, rêve
soupçonné et tant de fois caressé par le P. Secchi.
Lumière, chaleur, électricité, ne sont que des
ondulations plus ou moins rapides et, pour mieux les comprendre, nous
pouvons nous servir des lois de lacoustique quij règlent
les ondulations de lair.
Quand lexcitateur de Hertz entre en fonction, lespace
est envahi par une perturbation électro-magnétique,
et tous les objets conducteurs quil contient peuvent donner
des étincelles qui seront dautant plus vives, pour une
distance donnée, que la période doscillation électrique
de lobjet doù on les tire sapproche davantage
de la période électrique de lexcitateur. Cest
ainsi que, lorsque nous émettons un son dans une chambre, tous
les objets qui sy trouvent subissent leffet de londulation
de lair, mais quelques-uns, un violon par exemple, entrera en
vibration si sa. période est la même que celle du son
émis.
On a vérifié encore que ces radiations électriques
suivent les lois de la lumièr pour la réflexion et la
diffraction, toutefois, avec une différence qui est à
noter. Laction de lexcitateur de Hertz se transmet dans
lespace en traversant les corps électriques ou non conducteurs,
comme les murs, les portes, mais une surface conductrice arrête
ces radiations, forme obstacle et projette une ombre électrique
derrière elle, ce qui vérifie lautre hypothèse
de Maxwell que les diélectriques sont transparents (à
lélectricité) et les conducteurs opaques. Les
expériences de MM. Sarrasin et de La Rive ont donné,
en 1893, la confirmation expérimentale de ces idées.
Nous y retrouvons les lois de la lumière, mais quant à
la nature des écrans traversés ou impénétrables,
il semble que nous nous rapprochons davantage des rayons X.
Or, ces radiations électriques spéciales sont la base
de la nouvelle invention.
La première tentative faite pour utiliser ces radiations à
la transmission de signaux est due à Edison
qui disposa, à la partie supérieure dun mât,
une grande sphère métallique isolée et reliée
à un générateur spécial permettant de
lui donner une charge électrique intermittente à très
haut potentiel. Un second mât, placé à une certaine
distance, portait une sphère identique, reliée à
la terre par un fil sur lequel se trouvait intercalé un téléphone
; chaque charge ou décharge de la première sphère
agissait par influence sur la seconde et provoquait dans le récepteur
téléphonique des sons facilement perceptibles, nous
ignorons toutefois quelle fut la portée maximum qui put être
atteinte.
Quant aux dernières expériences entreprises depuis lors
par MM. Preece, Marconi, Popoff et divers que nous décrirons
plus loin, elles reposent entièrement sur les phénomènes
doscillations électriques étudiées, en
1887, par le physicien allemand Hertz. Il nous paraît donc indispensable
dexpliquer quelles sont ces oscillations et de dire un mot des
propriétés quelles possèdent, avant de
parler des applications qui en ont été réalisées
pour les transmissions des signaux à moyenne distance.
A. Popoff
Nous ne saurions mieux faire, afin dexpliquer plus clairement
le mécanisme des oscillations électriques, que demprunter
à une conférence de M. Popoff, savant russe, qui sest
beaucoup occupé de la question de télégraphie
à travers lespace, le très intéressant
exposé que voici :
Considérons une oscillation quelconque non électrique,
par exemple celle dun pendule. Si nous le mettons hors de son
état déquilibre, nous lui communiquons, en le
soulevant, une énergie potentielle qui, lorsque le pendule
retombe et commence à se mouvoir, se transforme graduellement
en énergie cinétique ; lorsque le pendule remonte de
lautre côté, lénergie cinétique
se transforme de nouveau en énergie potentielle et ainsi de
suite. Quelles sont les circonstances qui favorisent et celles qui
tendent à diminuer la durée de ce phénomène
? Il est évident que la quantité dénergie
originelle, cest-à-dire la hauteur à laquelle
fut soulevé le pendule déterminant son élan,
ainsi que la masse du pendule jouent ici un rôle principal.
On comprend que lénergie cinétique se transformerait
immédiatement en énergie calorique au lieu de potentielle
; si, par exemple, nous faisions mouvoir le pendule dans leau,
et nous nobtiendrions presque pas doscillations par suite
du frottement considérable de leau.
Afin que les oscillations ne sinterrompent pas en peu dinstants
il faudrait, au contraire, que les obstacles opposés au mouvement
mécanique soient aussi insignifiants que possible ; que par
exemple le pendule se meuve dans le vide et que les frottements au
point dattache soient réduits au minimum. Ces circonstances
accompagnent toute oscillation, sans exception, quel que soit le genre
du mouvement que nous considérons.
Nous allons voir notamment que ces considérations sappliquent
parfaitement bien aux oscillations électriques .
Comment peut-on dabord réaliser la transformation de
lénergie potentielle en énergie cinétique
dans les phénomènes électriques ?
Si nous prenons deux corps bien isolés et chargés lun
délectricité négative et lautre délectricité
positive, ces corps peuvent conserver leur charge pendant un temps
indéterminé. Ils possèdent lélectricité
sous forme dénergie potentielle. Si nous relions ces
deux corps par un conducteur rectiligne, il se formera un courant
électrique en donnant lieu à un genre particulier dénergie
cinétique.
La figure
17 représente deux sphères reliées par un conducteur
rectiligne interrompu.
Le courant se forme dès que la charge des sphères atteint
la différence de potentiel nécessaire pour vaincre la
résistance de lisolant qui sépare les deux extrémités
en présence du conducteur interrompu. Tant que la résistance
de cet isolant nest pas vaincue, la décharge na
pas lieu et lélectricité saccumule sous
forme dénergie potentielle. Lorsque la décharge
se produit, le courant qui se forme établit autour du conducteur
rectiligne un champ magnétique dont les lignes de force sont
disposées en cercles concentriques autour de ce conducteur.
Ce champ magnétique constitue une certaine forme de lénergie
potentielle.
Dès que les potentiels des sphères seront devenus égaux,
le courant devrait sinterrompre en même temps que la cause
qui le produisait ; mais comme cela a lieu dans le pendule au moment
où, étant arrivé au bas de sa course, la pesanteur
cesse dagir sur lui, le mouvement ne sarrête pas
; le courant est en effet prolongé par lénergie
accumulée en forme de champ magnétique et continue à
se produire en chargeant les sphères dans la direction opposée
à leur charge précédente. Ensuite, comme dans
le pendule, tous les phénomènes se répéteront,
de telle sorte quau moment où nous voyons jaillir létincelle,
il peut se produire plusieurs milliers de ces oscillations.
Lappareil devant produire des oscillations électriques
qui ne sarrêtent pas rapidement doit remplir, toujours
comme pour le pendule, certaines conditions. Aux extrémités
du conducteur, dans lequel on excite les oscillations, on place des
sphères ou des feuilles ayant une capacité électrique
assez considérable. Pour que la provision de lénergie
soit grande, il faut produire une grande différence de potentiel,
et pour que la décharge oscillante produite par les transformations
successives des énergies se prolonge, il faut naturellement
que les pertes secondaires dénergie soient aussi petites
que possible. Chaque fois que le courant passe par le conducteur,
une partie de lénergie se transforme en calorique, et,
pour cette raison, le conducteur doit présenter une résistance
aussi petite que possible. Pour quon perde peu de force dans
létincelle, celle-ci ne doit pas non plus dépasser
une certaine longueur. Aussi, pour accumuler beaucoup dénergie
potentielle, on augmente la durée de linterruption pendant
laquelle se produit la décharge, il peut arriver, si lon
vient à dépasser une certaine limite, quon nobtienne
plus doscillations. Cest le physicien Federsen qui démontra
expérimentalement ce caractère oscillant des décharges
électriques, produites dans les conditions qui viennent dêtre
indiquées, en les examinant au moyen dun miroir tournant,
donnant une série dimages distinctes dont léclat
va en décroissant. Cette nature oscillante des décharges
a étment été mise en évidence par M. Paalzow,
qui a fait jaillir des étincelles dans un tube de verre cylindrique,
dans lequel lair était raréfié au degré
du vide de Geissler, et qui était disposé parallèlement
aux deux pôles dun électro-aimant en U. Lorsque
la décharge ne se produit que dans un seul sens, la lueur produite,
attirée par un pôle et repoussée par l'autre,
prend lapparence dun S allongé ; si le sens de
cette décharge vient à être changé, lS
formé par la lueur change également de sens, la partie
attirée par lun des pôles de lélectro-aimant
étant alors repoussée et réciproquement. Enfin,
lorsque par suite des oscillations, la charge est, en réalité,
formée dune suite de décharges successives et
de sens opposé, la lueur traversant le tube, tantôt attirée,
tantôt repoussée par lun et lautre pôle
de lélectro, prend alors la forme de deux S accolées,
cest-à-dire dun 8. Tel est du moins le résultat
des observations de M. Paalzow.
Si lon modifie dans des proportions convenables la capacité
électrique des sphères métalliques, la résistance
du circuit et la longueur de létincelle de décharge,
comme a fait M. Lodge, on peut obtenir une gamme doscillations
électriques dont les périodes varient de un cent millionième
à un cinq centième de seconde. M. Bose, de Calcutta,
en réduisant la capacité de loscillation, a obtenu
des ondes de très courte période dont il a estimé
le nombre à 50.000 millions par seconde, Cependant on peut
faire remarquer que, même en admettant ce chiffre élevé,
on est encore bien loin de la rapidité des vibrations lumineuses,
dont le nombre est évalué, comme nous lavons dit,
à 500 trillîons par seconde.
Pour en arriver à la télégraphie sans fil par
les ondes électriques, disons de suite quelle repose
entièrement sur lapplication de deux principes fondamentaux,
découverts, le premier par Hertz, et le second par le
professeur français Edouard Branly.
Éd. Branly
Hertz a montré que, par des méthodes très simples,
les courants électriques pouvaient prendre la forme ondulatoire
et que les ondes électriques pouvaient se réfléchir,
se réfracter et se polariser comme les ondes lumineuses. Il
a ainsi donné une base expérimentale solide aux hypothèses
de Maxwell sur la théorie électromagnétique de
la lumière. Ces expériences nont eu, pendant longtemps,
quun intérêt purement théorique ; lidée
de recueillir ces ondes à distance pour les transformer en
signaux a dû sans doute germer dans lidée de bien
des inventeurs, mais les résonateurs Hertz ne révèlent
lexistence des ondes électriques quà quelques
mètres de distance de leur source, et ne donnent plus rien
si on les éloigne davantage. Le difficile était dimaginer
un appareil sensible aux ondes électriques à plusieurs
kilomètres de distance de la source les produisant.
Cette remarquable découverte est due, ainsi quil vient
dêtre dit, à M. Edouard Branly, et nous la décrirons
tout à lheure.
Lappareil combiné par Hertz comprenait l'oscillateur
produisant les ondes électriques, et le résonateur permettant
de révéler à distance la présence de ces
ondes et détudier leur mode de propagation. Loscillateur
était constitué par deux petites sphères métalliques,
entre lesquelles jaillissaient les décharges oscillantes, et
qui se trouvaient en communication avec deux plateaux métalliques
formant capacité électrique et reliés par des
conducteurs aux deux bornes du circuit secondaire dune bobine
dinduction de Ruhmkorff. Les étincelles jaillissant entre
les deux sphères sont dun blanc éblouissant et
crépitent fortement ; elles sont le siège dune
série doscillations électriques dont la fréquence
est déterminée par la capacité électrique
des surfaces conductrices en présence.
Fig. 18.
Expériences de Hertz.
Le révélateur dondes, que Hertz avait appelé
résonateur, par analogie avec les résonateurs dHelmhotz
qui décèlent les ondes sonores, était composé
dun circuit circulaire présentant une petite interruption
où jaillisent des étincelles lorsque cet appareil est
placé dans la zone dinfluence de loscillateur,
zone qui peut sétendre à 20 ou 25 mètres
de ce dernier, même sil est situé de lautre
côté dun obstacle tel quun mur en briques.
Hertz montra que lon peut obtenir des résultats beaucoup
plus avantageux en accordant loscillateur et le résonateur,
cest-à-dire en munissant les deux parties de ce dernier
de feuilles détain de dimensions convenables, augmentant
la capacité électrique et synchronisant le fonctionnement
des deux instruments. Il existe donc un rapport entre les capacités
électriques de loscillateur et du résonateur,
pour lequel l'action des ondes électriques émises par
le premier, présente un effet maximum sur le second ; il se
produit dans ce cas un phénomène analogue aux phénomènes
de résonance observés en acoustique et que lon
démontre dans les cours de physique à laide de
deux diapasons donnant la même note. On fait vibrer lun
de ces deux diapasons ainsi accordés à lunisson,
et aussitôt celui qui na pas été excité,
se met également à vibrer sous laction des vibrations
sonores que lon peut rendre visibles par des procédés
classiques.
Dans une série dexpériences des plus intéressantes,
Hertz montra lanalogie qui existe entre les ondes électriques
et les ondes lumineuses, et il utilisa à cet effet un appareil
se rapprochant de celui que représente notre figure 18, et
qui est construit pour les expériences de cours. Cet appareil
est constitué par deux miroirs identiques, de forme cylindro-parabolique,
mesurant 45 centimètres de longueur sur 30 centimètres
douverture et supportés par deux pieds à hauteur
variable. Lun de ces miroirs reçoit sur sa ligne focale
un petit oscillateur de Hertz à trois sphères, relié
à une source délectricité à haut
potentiel donnant des étincelles dau moins 2 millimètres
de longueur. Un arrachement dans le miroir T permet dapercevoir
cet oscillateur.
Lautre miroir reçoit sur sa ligne focale un résonateur
Hertz ou un radioconducteur Branly, qui est plus sensible, et que
lon relie à un circuit contenant une pile et une sonnerie.
Rappelons en passant que, lorsque les ondes électriques parviennent
au radioconducteur, celui-ci devient conducteur, le courant de la
pile passe et la sonnette fonctionne ; un léger choc ramène
les choses à leur premier état, et la sonnette sarrête.
Voici maintenant les différentes expériences que lon
peut réaliser avec cet appareil complété par
trois écrans en bois dont deux sont entièrement recouverts
dune feuille détain et le troisième revêtu
simplement de bandes détain collées parallèlement
et formant un réseau.
Si lon place les deux miroirs lun en face de lautre
à une distance denviron un mètre, comme lindique
la figure 9, dès que létincelle jaillit entre
les sphères de loscillateur, les ondes électriques
agissent sur le radioconducteur et la sonnerie entre en fonction.
Si lon intercale entre les deux miroirs une plaque de bois,
de verre, débonite ou dun corps isolant quelconque,
la sonnerie entrant encore en fonction démontre que les ondes
électriques ne sont pas arrêtées par ces corps
; si au contraire lon met un des écrans revêtus
dune feuille de métal ou une plaque métallique
quelconque, le non fonctionnement de la sonnerie démontre que
les ondes sont arrêtées par les surfaces métalliques
et prouve en même temps que ces ondes se propagent en ligne
droite, puisquelles ne peuvent contourner lobstacle qui
leur est opposé. Si enfin on interpose lécran
de bois portant des bandes détain, la sonnerie fonctionnera
au cas où les bandes sont disposées verticalement, et
non lorsquelles seront horizontales et parallèles au
plan focal des miroirs.
La réflexion des ondes électriques peut être mise
en évidence en disposant les miroirs T, R comme lindique
la figure 19, de telle façon que leurs axes soient perpendiculaires
et en plaçant en E perpendiculairement à la bissectrice
de langle de ces axes un écran métallique jouant
le rôle de miroir plan ; la sonnerie entre en action dès
que jaillit la décharge, démontrant ainsi la réflexion
des ondes électriques, puisque lécran E,
disposé spécialement, empêche toute action directe.
Si lécran E se trouve déplacé dans
un sens quelconque la sonnerie ne fonctionne pas, les ondes nétant
plus réfléchies sur le radioconducteur. Si lon
place en E lécran portant les bandes d étain
les ondes sont réfléchies si les bandes sont horizontales,
non si elles sont verticales, partiellement si elles sont faiblement
inclinées sur lhorizontale.
Fig. 19.
Si enfin lon place le miroir T verticalement en face du miroir
E restant horizontal, la sonnerie ne tinte pas et cette expérience
correspond aux expériences de polarisation obtenues en optique
à laide de deux prismes de Nicol, qui placés parallèlement,
donnent un champ lumineux qui séteint lorsquils
sont croisés à 90° ; lorsque lon place une
tourmaline convenablement orientée entre les deux niçois
croisés, le champ sillumine à nouveau ; de même
lorsque lon dispose entre nos deux miroirs placés perpendiculairement
lun à lautre lécran portant les bandes
métalliques la sonnette sonne lorsque ces bandes sont disposées
à 45°, si au contraire les bandes sont horizontales ou
verticales, elle ne sonne pas.
On voit par là des analogies qui existent entre les ondes électriques
et les ondes lumineuses ; il est donc naturel que lon puisse
utiliser les premières comme les secondes à la transmission
de signaux à travers lespace. Pour résoudre ce
problème, il suifit de créer un oscillateur produisant
des ondes électriques de grande puissance et surtout un résonateur
de grande sensibilité pour pouvoir être impressionné
par des ondes ayant traversé un grand espace et arrivant par
suite très affaiblies à lappareil récepteur.
Cétait surtout le récepteur qui laissait à
désirer dans les expériences de Hertz. On comprend,
en effet, facilement que lappareil disposé comme il a
été dit ne pouvait être bien sensible et que,
de plus, sa façon de décaler les ondes électriques
était assez difficile à saisir, aussi, passé
quelques mètres, on nobtenait plus aucun résultat.
MM. Egoroff, Zehnder et Righi modifièrent le résonateur
de Hertz en faisant jaillir la décharge non plus à lair
libre mais dans un petit tube de Geissler qui silluminait lorsquil
était exposé aux radiations électriques. Ainsi
transformé et amélioré, le résonateur
acquérait une sensibilité beaucoup plus considérable,
et les observations ainsi faites dans lobscurité étaient
beaucoup plus faciles et plus précises. Cependant la portée
demeurait encore très limitée, et lenregistrement
des ondes à moyenne distance était toujours aussi impossible
par ce procédé. Cest donc en partant dun
principe tout différent que M. Branly a pu arriver à
ce résultat qui a fait entrer la télégraphie
électrique sans fil dans le domaine de la pratique.
On répète dans les cours de physique une expérience
qui peut aider à comprendre le fonctionnement du radioconducteur
inventé par M. Branly.
Voici en quoi elle consiste (fig. 20) : un conducteur métallique
dans lequel sont intercalés quelques éléments
de piles et une sonnette, possède à ses extrémités
deux lames métalliques ; lorsque ces lames sont en contact,
le circuit se trouve formé et la sonnette vibre sans discontinuer.
Fig. 20.
Disposition de la chaînette.
Si Ton dispose ces lames sur une tablette, à quelques millimètres
lune de lautre, et quon les relie entre elles par
une traînée de fine limaille métallique, le circuit
est fermé, mais la sonnette reste muette, la résistance
que la limaille présente au passage du courant étant
très élevée. Mais alors, si lon fait éclater
à quelque distance, une étincelle de haute tension,
soit à laide dune machine statique de Wimshurt
munie de son condensateur, soit au moyen dune bobine dinduction
et dun oscillateur de Hertz, la limaille devient brusquement
conductrice et demeure conductrice après que létincelle
a cessé. On a ainsi le phénomène dune substance
qui nétait pas conductrice de lélectricité,
et qui le devient de façon persistante sous linfluence
dune décharge électrique à distance.
M. Popoff explique ce phénomène par une autre
expérience : il intercale dans un circuit deux éléments
de pile, une sonnerie et une petite chaînette métallique
suspendue à une potence. En augmentant progressivement le nombre
des chaînons de la chaîne intercalés dans le circuit,
il arrive un moment où la résistance se trouve être
suffisante pour que la sonnette cesse de fonctionner. Si, à
ce moment, on tire sur la chaînette, les contacts des chaînons,
entre eux deviennent immédiatement plus parfaits et la sonnette
retentit à nouveau ; si lon cesse cette traction et que
lon secoue la chaîne, la résistance augmente, et
la sonnerie sarrête de nouveau. Daprès MM.
Lodge et Popoff, les grains de la limaille, dans la première
expérience citée agissent dune façon analogue
à celle des maillons dans la chaînette, suivant lexpression
créée par M. Lodge lui-même, ils cohérent,
et leur ensemble oppose une résistance beaucoup moins grande
au passage du courant ; une légère secousse suffit ensuite
pour décohérer cette limaille lorsquelle ne se
trouve plus sous linfluence des radiations électriques,
elle revient ainsi à son état primitif et redevient,
par suite, apte à être de nouveau influencée par
ces radiations.
Dans sa communication à lAcadémie des Sciences,
M. Branly sest exprimé comme suit :
( Edouard Branly : Comptes rendus de lAcadémie des
sciences, 24 novembre 1890, 12 janvier 1891, 12 février 1894;
Bulletin de la Société française de physique,
avril 1891 ; Journal la Lumière électrique, Ier semeslre
1891)
Une limaille métallique est évidemment une substance
discontinue ; elle consiste en grains de métal, indépendants,
séparés par des intervalles dair isolants. La
conductibilité produite dans la limaille sétablira
encore, dans les mêmes circonstances, si lon y remplace
lair par un autre isolant comme le soufre ou la résine
en proportion suffisamment petite. Tel est le cas dune pastille
solide obtenue en agglomérant de la résine en poudre
et de la limaille à la température de fusion de la résine.
Les substances discontinues, très variées, qui jouissent
de la propriété de passer ainsi de létat
disolant à létat de conducteur, sont dites
des radioconducteurs ; ce nom rappelle que leur conductibilité
sétablit sous linfluence du rayonnement électrique
qui émane dune étincelle.
Laction des étincelles décroît quand la
distance augmente, mais on lobserve avec la plus grande facilité
à 25 ou 50 mètres, soit à lair libre, soit
à travers des cloisons et des murs, avec une épaisseur
de 1 à 2 millimètres de limaille daluminium, de
bronze daluminium, de maillechort, convenablement tamisée
et comprise entre deux tiges métalliques. Marconi, en 1897,
dans ses remarquables essais de télégraphie sans fil,
la observée à 14 kilomètres.
Un radioconducteur (fig. 21) intercalé dans un circuit de pile
se comporte dabord comme un isolant et maintient Je circuit,
ouvert ; dès quune étincelle éclate, il
devient conducteur et ferme le circuit. 13e là le moyen de
déterminer à distance, sans fil intermédiaire,
à un instant donné, les divers effets du courant.
.png) 
Le maillet était utilisé pour frapper le cohéreur,
après réception, afin de le faire revenir à état
électrique initial
Le radioconducteur est un tube de verre dans lequel on fait le vide,
qui contient entre deux tampons métalliques quelques fragments
de limaille peu oxydable. La résistance du tube à limaille
diminue brusquement dans de fortes proportions en présence
d'une onde hertzienne le traversant, la limaille est cohérée.
Ce cohéreur à limaille fut perfectionné par le
physicien anglais Oliver Lodge qui réussit avec ce dispositif
à détecter les ondes hertziennes jusqu'à une
distance de 30 mètres.
Leffet que je viens de décrire, déviation dun
galvanomètre, était faible ; le courant était
dû à un élément de pile et, bien que la
résistance du radioconducteur fut parfois très réduite,
par laction de létincelle, lintensité
du courant qui le traversait ne dépassait pas une fraction
dampère.
On peut produire des effets beaucoup plus puissants et lintensité
du courant qui traverse un radioconducteur, après laction
de létincelle, peut dépasser 20 et 25 ampères.
Composons, par exemple, un circuit avec une batterie de 12 à
15 accumulateurs, un fil de platine iridié de 1 mètre,
et une couche de quelques millimètres de limaille daluminium
contenue dans un tube de verre à larges électrodes métalliques.
La limaille intercepte le courant et louverture se fait à
un godet de mercure dans le circuit sans apparition détincelle.
Si lon vient à décharger un condensateur à
distance, le fil de platine rougit vivement. On peut opérer
de même lallumage de lampes à incandescence ; on
peut encore voir un électro-aimant sanimer subitement,
attirer et maintenir soulevé un lourd boulet de fonte ; une
bobine dinduction fonctionner et illuminer des tubes de Geissler,
un moteur électrique entrer en travail ; une pièce dartifice
faire explosion. Dans tous les cas, une étincelle détermine
au loin de puissantes actions.
Dans les applications des tubes à limaille, il ne faut pas
perdre de vue que le diamètre des grains et leur tassement
doivent être en rapport avec la force électromotrice
de la pile, car cette force électromotrice exerce par elle-même,
pour faire passer le courant, un effort dautant plus efficace
quelle est plus élevée. Pour une même limaille,
le diamètre des grains et leur tassement doivent diminuer quand
la force électromotrice augmente. Pour des limailles différentes,
diverses autres conditions interviennent et spécialement le
degré doxydation. Enfin, la section de la partie utile
du tube se règle dapiès lintensité
du courant ; les petites sections, suffisantes pour de faibles courants,
font place à de fortes sections pour des courants forts, afin
que la résistance du radioconducteur ne diminue pas dans une
trop importante mesure lintensité du courant mis en circulation.
En pratique, même pour produire de grands effets, il nest
pas nécessaire de faire traverser un radioconducteur par des
courants intenses, si, au circuit qui le comprend et qui contient
seulement un élément de pile, on ajoute un électro-aimant.
Quand une étincelle éclate, le circuit du radioconducteur
se ferme, lélectro-aimaut saimante, son contact
de fer doux entraîne une pièce métallique qui
ferme un deuxième circuit, le circuit principal ; celui-ci
comprend une batterie daccumulateurs.
Jusquici, pour produire à distance les divers effets
de courant, on avait recours à un électro-aimant dont
le contact de fer doux servait à fermer le circuit principal.
Lélectro-aimant faisait partie dun premier circuit
relié à la station de départ par deux longs fils
métalliques. En appuyant sur une manette on fermait le premier
circuit et, par lélectro-aimant et son contact, le circuit
principal se fermait en même temps à la station darrivée.
Lélectro-aimant se désaimantait en cessant dappuyer
sur la manette, son contact séloignait et le circuit
principal souvrait. Cest cette aimantation intermittente
qui a conduit aux applications si variées des électro-aimants
et en particulier à la télégraphie ordinaire,
car pour une transmission de signaux, il suffit quon puisse
ouvrir et fermer un circuit à intervalles rapprochés.
Lemploi dun radioconducteur et sa propriété
de devenir conducteur par létincelle permettent de supprimer
les deux fils de communication de l'electro-aimant avec la station
de départ. A cette station, on dispose un appareil à
étincelles qui agit sans fil à distance. Par une étincelle
les circuits se ferment. Pour quils souvrent, on supprime
la conductibilité du radioconducteur, on y parvient par le
choc.
Pour montrer laction du choc, répétons lexpérience
fondamentale en formant un circuit avec un élément de
pile, un tube à limaille et un galvanomètre. Une étincelle
éclate, le galvanomètre est dévié. En
frappant sur le tube, on fait disparaître sa conductibilité.
La conductibilité dun radioconducteur est donc à
volonté intermittente.
Pratiquement, pour supprimer à un moment donné la conductibilité,
il nest pas nécessaire de placer un opérateur
chargé de produire les chocs auprès des appareils quune
étincelle a mis de loin en action ; ce serait, en effet, perdre
lavantage de leffet à distance. A laide de
dispositions spéciales, familières aux électriciens,
on fait en sorte que le courant mis en circulation par la conductibilité
du radioconducteur agisse dune façon automatique sur
un marteau qui frappe le tube, le rend isolant et ouvre ainsi le circuit.
Une nouvelle étincelle le ferme, un nouveau choc louvre,
et ainsi de suite.
A cause de leur extrême impressionnabilité à distance,
les radioconducteurs sont jusquici les plus sensibles des révélateurs
des ondes électriques ; leur emploi comme récepteurs
dans les expériences de télégraphie sans fil
de Popoff en 1896, et de Marconi en 1897, montre combien leur importance
pratique peut être grande ».
Si nous en revenons encore à lexpérience de la
chaînette décrite tout à lheure, nous remarquerons
que la quantité de mailles intercalées dans le circuit
pour arrêter la sonnette actionnée par deux éléments
de pile, sera insuffisante pour larrêter si lon
emploie davantage de piles, donnant une force électromotrice
plus élevée, il faut donc proportionner le nombre de
mailles suivant la force électromotrice du courant ; il faudrait
également avoir soin demployer plusieurs chaînettes
parallèles si lintensité du courant était
trop forte pour une seule.
De même, quand on répète lexpérience
avec la limaille, la longueur et la section de sa couche doivent être
exactement déterminées pour obtenir le maximum de sensibilité
suivant lintensité et la force électromotrice
du courant. Le diamètre des grains et leur tassement jouent
également un rôle important ; pour une même .limaille,
ces deux facteurs : diamètre et tassement doivent diminuer
à mesure que la force électromotrice augmente.
Ainsi que nous lavons dit, M. Lodge donna le nom de cohé-reur
à lappareil inventé par M. Branly, en raison de
lexplication du phénomène dérivant de la
chaînette, mais M. Branly, qui se refuse à admettre la
théorie de M. Lodge, continue à préférer
le nom de radio conducteur qui indique bien la propriété
de devenir conducteur sous linfluence des radiations électriques.
M. Branly contrairement à MM. Lodge et Popoff, est donc persuadé
quil ne se produit aucun mouvement mécanique dans la
limaille soumise à laction des ondes électriques,
et il base son opinion sur les expériences quil a faites
en agglomérant par fusion des poudres métalliques avec
des isolants solides.
Les propriétés de la limaille, dont les particules sont
ainsi immobilisées, restent en effet les mêmes ; les
variations de résistance se présentent dans les mêmes
conditions et la conductibilité disparaît de même
sous laction du choc et de la chaleur. M. Branly expérimenta
ainsi des agglomérés de limailles et de résines,
gomme-laque, baume, collodion, gélatine, celluloïd, etc.;
il put, dans ses essais, obtenir des mélanges qui, aussitôt
quils nétaient plus soumis à linfluence
des ondes électriques, revenaient sans choc à leur résistance
primitive. On peut penser, dailleurs, que sil se produit
cependant, sous laction des radiations électriques, un
déplacement des particules de limaille qui sorientent
et deviennent adhérentes les unes aux autres pour constituer
une série de petites chaînettes parallèles, si
en somme il se produit une action analogue à celle que lon
sait sur la limaille de fer par lapproche dun aimant,
on doit pouvoir constater ce mouvement à lobservation
microscopique. Aussi pour vérifier le bien fondé de
cette supposition, M. J.-L. Breton a examiné au microscope
sous différents grossissements la façon dont se comportent
les limailles métalliques sous laction des ondes électriques.
Fig. 22. Dispositif de M. J.-L. Breton pour létude
de laction dos ondes électriques sur les limailles métalliques.
Le dispositif suivant a été adopté par lexaminateur
(fig. 22) : en B se trouve la bobine dinduction dont les deux
bornes bb du circuit secondaire sont reliées aux deux branches
oo dun oscillateur de Hertz destiné à produire
les ondes ; des feuilles de clinquant ff sont destinées à
augmenter la capacité électrique de cet oscillateur.
Le microscope M, placé à une distance plus ou moins
grande de loscillateur, reçoit sur sa platine P un petit
radioconducteur très simplement constitué par deux feuilles
détain collées sur une de ces petites lames de
verre que lon emploie pour les préparations microscopiques,
et laissant entre elles un petit intervalle dans lequel on place la
limaille à examiner. Ces lames sont représentées
en a sur la gravure ; elles varient de lune à lautre
par la forme des électrodes et la distance les séparant.
Pour distinguer dans le champ du microscope les deux électrodes
et toute la limaille active, on colle une feuille détain
sur la lame de verre et on lentaille, de deux traits en x au
moyen dun rasoir ou dun canif bien affilé ; la
limaille est versée dans ces solutions de continuité.
Afin daugmenter laction des radiations électriques
sur la limaille, M. Breton dispose sur les deux électrodes,
par lintermédiaire de tiges de cuivre appuyées
sur des supports isolants, des feuilles de clinquant de grandeur appropriée.
Il harmonise ainsi son résonateur avec loscillateur,
et augmente lintensité des ondes agissant sur la limaille.
Dans ces expériences, la bobine employée pouvait donner
des étincelles de 30 centimètres de longueur, ce qui
constituait des conditions très suffisantes pour obtenir une
action énergique.
Malgré cela, lobservateur na pu constater, sous
linfluence des radiations, aucun mouvement des particules de
limaille, qui apparaissaient cependant très nettement dans
le champ du microscope, grâce au fort grossissement choisi.
Cependant, lorsquon faisait usage de la limaille de fer, lapproche
dun aimant à quelques centimètres sous la platine
du microscope, déterminait un déplacement très
sensible des particules de limaille qui se groupaient en dessinant
les lignes de force.
Lorsquon ne dispose que quelques grains de limaille entre les
électrodes, de telle sorte quil ny ait pas contact
entre tous et que de petits intervalles subsistent, on voit, aussitôt
que loscillateur fonctionne, se produire une succession de petites
étincelles dans ces intervalles (connues par lexpérience
du carreau et du tube étincelants, avec la machine statique).
Sous laction de ces décharges, les particules de limaille
sont déplacées : tantôt elles arrivent en contact,
tantôt au contraire, elles sont rejetées très
loin lune de lautre ; et, dans les deux cas, soit quune
chaînette continue sétablisse entre les électrodes
donnant passage aux décharges, soit que lespace entre
les particules devienne trop considérable pour permettre la
production de ces décharges, les étincelles prennent
très rapidement fin. Un léger choc, modifiant la disposition
des particules, rétablit pour quelques instants très
courts la production détincelles.
« Toutefois, ajoute M. Breton, il ny a rien dans tout
cela de surprenant et qui ne pouvait être prévu, Hertz
ayant déjà constaté que sous laction des
ondes électriques, des étincelles pouvaient jaillir
dans la petite interruption dun conducteur placé à
proximité de loscillateur ; quant au déplacement
irrégulier des particules de limaille, qui, sous laction
des étincelles ainsi produites, se meuvent au hasard, se rapprochant
ou séloignant les unes des autres suivant la manière
dont elles sont frappées par les décharges, il semble
démontrer que les ondes électriques ne possèdent
même pas une tendance à orienter, dune façon
nettement déterminée, ces particules. Par conséquent,
nous pouvons avancer que les variations de conductibilité que
lon observe dans un radioconducteur soumis à linfluence
des ondes électriques ne peuvent être attribuées
à une action mécanique, à un déplacement,
à un rangement spécial des particules de limaille, et
voici comment il semble que lon puisse expliquer laction
physique qui régit ce phénomène.
« A létat ordinaire la limaille intercalée
dans un circuit parcouru par un courant de faible force électromotrice
présente une résistance trop considérable pour
se laisser traverser par ce courant ; les ondes électriques
qui agissent sur lappareil développent, au contraire,
dans le circuit, interrompu par lintercalation du radioconducteur,
une différence de potentiel assez considérable»
dans certains cas, pour donner lieu à une étincelle
dans le résonateur de Hertz, et qui peut, par suite, vaincre
la résistance infiniment moindre opposée par la limaille
; (cest justement pour cette raison que là où
le résonateur Hertz ne donne plus aucun résultat, le
tube à limaille dont le circuit est bien moins résistant
se laisse traverser par les courants induits par les ondes électriques)
; en traversant la limaille, les décharges ainsi produites,
quoique dintensité négligeable, détruisent
en partie la résistance, ouvrent pour ainsi dire la porte au
courant de la pile locale, entraînent si lon veut (quoique
cette comparaison soit en réalité peu exacte) ce courant
comme dans linjecteur Griffard le courant deau à
haute pression jaillissant à travers les deux tubulures tronconiques
entraîne une grande masse deau de pression nulle. Les
ondes électriques procurent, en somme, la force électromotrice
nécessaire pour vaincre la résistance primitivement
opposée par la limaille.
« On a vu plus haut que, pour certain mélange de limaille,
Branly put obtenir des radioconducteurs revenant deux-même
sans choc, à leur résistance primitive dès que
cesse laction des ondes électriques ; dans la plupart,
au contraire, il faut un choc pour interrompre le courant qui, sous
laction des ondes, se fraye un chemin à travers la limaille.
Le fait suivant, connu de tous les électriciens, nous donnera
facilement lexplication de ce phénomène ; on sait,
en effet, que lorsque lon rompt un circuit électrique
traversé par un courant dassez grande intensité
et tension, un circuit déclairage par exemple, il se
forme, dès la rupture, un petit arc entre les deux extrémités
du circuit ainsi ouvert ; si ces extrémités restent
à une très faible distance cet arc ainsi formé
se maintient pendant un temps assez long et on peut le faire disparaître
par un soufflage ou un choc ; or, il est évident que la force
électromotrice du courant serait tout à fait insuffisante
pour faire jaillir cet arc entre les deux pièces métalliques
en présence, mais une fois créé, une fois la
première résistance vaincue, il se maintient ; cest
même pour empêcher laction funeste de ces arcs sur
les pièces des interrupteurs que lon utilise des interrupteurs
à rupture., brusque. Si au lieu de former cet arc par rupture
du circuit on lobtient par lélévation de
la force électromotrice du courant, le résultat sera
le même ; cest ainsi que, si dans un circuit interrompu
par un intervalle assez grand pour empêcher la décharge
de se produire on élève la différence de potentiel
dune façon suffisante pour vaincre la résistance
de la couche dair ou disolant interposé, un arc
jaillit et se maintient même dès que le courant est revenu
à sa tension primitive. Ce dernier cas est donc bien analogue
au phénomène observé dans le radioconducteur
et donne quelque poids à notre explication. Plusieurs expériences
pourraient dailleurs être faites pour confirmer cette
explication, mais nous navons malheureusement pas eu le temps
matériel de les réaliser.
La dernière forme donnée par Branly à ses radioçonducteurs
est la suivante : il renferme la limaille métallique dans une
chambre étroite en ébonite, disposée verticalement
; cette limaille se trouve comprise entre deux tiges métalliques,
dont lune peut être plus ou moins rapprochée ou
écartée à laide dune vis de pression,
Pour amener lappareil à son maximum de sensibilité,
on comprime légèrement la limaille en tournant la vis
jusquau moment où le miroir dun galvanomètre
très sensible, intercalé dans le circuit, se trouve
légèrement dévié ; lappareil se
trouve alors à son maximum de sensibilité et, sous laction
dondes électriques, sa conductibilité augmente
dans une grande mesure et la déviation du miroir du galvanomètre
devient très accentuée ; si, en tournant la vis, on
dépassait la mesure et que la déviation primitive obtenue
fût trop considérable, un léger choc suffirait,
sans détourner la vis, à ramener au zéro le galvanomètre.
« Laction des étincelles oscillantes sur ces radioconducteurs
décroît naturellement quand la distance augmente ; on
peut toutefois lobserver avec la plus grande facilité
à une cinquantaine de mètres et nous verrons tout à
lheure quelle est encore sensible à plusieurs kilomètres.
M, Branly a démontré que les courants traversant des
radio-conducteu rs convenablement disposés pou vaient être
considérables ; il atteignit, en effet, des intensités
de 25 ampères. Il composa, par exemple, un circuit avec une
batterie de 12 à 15 accumulateurs, un fil de platine iridié
de un mètre et une couche de quelques millimètres de
limaille daluminium contenue dans un tube de verre à
larges électrodes métalliques. La limaille intercepte
le courant et louverture du circuit peut se faire sans la moindre
étincelle ; mais, sous linfluence dondes électriques,
le courant passe immédiatement et le fil de platine rougit
aussitôt. On peut par le même procédé, provoquer
lallumage de lampes à incandescence, faire entrer en
action un gros électro-aimant, mettre en route un moteur électrique,
etc,, et tout cela à distance sous la simple influence dondes
électriques. On voit par là, quen dehors de la
télégraphie, ces appareils sont susceptibles de nom_
breuses applications.
Pour produire de grands effets il nest dailleurs pas nécessaire
de faire traverser le radioconducteur employé par un courant
intense et il suffit de faire agir le faible courant qui le parcourt
sur un relais sensible qui ferme un second circuit, lequel peut recevoir
un courant dintensité illimitée.
Mis à lintérieur dune boîte métallique
hermétiquement close le radioconducteur nest plus influencé
par des ondes électriques; mais la plus petite fissure suffit
à laisser passer les ondes électriques qui agissent
sur la limaille. Cest ainsi que si lon renferme dans une
caisse métallique étanche un radioconducteur avec une
pile et une sonnerie, celle-ci reste silencieuse à proximité
dun oscillateur en fonction ; elle entre au contraire en action
si une légère ouverture livre passage aux ondes électriques.
sommaire
Les expériences de Marconi.
Si lon base les antériorités des découvertes
scientifiques sur des documents certains et authentiques, sans sen
rapporter aux affirmations verbales ou écrites des chercheurs
sur lorigine de leurs travaux, il semble établi que la
priorité matérielle de lidée de la télégraphie
sans fil au moyen des ondes électriques appartienne plutôt
à M. Popoff, professeur russe.
Le brevet anglais de M. Marconi date en effet, du 2 juin 1896,
tandis que la publication du mémoire de M. Popoff, dans le
tome XXVIII du Journal de la Société physico-chimique
russe, remonte au mois de décembre 1895.
Nous donnerons, dans un chapitre spécial, le résumé
des recherches de M. Popoff ; pour le moment nous ne nous occuperons
que des expériences réalisées jusquà
lheure actuelle par le jeune physicien italien.
Daprès un remarquable article de M. Albert Battandier
dans le Cosmos,M. Marconi serait né à Bologne en 1874,
et il fit dans cette ville ses premières études de physique
et de sciences naturelles. Etant allé à Londres, en
1896, pour affaires dintérêt privé, il parla
des expériences quil avait faites sur la transmission
électrique sans fil, et les résultats déjà
obtenus. Il ne voulait pas encore mettre sa découverte dans
le public, la considérant comme insuffisamment mûrie
et incomplète; lenfant sil est permis de
parler ainsi nétait encore quau maillot,
et il voulait se présenter adulte, mais les Anglais, ayant
du premier coup dil compris la portée de ces études,
sen sont emparé et ont obtenu de lui quil les donnât
telles quelles. Aussitôt, M. Preece, chef des télégraphes
anglais, donna une conférence sur ce sujet et fit connaître
au public émerveillé les résultats obtenus par
le jeune physicien italien.
Il na pas découvert, il faut le dire, une nouvelle force
de la nature, mais la possibilité de mieux se servir dune
force existante. Nous avons vu que les radiations issues de lexcitateur
Hertz pouvaient passer à travers des diélectriques,
mais sont arrêtées par les corps conducteurs qui ont,
de plus, le pouvoir de les réfléchir. De plus, leur
effet ne se produisait que dans un rayon assez restreint, une cinquantaine
de mètres au maximum ; en un mot, il les a fait sortir de ce
cercle étroit.
Nous entrons dans le champ de linvention nouvelle, et il ne
faudra pas sétonner si les explications données
par M. Marconi aux personnes qui lont interviewé dans
les débuts ont paru un peu obscures. La faute en a été
à la réserve de linterviewé et à
linexpérience électrique de lintervieweur.
M. Marconi a dabord cherché et trouvé quelque
chose de plus sensible que le résonateur de Hertz ; il a constaté
ainsi que leffet des radiations électriques se faisait
sentir beaucoup plus loin et il affirme quil a pu le reconnaître
à une distance de plusieurs kilomètres. De plus, les
radiations hertziennes, bien quelles traversent des corps diélectriques,
comme un mur, une porte, ne les traversent pas tous ou sous une grande
épaisseur. Les plaques métalliques les réfléchissent,
mettant ainsi un obstacle à leur propagation. Il a trouvé
le moyen de les renforcer à ce point quil leur fait traverser
des amas de terre, de telle sorte que deux points séparés
par une montagne peuvent être en communication, la radiation
ou oscillation électrique se transmettant à travers
le massif montagneux avec presque autant de facilité quau
travers de lair.
Mais ces radiations à cette distance et à travers toutes
les résistances accumulées sur leur trajet devaient
nécessairement devenir de plus en plus faibles et on ne pouvait
constater au poste de réception quun courant incapable
de produire une action quelconque. M. Marconi a renoncé à
linscription directe de ces vibrations trop faibles, mais il
se sert de leur action pour mettre en mouvement une pile qui, étant
insérée dans le circuit dun télégraphe,
le fait agir. En un mot, cest le système du relais, télégraphique.
Ainsi que le lecteur peut sen rendre compte, les explications
données au début par linventeur se réduisaient
à peu de chose, mais il faut bien admettre, après la
conférence de M. Preece, quil est arrivé au résultat
quil annonçait à lassemblée. Ceci
posé, quelles seront les conséquences de cette découverte
?
Il est clair quon ne peut pas prévoir ce quelle
deviendra plus tard. Quand on commença à se servir du
téléphone, son action ne se faisait sentir utilement
quà un nombre très restreint; de kilomètres,
et maintenant, on téléphone couramment à travers
les 863 kilomètres qui séparent Paris de Marseille.
Il faut donc raisonnablement sattendre à un développement
similaire de la nouvelle découverte ; telle quelle est
cependant, dans son état embryonnaire, elle nest pas
sans intérêt immédiat.
Quand, sur mer, la pluie ou le brouillard empêche les éclairs
du phare darriver au navire, ce dernier étant à
quatre ou cinq kilomètres du phare, que nous supposons muni
dun excitateur Hertz, il pourra, grâce à son résonateur,
être électriquement averti de son approche. Ce résonateur
mettra en branle une cloche dalarme ou bien servira à
communiquer télégraphiquement avec le phare.
En cas de guerre, deux corps séparés par une montagne
et dont la distance sera moindre de 4 kilomètres pourront se
trouver en communication électrique et, par conséquent,
combiner leur action sans pose de fils, sans quaucun obstacle
naturel puisse empêcher lémission du courant. Ce
sera un grand avantage toutes les fois quil sagira de
relier deux postes qui se trouvent à courte distance, mais
en dehors du rayon visuel. Et si limagination voulait se donner
libre carrière, il ne serait pas lointain le jour où
les journaux pourraient recevoir leurs dépêches sans
payer les tarifs élevés des Compagnies télégraphiques
et téléphoniques et, ce qui est mieux, sans passer par
les fourches caudines dun pouvoir qui retient leurs télégrammes
quand ils ne leur conviennent pas, ou les transmet dabord à
dautres quà lintéressé.
Les Anglais ont accueilli avec enthousiasme cette nouvelle invention
et nous devons lui faire bon visage en France, car elle nous assure
actuellement en partie une parcelle de ces libertés que lon
nous a promises, sans nous les donner, en 89 : celle de correspondre
sans entraves et sans contrôle avec nos semblables. Cest
probablement pour cette raison que les gouvernements lui feront une
guerre aussi acharnée quimpuissante, car les radiations
Hertz ne pourront pas être soumises aux droits de douane et
ne seront pas astreintes à passer par les bureaux.
Quoi quil en soit, les procédés de Marconi ont
été lobjet dun accueil des plus flatteurs
en Angleterre,et une Société na pas tardé
pas à être constituée au capital de deux millions
500.000 francs pour le développement et lexploitation
de ces procédés de télégraphie. Et tandis
que, sur le continent, les chercheurs poursuivaient sans relâche
leurs études pour les amener à la perfection, et que
les Académies discutaient ; de lautre côté
du détroit, on passait immédiatement à la pratique
et des postes de télégraphie par ondes électriques
étaient organisés et outillés sans perdre de
temps. Yoici en quoi consiste le matériel employé par
M. Marconi :
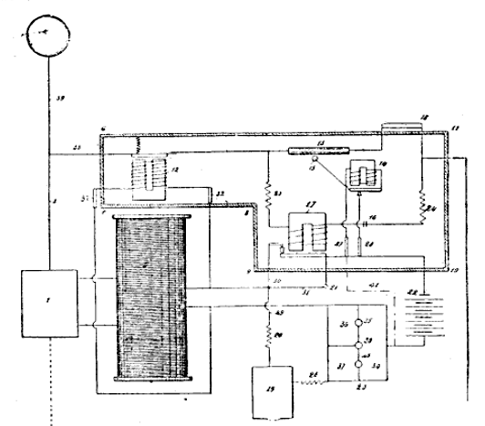
Transmetteur. Le transmetteur Marconi nest pas autre
chose que le radiateur de Hertz sous la forme que lui a donnée
le professeur Righi.
Deux sphères solides de laiton de 10 centimètres de
diamètre sont fixées dans une caisse étanche
isolante, de telle façon quune moitié de sphère
seulement soit ex-posée à lair, lautre moitié
étant plongée dans un bain dhuile de vaseline.
Cette huile a pour avantage de maintenir électriquement propres
les surfaces des sphères, en évitant le fréquent
polissage exigé par les sphères de Hertz ; elle donne
aux ondulations excitées par les sphères une forme régulière
et constante ; elle tend à réduire la longueur donde,
qui se mesure en centimètres, tandis que les ondes de Hertz
se mesuraient en mètres. Pour toutes ces raisons, la distance
à laquelle des effets se produisent se trouve augmentée.
M. Marconi utilise généralement des ondes de 120 centimètres
de longueur. Deux petites sphères sont fixées en regard
des grandes et reliées aux extrémités du circuit
secondaire dune bobine dinduction O dont le circuit primaire
est excité par une batterie E, reliée ou non à
ce circuit à laide dune clé de Morse K.
Chaque fois que lon appuie sur la clé K, des étincelles
se produisent entre les boules, et comme le système formé
par les sphères renferme de la capacité et de linertie
électrique (self-induction), des oscillations très rapides,
dont la fréquence est denviron 250 millions par seconde,
prennent naissance et se propagent suivant la ligne Dd.
La distance à laquelle des oscillations aussi rapides propagent
leur action dépend principalement de lénergie
de la décharge. Une bobine de 15 centimètres détincelle
agit jusquà plus de 6 kilomètres, pour des distances
plus grandes, il faut des étincelles plus longues, jusquà
50 centimètres de longueur. La distance augmente avec la grosseur
des sphères, et se trouve doublée en prenant ces sphères
pleines et non creuses.
Récepteur. Le relais de M. Marconi est formé
dun petit tube de verre de 4 centimètres de longueur,
dans lequel deux conducteurs cylindriques en argent sont scellés
à la lampe ; ils sont séparés par une distance
denviron un demi-millimètre, et lintervalle est
rempli par un mélange de fine limaille de nickel et dargent,
mélangée avec une trace de mercure. Le tube est amené
à un vide de 4 millimètres (de mercure probablement)
et scellé. Il fait partie dun circuit complété
par une pile locale et un relais télégraphique sensible.
Normalement, ce tube ainsi constitué est un isolateur ; les
particules de limaille sont pêle-mêle, en désordre,
et se touchent très irrégulièrement : mais lorsque
des ondes électriques tombent sur la limaille, ces particules
sont polarisées, mises en ordre, rangées, et, suivant
lexpression du professeur Olivier Lodge, expression probablement
inexacte ainsi que nous lavons vu plus haut, elles cohérent
: des contacts électriques sétablissent et le
courant passe. La résistance d'un relais Marconi, qui est pratiquement
infinie, sabaisse quelquefois à moins de 5 ohms sous
laction dondes électriques intenses.
Fig. 23.
Schéma du système Marconi,
Cet effet de réduction de la résistance électrique
des substances finement divisées sous linfluence dondes
électriques est bien connu. En 1866, M. S.-A. Yarley a réalisé
unparafoudre formé dune boîte en bois renfermant
du charbon en poudre et monté en dérivation sur lappareil
à protéger. Il agissait effectivement ; mais la cohésion
obtenue rendait le remède pire que le mal et on dut en abandonner
lemploi. Des effets de cohésion analogues se produisent
dans le microphone dHannings à granules de charbon, et
il faut souvent lagiter pour ramener les particules à
leur état de désordre initial. En 1890, M. E. Branly
a montré que la limaille de cuivre, daluminium ou de
fer agit de même. Cest le professeur Olivier Lodge qui
a perfectionné cet appareil et lui a donné le nom de
cohéreur,
M. Marconi décohère la limaille en utilisant le circuit
local pour faire vibrer rapidement la tête dun petit marteau
contre le tube de verre, et ces chocs répétés
produisent un son qui rend facile la lecture des caractères
Morse. Le même courant utilisé pour décohérer
le récepteur peut également actionner un télégraphe
Morse imprimant des signaux sur une bande. Le tube se termine par
deux volets métalliques VV dont les dimensions sont ajustées
pour accorder électriquement le transmetteur et le récepteur.
Les bobines de self-induction L et L ont pour effet de sopposer
au passage des ondes électriques en dehors du radioconducteur.
Les oscillations électriques produites par le transmetteur
arrivent sur le récepteur accordé à lunisson
avec elles, la cohérence de la limaille se produit, le courant
passe par le radioconducteur dans les relais et des signaux sont ainsi
reçus.
Dans lespace libre, entre deux points visibles lun pour
lautre, il ne faut rien de plus ; mais, lorsque des obstacles
se trouvent interposés entre les deux postes, il est nécessaire
demployer des mâts très élevés, des
cerfs-volants ou des ballons pour enlever à la hauteur voulue
le fil radiateur à la station dexpédition des
dépêches et le fil collecteur des ondes à la station
darrivée.
Des miroirs augmentent les effets des appareils leur portée,
cependant on a abandonné leur emploi à cause de leur
prix très élevé.
Une remarque qui soffre aussitôt à lesprit
cest que les collines et les obstacles du sol ne paraissent
offrir quune assez faible résistance à la propagation
des ondes électriques. Les lignes de force semblent échapper
à ces causes dobstruction ; le temps ne semble avoir
également quune influence assez minime : pluie, brouillard,
neige et vent, ne causent aucun retard, aucune perturbation dans la
transmission.
Les volets métalliques ajoutés au radioconducteur (ou
cohé-reur) peuvent fort bien être supprimés sans
inconvénient. Un pôle du récepteur peut être
relié à la terre et lautre amené jusquau
sommet dun mât, ou fixé à un ballonnet par
un fil. Ce fil et le ballon ou le cerf-volant qui le soutient, recouverts
de papier détain, font loffice de volet ou de «
plaque de ciel », mais dans ce cas, il faut également
relier à la terre un des pôles du transmetteur. Plusieurs
messages peuvent être transmis en même temps dans plusieurs
directions à la fois ; il suffit daccorder les transmetteurs
et les récepteurs pour la même fréquence.
Marconi, sappuyant sur lanalogie avec les radiations lumineuses,
avait dabord mis ses appareils oscillateur ou cohéreur
au foyer de miroirs cylindriques paraboliques en métal.
Le miroir devait avoir une ouverture au moins double de la longueur
donde employée. Ce procédé ne permit pas
à linventeur de communiquer à plus de 4 kilomètres
; il est aujourdhui complètement abandonné. La
seule disposition que lon adopte et qui a donné les meilleurs
résultats est de connecter une extrémité du tube
à la terre, tandis que lautre est liée à
un fil suspendu dans lair. Ce fil, très bien isolé,
que lon appelle 1 « antenne », est souvent
terminé à sa partie supérieure par une plaque
métallique nommée cc plaque de ciel ». Loscillateur
de lautre est pourvu du même dispositif.
La terre joue ici, sans doute, le rôle de grande capacité,
et lantenne, constitue une surface qui augmente dautant
la source de radiations. De la même façon, lantenne
du poste récepteur recueillera les ondes qui latteignent.
Donc, plus lantenne sera longue et plus on pourra recevoir à
une grande distance. Il y a cependant là un rôle encore
inexpliqué, car on remarque que lon reçoit mieux
avec lantenne verticale ou légèrement inclinée,
et quil nest pas nécessaire délever
la plaque de ciel au-dessus dune certaine limite. A ce sujet,
les conclusions de M. Tissot sont aussi intéressantes. Dans
des expériences faites entre la côte de Bretagne et la
mer, il a indiqué que lorientation de lantenne
de lexcitateur devait être normale à la direction
de propagation : il a également remarqué que la capacité
ne paraissait pas jouer un grand rôle, contrairement à
ce qui se passerait sil y avait une véritable résonance.
Chaque poste télégraphique comprend un transmetteur
et un récepteur. Pour empêcher, pendant la transmission,
les ondes de loscillateur datteindre le cohéreur
du même poste ce qui le détériorerait
on place tous les organes du récepteur, sauf le Morse, dans
une caisse métallique. MM. Gustave Le Bon et Branly qui ont
étudié la transparence des corps pour les ondes hertziennes
ont reconnu, en effet, lopacité des corps conducteurs
sous toutes les épaisseurs. Les autres corps ont une transparence
plus ou moins grande et absorbent toujours une partie des ondes sous
une grande épaisseur. Il en résulte que linterposition
dun gros obstacle pourrait arrêter les radiations ; cependant
on peut remarquer que la diffraction, qui est dautant plus sensible
que les ondes sont grandes, permettrait encore la communication en
tournant lobstacle. Toutefois, on sexplique ainsi quil
vaut mieux, dans ce cas, avoir un poste situé sur une hauteur.
La première expérience réalisée par M.
Marconi en Angleterre, a été faite entre Penarth et
Brean Down près de Westonsuper Mare, à la fin de lannée
1896. La distance séparant ces deux villes, situées
de chaque côté du canal de Bristol, était de près
de 9 milles, soit 14 kilomètres et demi.
Les résultats obtenus dans ces premières tentatives
furent . assez satisfaisants pour que, peu de temps après,
une communication permanente entre lîle de Wight et Bournemouth
à 23 kilomètres de distance, fut établie. Aux
deux stations dexpédition et de réception des
dépêches, sont plantés deux grands mâts
portant un fil relié, tantôt au récepteur, tantôt
au transmetteur, suivant que cest lun ou lautre
de ces deux appareils qui travaille. Le mât élevé
à Bournemouth mesure 35 mètres de hauteur ; aucun obstacle
ne sépare les deux mâts de départ et darrivée,
si bien que linstallation se trouve faite dans les conditions
les plus avantageuses. Aussi la transmission des signaux sopère-t-elle
dune façon absolument régulière.
Au cours de lannée 1898, la distance des deux stations
se trouva augmentée et portée à 26 kilomètres
par suite du transfert du poste de Bournemouth, de Madeira house Soult
chiff, à lhôtel Haven Pôle. Dans cette installation,
les fils supportés par les mâts sont en cuivre de 7 dixièmes
de millimètre, isolés par une double couche de caoutchouc
et de coton. Les bobines dinduction employées donnent
des étincelles de 25 centimètres de longueur, elles
sont alimentées par un courant de 6 à 9 ampères
sous 14 volts. Loscillateur de Righi à bain dhuile,
primitivement employé par M. Marconi, a été remplacé
par un oscillateur plus simple dans lequel les décharges jaillissent
à lair libre entre deux sphères de 25 millimètres
de diamètre, distantes denviron un centimètre.
Citons encore quelques installations réalisées pendant
ces derniers temps par M. Marconi. Au mois de mai 1898, il installa
au nord de lIrlande, à Bally-Castle et à Rathlin
Island, deux nouveaux postes distants denviron 11 kilomètres,
dont 4 sur terre et le reste sur mer. A Rathlin, le fil vertical est
supporté par le phare dune hauteur de 80 mètres,
à la station de Bally-castle il est suspendu à un mât
de 21 mètres de hauteur ; toutefois, cette hauteur ayant été
reconnue insuffisante fut portée ensuite à 80 mètres.
Au mois de juillet, à la demande du journal Daily Express de
Dublin, qui voulait être immédiatement prévenu
des résultats des régates de Kingstown, lesquelles avaient
lieu en pleine mer, on relia provisoirement par un double poste de
télégraphie sans fil Kingstown et le vapeur Flying-Huntress
qui suivait les évolutions des yacht. Le mât de la station
de Kingstown avait une hauteur de 83 mètres, le fil du poste
du navire suspendu au mât principal avait 23 mètres de
longueur. On put ainsi recevoir les dépêches transmises
du navire à une distance de 36 kilomètres.
Une autre installation fut ensuite réalisée pour permettre
à la reine dAngleterre résidant à Osborne
House, île de Wight, de communiquer avec le princede Galles
qui se trouvait à bord de son yacht amarré dans la baie
de Cowes à 2.500 mètres de distance. Malgré la
faible distance, ces deux points étant séparés
par des collines ne pouvaient être facilement réunis
par un système de télégraphie optique. Le mât
placé à Osborne House avait 30 mètres de hauteur
et le fil suspendu au mât du yacht une longueur de 25 mètres.
Pendant 16 jours cette installation fonctionna avec la plus grande
régularité et environ 150 dépêches dont
plusieurs très longues furent échangées.
Au mois de décembre 1898, M. Marconi entreprit des expériences
pour établir des communications entre deux navires ; il put
les réaliser, grâce au gouvernement anglais qui mit à
sa disposition trois navires : le Gull, le South-Goodwin et le East
Goodioin. Le fil suspendu au mât de ce dernier navire avait
24 mètres de haut ; le mât qui le soutenait était
partiellement en fer sur une longueur de 18 mètres, le reste
étant en bois, de nombreuses pièces métalliques
et chaînes lentouraient ; malgré cela, des signaux
très distincts purent être transmis, malgré le
mauvais temps, à une distance de 17 kilomètres. Le poste
récepteur-transmetteur de ce navire était placé
dans une cabine darrière et relié au fil par un
conducteur soigneusement isolé traversant la paroi de la cabine.
La bobine employée était, comme pour les expériences
précédentes, de 25 centimètres détincelle
et alimentée par un courant de 6 à 8 ampères
et 14 volts. En deux jours, plusieurs membres de léquipage
purent apprendre à transmettre et à recevoir les messages,
ce qui démontre la simplicité des opérations.
Depuis longtemps M. Marconi cherchait à établir des
communications par ondes électriques entre la France et lAngleterre
et il vient den obtenir lautorisation du gouvernement
français. Il avait dabord sollicité lautorisation
dinstaller une station à Cherbourg pour correspondre
avec une autre station établie à lîle de
Wight, mais le gouvernement français ayant répondu quil
préférait que lon choisisse un autre point du
littoral, les expériences furent exécutées çntre
Boulogne et la côte anglaise au commencement de lannée
1899.
« Le 27 mars 1899 deviendra une date célèbre
dans les fastes de la science, écrivait à cette époque
un rédacteur de l'Industrie Électrique, car elle marque
le jour où la première dépêche télégraphique
a été échangée entre la France et lAngleterre,
sans fils conducteurs, à travers lespace, en utilisant
les ondes hertziennes et le principe des radioconducteurs de Branly.
Les expériences, conduites par M. Marconi, ont été
effectuées entre South Foreland et Wimereux, petit village
situé à 3 kilomètres de Boulogne-sur-Mer, cest-à-dire
entre deux stations éloignées de 48 kilomètres
lune de lautre à vol doiseau. Chaque poste
de transmission et de réception comporte un fil de cuivre,
alternativement radiateur et collecteur des ondes, disposé
verticalement le long dun mât atteignant 46 mètres
de hauteur.
« Ces expériences ont démontré la possibilité
détablir une communication télégraphique
permanente entre la France et lAngleterre, à travers
la Manche, sans lemploi daucun câble sous-marin.
Elles ont eu lieu en présence du colonel de Ponta-vice, du
commandant Fiéron, du capitaine Ferrier et de M.Voisenat,
ingénieur des télégraphes, qui ont été
frappés de là netteté de ce mode de transmission
des signaux. »
Au moment du Congrès des Sociétés Savantes, qui
se tint à Boulogne le 24 septembre 1899, ces expériences
furent répétées devant les membres du Congrès
qui sétaient rendus au poste de Wimereux. A ce sujet,
permettons-nous de remarquer linépuisable complaisance
des Français avec les étrangers. Tandis que notre gouvernement
facilitait à lItalien Marconi, soutenu par une puissante
Société financière anglaise, ses expériences
de transmission électrique, un constructeur français,
membre du Congrès qui allait admirer les appareils étrangers,
non seule-lement ne parvenait pas à obtenir des Anglais la
moindre concession pour linstallation dun poste de télégraphie
sans fil sur un rivage du Royaume-Uni, mais même aucun encouragement,
aucun aide du gouvernement français ! Tout pour les étrangers,
rien pour nos nationaux, surtout si ce sont des novateurs, telle semble
être la devise de notre célèbre Administration
!..
Pour en revenir aux travaux de Marconi, rappelons que la marine italienne
expérimente depuis plus dune année ce système
dintercommunication si avantageux pour les correspondances militaires,
mais les résultats qui ont été obtenus ont été,
jusquà présent, gardés secrets. On sait
seulement que plusieurs expériences ont été faites,
en 1898 et 1899, à bord des navires de guerre et le long des
côtes, notamment à la Spezzia où la portée
de transmission atteignit 30 kilomètres. Dans ces diverses
expériences, M. Marconi put constater que la distance maximum
de transmission était approximativement proportionnelle au
carré de la longueur des conducteurs verticaux installés
à chaque poste, toutes les autres conditions restant "bien
entendu égales. Si, par exemple, un conducteur de 6 mètres
est nécessaire pour télégraphier à 2 kilomètres,
il faudra un conducteur de 12 mètres pour correspondre à
8 kilomètres, un de 24 mètres pour 32 kilomètres
et ainsi de suite. M. Ascoli est arrivé à la même
conclusion, et a établi une loi, déduite de la formule
de Newman, quil résume comme suit : laction inductrice
est proportionnelle au carré de la longueur de lun des
deux conducteurs de même dimension placés à chaque
poste, et inversement proportionnelle à la distance qui les
sépare. Par conséquent, lintensité des
signaux transmis ne diminue pas si la longueur des conducteurs verticaux
est augmentée en proportion de la racine carrée de la
distance. Cette loi a permis de déterminer la longueur des
conducteurs placés à chaque station. Entre Wimereux
et South-Foreland, cette longueur minimum était de 35 mètres
pour une portée de 48 kilomètres.
Les résultats obtenus aux manuvres navales récemment
exécutées dans les eaux anglaises ont prouvé
que la télégraphie sans conducteur, système Marconi,
était en bonne voie de perfectionnement ; car, à un
moment donné, la Junon a pu recevoir des ordres par les ondes
hertziennes de l'Europa, distante de 68 milles.
Si lon imagine, dit le commodore Statham, une série de
cinq vaisseaux séparés les uns des autres par des distances
de 60 milles, on pourra donc communiquer à un point effectivement
éloigné de 300 milles, en recevoir des ordres immédiats
et agir en conséquence. Ce fait est déjà acquis
; il est possible.
Dun autre côté, interviewé par un reporter
du New-York Herald, M. Marconi a répondu : ce il y a deux ans,
je croyais que la limite maximum de transmission ne pouvait être
que de 10 milles. Actuellement, nous communiquons entre des stations
distantes de 110 milles lune de lautre. Dans un très
prochain avenir, les bateaux seront tous munis dun réflecteur
et dun appareil de transmission, et pourront se guider, malgré
le brouillard et la tempête, dune façon absolument
sûre. On pourra ainsi envoyer des ondes dans une seule direction,
au lieu de les laisser rayonner comme on le fait actuellement. Les
réflecteurs pourront tourner autour du mât, et quand
les ondes émises atteindront le point où elles doivent
aboutir, un indicateur sonnera, et le pilote naura plus quà
gouverner avec une sécurité absolue, guidé quil
sera par les signaux ainsi transmis du rivage. »
Le New-York Herald nous apprend en même temps que M. Marconi
vient de faire des offres au gouvernement anglais pour la guerre du
Transvaal. A ce sujet, il y a lieu de remarquer que lAngleterre
possède déjà huit navires de guerre de lescadre
de la Manche pourvus de ces appareils.
Le succès des transmissions à travers la Manche a fait
naître le projet de télégraphie à des distances
de plus en plus considérables. M. Marconi détient le
record de la portée à la suite des expériences
faites entre Wimereux et Chemlsford, à 140 kilom. de distance,
et déjà certaines personnes ont parlé de télégraphier
entre Londres et Paris, soit 280 kilom. à vol doiseau.
Naturellement la tour Eiffel est toute indiquée pour être
le terminus à Paris, mais on na pas encore fixé
lemplacement de la station de Londres, quoique certaines revues
aient déjà indiqué le monument en construction
à Wembley, et qui doit être plus élevé
que la tour de 800 mètres. Mais on peut penser quil ne
tardera pas à se rencontrer des personnes qui affirmeront sérieusement
que ces postes Marconi sont dangereux pour lAngleterre, et de
même que cela a été dit pour le tunnel sous la
Manche, pourront prétendre quelles donneront à
la France loccasion dune invasion. Déjà
on a suggéré que le naufrage du steamer le Stella sur
les rochers de la côte, provenait du fait que son compas fut
affecté par les signaux de Marconi, qui passaient entre Wimereux
et South-Foreland, qui sait si lon ne se basera pas sur des
suppositions aussi futiles et ridicules pour en traver le développement
de ces procédés si avantageux de transmission !...
En attendant, M. Marconi patronné par la Société
Anonyme la Wireless Telegraph and Signal C° Itd, fondée
pour lexploitation de ses brevets, poursuit le cours de ses
expériences et de ses succès. Les essais répétés
pendant les manuvres de la flotte dans la mer dIrlande
en 1899 ont admirablement réussi. Le problème suivant
se posait : une flotte forte mais dallure lente devait trouver
et convoyer certains vaisseaux marchands, de la haute mer jusque dans
un port, tandis quun détachement plus faible mais plus
rapide, devait essayer dintercepter les navires marchands. On
démontra que les croiseurs éclaireurs de la flotte lente
pouvaient très facilement tenir lamiral au courant de
la position de ladversaire et de signaler la présence
de navires de commerce sur des distances atteignant 80 kilomètres
en échangeant des signaux par ondes électriques dun
bâtiment à un autre. Il est donc hors de doute à
la suite de ces essais couronnés dun entier succès,
que lAmirauté anglaise adoptera le système de
correspondance de Marconi.
Tel est, à lheure où nous écrivons, le
résumé des expériences exécutées
dans diverses circonstances par le célèbre expérimentateur
de la télégraphie sans fil au moyen des ondes hertziennes.
Il paraît évident que cette nouvelle application est
complètement passée du domaine abstrait de la théorie
dans celui de la pratique, et que désormais, ce progrès
est certain et ne fera que se développer dans lavenir.
On dispose ainsi dun émetteur et dun
récepteur, les premiers radiotélégraphes peuvent
commencer à voir le jour sous légide de Nikola
Tesla, avec sa fameuse bobine Tesla et lamplification des transmetteurs.
Mais aussi dAlexandre Popov de Saint-Petersbourg, qui
découvre le principe de lantenne améliorant la
transmission des ondes sur de longues distances. Et surtout de litalien
Guglielmo Marconi qui reprendra toutes ces technologies pour
les améliorer et les mettre en application. Il nen est
pas linventeur, mais il sera le premier à expérimenter
concrètement la transmission radio sur de grandes distances
avec la première transmission hertzienne à travers la
manche entre lAngleterre et la France en 1899.
Marconi transmettra un message télégraphique
en lhonneur de Branly :
« M. Marconi envoie à M.Branly ses respectueux compliments
par le télégraphe sans fil à travers la manche,
ce beau résultat étant dû en partie aux remarquables
travaux de M.Branly ».
La TSF est née !
sommaire
La Télégraphie Sans Fil : la
T.S. F.
Lors du naufrage du Titanic (à bord duquel Marconi aurait dû
se trouver, s'il n'avait décidé d'avancer son départ),
dans la nuit du 14 au 15 avril 1912, les SOS envoyés du paquebot
par radio hâteront l'arrivée sur les lieux d'un navire
grâce auquel quelque 700 passagers seront sauvés.
Pour la presse, la radiotélégraphie ouvre aussi une
ère nouvelle : en 1898, Marconi télégraphie les
résultats d'une régate au Daily Express de Dublin, à
bord d'un remorqueur qui suit la course.
Le 5 novembre 1898, Eugène Ducretet
établit la première liaison française par radio,
en émettant des sons depuis la tour Eiffel jusqu'au Panthéon
(ce qui représente environ 4 km).

Lappareillage de télégraphie sans fil et les
expériences de M. Ducretet.
Tandis quen Angleterre, M. Marconi, subventionné
par la puissante Wireless Company, procédait à ses
remarquables expériences, en France, M.Ducretet, le constructeur
dinstruments de physique bien connu étudiait un matériel
de télégraphie sans fil.
Le principal avantage des appareils établis par M. Ducretet
réside dans leur fonctionnement entièrement automatique.
Quand une dépêche est envoyée par le transmetteur,
le récepteur se met en mouvement de lui-même sous
laction des ondes électriques qui le frappent ; les
signaux senregistrent, et lorsque la transmission est achevée,
tout rentre dans létat primitif sans le secours daucun
opérateur.
Ce transmetteur est représenté par la figure 24
; il se compose dune bobine dinduction B° alimentée
par une batterie daccumulateurs pourvue dun interrupteur
indépendant I ; les émissions de courant, longues
et brèves, formant les signaux suivant le système
Morse, sont produites par un manipulateur M ; les deux bornes
i i du circuit secondaire sont reliées en deux branches
de loscillateur O ; une de ces branches est mise à
la terre par le fil T, et lautre est reliée à
un long fil radiateur, supporté par
un mât, et dont on aperçoit lextrémité
inférieure sur la gravure.
 
Fig. 24. Poste transmetteur de télégraphie
par ondes électriques de M. Ducretet. Fig. 25. Bobiue
pour télégraphie sans fil.
La bobine dinduction est dun modèle à
la fois très solide et transportable (fig. 25), les deux
circuits sont entièrement renfermés dans une boîte
remplie dun mélange isolant les mettant à
labri de tout choc et les séparant complètement
; les étincelles produites par cette bobine, très
appréciée pour toutes sortes dexpériences
autres que la télégraphie sans fil, sont chaudes
et nourries. Le condensateur enfermé dans le socle peut
être à volonté utilisé ou mis hors
circuit, suivant que les fils amenant le courant primaire sont
fixés aux bornes AB ou BO.
Fig 26 Fig
27, Manipulateur Ducretet
Linterrupteur, représenté figure 26 est constitué
par un petit moteur à courant continu, actionnant par un
excentrique une tige verticale équilibrée par un
ressort B et terminée par une seconde tige mobile en platine;
cette dernière plonge dans un godet contenant du mercure,
surmonté dune couche de pétrole ou dalcool
; ce godet peut être plus ou moins élevé à
laide dune crémaillère, de manière
à régler la hauteur du mercure par rapport à
la tige plongeante, qui, par suite du mouvement de va-et-vient
qui lui est communiqué par le moteur, ouvre et ferme successivement
le circuit en plongeant et en sortant ensuite de la couche de
mercure. Lappareil est complété par un inverseur
IN destiné à changer le sens darrivée
du courant dans le circuit primaire de la bobine.
Le manipulateur figure 27 a été étudié
spécialement pour la télégraphie sans fils
; le manipulateur Morse ordinaire ne donnant pas de très
bons résultats par leffet des étincelles de
rupture, qui sont autrement nourries quavec tous les appareils
ordinaires de télégraphie avec fils. Cet appareil
est donc composé dune tige de platine T, pouvant
recevoir un mouvement de va-et-vient à laide dune
poignée M, dont la tige coulisse dans un manchon supporté
par deux colonnettes G G ; un ressort intérieur ramène
toujours la tige en haut de sa course aussitôt quon
cesse dappuyer sur la poignée. Un godet L contient
le mercure qui établit le contact, et est surmonté
dune couche de liquide isolant. Le niveau de ce mercure
peut être réglé en déplaçant
le godet qui est mobile et peut être fixé à
lendroit voulu par la vis P. Cet appareil fonctionne absolument
comme le manipulateur Morse ordinaire, en pressant plus ou moins
longtemps sur la poignée M, on obtient les émissions
de courant brèves ou longues nécessaires aux signaux.
Pour les expériences de démonstration, M. Ducretet
emploie un oscillateur construit sur le principe de celui du professeur
Righi ; il comporte trois sphères : une sphère centrale
dassez grand diamètre supportée par la colonne
du milieu, et deux petites sphères placées de chaque
côté et dont lécartement peut être
réglé à volonté ; les parties des
sphères où jaillissent les décharges sont
rendues inoxydables par un dépôt de platine; les
trois sphères sont renfermées dans nne boîte
en bois dur avec couvercle mobile ; des chicanes intérieures.masquent
les étincelles, et cet ensemble ne touchant en aucun point
aux tiges des sphères ne nuit pas aux décharges
des fortes bobines dinduction ; ce modèle fonctionne
sans liquide isolant.
Fig.
28. Oscillateur Ducretet.
La figure 28 représente ce modèle doscillateur
à liquide isolant, Les deux sphères principales
A, B, dont lécartement peut être réglé
à volonté, sont placées dans une cuve étanche
G-, contenant de lhuile de vaseline pouvant être enlevée
à volonté par louverture à bouchon
fileté R. Une autre ouverture O, munie dune glace,
permet d'observer létincelle. Les deux sphères
A et B peuvent être reliées à la bobine, soit
directement par les bornes a, b, soit indirectement par les bornes
c, d qui peuvent être plus ou moins éloignées
des premières, en les faisant coulisser dans les rainures
de la plaquette isolante S.
Pour les expériences à grande distance loscillateur
employé par M. Ducretet est en O de la figure 24 ; il ne
comporte que deux sphères et le liquide isolant nest
pas employé.
Fig.
29. Poste récepteur Ducretet.
Le récepteur figure 29 est portatif. Le radioconducteur
Branly, Br est dun modèle particulier établi
par M. Ducretet : cest un petit tube divoire remplie
de limaille insérée entre deux conducteurs métalliques
dont la pression peut être réglée par une
vis ; ce réglage est très important pour obtenir
le maximum de sensibilité. Les limailles qui donnent les
meilleurs résultats sont celles de fer, dacier et
de nickel ou alliage de ce métal : ferro-nickel, etc. Le
radioconducteur est maintenu en place par deux pinces qui facilitent
son enlèvement et sa remise en place. Ces pinces sont en
communication, dune part, avec le circuit intérieur
contenant le relais, et, dautre part, par les bornes T et
L, avec la terre et le fil collecteur, placé comme le fil
radiateur le long dun mât. Le relais à armatures
polarisées placées sur un axe horizontal et équilibrées
est représenté à part, figure 30. Il est
introduit dans le circuit du radioconducteur, et sa sensibilité
est extrême. U forme, dès quil est actionné
par le courant traversant la limaille, un circuit local agissant
sur lélectro-aimant F, dont le marteau disposé
suivant Popoff frappe sur le tube pour ramener la sensibilité
de la limaille, et qui agit en même temps sur lenregistreur
inscrivant les signaux. La course de la palette de fer doux peut
être réglée au moyen dun ressort antagoniste
et dune vis. Les tubes V et Y sont des résistances
liquides, sans self-induction, dont le but est déviter
leffet des étincelles dextra-courant de rupture,
qui, non seulement altèrent la netteté -des contacts
du relais, mais peuvent même agir sur le radioconducteur
et troubler la réception des signaux. Des piles nécessaires
au fonctionnement du relais et de lélectro-frappeur,
sont contenues à lintérieur de la boîte,
derrière les divers appareils que lon distingue dans
la gravure. S et R sont des interrupteurs permettant de mettre
hors de circuit, le cas échéant, ces piles. Une
pile sèche de trois éléments travaille sur
le frappeur ; il suffit dun élément pour le
circuit du relais et du radioconducteur.

Fig, 30 Relais pour télégraphie sans fil.
Fig. 31. Appareil portatif Ducretet.
Quand le poste comporte un appareil transmetteur et un récepteur,
il est utile dempêcher les ondes électriques
produites par le premier pour lexpédition des dépêches,
dinfluencer le second qui est, placé tout auprès,
ce récepteur ne devant enregistrer que les télégrammes
envoyés par le poste correspondant. A cet effet, le récepteur
est disposé sur un support avec écrans protecteurs
métalliques à larges rebords reliés à
la terre. On peut également renfermer entièrement
le récepteur dans une boîte métallique que
lon ouvre lorsquon va recevoir une communication et
que lon referme, au contraire, lorsquon expédie
une dépêche. Mais, dit M. Breton, le plus simple
est encore denlever le radioconducteur de sa monture, où
il se place simplement à frottement doux, et de le placer
dans un étui en métal Br disposé spécialement
dans ce but.
Lappareil portatif Ducretet disposé comme il vient
dêtre dit peut servir tel quel, en faisant la lecture
des signaux au son produit par les chocs du marteau frappeur sur
le tube à limaille, mais il est possible de réaliser
lenregistrement en reliant cet appareil, par ses deux bornes
supérieures R, à un appareil récepteur Morse
quelconque ou mieux au modèle spécial, portatif
et automatique (fig. 31) que M. Ducretet a construit en vue de
cette application.
Cet appareil enregistreur (fig.29),assez ingénieusement
combiné, est, nous le répétons, dun
fonctionnement entièrement automatique, et cest lui
qui permet la suppression du télégraphiste préposé
à la réception des dépêches. Cest
là une disposition avantageuse, car, en raison de la grande
sensibilité du radioconducteur, toutes les ondes électriques
dorigine atmosphérique, agissent sur le récepteur.
Il faudrait donc, surtout par les temps orageux, un employé
en permanence pour mettre le transmetteur en action à chaque
appel, et souvent inutilement. Lappareil automatique, au
contraire, se mettant en marche et sarrêtant de lui-même,
enregistre toutes les ondes électriques, provenant, soit
de dépêches transmises, soit de décharges
atmosphériques ; en jetant de temps à autre un regard
sur les signes inscrits, il est facile de déterminer ces
deux genres daction et de recueillir les dépêches
reçues.
Dès quune onde électrique arrive au radioconducteur
le mouvement dhorlogerie du Morse se met en marche de lui-même,
inscrit les signaux et sarrête aussitôt que
les ondes cessent dagir sur la limaille. Un espace blanc
est toutefois laissé entre chaque dépêche
ou réception dondes électriques atmosphériques,
afin déviter toute confusion. Ce résultat
est obtenu de la façon suivante.
Aussitôt que le radioconducteur devient conducteur, sous
linfluence dondes électriques, le courant de
la pile locale qui la traverse actionne le relais E (fig. 31)
et celui-ci ferme le circuit dun second courant local; ce
courant, en même temps quil actionne le frappeur F,
circule dans lélectro-aimant de lappareil enregistreur
Morse M où il est amené par les bornes E (fig. 80
et 31) ; cet électro-aimant attire la palette de fer doux
qui forme son armature et qui commande le levier dimpression
ainsi que le levier dun second relais R. Ce relais
supplémentaire met en circuit une troisième pile
locale placée dans le soubassement P I du poste portatif
; le courant de cette pile agit sur lélectro-aimant
du déclancheur A E qui met en mouvement le mouvement dhorlogerie,
lequel provoque le déroulement du ruban de papier qui reçoit
linscription des signaux. Ce ruban de papier, primitivement
enroulé sur la roue spéciale E O, peut, après
limpression, être emmagasiné sur la roue EU.
Dès que les ondes électriques cessent dagir
sur le radioconducteur, un dernier coup du frappeur F ramène
la limaille à sa résistance primitive, les deux
relais E et E cessent dagir, le déclancheur
Ar arrête le mouvement dhorlogerie et tous les organes
de lappareil, revenus à leur état initial,
sont tout prêts pour repasser par la même suite dopérations
à la prochaine réception dondes électriques.
La sonnette dappel S à un coup, mise en fonction
par le relais E et qui peut dailleurs être placée
à une distance quelconque du récepteur, permet dannoncer
larrivée et lenregistrement des dépêches.
Les effets des étincelles dextra-courant de rupture
du relais E sont évités comme pour le relais
E par laddition dune résistance liquide Y.
Si lon veut assurer, par exemple, dans un fort ou à
bord dun navire, le secret des dépêches reçues,
il suffit de renfermer lappareil récepteur dans un
cabinet fermé où la personne in téressée
pourra seule venir relever les télégrammes enregistrés
automatiquement sur le ruban de papier.
Lappareil récepteur que nous venons de décrire
est très bien agencé au point de vue portatif ;
tel quel, il pourrait déjà rendre des services précieux
pour la télégraphie militaire ; il suffirait de
compléter linstallation portative par des mâts
à tirage recevant les fils radiateur et collecteur ; on
pourrait également organiser des voitures postes extrêmement
pratiques, permettant de relier immédiatement un poste
à un autre sans quil soit besoin détablir
aucune ligne ; ces voitures permettraient même de mettre
en communication constante, pendant leur marche, deux corps darmée
distants de quelques kilomètres.
Pour les stations fixes, M. Ducretet dispose les différents
appareils du poste récepteur sur une table à console
comme lindique la figure 32 ; sur cette gravure, les différentes
lettres indiquant ces appareils, correspondent à celles
des appareils semblables du poste portatif représenté
par les figures 29 et 31 ; il est donc facile, en se reportant
à la description qui vient dêtre faite, de
comprendre la disposition de cespostes fixes absolument identiques
dailleurs, sauf le rangement des appareils, aux postes portatifs.
Fig-
32 Poste récepteur
Dans certains cas, M. Ducretet supprime le mouvement dhorlogerie
du Morse et le remplace par un moteur électrique alimenté
par une petite batterie daccumulateurs ; ce moteur se met
en marche dès que les ondes électriques agissent
sur la limaille du radioconducteur et sarrête aussitôt
que cesse laction de ces ondes.
Pour effectuer ses expériences, M. Ducretet disposa au-dessus
de son laboratoire un mât dune vingtaine de mètres
de hauteur ; ce mât recevant le fil relié tantôt
à loscillateur, tantôt au radioconducteur et
se trouvant par suite, tour à tour, radiateur ou collecteur,
suivant que lon transmet ou reçoit une dépêche
; la transmission fut parfaite entre ce mât et le sommet
du Panthéon, et différents postes installés
à grande distance, même lorsque le fil collecteur
était placé sur la face opposée de ce monument,
ce qui obligeait cependant les ondes électriques à
traverser ou à contourner cette importante masse de pierres.
Quelque temps après, M. Ducretet transmit des dépêches
par ondes hertziennes au-dessus de Paris à des distances
dépassant 7 kilomètres. Dans le cas des signaux
transmis du poste du Panthéon à celui de la Tour
Eiffel, les signaux furent reçus avec une netteté
parfaite par lappareil récepteur du Panthéon,
mais, par suite de la masse métallique de la tour, les
signaux envoyés du Panthéon ne purent être
perçus par lappareil récepteur de la tour,
ce qui était à prévoir. La transmission sopéra,
dans ces expériences, avec une rapidité atteignant
environ le tiers de celle du Morse ordinaire ; la bobine dinduction
employée ne donnait que 25 centimètres détincelle.
Il est bon de noter, en passant, que la longueur des fils radiateur
et collecteur doit être accordée pour obtenir le
maximum de sensibilité. Ces fils, au lieu dêtre
tendus verticalement le long dun mât, peuvent également
être disposés horizontalement à une certaine
distance du sol, ainsi que M. Popoff la démontré.
Il doivent toutefois être soigneusement isolés et
bien parallèles entre eux, et alors la disposition horizontale
présente lavantage de diminuer linfluence des
décharges atmosphériques sur les récepteurs.
Dans les postes doubles comprenant un transmet teur et un récepteur,
il est indispensable dintercaler un commutateur, qui, par
le simple déplacement dune manette devant un cadran,
relie le fil à loscillateur ou au radioconduc-teur,
suivant que lon doit envoyer ou recevoir un télégramme.
Il est évident que plus la distance à franchir est
considérable, plus grande doit être la longueur des
conducteurs collecteur-radiateur.
Comme nous lavons vu plus haut, les ondes électriques
atmosphériques agissent sur le radioconducteur et peuvent,
par suite, être enregistrées par les appareils récepteurs
que nous venons de décrire. Cest ainsi que dans un
orage, le 11 juin 1898 un de ces enregistreurs Ducretet a inscrit
entre 2 h.30 et 3 h.40 de laprès-midi, 311 décharges
atmosphériques. M. Ducretet a néanmoins pu constater
que ces décharges supplémentaires quoique embrouillant
quelque peu les signaux transmis, ne les rendaient pas absolument
indéchiffrables.
Par suite de cette intéressante propriété,
cet enregistreur automatique a sa place indiquée dans les
observatoires météorologiques. Pour les observations
continues il convient, toutefois, de remplacer lappareil
enregistreur Morse par un enregistreur à marche lente avec
inscriptions horaires donnant lheure exacte où se
produit et senregistre la décharge atmosphérique.
Le chronographe quemploie M. Ducretet pour cet usage comporte
un cylindre faisant un tour complet en 24 heures et recevant la
feuille de papier quadrillée spéciale ; une plume
à encre montée sur une barre de fer doux qui se
meut le long dune vis sans fin commandée par le même
mouvement dhorlogerie, trace une ligne continue en spirale
le long du cylindre ; la plume parcourt ainsi en huit jours la
hauteur du cylindre. Un électroaimant actionne la plume
et lui fait marquer un petit trait perpendiculaire au tracé
lorsquun courant le traverse, Les deux bornes de cet enregistreur
sont reliées par un conducteur double de longueur quelconque
aux bornes R du récepteur portatif de la figure 31 ; il
peut être substitué au récepteur Morse automatique
ou ajouté au poste complet ; dans ce dernier cas, les deux
appareils fonctionnent concurremment. Si les décharges
électriques atmosphériques ne sont pas trop rapprochées,
chacune delles est nettement marquée par un trait
qui donne lindication du jour et de lheure où
elle sest produite. En temps dorage, par suite de
la grande fréquence des décharges, les traits se
superposent et il serait indispensable pour obtenir des inscriptions
nettes, demployer un cylindre tournant beaucoup plus rapidement
.
M. le lieutenant de vaisseau Tissot sest livré récemment
à une longue suite dexpériences pour le compte
du Ministère de la Marine avec les appareils que nous avons
décrits dans ce chapitre. Installé à Brest,
M. Tissot a poursuivi ses recherches pendant près dune
année.

Fig 33. Le mât et le fil collecto-radiateur employés
par M. Tissot, Fig. 34. Carte des expériences de
télégraphie sans fil de M. Tissot,
La carte, figure 34, montre les lignes établies successivement
par cet officier dans la série de belles expériences
quil a effectuées en rade de Brest et en haute mer.
M. Tissot a été amené, au cours des essais,
à faire quelques remarques inédites à lépoque
de ses observations. Les tubes employés étaient
à électrodes de platine immobilisées ; la
limaille était particulièrement de la limaille dargent
sulfurée ; il y a intérêt à prendre
une densité assez forte de courant, par suite des tubes
semi-capillaires ; les tubes les plus sensibles, sont comme la
dailleurs montré M. Branly, légèrement
conducteurs, on doit donc les employer avec un relais ; pour les
ramener à leur conductibilité initiale, il convient
de leur donner des chocs très légers ; à
cet effet, le courant du relais agit sur un signal" électro-magnétique
par transmission dair. M. Tissot a fait des mesures relatives
de la sensibilité des tubes par un dispositif analogue
à celui de M. Branly ; diverses précautions rendent
les observations toujours comparables. Les fils radiateurs et
récepteurs ne sont pas munis de capacité ; il semble
quil soit inutile ' de les disposer verticalement ; ils
doivent être seulement dans dans un plan perpendiculaire
à la direction de la propagation. Divers essais ont été
entrepris pour déterminer expérimentalement le régime
vibratoire du fil radiateur et linfluence de la nature du
métal de ce fil.
Avec les appareils Ducretet, M. le lieutenant de vaisseau Tissot
a pu relier entre eux le phare du Trézien (pointe de Corsen)
(fig. 33), et celui du Stiff (île dOuessant) ; la
distance est de 22 kilomètres ; puis le phare du Stiff
et celui de lîle Vierge, soit 42 kilomètres.
A ce sujet, M. Ducretet a communiqué la dépêche
suivante aux journaux :
« Avec mes appareils, M. le lieutenant de vaisseau Tissot
a pu, grâce à son habileté et à sa
persévérance, réaliser de "belles et
définitives expériences de télégraphie
sans fil et montrer que notre pays pouvait ne pas être tributaire
de létranger. Cette distance de 22 kilomètres
peut être considérablement accrue. »
Au lendemain des manuvres navales anglaises, où la
télégraphie sans fil a donné des résultats
très satisfaisants, limportance de la dépêche
de M. Ducretel néchappera à personne. Nous
avons dit, en effet, quau cours de ces manuvres, un
croiseur de la flotte anglaise a pu, grâce aux appareils
Marconi quil avait à bord, signaler lennemi
au vaisseau amiral avec une rapidité jusquici inconnue.
Comme le prouve la dépêche envoyée par M.
le lieutenant de vaisseau Tissot, les officiers de notre marine
ont, eux aussi, résolu le problème de la télégraphie
sans fil appliquée à la tactique navale, et leurs
expériences, pour être moins bruyantes que celles
de leurs voisins doutre-Manche, nen sont pas moins
décisives.
Depuis cette date, en Russie, M. A. Popoff, avec les appareils
Ducretet, a établi, avec des mâts ordinaires une
transmission régulière entre des navires de guerre
(cuirassés) à la distance de 32 kilomètres
et 25 kilomètres avec la côte, en pleines manuvres. |
Deux anciens livres de Ducretet 1901 sont disponibles
en pdf
- La
Télégraphie hertzienne sans fil aux grandes distances
- Guide
pratique de télégraphie hertzienne sans fil aux grandes
distances
sommaire
Expériences diverses de MM. Popoff, Tesla,
Lecarme, Guarini-Foresio, etc., etc.
On conçoit facilement quil soit possible de transmettre
des signaux à travers lespace à laide des
ondes électriques produites par un oscillateur de Hertz agissant
sur un radioconducteur Branly. Loscillateur, placé à
la station de départ est actionné pendant des périodes
courtes et longues de façou à produire les signaux de
lalphabet Morse ; les ondes quil émet se propagent
à travers lespace, viennent actionner le radioconducteur
placé à la station réceptrice, et ferment un
circuit local dont le courant peut actionner un appareil enregistreur
quelconque.
MM. Lodge, Le Royer et Yan Berchem firent une série dexpérience
dans ce sens, mais cest incontestablement à M. Popoff
que revient lhonneur dêtre parvenu le premier à
transmettre des signaux à des distances relativement considérables
par ce procédé quil était réservé
à MM. Marconi et Ducretet de vulgariser en quelque sorte. Nous
décrirons donc tout dabord, dans ce chapitre, les appareils
quifurent combinés par M. Popoff, et rappellerons les résultats
quils permirent à ce savant datteindre.
Une première difficulté se présentait tout dabord
et devait être surmontée : une fois le circuit local
du poste récepteur fermé par les radiations électriques,
qui agissaient sur le radioconducteur, le courant continuait à
passer et il fallait, pour linterrompre, secouer légèrement
le radioconducteur. Or,MM. Branly, Lodge et autres, qui avaient expérimenté
cet appareil se contentaient de secouer simplement à la main
le cube contenant la limaille ; mais pour la télégraphie
ce procédé primitif ne pouvait convenir et il était
indispensable dimaginer un dispositif auto* matique capable
douvrir le circuit. dès que les ondes électriques
émises par le poste expéditeur cessaient dagir
sur la limaille. Le procédé employé par M. Popoff,
et qua repris M. Ducretet, est très simple : le radioconducteur
proprement dit est formé dun tube de verre recevant deux
feuilles de platine collées sur sa paroi interne, et contenant
la limaille métallique. Ce tube est supporté par un
ressort, de telle sortequun choc très léger
suffit pour décohérer, suivant le terme de M. Lodge,
la limaille et rompre le circuit. Le choc automatique nécessaire
est obtenu par le procédé suivant :
Le courant dune batterie de piles locales passe consécutivement
par le tube et par lenroulement dun relais télégraphique
; tant que la limaille métallique se trouve dans létat
ordinaire, le courant qui circule dans le circuit est excessivement
faible et larmature du relais nest pas attirée
; mais, dès quune onde frappe le radioconducteur, la
résistance de tout le circuit diminue ; larmature du
relais est attirée et ferme le circuit dune sonnerie.
Celle-ci entre en fonctions et son marteau frappe, en même temps
que le timbre, le tube contenant la limaille. Par suite, dès
que les ondes électriques nagissent plus, la limaille
est ramenée par un dernier choc à son état primitif
; elle redevient très résistante, le courant cesse de
passer, et larmature des relais est ramenée en arrière
par un ressort antagoniste.
M. le professeur Popoff mettait à la terre un des électrodes
en communication avec un conducteur isolé dans lespace.
Cet appareil fut construit dans le but de rechercher sil existe
dans notre atmosphère des oscillations électriques,
et, dans ce cas, quelle est leur fréquence et quelles sont
les causes dont elles dépendent ; en même temps M. Popoff
indiquait que son appareil pourrait servir à la réception
des signaux transmis dans lespace. A cet effet, il est nécessaire
de joindre au dispositif que nous venons de décrire un système
enregistreur quelconque. On pourrait employer un récepteur
Morse fonctionnant très lentement ou, de préférence,
et comme la fait M. Popoff, un cylindre enregistreur exécutant
une rotation complète en 12 heures et analogue aux cylindres
dont il est fait usage dans les enregistreurs Richard.
Dès que les oscillations électriques agissent sur la
limaille, l'appareil enregistreur marque un trait sur le ruban. Cet
appareil a été installé par M. A. Popoff à
lInstitut Porestal à Saint-Pétersbourg, au mois
de juillet 1895, il sert pour les observations météorologiques
et fonctionne déjà depuis plus de 3 ans. Il fut utilisé
ensuite pour reproduire les expériences de Hertz sur les ondes
électriques, puis pour des essais de télégraphie
sans fil.
Pour arriver à la transmission à grande distance, M.
Popoff chercha à augmenter dune part lénergie
de la source des ondes électriques et dautre part, la
sensibilité du récepteur. Si lon emploie un vibrateur
de petite dimension, son énergie potentielle est petite et
on ne peut laugmenter sans faire perdre à la décharge
son caractère oscillatoire. Il faut donc augmenter les dimensions
de loscillateur de manière que, même avec une grande
longueur détincelle, cest-à-dire avec une
différence considérable de potentiel, le caractère
oscillatoire de la décharge subsiste. M. Popoff emploie un
oscillateur analogue à celui construit par Hertz. Ce vibrateur
possède des sphères de 30 centimètres reliées
par une tige interrompue dun peu moins dun mètre.
Les oscillations déterminées dans un tel appareil se
prolongent assez longtemps; on peut produire avec lui une longue étincelle
et obtenir une différence très considérable de
potentiel au commencement de loscillation sans aucune crainte
que la décharge perde son caractère oscillatoire.
Les premières expériences de Popoff furent faites dans
la cour de lInstitut ; la distance étant insuffisante
on les continua dans le port à laide dun bateau
supportant lappareil récepteur. Les premiers essais démontrèrent
la possibilité de signaler les ondes très distinctement
à la distance de 650 mètres ; à une distance
plus grande, on ne distinguait quune partie des décharges.
Dans ces premières expériences, Popoff employait dans
le radio-conducteur, de la poudre métallique très fine,
mais après plusieurs essais il trouva quune grande sensibilité
peut être obtenue, sans nuire à la constance de lappareil,
en employant une limaille dacier très grossière.
Cette dernière a permis de communiquer à des distances
3 à 5 fois plus grandes que la limaille fine ou la poudre.
Lemploi de cette limaille a permis datteindre la distance
de 700 mètres environ avec une petite bobine dinduction
donnant 4 à 5 centimètres détincelle. En
employant une bobine plus forte la distance atteint dun seul
coup plus dun kilomètre. Si lon munit le récepteur
dun conducteur vertical très long, ce quil est
très facile de faire sur un bateau, la distance de transmission
augmentera encore ; en effet, en augmentant la longuenr du fil récepteur
on reçoit les ondes dispersées sur de plus grands espaces.
On peut également accroître la sensibilité du
récepteur, en augmentant la sensibilité du relais intercalé
dans le circuit avec le tube à limaille. En ayant appliqué
ce moyen M. Popoff a atteint des distances de plus de 1.500 mètres.
Il construisit alors un vibrateur susceptible de donner une énergie
originelle encore plus grande et permettant, par suite, datteindre
des distances plus considérables. Dans ce nouvel oscillateur
les sphères sont remplacées par deux plateaux constitués
par deux troncs de cônes par la base comme lindique la
figure 35.
Fig. 35
. Fig. 36.
Schéma du récepteur de M, Popoff.
La distance entre les disques était denviron un mètre
et leur diamètre dun peu moins dun mètre.
Au point dinterruption de la tige sont fixés des disques
de 10 centimètres environ de diamètre, entre lesquels
jaillit létincelle. Cette modification a donné
à M. Popoff les résultats suivants : le vibrateur fut
placé sur une rive de la mer et le récepteur sur un
bateau possédant un mât de 9 mètres de hauteur
auquel était suspendu un fil isolé relié à
lune des électrodes du radioconducteur, lautre
électrode étant mise à terre ; en éloignant
lentement le bateau de loscillateur on a pu déterminer
la distance maximum de transmission, on la trouva supérieure
à 3 kilomètres. En employant un mât dune
hauteur plus grande on atteint une distance plus considérable
; cest ainsi quavec un mât de 18 à 20 mètres
on put transmettre des signaux à 5 kilomètres.
Il existe donc entre les expériences réalisées
par M. Popoff et celles de M. Marconi relatées dans le précédent
chapitre une grande analogie. Lappareillage employé par
ces deux physiciens ne présente que des différences
de détail, mais il faut reconnaître que M. Marconi a
poussé beaucoup plus loin ses investigations, puisquil
a obtenu la plus grande portée qui ait été constatée
jusquà présent, cest-à-dire près
de 150 kilomètres entre Wimereux et Chelmsford.
Le célèbre électricien américain, bien
connu par ses recherches sur les courants de haute tension et grande
fréquence, Nicolas Tesla, a inventé un nouveau système
de télégraphie sans fil, dans le transmetteur duquel
les radiations se comportent comme les rayons X passant par les milieux
les plus denses : le sol, la pierre, leau, etc. Daprès
M. Tesla, léther noppose aucune résistance
à la transmission des vibrations de natures diverses qui sy
propagent, et le travail dun cheval vapeur est plus que suffisant
pour lancer des signaux de Londres à New-York à 5.000
kilomètres de distance ; la diminution des effets dinduction,
avec laugmentation de la distance est due simplement au rayonnement
dans tous les sens de lespace, de telle façon quen
séloignant de plus en plus du centre démission,
un fil ou une surface métallique reçoit un nombre de
radiations de plus en plus restreint. Un faisceau cylindrique de radiations
électriques manifesterait, sil ne rencontrait aucun espace
sur sa route presque les mêmes effets à mille kilomètres
de distance quà un mètre. Ce nest donc pas
un paradoxe que de soutenir que les ondes électriques peuvent
être expédiées à une distance quelconque,
même jusquaux planètes telles que Mars et Jupiter.
M. Tesla, dans sa communication, annonce quil sera installé
avant la fin de lannée 1900 une station de télégraphie
sans fil par ses procédés, à New-York, et une
autre à Londres. On se servira,paraît-il, de ballons
captifs, retenus par des câbles en fil métallique et
lancés à 5000 pieds de haut, de manière à
atteindre les couches supérieures dair raréfié,
à travers lesquelles les ondes électriques se transmettront
plus facilement. Ces câbles seront ancrés à des
tours en acier. Au-dessous de chaque ballon pendra un disque de large
surface, et les oscillateurs seront placés au sommet des tours.
Une fois le mouvement électrique mis en activité dans
ces oscillateurs, ainsi disposé, le courant sélancera
jusquaux disques sous les ballons et de là jailliront,
tel un éclair, des vibrations qui traverseront lAtlantique.
De même, il y aura des courants qui descendront dans le sol
par des fils et actionneront des vibra-teurs similaires à ceux
suspendus dans lair libre. Analysons ce projet en détail
:
Etant donnée la distance entre New-York et Londres, les deux
fils verticaux formeront entre eux un angle de 75°. Supposons
un instant le radiateur à New-York : le fil vertical émettra
un cylindre de radiations, dont laxe est le fil lui-même,
la hauteur celle du fil et dont le diamètre peut être
considéré infini. La base de ce cylindre de rayons (les
radiations sont perpendiculaires au fil) est tangente à la
surface de la terre. Par la position des deux fils, ce cylindre de
rayons ne rencontrera pas le fil de la station de Londres : le fil
vertical est donc inutile. Il reste les radiations des deux disques,
lun mis sous terre et lautre suspendu au ballon. Ces deux
disques émettent presque toutes leurs radiations sous forme
de deux cylindres, lun sur le prolongement de lautre et
perpendiculaires à eux-mêmes. Pour que les radiations
de ces deux disques produisent des effets à la station de Londres,
il faut que les disques, aux deux stations, soient parallèles
et que les cylindres de rayons émis par les disques de New-York
rencontrent ceux de Londres. Pour les deux disques mis sous le sol,
cela nest pas impossible, mais le faisceau de rayons ne subira-t-il
de nombreuses réflexions et dispersions dans le sol de façon
quau disque, mis sous le sol à Londres, narriveront
pas de radiations ? Il reste le disque pendu sous le ballon : il nest
pas difficile de placer les deux disques parallèles dans les
stations, mais il faut encore que le cylindre de rayons rencontre
lautre disque de façon que, en les supposant égaux,
ces deux disques forment les bases dun cylindre droit. Mais
comment obtenir cela à laide dun ballon, soumis
au caprice du vent, quand un petit déplacement suffit pour
que le cylindre de radiation ne rencontre plus le disque ? Si, au
lieu du disque plein on emploie une spirale plane de fil à
section ronde comme le voudrait M. Guarini-Foresio, il suffira que
les deux spirales se trouvent dans deux plans parallèles ou
presque pour avoir toujours des effets dinduction.
Fig. 37
et 38. Disques-spirales de Cuaiini-Foresio
Ici il faut remarquer que, lorsquon emploie deux spirales planes,
à fil à section ronde, placées dans une position
quelconque, mais dans deux plans parallèles, on a toujours
des effets dinduction remarquables, chaque moitié de
la spirale induisante produiront les plus grands effets sur la moitié
de la spirale induite où la courbure du fil a la même
direction. On peut, dautre part, augmenter les effets dinduction
en interceptant les radiations émises selon des secteurs déterminés
du disque (de la spirale plane induisante). Peut-être que seulement
les radiations émises dans tous les sens par loscillateur
placé sur la tour produisent des effets dinduction dans
le fil ou les disques de Londres. Il faudrait placer les deux fils
dans une direction telle quils soient parallèles pour
que les radiations du fil induisant rencontrent le fil induit. Mais
les fils ne pourront-ils impressionner des appareils mis dans les
environs ? Et si on veut employer des réflecteurs ou limiter
lespace où on envoie les radiations, comment le faire
avec des fils dune longueur de 5.000 pieds ?
La chose paraît donc fort difficile, mais il ne faudrait pas
toutefois, la taxer dimpossible, M. Tesla a déjà
réalisé bien dautres merveilles et résolu
dautres problèmes paraissant aussi irréductibles;
attendons donc, un avenir prochain nous montrera ce que nous devons
croire de ces audacieuses affirmations .
Si nous revenons maintenant en Europe, nous devons mentionner, au
nombre des expériences les plus intéressantes tentées
dans ces derniers temps, celles qui ont eu lieu au mont Blanc et ont
fait lobjet dun rapport à lAcadémie
des Sciences.
Aucune démonstration satisfaisante nayant encore établi
que la télégraphie sans fil fût possible entre
deux points daltitude différente et dans les hautes régions
atmosphériques, MM. Jean et Louis Lecarme ont procédé,
du 15 au 25 août 1899, à de3 expériences entre
Chamonix et le mont Blanc.
Le poste transmetteur (observatoire Vallot, station de Chamonix, altitude
1.080 m.) et le poste récepteur (observatoire Vallot, station
des Bosses, altitude 4.500 m.) sont distants de 12 kilomètres
environ, à vol doiseau : la différence de niveau
est de 3.350 mètres. Quant à la nature du sol entre
ces deux points, on ne trouve que des mica-schistes, dont la partie
supérieure est entièrement recouverte de glace, sauf
à lemplacement de lobservatoire, et la partie inférieure
de moraines et dallu-vions.
Le but des expériences était desavoir : l°si le
télégraphe sans fil est pratiquement possible en montagne
; 2° si lélectricité atmosphérique
ne nuirait pas aux communications ; 3° si le rôle du fil
de terre persiste malgré labsence deau à
létat liquide sur le sol ; 4° on avait également
lintention détudier des orages situés à
de grandes distances, mais le temps na pas été
favorable.
Poste transmetteur. Station de Chamonix. Le poste transmetteur
se composait dun transformateur à haute tension, provenant
de la maison Seguy, actionné directement par le courant continu
dune dynamo de 50 volts, interrompu par un trembleur de Neef.
Un manipulateur à contacts de platine permettait denvoyer
à volonté le courant dans le primaire du transformateur,
qui donnait dans ces conditions des étincelles de 18 centimètres
entre deux pointes. Cette longueur détincelle se trouvait
réduite à 2 centimètres lorsque les pôles
du transformateur étaient réunis, lun au sol et
lautre au mât : celui-ci se composait dun fil de
cuivre de 2,5 millimètres de diamètre, tendu obliquement
à 30° environ sur une longueur de 25 mètres. On
a employé un oscillateur à boules de 2 centimètres
de diamètre, fonctionnant dans lair.
Poste récepteur. Station des Bosses (4.350 m.).
Le poste récepteur léger et portatif comprenait un radioconduc-teur
Branly à limaille dor très sensible, une pile
sèche (E:=l,9 volt) et un relais télégraphique.
Celui-ci commandait une sonnerie à un coup, un frappeur et
un galvanomètre. Le frappeur était disposé de
façon à interrompre automatiquement le courant traversant
le radioconducteur, avant le choc qui se produisait de bas en haut
sur le support du tube. Grâce à cette disposition, un
faible choc suffisait pour décohérer la limaille, et
la sensibilité du radioconducteur demeurait identique pendant
toute la durée des expériences.
Lappareil ainsi disposé est sensible, sans mât
ni fil de terre, à une étincelle de 1 millimètre
de longueur éclatant à une distance de 100 mètres
et produite bien entendu par une petite bobine donnant son maximum.
Le poste étant placé à lintérieur
de lobservatoire était préservé de toute
perturbation extérieure par lenveloppe de cuivre dont
est revêtu le bâtiment. La mise au sol était établie
par la communication avec les paratonnerres : le mât se composait
dun fil de fer isolé placé parallèlement
à celui de Chainonix et tendu entre le refuge Yallot et un
poteau planté dans la neige sur la paroi nord de la Grande-Bosse
: ce fil était relié à lobservatoire par
un conducteur isolé de 50 mètres de longueur. Les deux
postes étaient visibles l'un de lautre et des signaux
optiques permettaient la vérification des expériences
par le beau temps.
Résultats.
1° Les expériences ont eu lieu tous les jours à
11 heures du matin jusquau 25 août. En voici les résultats
daprès les Comptes rendus de lAcadémie des
Sciences. Les signaux nont été bien nets que pour
un écartement des boules de loscillateur égal
à 2 centimètres.
2° Labsence deau à létat liquide
na pas empêché les communications.
3° Des nuages interposés entre les deux postes nont
pas empêché les signaux.
4° Lélectricité atmosphérique, bien
quayant fait fonctionner lappareil à plusieurs
reprises, na pas produit une action capable de nuire à
la télégraphie pratique.
5° On a observé également que le fonctionnement
de léclairage électrique à Chamonix agissait
avec intensité sur lappareil et que, pendant toute la
durée de léclairage, il était impossible
de communiquer. La lumière électrique est fournie par
une dynamo à courants triphasés (E~2.500 volts); le
circuit primaire étant fermé sur lui-même sans
production détincelles.
En réalité, il ne sagit donc pas là de
télégraphie sans fil, mais de transmission à
petite distance dondes hertziennes, ce qui est fort différent
et ramène à de justes proportions les essais de MM.
Lecarme.
Dautres expériences, qui ont permis de faire des remarques
dun plus grand intérêt sont celles auxquelles sest
livré le docteur Délia Ricia à lInstitut
électrotechnique Montefiore à Liège. Ce physicien
a pu constater, en effet, que les radiations électriques, avant
de parvenir au récepteur, avaient dû traverser une épaisseur
totale de murailles de plus de 10 mètres, ce qui prouve que
linterposition dobstacles naturels : collines, etc., ne
constitue pas un empêchement radical à la transmission
de ces ondes.
On avait déjà constaté, au moment des expériences
faites en Italie quau moment où le bateau remorqueur
qui portait lappareil récepteur se trouva masqué
par dautres navires qui sinterposèrent entre lui
et la station, il devint nuisible pour cette station, et la réception
se trouva interrompue.
Ce fait tendrait à confirmer lobservation précédente,
daprès laquelle la transmission peut se continuer malgré
linterposition dobstacles entre la station transmettante
et la station recevante. Un autre jour, à la Spezzia même,
en répétant les expériences, pour affirmer le
fait important du passage des rayons électriques à travers
les obstacles, il fut encore vérifié quà
peine le navire perdit-il de vue la station transmettante, qui était
à San Barto-lomeo, en passant à louest du Tino,
à 8 kilomètres de la station transmettante, la correspondance
sinterrompit. Pendant que le navire poursuivait sa route vers
le nord-ouest, peu de signaux purent être encore recueillis
dans des points où, peut-être, de la sommité du
conducteur de réception on aurait vu la sommité du conducteur
démission, en procédant dabord entre Tino
et Palmaria et puis entre Palmaria et Muzzerone.
« Ces faits qui, à première vue, semblent contradictoires,
trouvent une explication facile dans le fait désormais assuré
que les rayons électriques traversent les diélectriques,
qui cependant absorbent une partie de lénergie de ces
rayons. M. Righi a trouvé que le verre, le marbre et le bois
(et celui-ci en proportions différentes, selon les dispositions
de ses fibres à légard de la direction des vibrations)
prennent une partie de lénergie des rayons de force électrique.
En général, on peut dire que, tandis que les substances
diélectriques plus homogènes (comme le spath dIslande,
le quartz fondu, etc.) présentent une absorption minime, dans
tous les autres diélectriques, labsorption est plus grande.
Ainsi les collines, les maisons, les arbres, etc., absorbent une certaine
quantité dénergie, quantité dautant
plus considérable que leur épaisseur est plus grande.
Nous pouvons comparer les diélectriques (qui laissent passer
les rayons électriques en absorbant une partie de lénergie)
sont pour la lumière à ce que sont les corps translucides
(qui laissent passer les rayons lumineux, en absorbant une partie
de lénergie). Tandis quune feuille mince de papier,
frappée dun faisceau de rayons lumineux, se laisse traverser
par une certaine quantité de lumière, deux feuilles,
superposées en laissent passer une quantité plus petite
que la première. Et, en continuant à superposer les
feuilles, on arrivera à un point où lensemble
de ces feuilles constituera un corps opaque et la lumière ne
passera plus. Ajoutons que les rayons de force électrique,
en rencontrant un obstacle, subissent une première réflexion,
sur la surface de lobstacle, et que la partie transmise subit
encore plusieurs réflexions internes, qui sont en proportion
des différentes faces des rochers ou autre que ce soit et en
proportion encore de lépaisseur de lobstacle même
».
Telle est la théorie exposée par un autre chercheur,
M. Guarini-Foresio dans une brochure fort intéressante consacrée
à létude de la télégraphie sans
fil par les méthodes de Hertz,
Marconi et Popoff.
Nous ne suivrons pas cet auteur dans ses considérations sur
les modes daction et de propagation des radiations électriques,
car certaines des ses opinions nous paraissent au moins hasardées
dans létat actuel de nos connaissances en physique. Nous
nous bornerons à donner la description dun appareil de
relais, que M. Gruarini-Foresio appelle répétiteur,
et qui semble susceptible de fournir de bons résultats.

Fig. 39. Schéma du répétiteur Guarini-Foresio.
De même que les relais employés dans la télégraphie
électrique usuelle, ce relais peut répéter les
signaux pour les transmettre avec une nouvelle intensité à
un poste suivant. Cet appareil doit donc être disposé
entre les deux stations à desservir ; il recevra de lune
de ces stations des radiations très faibles qnil pourra
transmettre en les amplifiant à lautre station ; son
utilité est donc indéniable.
Les connexions de ce relais sont représentées schématiquement
dans la figure 39.
Cet appareil est destiné, daprès son auteur, à
servir de répétiteur pour les postes mobiles par exemple
pour la communication entre trois navires dont lun sert de station
intermédiaire.
Dans le cas où lappareil doit servir deux postes A et
B situés sur la terre ferme, ou dans celui où lon
serait obligé demployer plusieurs relais entre ces postes,
ce qui amènerait forcément de la confusion dans lexpédition
et lenregistrement des signaux, on emploierait la disposition
indiquée par la figure ; le récepteur est séparé
du transmetteur par une cloison métallique ; le récepteur
doit être disposé du côté du poste expéditeur
extrême, et lappareil transmetteur sera lui, tourné
du côté du poste récepteur terminus.
La cloison, qui peut être faite dune substance quelconque
arrêtant les radiations électriques empêche que
les radiations du transmetteur de la station intermédiaire
retourne sur la station transmettante extrême ou sur celle intermédiaire
précédente, où il y en ait plusieurs et, en même
temps, lorsque cela est nécessaire, empêche que le récepteur
de la station intermédiaire ne soit impressionné par
ces mêmes radiations. La cloison, le cas échéant,
peut être un réflecteur qui réfléchira
les radiations du transmetteur du répétiteur sur la
station suivante de réception.
Ce relais ou répétiteur, tel quil est, est applicable
surtout aux communications mobiles. Dans le cas où il doit
desservir deux stations fixes, en terre ferme, voici comment il faut
disposer les choses : Au lieu dun fil vertical, il y en aura
quatre, deux en communication avec le fil, qui conduit au tube sensible,
et deux en communication avec deux plots dun commutateur, dont
le troisième est en communication avec loscillateur.
Les quatre fils sont entourés par des surfaces métalliques
de façon quils laissent lespace du côté
de la station suivante libre. Pour les fils en communication avec
le tube sensible, les surfaces métalliques doivent empêcher
que ce tube soit impressionné par les radiations que le radiateur
émet ; pour les fils en communication avec loscillateur,
ils doivent faire converger les radiations dans la direction de la
station suivante et en même temps empêcher quon
ait des radiations en dautres directions. Si nous appelons intermédiaire
cette station et si nous supposons que les deux autres se trouvent
lune à gauche et lautre à droite, les choses
doivent être disposées de façon quun des
fils, en communication avec le tube sensible, soit impressionné
seulement par les radiations qui viennent de la station de gauche,
par exemple, et lautre seulement par celles qui viennent de
la station de droite. De même un des fils, en communication
avec loscillateur, doit envoyer toutes ses radiations à
la station à droite : le commutateur met en communication selon
le cas, loscillateur avec un fil ou avec lautre. On peut
aussi employer une disposition à laide de laquelle, si
les radiations viennent de la station de gauche, loscillateur
les envoie à celle de droite ou vice-versa.
Il va sans dire que, si toutes les radiations, émises par une
des stations, celle à gauche ou celle à droite, sont
convergées sur un des fils de la station intermédiaire
et le courant induit en celui-ci est de telle intensité et
de telle nature quil puisse actionner directement lappareil
télégraphique, les choses restent presque les mêmes
: il suffit de supprimer le circuit de secours avec le tube sensible.
On peut aussi supprimer loscillateur dans le cas où cest
le courant variable de la bobine qui produit des effets dinduction
à lautre station : dans ce cas les circuits des fils
doivent être Jermés. Si toutes les choses sont arrangées
de la façon que nous venons dindiquer, si, au lieu dun
appareil, on en a deux à chaque station, on pourra avoir la
communication en même temps, en sens opposé. Et, en augmentant
le nombre des appareils, on peut avoir la télégraphie
multiple, comme dans les lignes télégraphiques ordinaires.
sommaire
Fin 1899 Les applications de la télégraphie
sans fil.
On a pu se convaincre, par le compte rendu des brillantes expériences
de Marconi, Ducretet et leurs émules, que la télégraphie
sans fil par ondes électriques est désormais entrée
dans le domaine de la pratique. Ses usages seront très nombreux
on nen saurait maintenant douter, en raison des immenses avantages
que présentent ces nouvelles méthodes, surtout pour
les communications maritimes.
Déjà la télégraphie sans fil pourrait
rendre à jamais impossibles ces effroyables catastrophes résultant
de la rencontre de deux de ces immenses paquebots modernes lancés
à toute vitesse, catastrophes qui ne jettent que trop souvent
hélas la consternation et le deuil dans le monde entier. En
effet, si tous les bâtiments qui traversent les mers étaient
pourvus dun oscillateur et dun radioconducteur, il suffirait
de mettre cet oscillateur en fonction la nuit et par les temps de
brouillard pour que ces bâtiments soit avertis, même à
une très grande distance, de leur approche réciproque.
Ainsi mutuellement avertis de leur présence ils pourraient
communiquer ensemble sans même se voir et sindiquer lun
lautre la direction suivie, de telle façon que toute
collision serait rendue impossible.
On peut penser quil reste une légère difficulté
à résoudre : cest dempêcher le radioconducteur
de chaque vaisseau dêtre influencé par les ondes
électriques émises par loscillateur placé
à côté de lui. Cependant, nous avons vu que lon
obtient ce résultat en disposant ces deux appareils lun
au-dessus de lautre et en les séparant par un écran
métallique interceptant les ondes produites par loscillateur
fonctionnant à côté du radio-conducteur. Ce dernier
demeure sensible aux seules radiations électriques émises
dun autre point quelconque de lespace entourant le navire.
Dans ce cas, les fils radiateurs et collecteurs seraient supprimés,
mais la portée des appareils demeurerait encore bien suffisante
pour éviter tout danger de collision ; dailleurs, même
en utilisant ces fils, on pourrait, à laide décrans
métalliques convenablement disposés, arriver au même
résultat tout en permettant les communications à grande
distance. En réalité, la seule difficulté sérieuse,
quil sagira de vaincre ou de tourner, réside dans
la construction métallique des coques et des mâts des
paquebots actuels, masse métallique qui apporte une forte perturbation
dans la réception des signaux.
De même, les phares, dont les feux sont souvent invisibles par
les temps dhiver et de brouillard, pourraient être avec
avantage munis dun oscillateur fonctionnant automatiquement,
de façon à répéter constamment les mêmes
indications nécessaires: nom du phare, emplacement exact quil
occupe, passages dangereux, etc.; ces indications seraient recueillies
par les récepteurs placés à bord des navires
passant à proximité et dans le rayon daction de
loscillateur. On voit immédiatement quels services inappréciables,
la télégraphie sans fil pourrait rendre dès maintenant
à la navigation ; aussi ne doutons-nous pas un instant que
ces nouvelles méthodes dintercommunication auront pris
une grande extension avant quil soit longtemps et que les marines
des diverses nations nhésiteront pas à adopter
dans une très large mesure ces appareils de protection et de
sécurité.
Rappelons à ce sujet, et en passant, quun de nos députés,
ami du progrès scientifique, M. J.-L. Breton, auteur de la
Revue Scientifique de l'année 1899 à laquelle nous avons
fait divers emprunts dans le cours de cet ouvrage, a posé à
la tribune de la Chambre le 21 mars 1899, une question au Ministre
de la Marine, pour savoir, à propos de la discussion du budget
de ce département et de la catastrophe, toute récente
alors, du paquebot-poste la Bourgogne, si nos amiraux se préoccupaient
de lutilisation de ces nouvelles méthodes de communication.
De la réponse du ministre, il résulte que le Ministère
ne se désintéresse pas, bien au contraire, de cette
application si utile de la science ; il en suit de très près
le développement, des appareils ont été commandés,
et le succès des expériences faites pendant toute une
année à Brest par M. le lieutenant de vaisseau Tissot
avec les appareils perfectionnés de Ducretet, est un acheminement
à lemploi universel à bord des navires et des
phares des appareils de télégraphie par ondes hertziennes.
Aussitôt que le problème de la communication entre les
navires aura été résolu dune manière
satisfaisante, le Gouvernement français provoquera une conférence
internationale afin darrêter dune manière
définitive, conjointement avec les représentants des
autres nations, le rôle de la télégraphie électrique
maritime, et donner, si possible, aux navigateurs le moyen déviter
ces collisions qui ont causé tant de désastres et de
naufrages.
Attendons donc que linitiative de nos ministres se révèle,
et espérons que ces promesses ne seront pas seulement de vaines
paroles, mais quau contraire, la France tiendra à remplir
son rôle civilisateur et donnera la vigoureuse impulsion nécessaire
pour que ces utiles mesures de préservation soient adoptées
par toutes les puissances maritimes, au plus grand bénéfice
de lart de la navigation en général !
De même que lindustrie des transports, lart militaire
trouvera dans la télégraphie sans fil une importante
ressource pour transmettre, par tous les temps ce qui ne peut
être obtenu avec les procédés optiques,
et sans établir aucune ligne de fils, des dépêches
entre différents corps darmée, avec des forts,
des villes assiégées, etc. Même étant en
marche, des corps darmée pourront rester constamment
en communication télégraphique, sans aucun impedimenta.
Toutefois il ne faut pas oublier que les signaux qui seront ainsi
échangés dune place forte ou dun quartier
général à lautre, à travers lespace,
pourront être surpris et lus par nimporte quelle
personne ayant intérêt à surprendre ces messages,
et qui aura établi un mât avec un fil collecteur et un
radioconducteur. Cest là, en vérité, linconvénient
capital de la télégraphie sans fils par ondes électriques,
et il a été démontré par le fait quen
1899, le poste de télégraphie Marconi installé
à Yimereux lut le télégramme suivant qui passait
dune station anglaise à lautre : « Nous parlerons
à Boulogne à cinq heures après-midi ».

Fig. 40. Dispositif de M. Breton pour produire les courants
de haute fréquence utilisables pour la télégraphie
sans fil.
Il paraît donc malheureusement trop évident que ladoption
général du système de télégraphie
à travers lespace sera susceptible de produire une grande
confusion entre les signaux échangés entre différents
postes, mais il est à espérer que lon parviendra
par la suite à accorder convenablement les appareils de transmission
et de réception, de façon à éviter les
fâcheux effets du mélange des ondes émanant de
différentes sources.
Toutefois, il y a un autre côté de la question qui est
infiniment moins avancé et qui cependant a une importance capitale
; sa solution seule permettra lextension de la télégraphie
par ondes électriques.
Actuellement, en effet, les ondes électriques, lancées
dans lespace par un appareil transmetteur quelconque, peuvent
être recueillies par un récepteur à limaille égâlement
quelconque, de telle sorte que, dune part, le secret des correspondances
ne peut êf;re assuré et, que dautre part, si plusieurs
postes fonctionnent ensemble dans un rayon donné, leurs signaux
sentremêlent et sembrouillent réciproquement.
On conçoit limportance considérable de ce fait
; dans bien des cas, en effet, et principalement pour la télégraphie
militaire, le secret des correspondances est indispensable ; quant
à laction réciproque des différents postes
agissant les uns sur les autres, elle rendrait matériellement
impossible lemploi de plus dun appareil dans son rayon
daction.

Fig. 41. -Résonateur de M. Breton. Fig. 42. Résonateur
du Dr Oudin construit par Ducrelet.
On peut déjà diminuer ce grave inconvénient en
nenvoyant les ondes que dans une seule direction et en interceptant
celles émises dans les autres directions à laide
décrans métalliques ; mais si cette méthode
est facile dans le cas de transmission directe par loscillateur,
elle devient particulièrement difficile, quand on emploie un
long fil radiateur disposé le long dun mât.
Dailleurs, ce système ne peut simplement quatténuer,
sans le supprimer, linconvénient signalé plus
haut, puisque tous les récepteurs qui se trouveront dans langle
démission des ondes seront tous influencés par
ces ondes.
Il est donc indispensable de trouver un système permettant
de ne faire agir certaine catégorie dondes émises
par un transmetteur spécial que sur un récepteur approprié.
M. Marconi, et avant lui, M. Hertz ont remarqué que, en donnant
une surface plus ou moins considérable aux capacités
électriques reliées au récepteur, on rendait
ce dernier plus ou moins sensible pour les ondes émanant dun
transmetteur donné ; on peut ainsi accorder électriquement
les deux appareils pour obtenir un maximum de sensibilité.
Peut être la solution du problème est-elle dans cette
voie ? Cest, en tout cas, ce problème que doivent principalement
chercher à résoudre les inventeurs, car tant que lon
ne pourra rendre indépendant les uns des autres les différents
postes le développement de la télégraphie sans
fil sera extrêmement limité.
Ce nest certainement pas une question insoluble, le tout est
de trouver le moyen daccorder électriquement les deux
appareils correspondants pour que le récepteur puisse être
influencé par des ondes dune longueur déterminée
et uniquement par celles-là.
Lorsque la télégraphie sans fil par ondes électriques
sera ainsi perfectionnée, combien seront grands les résultats
pratiques que lon pourra tirer dune semblable invention.
Tandis que maintenant il faut établir une ligne coûteuse,
et dont linstallation demande une longue période de.
temps, pour réunir télégraphiquement deux points,
il suffira bientôt dy simplement disposer deux appareils
appropriés. Les navires pourront rester en communication constante
entre eux et avec la terre ; impossible désormais de supprimer
toute communication entre une ville assiégée et le pays
environnant, comme il fut fait pour Paris en 1870 ; en voyage, une
personne ayant emporté lappareil nécessaire, pourra
à tout moment télégraphier à ses amis
ou parents quelle se trouve en chemin de fer, en bateau, voire
même en ballon ?
Dans quelques années, les explorateurs senfonçant,
dans des terres inconnues, comme Andrée senvolant vers
le pôle Nord, pourront peut-être rester en communication
constante avec le monde civilisé et lui donner sans cesse des
renseignements intéressants sur les péripéties
de leur périlleux voyage ; il y a là le germe dun
nouveau système de reportage qui, nen doutons pas, aura
un grand succès chez nos descendants ; les journaux de cette
époque paieront alors bien cher pour avoir leur appareil récepteur
accordé à lunisson électrique du transmetteur
des futurs explorateurs !
Telles sont les suppositions que fait M. J.-L. Breton pour les applications
de la télégraphie par ondes électriques ; il
est encore dépassé dans ses prédictions par M.
Guarini-Foresio qui sécrie dans un accès de lyrisme
bien transalpin :
Les efforts des inventeurs seront dressés à utiliser,
dans la meilleure manière possible, les forces naturelles :
marées, cascades, ondes de la mer, vent et qui sait ce que
lon pourra encore utiliser !
Toutes ces énergies seront transformées en énergie
électrique, qui, dune station de production, se trouvant
là où se trouve la force naturelle, sans fil de ligne,
à travers léther, sous la forme dun cylindre
invisible, sera transportée en de lointaines stations de réception,
où elle sera transformée en lumière, chaleur
et mouvement. Peut-être en ce temps-là on ne verra plus
la fumée des machines à vapeur : tout sera électricité.
Plus de feu pour le réchauffement, plus de gaz ou autre pour
lillumination. Les établissements industriels seront
activés par lénergie électrique, les villes
éclairées à la
lumière électrique, réchauffeurs électriques
: tout par lélectricité et à bon marché.
On pourra avoir de vraies lignes télégraphiques et téléphoniques
sans fil, accélérées et sûres.
Lon songera, peut-être, au téléphone sans
fil. Et il sera trouvé. Et quand celui-ci sera inventé,
quel grandiose dessein surgira dans lesprit humain ?
Lorsque les hommes pourront se parler, se voir, sur toute la surface
de la terre, sans que les obstacles naturels soient un empêchement,
sans que des fils les mettent en communication, lorsque les énergies
naturelles seront utilisées et distribuées au monde
entier, quel but sérigera devant lhomme ? Nous
ne pouvons pas ou, mieux, nous ne voulons pas le prévoir. Mais
quel quil soit, il sera atteint. Si quelque cataclysme ne vient
anéantir les pays civilisés, devant lhomme de
lavenir sérigera toujours un nouveau but, but quon
sefforcera toujours de rejoindre et quon rejoindra.
Certes, le jour est bien éloigné où notre rêve
se réalisera, le jour dans lequel le monde présentera
un aspect nouveau : ce jour est éloigné, mais il viendra.
Certainement ce que lon a fait nest pas beaucoup. Cependant
cest un pas vers la télégraphie de lavenir,
cest toujours un exode glorieux de cette nouvelle ère
que lon proclame pour lélectricité.
Le téléphone
sans fil : On y est.
Toutes ces merveilles, conclurons-nous avec M. Breton, ne sont pas
encore réalisables dans létat actuel de la science
; ce ne sont que des rêves davenir ; mais qui oserait
dès maintenant affirmer que ce ne sera jamais ? Qui sait même
si lon ne trouvera pas moyen de remplacer les transmissions
télégraphiques sans fil par des transmissions téléphoniques
du même genre, permettant la conversation entre deux personnes
situées à des points très distants, et simplement
munies dappareils accordés électriquement ; on
nen est pas encore là avec les appareils actuels, on
en est même très loin, mais aucune impossibilité
absolue ne sy oppose. On peut alors prévoir, dans un
avenir plus ou moins lointain, un temps où les transmissions
téléphoniques seront absolument généralisées
et où chacun, possédant un appareil particulier, pourra
se mettre en rapport avec-nimporte quelle autre personne ; il
ny aura plus même besoin de sadresser à un
bureau central pour obtenir une communication et il suffira dharmoniser,
daccorder électriquement son appareil avec celui de la
personne avec laquelle on désirera se relier, pour être
entendu par elle et elle seule ; un damier aux combinaisons innombrables
permettra détablir cette harmonie dappareils, en
se reportant aux indications dun répertoire approprié
!
Ainsi seront réalisés par la science les rêves
les plus chimériques, les conceptions les plus fantastiques
des inventeurs, ce qui démontre que les choses qui, aujourdhui,
paraissent les plus invraisemblables, pourront être demain si
vulgaires quon ny attachera plus aucune importance. Cela
sest produit pour les aérostats, les chemins de fer,
le téléphone, les rayons X, et cest le sort de
la télégraphie sans fil dont, les ondes formeront avant
quil soit longtemps un invisible réseau de vibrations
autour du globe !
sommaire
Le relais radio
L'histoire de la communication par relais radio a
commencé en 1898 avec la publication de Johann Mattausch dans
le journal autrichien Zeitschrift für Electrotechnik. Mais sa
proposition était primitive et inutilisable.
Le premier système de relais réellement fonctionnel
est celui inventé en 1899 par Emile Guarini-Foresio [2, 3].
Emile Guarini-Foresio
(1879 - 1953)
Le 27 mai 1899, l'étudiant belge Emile Guarini-Foresio
a déposé une demande de brevet d'invention auprès
du service belge des brevets, après avoir décrit pour
la première fois un dispositif de répéteur de
relais radio. Brevet 21413 déposé en Suisse.
Grand admirateur de Guglielmo Marconi, de cinq ans son aîné,
Guarini comprit à fonds le système de son compatriote
et inventa lui-même le répétiteur automatique.
Après cette invention il devint ingénieur et professeur
et s'établit à Bruxelles en Belgique.
Émile Guarini répéta l'expérience de télégraphie
sans fil faite le 12 décembre 1901 par Marconi, entre Paris
et Bruxelles sur une distance de 171 miles en y ajoutant son répétiteur
automatique.

En décembre 1899, Guarini-Foresio a breveté en Suisse
(brevet 21413 *) des conceptions d'antennes directionnelles
de type réflecteur, ainsi que d'antennes spirales à
rayonnement axial, représentées sous la forme d'un conducteur
métallique empilé en spirale dans les rainures d'un
réflecteur métallique. les exigences de ces antennes
étaient dues à la nécessité d'éviter
les interceptions de messages au-delà d'une ligne de transmission.
* Guarini-Foresio E. 1899, Installation pour transmettre
l'énergie électrique dans une direction déterminée
et pour la recevoir. - Brevet Suisse
21413, 21 décembre.
Poursuivant l'amélioration de l'idée du répéteur
automatique, Guarini-Foresio réalise conjointement avec Fernando
Pontsele en 1901 une série d'expériences sur un établissement
de communication par relais radio entre Bruxelles et Anvers. Le répéteur
a été installé à Malines, la gare intermédiaire
entre Bruxelles et Anvers. Des constructions avec des antennes cylindriques
de 50 cm de diamètre ont été montées sur
de hauts bâtiments architecturaux.
S'appuyant sur l'expérience acquise, en juin 1901, Guarini-Foresio
commença à préparer la réalisation d'une
communication expérimentale par relais radio entre Bruxelles
et Paris à une distance de 275 km. Il était prévu
de placer des répéteurs à une distance d'environ
27 km les uns des autres.
En décembre 1901, Guarini-Foresio atteint l'objectif qu'il
s'était fixé, en réalisant avec succès
une session de communication sur la ligne de relais spécifiée
entre les capitales de la Belgique et de la France, avec un délai
général de transmission des messages de plusieurs secondes.
Considérant que les répéteurs ouvraient de nouveaux
horizons pour les communications par câble sans fil, éliminant
un problème de distances, Guarini-Foresio était extrêmement
optimiste quant à l'avenir sans nuages des inventions. En raison
de l'augmentation de la portée des stations de radio au détriment
de l'augmentation de la capacité des générateurs
de rayonnement, ainsi que du développement ultérieur
des systèmes d'antennes et de réception, la demande
de répéteurs a considérablement diminué.
Et ce n'est que dans les années 1930, après l'invention
des lampes électroniques et le développement des gammes
de hautes fréquences, que l'idée de la communication
par relais radio est redevenue nécessaire.
sommaire
1900 En France Lenthousiasme pour la nouvelle
technologie est international. E. Ducretet et Gustave Ferrié,
A. Popov en Russie, A. Slaby en Allemagne, Fessenden ou Alexanderson
aux États-Unis fabriquent des équipements de plus en
plus performants.

Gustave Ferrié |
Gustave Auguste Ferrié
est un ingénieur et Général français
né en 1868 en Savoie et mort en 1932, à Paris. Il
étudie à lEcole Polytechnique, se spécialise
dans la télégraphie optique et électrique
puis sengage dans larmée. Sorti officier du
génie, il obtient sa première affectation avec le
grade de Lieutenant.
Grâce à sa première expérience dans
les transmissions lors dun stage au Mont-Valérien
en 1893, il sintéresse très tôt à
cette technologie naissante quest la télégraphie
sans fil (TSF). Quelques années plus tard, il retournera
dailleurs à lécole de télégraphie
militaire du Mont-Valérien en tant quinstructeur
puis commandant.
Ses connaissances et expériences à la fois dans
le domaine scientifique et militaire lui confèrent un large
panel de compétences, particulièrement appréciées
par Gustave Eiffel.
En 1900, le ministère de la Guerre charge Gustave Ferrié
détudier les applications militaires de la TSF. Très
rapidement, le Général ne parvient plus à
obtenir daméliorations à la hauteur de ses
espérances : il ne dispose pas dantennes suffisamment
hautes pour réaliser des liaisons de longue distance. Il
va tenter délever des antennes en employant des dirigeables
militaires mais ces essais se révèlent infructueux
en raison des intempéries. |
Gustave Eiffel, de son côté, souhaite
sauver la tour Eiffel du démantèlement. Il multiplie
les expériences scientifiques car doter la Tour dune
utilité scientifique lui garantirait sa pérennité.
La collaboration entre les deux ingénieurs semblait évidente,
et débute en 1903 lorsque Gustave Eiffel propose à Gustave
Ferrié, alors capitaine, de sinstaller à la Tour
et de lutiliser comme support dantenne. Cette même
année, le militaire parvient à réaliser une liaison
à 400 km et 5 ans plus tard, à 6000 km !
Une fois la télégraphie sans fil mise au point, Gustave
Ferrié propose au ministère de la Guerre dutiliser
officiellement la tour Eiffel comme antenne. Dès 1904, larmée
française installe une station de TSF dans des baraquements
en bois sur le Champ-de-Mars. Elle abrite le matériel démission
et de réception nécessaire et est relié à
lantenne accrochée à la Tour. La station sera
ensuite installée dans un lieu souterrain.
En 1910, grâce aux liaisons entre les observatoires des
différentes régions de France, la Tour Eiffel va unifier
lheure sur tout le territoire.
Une communication sera également établie avec les navires,
la Tour les guide en leur transmettant lheure, leur permettant
de déterminer leur position en mer. Ces exploits promettent
un bel avenir à la TSF, lancêtre de la radio.
Au fil du temps, le réseau radiotélégraphique
sagrandit et devient opérationnel entre la tour Eiffel
et des grandes villes de lest de la France. Etant proches de
la frontière allemande, Verdun, Toul, Belfort et Epinal vont
rapidement devenir des zones de liaison stratégiques pour larmée
française.
Durant la Grande Guerre, ces installations vont être utilisées
pour capter des signaux émis par larmée allemande,
suivre les mouvements de troupes ou encore repérer des bruits
souterrains ou aériens. Ce réseau découte
est dune grande utilité notamment lors de la bataille
de la Marne en 1914. Gustave Ferrié sera le conseiller technique
en radiotélégraphie des Alliés pendant toute
la durée du conflit, et promu général de Brigade
juste après lArmistice.
sommaire
Quand la Savoie découvrait la télégraphie
sans fil.
Roberto Clemens Galletti de Cadilhac, pionnier
de l'ombre, n'eut pas la possibilité de connaître la
gloire. Son uvre fut démantelée inutilement, alors
qu'elle aurait pu rendre en son temps de grands services à
la France.
 |
Né le 29 décembre 1879
à San Venanzo, sur le bord de l'Adriatique, et qui, marié
à une Française veuve du comte de Messimy, Galletti
vint s'installer dans la maison qu'il acheta à Murs, dans
l'Ain, sur l'autre rive du Rhône, en face de sa station.
Un père franco-italien, une mère anglaise lui offrirent
l'atout de posséder trois langues dès son plus jeune
âge. Travailleur infatigable, il uvra pour atteindre
son objectif premier, une communication transatlantique.
La mathématique et les sciences physiques, spécialement
tout ce qui se rapportait à l'électricité,
l'attiraient particulièrement et il étudia pour
devenir ingénieur. En 1908, il fut inscrit à la
Société des ingénieurs et architectes italiens.
Il était hanté du mystère des ondes électriques.
En 1906, il
déposa en Angleterre un brevet pour des « perfectionnements
dans la télégraphie sans fil ».
L'année d'après, il obtint, en Angleterre et en
France, les brevets pour les (« perfectionnements dans les
méthodes pour produire les oscillations électriques
» et tout au long des années suivantes, jusqu'en
1926, de nombreux autres brevets en France, en Suisse, en Allemagne
et dans d'autres pays. |
En 1908, il traita avec la « Cylindroïd
» de Londres pour une démonstration pratique de son système
de télégraphie sans fil, dans le but d'établir
une communication sans fil entre la France et les côtes orientales
des Etats-Unis.
La France eut le mérite de reconnaitre
la première la validité du nouveau système de télégraphie
sans fil, inventé par l'ingénieur italien.
En 1909, il fut autorisé
par le Ministère des Travaux Publics, des Postes et des Télégraphes
français, à installer un poste d'expérience de
télégraphie sans fil à Villeurbanne. La correspondance
entre le Ministère et l'ingénieur Galletti continua et,
en 1912, dans le Petit Bugey (Avant-Pays Savoyard), il édifia
une station de T.S.F., l'une des plus puissantes du monde à l'époque.
Les bâtiments étaient situés à Leschaux (commune
de Champagneux) et l'antenne établie par l'administration des
Postes et Télégraphes venait se fixer à Saint-Maurice
de Rotherens, sur le bord de la falaise, à 500 mètres
au-dessus du lit du Rhône, sur des poteaux espacés d'une
trentaine de mètres les uns des autres.
Cette antenne-harpe était constituée
de dix câbles d'environ 950 mètres. Elle était
gardée par Jean Gros qui était chargé de la maintenir
en état quel que soit le temps. Galletti avait trouvé
à Leschaux un site très favorable pour la construction
de sa station avec une base marécageuse (eaux du Rhône)
où dix rangées de lames de cuivre furent enterrées,
et une falaise calcaire à pic. Plusieurs bâtiments étaient
construits, isolés du sol par une couche d'asphalte ou par
des isolateurs en porcelaine.
Deux lignes électriques spéciales
alimentaient la station, l'une provenant de l'usine Richard de Saint-
Genix, l'autre de la Société Force et Lumière
de Moûtiers.
A la fin de 1913, l'ingénieur Galletti
put faire ses premiers essais de transmission avec une note musicale
et des signaux morse ; ils furent reçus par la station de Tuckerton
dans le New-Jersey (USA) pendant l'hiver 1913-1914.
Un rapport au sujet de l'efficacité de la station de Leschaux
donne en conclusion : « Les signaux reçus en 1914 à
Tuckerton (près de New-York) le jour et la nuit, étant
qualifiés comme des signaux de bonne intensité de courant,
cela signifie que leur puissance était au moins triple par
rapport à celle suffisante à la réception. Le
poste de Leschaux a pu brouiller les réceptions de poste de
T.S.F de Glace Bay (Canada) en empêchant à ce poste de
recevoir des émissions faites par le poste de T.S.F de Clifden
(Irlande) toutes les fois que M.R.C Galletti a bien voulu le faire
».
Au mois de mars 1914, le Ministère français
des Postes et des Télégraphes passa une convention avec
la Compagnie qui avait été fondée en 1912 pour
l'exploitation des brevets Galletti. Elle fut passionnément
discutée à la Chambre des Députés dans
la séance du 18 mars 1914 et tous les journaux en parlèrent.
Alors qu'il venait de demander la visite de sa station
par le président Poincaré qui projetait un voyage dans
la région, au mois d'août, survint la Grande Guerre.
Galletti assista, impuissant, au démantèlement de sa
station alors que son utilisation pouvait rendre de grands services
à la France. En effet, il était en train de poursuivre
ses travaux afin d'assurer la réception des signaux russes.
Malgré l'intervention du capitaine Ganache, le « crime
de lèse-patrie » se réalisa ; le poste de Leschaux
fut mis sous séquestre et, en septembre 1914, le Ministère
de la Marine opéra la réquisition du matériel.
Ce qui restait de la station fut gardée par des soldats jusqu'en
1920.
Cette année-là, le matériel fut rendu, mais dans
un état déplorable et hors d'usage.
Le poste resta fermé deux ans encore
et seulement en 1922 les scellés furent levés
et l'on fit l'expertise du peu qui s'y trouvait. Mais il devait passer
encore une année avant que Galletti fût autorisé
à y pénétrer avec l'ingénieur-électricien,
M. Marcel Martin. Son rapport dresse le constat : « Contrairement
à ce que pourrait faire croire l'inventaire très incomplet
dressé le 31 août 1914, il importe de dire que la station
de Leschaux, telle qu'elle était équipée avant
la guerre, représentait un poste de télégraphie
sans fil de tout premier ordre très bien conçu et outillé,
et disposé pour jouer un rôle actif dans le domaine des
transmissions télégraphiques à très grande
distance, tant au point de vue commercial qu'au point de vue avancement
de la science. En dehors des appareils qu'elle renfermait, cette station
représentait une valeur propre intrinsèque due à
l'utilisation rationnelle et scientifique de tous ces appareils.
Des résultats nouveaux et remarquables
de transmission à très grande distance avaient été
obtenus expérimentalement avant-guerre par la mise en uvre
de ce poste dont une des caractéristiques était son
prix d'établissement relativement réduit ».
Mais Galletti ne pouvait plus utiliser les restes
de sa station et avec l'indemnité qu'il reçut de l'Etat,
il liquida sa compagnie.
Très éprouvé, il continua cependant à
s'intéresser à ses études. Il obtint d'autres
brevets, toujours au sujet de la télégraphie, publia
des essais et formula l'équation électromagnétique
universelle.
Ensuite, il continua ses recherches en Angleterre
où il expérimenta avec succès un procédé
de radioguidage des avions.
Le 2 juillet 1931, il réalisa une démonstration
sur un « Fokker », lors d'un voyage Manchester-Bristol
aller et retour. Le journaliste qui l'accompagnait écrivait
« Jai eu le privilège de tester une invention incroyable
qui garde les avions sur leur route comme les tramways sur leurs rails
et qui pourrait bien révolutionner laviation ».
Mais malheureusement Galletti ne put terminer ses travaux...
Le 18 août 1932, il décédait chez lui,
à Murs (Ain), où il fut enterré. De cette uvre
importante, il ne reste que peu de vestiges. La station démantelée
n'a laissé que ses fondations et le temps a eu raison du dernier
poteau de l'antenne.
sommaire
A partir de 1921, Ferrié expérimente
la radiodiffusion depuis la tour Eiffel. Ainsi nait la radio
grâce à Radio Tour Eiffel qui émet régulièrement
à partir de 1922. Nous fêtons cette année le centenaire
de la radio.
Gustave Ferrié contribua ainsi grandement à sauver la
Tour de la destruction programmée en 1909, il est le précurseur
de la TSF et la largement développée sur le territoire
français en lespace de quelques années seulement.
A son décès, il est le militaire français le
plus décoré après le Général Foch
et avant le Maréchal Joffre.
Sur la tour Eiffel, nous lui rendons hommage notamment au 1er étage
: le grand pavillon côté sud-ouest abritant notre buffet,
différents services aux visiteurs et une grande boutique est
nommé « Pavillon Ferrié ».
sommaire
La Radio
Aux USA, Reginald Aubrey Fessenden, ingénieur électricien
Canadien était un pionnier dans le domaine de la communication
radio. Il a effectué la première transmission vocale
sur les ondes radio. Il a également établi les bases
de la modulation damplitude (AM) et a réalisé
la première communication radiotélégraphique
bidirectionnelle à travers locéan Atlantique.
Sa transmission de 1906 dun concert de Noël est considérée
comme étant la première émission radiophonique
de lhistoire.
Reginald Fessenden se rend à New York en 1886 pour pouvoir
travailler avec linventeur américain Thomas Edison. Il
affirme à ce dernier quil apprend très vite. Initialement,
Thomas Edison le renvoie du revers de la main, mais la compagnie Edison
Machine Works lengage éventuellement en tant quassistant
testeur. Reginald Fessenden fait ses preuves en maîtrisant son
travail et en aidant son superviseur. Avant la fin de lannée,
il est promu à deux reprises. Le fait dobtenir un emploi
avec la compagnie Edison à lère de la technologie
moderne est tout un exploit pour un jeune de 20 ans qui na aucune
qualification.
En 1890 la compagnie Edison a des problèmes financiers, et
doit licencier Reginald Fessenden. Ce revers est de courte durée,
car il se trouve rapidement un emploi comme professeur en génie
électrique à la Purdue University. En 1893, il aide
le pionnier de lindustrie électrique, George Westinhouse,
à installer léclairage de lexposition universelle
de Chicago. Plus tard cette année-là, George Westinghouse
recrute Reginald Fessenden à la Western University of Pennsylvania,
à Pittsburgh. Reginald Fessenden est le premier directeur du
département de génie électrique de lécole.
Cest pendant quil est à Pittsburgh que Reginald
Fessenden entend parler des efforts de Guglielmo Marconi pour envoyer
des messages sur les ondes radio. Ceci lencourage à améliorer
une partie de la technologie que Guglielmo Marconi est alors en train
de tester.
La Modulation damplitude (AM) et premières
expériences
En 1900, Reginald Fessenden commence à travailler au United
States Weather Bureau. Le bureau météorologique veut
déterminer si les ondes radio peuvent transmettre des données
météorologiques des stations côtières éloignées
aux bureaux du Weather Bureau situés dans les villes, et ce
sans avoir à poser de fils téléphoniques ou télégraphiques.
Et si cela fonctionne, il serait également possible dutiliser
les ondes radio pour envoyer et recevoir des données météorologiques
des navires en mers. Le problème que Reginald Fessenden doit
surmonter est que les premiers émetteurs radio ne peuvent transmettre
de linformation que par télégraphie, en utilisant
des impulsions électriques courtes et longues pour communiquer
en code Morse. Ceci nest pas pratique dans le cas dinformations
météorologiques compliquées, ce qui inspire donc
Reginald Fessenden à effectuer des expériences. Il combine
un émetteur radio de base avec un interrupteur spécialement
conçu relié à une bobine dinduction. Ceci
permet à Reginald Fessenden de modifier la force doscillation
(lamplitude) pour inclure des signaux sonores. Il vient ainsi
de découvrir le principe de la modulation damplitude
(AM).
Le 23 décembre 1900, à Cobb Island au
Maryland, Reginald Fessenden transmet avec succès sa voix sur
une distance de 1,6 km (un mille) pour la première fois, en
utilisant une modulation damplitude. Son message est : «
Bonjour. Un, deux, trois, quatre. Est-ce quil neige là
où vous êtes, monsieur Thiessen ? » La qualité
du son est mauvaise, mais il sagit néanmoins dune
incroyable percée scientifique. Reginald Fessenden fait également
une autre découverte importante, à savoir le détecteur
électrolytique. Il fait breveter ce détecteur sous lappellation
« barretter detector » en 1903. Le détecteur électrolytique
améliore la réception des sons sur les ondes radio.
Les détecteurs radio de Reginald Fessenden sont la norme dans
les toutes premières années de la radio.
Éventuellement, Reginald Fessenden quitte le Weather Bureau
en raison dune dispute acharnée concernant les brevets.
Il forme alors la National Electric Signalling Company (NESCO). Bien
quil nait que peu de succès avec son entreprise,
il arrive à faire concurrence aux avancées de Guglielmo
Marconi dans la technologie de la radio sans fil. Les deux inventeurs
cherchent des alternatives sans fil aux câbles transatlantiques
existants.
De 1903 à 1906, Reginald Fessenden aide la Ontario Power Compagny
(plus tard renommée Hydro-Electric Power Commission of Ontario
en 1906, et prédécesseure dHydro Ontario) à
développer une centrale hydroélectrique à Niagara
Falls.
Premières diffusions radio
La technologie de la radio fait de rapides progrès au cours
des premières années du 20e siècle. Des améliorations
sont apportées pour augmenter la distance des transmissions,
la force du signal et la qualité de la réception. Lamélioration
de la fiabilité des équipements de communication est
également une préoccupation importante.
Au cours de lété de 1906, Regonald Fessenden effectue
des expériences avec un alternateur-émetteur pour transmettre
la voix entre deux endroits au Massachusetts Brant Rock et
Plymouth , qui sont à 18 km de distance. Il établit
également une station à Machrihanish en Écosse
pour faire des expériences transatlantiques.
En novembre 1906, Helen Fessenden envoie un message télégraphique
codé par le « sans fil » (cest ainsi que
sappelait la radio à lépoque). Le message
est reçu à la station Machrihanish, décodé,
et ensuite retransmis par télégraphe aux amis dHelen
à Londres. Deux jours plus tard, une réponse est reçue.
Il sagit du premier message personnel transatlantique envoyé
et reçu en utilisant les ondes radio. Ce même mois, les
ingénieurs de la station Machrihanish entendent certaines expériences
faites au Massachusetts sur les ondes.
Le premier message radio « télégraphiésans
fil » est envoyépar l'inventeur canadien Reginald Fessenden
en 1906.
À ce stade, les expériences de Reginald Fessenden gagnent
une attention considérable et les journaux techniques et scientifiques
en parlent souvent. Il fait souvent des démonstrations de son
équipement pour des clients potentiels, comme la United States
Navy, la American Telegraph and Telephone Company, ainsi que pour
déminents universitaires. Cependant, un reportage publié
en novembre 1906 linquiète, car ce dernier met en doute
son équipement et ses affirmations. Le 5 décembre 1906,
la tour de la station Machrihanish seffondre lors dune
violente tempête. Ces deux événements convainquent
Reginald Fessenden quil est temps de faire une démonstration
de son équipement à la presse et à un groupe
restreint dinvités. La première démonstration
publique de diffusion de musique et de discours a lieu le 21 décembre
1906. Cet événement est rapporté dans un journal
technique de premier plan au début de lannée suivante.
Quelques jours plus tard, Reginald Fessenden demande à des
navires de la U.S. Navy et de la United Fruit Company découter
un programme spécial de musique, de discours et de chansons
lors du réveillon de Noël et à la veille du jour
de lan. Il diffuse les programmes des fêtes de la tour
émettrice de Brant Rock à des détecteurs électrolytiques
installés sur ces navires.
Reginald Fessenden affirme que la diffusion du réveillon de
Noël a été entendue aussi loin au sud que Norfolk
en Virgine, et celle de la veille du jour de lan a été
entendue aussi loin au sud que la mer des Caraïbes. Ces diffusions
sont considérées comme étant les premières
émissions de lhistoire de la radio.
sommaire
La téléphonie d'abord
transmise par des fils se transmet aussi par par le sol, et comme
la télégraphie ne va pas tarder à être
transmise par les airs.
La première conversation téléphonique
sans fil au monde a eu lieu en 1880, lorsque Alexander Graham Bell
et Charles Sumner Tainter ont inventé et breveté le
photophone,
un téléphone permettant de mener des conversations audio
sans fil sur des faisceaux lumineux modulés (qui sont des projections
étroites d'ondes électromagnétiques).
Avant la télégraphie ou la téléphonie
par les airs, en France c'est Louis Maiche qui dès
1878 s'investit dans le tout jeune téléphone et par
la suite, à 56 ans il se consacra à la téléphonie
sans fil. L.Maiche travaille sur le sujet mais en servant de
la terre comme conducteur des courants télégraphiques
et téléphoniques.
L. Maiche
Au commencement de ses travaux, il dépose son premier brevet
avec son fils Charles et un dénommé Martenne
le 18 juin 1900, brevet 301 343 pour un nouveau système
de transmission des courants élecriques par le sol.
En 1900 Dans la revue La socièté
française du 3 août 1900 , on lisait :
LA TÉLÉPHONIE
SANS FIL (par le sol)
Au moment où la télégraphie sans fil, à
peine libérée de l'empirisme tâtonnant du
début, s'apprête à entrer définitivement
dans la pratique courante, voici qu'il lui surgit une rivale,
sur laquelle on ne devait compter guère. Cette rivale,
qui s'inspire d'un principe tout différent, c'est la téléphonie
sans fil.
On peut bien souligner ces quatre mots, car ils sont gros d'une
révolution. Songez plutôt qu'il s'agit de la possibilité
de communiquer verbalement à distance, comme on communique
effectivement par téléphone, avec cette petite différence
que les fils sont supprimés, et qu'il n'y a plus entre
les interlocuteurs d'autre lien matériel que le sol où
posent leurs pieds!
Cette oeuvre inattendue, plus étourdissante peut-être,
dans sa simplicité, que les merveilles des ondes hertziennes
et de la radioconduction, n en est encore sans doute qu'aux premiers
balbutiements, car elle est née d'hier, et nous ne sommes
peut-être pas, au moment où j'écris ces lignes,
douze à la connaître. Mais il suffit qu'elle soit
signée Maiche du nom de l'un des hommes qui, depuis
cinquante ans, auront remué le plus d'idées, résolu
le plus de problèmes, transmué le plus d'utopies
en réalités tangibles pour être assurée
d'aller loin.
Voici, au surplus, ce qu'il m'a été donné
à moi-même, pas plus tard qu'avant-hier, de voir
ou plutôt d'entendre et dont je puis, de compte à
demi avec un ancien ministre d'une nation amie, personnellement
porter téinoignage.
Nous sommes dans la forêt de Saint-Germain, à un
peu moins d'un kilomètre de la maison où est disposé
l'appareil transmetteur, préalablement mis en communication
par un câble métallique, analogue à la chaîne
d'un paratonnerre, avec la terre. Nous pénétrons
dans le fourré et nous enfonçons dans le sol, n'importe
où, mais de préférence dans l'endroit le
plus humide, deux pieux de fer reliés entre eux par un
fil conducteur, de 25 ou 30 mètres l'un de l'autre. Nous
attachons ensuite à l'un de ces pieux le cordon souple
d'un récepteur téléphonique ordinaire. C'est
tout la ligne je parle par métaphore la ligne est constituée,
vous n'avez plus qu'à approcher le cornet de l'oreille
pour ouïr ce qui se passe. je dirais « au bout du fil
». s'il y avait un fil ! J'ai pu ainsi reconnaître,
avec son timbre et son accent, une voix d'homme comptant «
un », « deux », « trois N, » quatre
», etc., jusqu'à « deux cents ». J'ai
pu également distinguer le bruit rythmique, mais presque
imperceptible, plus léger que le tic tac d'une montre,
d'un style plongeant à intervalles réguliers dans
un godet plein de mercure sous l'action d'un mouvement d'horlogerie.
La démonstration était faite. C'était bien
par la terre que le son, sous les espèces et apparences
d'un courant électrique, mesurable en milliampères
et en microfarads, avaitpassé. On savait déjà
sans doute que la terre pouvait, dans un circuit électrique,
jouer le rôle de fil de retour. Mais que la terre seule,
sans le concours d'aucun ni d'aller, pût véhiculer
un courant avec la précision et la fidélité
d'un càble aérien ou souterrain, c'est ce qu'il
était réservé à M. Maiche de découvrir
et de mettre à profit.
Ce qui est plus étonnant peut-être, et plus extraordinaire
encore, c'est que ces courants ne s'étalent pas, à
l'exemple des ondes hertziennes en nappes circulaires et concentriques.
Ils cheminent en droite ligne, suivant une trajectoire déterminée,
tant et si bien que, pour les utiliser, il faut avoir soin de
se mettre sur leur passage. A droite et à gauche, en effet,
de la zone où ils circulént, fût-ce même
à beaucoup plus courte distance, on n'entend plus rien.
Ils sont comparables à ces faisceaux de lumière
qu'on peut, au moyen d'un réflecteur, diriger tour à
tour vers tous les points de l'horizon, en laissant dans l'ombre
tout ce qui n'est pas compris dans le cône d'illumination.
La téléphonie sans fil, qui oriente et canalise
ses messages à son gré, et vise le destinataire
comme on vise une cible, a donc cette supériorité
sur la télégraphie sans fils sa glorieuse sur
ainée de savoir où elle va et de ne pas laisser
flotter ses secrets dans l'espace, à la merci des oreilles
indiscrètes.
Je n'ai pas le droit jusqu'à nouvel ordre d'expliquer par
quels moyens infiniment simples M. Maiche réalise ce miracle.
Je dois me borner à lui donner acte qu'il le réalise.
Le téléphone tellurique-sans
fil, dont la portée est théoriquement
illimitée, ne semble pas porter, en réalité,
au-delà de 100 à 1200 mètres, ce qui n'est
guère, et les sons sont peut-être encore singulièrement
faibles et confus. C'est possible, mais l'important est que
le principe soit posé, vérifié, acquis.
Au temps de faire le reste. Ce n'est pas non plus d'emblée,
si j'ai bonne mémoire, que la télégraphie
sans fil atteignit sa portée actuelle de 60 ou 80 kilomètres,
et lorsque M. Branly réussit pour la première
fois à modifier la conductibilité de son tube
à limaille d'un bout à l'autre du laboratoire
de l'Institut catholique de la rue d'Assas, il n'eut pas tort
d'entunuer l'hosanna. Je doute même que les premiers essais
du téléphone (avec fils) de Graham Bell aient
été plus suggestifs et plus concluants que nos
hâtives expériences de dimanche dans les taillis
de Saint-Germain.
|
Les journaux de Paris du 5 octobre 1900 annoncent
quun savant bien connu à lépoque, habitant
Saint-Germain, Monsieur Louis Maiche, a construit un appareil quil
appelle le diffuseur grâce auquel les communications
télégraphiques et téléphoniques sont établies
de façon parfaite.
sommaire
Puis le 1er juillet 1901 Pilsoudzki, colonel du
génie, associé avec Poppoff organisent en France
une expérience de télégraphie sans fil alors
que L.Maiche avait déjà fait une transmission téléphonique
sans fil en passant par le sol.
Deux postes de télégraphie sans fil, fournis par Ducretet,
sont installés dans le jardin d'une villa au Vésinet,
à une distande de 600 m.
Les deux savants réussissent à transmettre par la terre
des dépêches Morse ...
A lire dans le Petit Parisien du 15 juillet 1901, un article
de Jean Frollo
A TRAVERS L'ESPACE
Les progrès de la science et de ses applications se poursuivent
à une allure qui, souvent, déconcerte la pensée,
et, avant même que l'esprit public ait eu le temps de s'habituer
complètement aux découvertes qui ont apporté
dans notre vie à tous de si profondes modifications, les
chercheurs, reprenant leur marche en avant, s'attaquent à
des problèmes qu'il nous eût, il y a quelques années
seulement, paru téméraire de poser.
C'est ainsi que le télégraphe et le téléphone
électriques, ces deux facteurs décisifs de l'existence
moderne, par qui, dans l'ordre politique et dans l'ordre financier,
les conditions de la vie civilisée ont été
au dix-neuvième siècle transformées et rénovées,
pourraient bien, au dire de quelques-uns, passer, au cours du
siècle qui commence, au rang des vieux outils qu'on montre
aux curieux dans les musées, avec un respect attendri et
ironique tout ensemble telle la marmite de Tout en faisant, dans
cette boutade, la part d'une exagération évidente,
il est cependant manifeste que les savants ne se contentent plus
des instruments actuels. Le fil conducteur, ce trait d'union presque
idéal, leur semble aujourd'hui un intermédiaire
trop pesant et trop matériel. Ils veulent en trouver un
autre, ou, plus exactement, ils veulent s'affranchir de tout intermédiaire.
Le seul qu'ils acceptent, c'est l'espace même qu'ils ont
à traverser. Hier dans les airs, aujourd'hui par le sol,
ils entendent transmettre directement la pensée humaine,
et ils lui demandent, partie d'un point, d'arriver en un autre,
sans emprunter l'aide du fil métallique, où jusqu'ici
nous pensions qu'il fût nécessaire de la canaliser.
Les expériences de télégraphie sans
fil ne datent pas d'hier, et plus d'une fois nos lecteurs
ont eu l'occasion d'admirer la simplicité du principe sur
lequel elles reposent et l'importance des résultats auxquels
elles ont abouti. Je n'y reviendrai donc que pour mémoire.
La chose en elle-même est d'ailleurs assez simple. Supposez
que vous puissiez régler suivant une gradation convenue
les petites étincelles qui jaillissent d'une bobine de
Ruhmkorff. Supposez d'autre part que les décharges électriques
ainsi produites, et que les savants appellent des ondes parce
qu'elles se propagent dans toutes les directions, à la
façon des cercles concentriques qu'une pierre lancée
dans une eau tranquille y détermine, supposez, dis-je,
que ces décharges soient recueillies à distance
et s'enregistrent dans un appareil récepteur, vous vous
ferez une idée très exacte du principe de la télégraphie
sans fil.
C'est ce principe qui a dirigé les travaux, tant
en France qu l'étranger, de MM. Branly, Popoff, Ducretet
et Tissot.
C'est lui qui a reçu cette année même, grâce
aux expériences de M. Marconi, sa consécration définitive.
Désormais, il est en effet établi qu'avec un générateur
d'ondes d'une suffisante puissance on peut télégraphier
jusqu'à 200 kilomètres de distance. C'est ainsi
que de son laboratoire de Biot, dans les Alpes-Maritimes, M. Marconi
envoie ses dépêches jusqu'en Corse avec une rapidité
merveilleuse. Il arrive même il transmettre simultanément
plusieurs messages, ce qui, dans l'ordre pratique, constitue un
progrès dont l'importance n'échappera à personne,
puisqu'il démontre, pour l'invention nouvelle, la possibilité
de rendre les mêmes services que rend actuellement le télégraphe
avec fils.
On pourrait dire, il est vrai, que l'utilité de cette modification
n'est pas évidente et que le système auquel nous
sommes accoutumés par une expérience de près
d'un demisiècle suffit à nos besoins. La plus simple
réflexion nous prouvera que cette thèse, qui a été
produite parce que tout progrès suscite des adversaires,
est impossible à soutenir.
La télégraphie sans fil a, dans les relations maritimes,
une importance capitale. Pour ne citer qu'un exemple récent
et qui est encore dans l'esprit de tous, le naufrage de la Russie
en a démontré l'intérêt. Certains,
je le sais, ont fait observer qu'en l'espèce, si les marins
du bâtiment échoué eussent été
exercés à se servir du vocabulaire de signaux à
bras qu'on enseigne dans les écoles de timonerie, les communications
entre le navire et la terre eussent été facilement
établies. Mais ce qui était possible dans le cas
de la Russie pourrait ne pas l'être dans d'autres, et la
limite même, dans laquelle les signaux à bras sont
utilisables, strictement déterminée par celle même
du regard humain restera toujours fort étroite.
Aussi bien, la preuve n'en est plus à faire, et tout récemment
un savant étranger, M. Popoff, la fournissait en termes
décisifs. Il s'agissait d'un cuirassé russe, le
Général Amiral d'Apraxine, bloqué par les
glaces dans le golfe de Finlande. Pour organiser le sauvetage,
il fallait de toute nécessité assurer avec la terre
les communications. M. Popoff, en très peu de jours, les
établit et bientôt elles furent régulièrement
transmises à l'état-major de la Marine pendant les
trois mois que durèrent les travaux, 440 télégrammes
furent échangés; la plus longue dépêche,
qui comptait cent huit mots, fut celle qui annonça le sauvetage
du cuirassé. On avouera que c'est là pour une découverte
la meilleure des justifications et que celle-ci est passée
définitivement du terrain de la spéculation pure
sur celui de l'action pratique. C'est précisément
ce qu'il fallait démontrer.
Je ne surprendrai d'ailleurs personne en disant que ce terrain
même a paru bientôt trop étroit aux inventeurs
et qu'ils ont voulu l'élargir.
C'est ce que viennent de tenter il y a quelques jours,
deux savants, MM. Pilsoudski et Victor Popp qui, laissant
de côté la télégraphie par l'air, ont
cherché à transmettre à travers le sol,
les ondes chargées par eux, de porter au loin la pensée.
Frappés de ce fait que les expériences de M. Marconi
n'avaient eu lieu que sur mer et que d'autre part, sur terre,
les ondes électriques sont gênées par les
obstacles de toute sorte, toits, arbres, collines qui s'interposent
sur leur passage, ces deux savants ont pensé que peut-être
le sol, dans ses couches profondes, se prêterait, mieux
que l'air, à la transmision des messagers et, c'est pour
s'en rendre compte qu'ils ont le 1er juillet organisé au
Vésinet, dans le département de Seine-et-Oise, un
dispositif des plus ingénieux et que je décrirai
brièvement.
Dans deux villas distantes de cinq cents mètre environ
l'une de l'autre, ils ont installés leurs appareils d'une
part un transmetteur, de 1 autre un récepteur, tous les
deux du type de ceux qu'on emploie chez M. Marconi pour la télégraphie
marine.
Une plaque métallique enfoncée dans la terre et
un condensateur soigneusement isolé du sol constituent
d'un côté comme de l'autre tout le mécanisme.
Les dépêches sont envoyées absolument comme
dans la télégraphie sans fil.
On produit des étincelles et on règle les signaux
en appuyant plus ou moins. Et à l'arrivée, les ondes
s'enregistrent, sous la forme de petits traits, sur une bande
de papier qui se déroule. La transmission s'opère
en langage Morse avec une netteté parfaite, et les dépêches
envoyées sont très exactement reçues.
Il est vrai que le principe même de l'expérience
est contesté par les savants et que certains d'entre eux
prétendent qu'il n'est pas du tout démontré
que ce soit par le sol, et non pas à travers l'atmosphère,
que s'opère la transmission. Nous ne saurions prendre parti
dans ce docte débat, quelle que soit d'ailleurs la vérité,
et soit qu'il s agisse d'une découverte nouvelle, soit
que nous soyons seulement en présence d'un appareil nouveau
appliquant un principe connu, il nous semble que l'importance
pra- tique n'en est pas diminuée, et cette importance,
on l'avouera, est tout à fait considérable.
Quel est en effet le gros inconvénient du système
Marconi. C'est d'être fort encombrant et surtout très
visible avec ses deux grandes antennes, il domine la ville où
il est installé, et il serait, en cas de guerre, une cible
toute désignée aux coups de l'artillerie.
Avec l'autre appareil, rien de semblable n'est à craindre
dans une place assiégée, on peut l'installer sans
que personne au dehors s'en doute et, au prix de quelques précautions,
l'autre poste pourra être sans trop de peine organisé
et manié en dehors des lignes ennemies dans quelque cave
isolée.
De cette façon le problème des communications est
résolu. Le cercle d'investissement est rompu et, si le
blocus matériel est maintenu, le blocus moral est impossible.
C'est là, je le reconnais, aller comme on dit, plus vite
que les violons, et la jeune découverte, dans son état
actuel, ne donne pas encore ces brillants résultats. Mais
ses pareilles poussent vite et celle-ci, qui n'a que quinze jours,
mérite assurément que nous lui fassions crédit.
Telle qu'elle est, elle constitue le plus étonnant peut-être
des progrès qu'on pût concevoir.
Le télégraphe, le téléphone à
la portée de chacun; suppression de l'employé pour
celui-ci, de la « demoiselle » pour celui-là
ne serait-ce pas la plus radicale des révolutions ?
C'est cette révolution pacifique et d'ailleurs modeste
que. le colonel Pilsoudski et M. Victor Popp viennent de préparer,
sous les ombrages d'une paisible villa du Vésinet. Il nous
semble qu'elle valait la peine d'être signalée et
que l'avenir qui lui est réservé nous conseillait
d'accorder à ses débuts une bienveillance attentive
dont nous espérons tous qu'elle nous récompensera
en ajoutant notre vie quelques facilités et quelques charmes
de plus.
JEAN FROLLO
Extrait
de Google book Louis Maiche 
Ce récit est parfaitement détaillé à
cette adresse : Les
« premiers pas » de la télégraphie
tellurique au Vésinet (1901)

|
sommaire
Les perfectionnements se succédent :
En 1901 : Maiche émet 7 autres brevets
19 février Brevet 308 265 Système de transmission de
signaux télégraphiques et téléphoniques.
1er mars Brevet 308 638 Dispositif de mise à terre pour transmission
de courants électriques particulièrement pour la télégraphie
et la téléphonie
22 avril Brevet310 169 Système de transmission des courants
télégraphiques et téléphoniques.
19 juillet Brevet312 825 Système de transmission télégraphique
et téléphonique par triple dérivation.
12 août Brevet 313 432 Dispositif de mise à terre pour
transmissions ordinnaires télégraphique et téléphonique
applicable également à la télégraphie
et la téléphonie dites sans fil.
31 août Brevet 313 915 Nouveau moyen permettant d'augmenter
le nombre des récepteurs ou l'intensité dans un seul
recepteur des courants téléphoniques ou télégraphiques
.
18 octobre Brevet 313 916 Nouvelle disposition de bobine d'induction.
Du 16 au 18 janvier 1902, au château de Marchais
près de Laon, situé dans un immense parc 1600 hectares
appartenent à son Altesse Sérénissime, le Prince
Charles III de Monaco qui suit avec intérêt les progrès
de la télégraphie sans fil.
Pendant 3 jours, Maiche et ses collaborateurs, son chef de laboratoire
Emile Jardin, le baron Henri Hulot, secrétaire de la Société
Géographique de Paris et Heni Farjas, directeur de la revue
universelle, vont procéder aux essais devant le Prince de Monaco,
son aide de camp Jean de Gail, la baronne de Gail, le compte de Dax,
secrétaire général de la Société
des Ingénieurs civils, Paul Farjas, Fernad Fos, journaliste
du Monde Illustré, le capitaine X, de la revue Armée
et Marine et Emile Guarini, journaliste scientifique.
Le 16 janvier 1902, L.Maiche réalise la première
communication avec le Prince de Monaco lui même situé
à une distance de 1500 métres de distance. Le soir même
Louis envoie une dépêche télégraphique
au directeur du Monde Illustré, qui la transmet à son
journaliste Fernand Fos.
le monde illustré du 25 janvier 1902, voici
le récit :
|
TÉLÉPHONIE ET TÉLÉGRAPHIE
SANS FIL
Parmi les problèmes scientifiques qui préoccupent
lesprit public à laube du nouveau siècle,
il en est peu daussi passionnant que la télégraphie
sans fil. Nos lecteurs sont familiers avec la théorie
des ondes herziennes. Ils savent quon peut transmettre
des dépêches à travers les couches dair,
grâce à des décharges électriques
successives. Ils savent aussi que cette intéressante
invention doit trop souvent lutter contre les variations atmosphériques
ou la trop forte chaleur.
Je suis heureux de pouvoir aujourdhui leur parler dune
autre invention ayant le même but scientifique et utilitaire,
mais y arrivant par dautres moyens qui suppriment les
gros inconvénients que nous venons de signaler. Ce nest
pas dhier que datent les premières expériences
de transmission sans fil en utilisant les ondes souterraines
qui ne sont sujettes à aucune perturbation climatérique
et permettent, par cela même, dobtenir un service
régulier et constant.
Dès 1867, M. Maiche communiquait à M. Dumoncel,
alors sous-directeur des Postes et Télégraphes,
depuis membre de lInstitut, le résultat dexpériences
sur la télégraphie sans fil par la terre, réussies
à faible distance.
En 1877 et en 1878, nouvelles tentatives permettant de
communiquer des signaux à une distance dune centaine
de mètres.
Le principe de la transmission sans fil était trouvé.
Nb M. Maiche possède plus de 300 brevets dont les
principaux ont trait à 1'extraction de 1'amidon du riz,
à la pile Maiche qui est devenue classique, à
la stérilisation économique de leau qui
lui valut la croix de chevalier de la Légion d'honneur,
etc. Parmi les procédés secrets quon lui
doit, il faut citer la fabrication artificielle du vrai : ubis,
les verres doptique pratiquement achromatiques, etc.
Le premier échange de conversation date de 1893.
Ces constatations ont été refaites trois ans plus
tard devant sir Willarn Crookes, à Saint-Germain,
sur trente mètres, à travers plusieurs murs et
fondations. En 1899, essais à plus longue distance,
dans la forêt de Saint-Germain, sur six
cents mètres. Signaux télégraphiques, réception
téléphonique, tout réussit également
bien. Quelques mois plus tard, en janvier 1901, nouvelles
expériences de transmission sur huit cents mètres,
dont il est rendu compte par la presse politique et la presse
spéciale. On les renouvelle et avec un semblable succès
au mois doctobre de la même année.
Enfin, en novembre 1901, sur la Seine, à Poissy,
linventeur sattache à obtenir une communication
dune grande intensité à tel point que les
personnes présentes déclarent quelles entendent
mieux que dans le téléphone
ordinaire, avec des voix pures, sans aucun son métallique
et sans aucune « friture ».
Depuis quelque temps, nous avions été prévenus
que les expériences allaient passer du domaine du laboratoire
dans celui de la pratique, les ondes souterraines pouvant être
désormais projetées à longue distance.
Jeudi soir, le directeur du Monde Illustré me communiquait
une dépêche datée du château de Marchais
(Aisne), où S. A. S. le prince de Monaco, en ami toujours
sûr des savants, donnait la plus complète clés
hospitalités à M. Maiche.
Le jour même, sur une distance de 1500 mètres,
on avait pu télégraphier et téléphoner
sans fil. Cétait la victoire ! Et le télégramme
se terminait par ces mots : « Venez. Nous recommencerons
« demain sur 3500 mètres. »
Loffre, si tentante, ne pouvait se refuser. Aussi, le
lendemain, prenai-je le premier train pour Liesse-Gizy, dans
la banlieue de Laon, avec M. Farjas qui, depuis plus dune
année, est le dévoué collaborateur de M.
Maiche dans toutes ses expériences, le comte de Dax,
secrétaire général de la Société
des ingénieurs civils, et M. Paul Farjas. En compagnie
si instructive, les deux heures de route me parurent courtes
et deux vigoureux postiers nous eurent bientôt menés
à la somptueuse demeure, providence du pays. M. Maiche
nest pas loin. Nous le trouvons au Long Pont, une maison
de garde où il a établi un de ses deux postes.
Linventeur, tout joyeux encore du succès de la
veille où il avait pu échanger, à 1500
mètres, des conversations téléphoniques
et télégraphiques, le matin même, à
quelques instants avant notre arrivée, réussi
à expédier et à recevoir la parole humaine
à 3 kil 500 de distance, de la ferme de Marengo à
Long Pont, espace séparé par une petite colline
et un bois.
Le chateau de Marchais et le schéma d'un poste
La pièce où se trouvent les appareils est la salle
commune du brigadier des gardes du prince, où rien na
été dérangé ni bousculé,
les piles et autres instruments étant déposés
sur une seule petite table.
Rien ne paraît plus simple. Comme vous le voyez,
nous dit M. Maiche, lappareil ressemble plutôt à
un poste de campagne quà une installation télégraphique.
Il se compose dune modeste batterie de piles, dun
ensemble de sept volts environ, fournissant un vingtième
dampère, ou un tiers de watt, et vous savez quil
faut plus de 700 watts pour faire ùn cheval-vapeur. La
batterie est mise en communication avec une caisse denviron
deux décimètres cubes dans laquelle se trouve
un fil enroulé dune manière spéciale,
aboutissant à une sorte de petit tambour, désigné
sous le nom de diffuseur. Un simple microphone et un récepteur
téléphonique complètent lappareil.
Il faut de plus ajouter à cet ensemble des organes primordiaux,
deux fils conducteurs qui en partent, sortent de la maison par
la porte laissée ouverte et vont, lun à
droite, lautre à gauche, aboutir chacun, à
350 mètres environ, à une lame de cuivre de un
mètre carré plongeant dans leau, mais qui
aurait pu être aussi bien enfoncée dans le sol.
Mon système de ligne se réduit donc à deux
« terres » à chaque station, sans aucune
autre espèce de conducteur entre lune et lautre.
Pendant que M. Maiche nous fournit ces intéressantes
explications, nous restons sous une impression de surprise,
jallais écrire de quasi-incrédulité,
devant des résultats si stupéfiants obtenus avec
des moyens dapparence aussi simple. Mais la foi rayonne
dans les regards de M. Maiche et nous ne pouvons douter de la
victoire de Marengo qui va se renouveler pour nous dans quelques
minutes, derrière le rideau des collines brumeuses. Pendant
que les chevaux, maintenant reposés, sébrouent
joyeusement, la caravane sest complétée.
Aux voyageurs venus de Paris se joignent le baron J. de Gail,
aide-de-camp du prince, la baronne de Gail et le baron Henri
Hulot. M. Maiche reste au poste de Long Pont et nous voici en
route pour Marengo où nous arrivons après vingt
minutes de trot allongé.
La maison sert dhabitation à un garde du prince
en costume très pittoresque, complet kaki avec grand
feutre à poil bourru, relevé sur le côté
gauche par une touffe de poil de sanglier.
Le
Marengo, poste d'expérience
Le poste télégraphique et téléphonique,
en tout semblable à celui de Long Pont, a été
installé par les soins de M. Emile Jardin, le chef de
laboratoire de M. Maiche, qui nous attend sur le seuil de la
porte.
Presque aussitôt, à travers les tourbières
du terrain de chasse, un cavalier apparaît, de belle prestance,
la cartouchière en bandoulière, le fusil en travers
de la selle, très simplement vêtu dun costume
de chasse qui rappelle celui des gardes : cest le prince
de Monaco. Il vient, comme les jours précédents,
comme le matin, en passionné de science, suivre les expériences
dont son esprit cultivé a compris toute limportance.
Il avait dailleurs reçu, la veille, le premier
message téléphonique que M. Maiche avait envoyé
à 1.500 mètres à travers le sol. Daccueil
très simple, très cordial, le prince nous fait
part de sa grande satisfaction : Figurez-vous, Messieurs,
quaprès le succès obtenu hier, M. Maiche
hésitait à répondre à mon désir
dessayer détablir une communication à
3.500 mètres. Il mobjectait que la puissance de
lappareil nétait pas calculée pour
une semblable distance et quil ne savait pas au juste
jusquoù il pourrait atteindre. Jai dû
lui faire une douce violence, mettant à sa disposition
une voiture pour rapprocher, si besoin en était, le poste
récepteur jusquà rétablissement de
la communication.
Lissue heureuse de lexpérience de ce matin
a donné raison à mon audace scientifique. Le baron
de Gail, qui partage la confiance du prince, attire notre attention
sur limportance quil y aurait à installer
une ligne télégraphique reliant Tombouctou, sur
le Niger, aux postes de lExtrême-Sud Algérien
à travers le Sahara et à utiliser dans ce but
le système de M. Maiche.
A ce moment, le baron Henri Hulot, qui a établi la communication
avec M. Maiche, nous prie de prendre place devant lappareil,
ce que nous faisons tour à tour, le prince de Monaco,
la baronne de Gail et chacun de nous. Pour ma part, jentends
très nettement les signaux télégraphiques,
espacés comme il avait été convenu. Le
son arrive clair, distinct. Les personnes qui nont pas
assisté aux expériences de la veille et de la
matinée, se regardent émerveillées. Cela
tient du prodige.
Et létonnement croît encore quand, aux signaux,
succède la voix humaine, tout aussi compréhensible
quau téléphone ordinaire. De là-bas,
si loin, derrière la colline, partent des ondes sonores.
Leur nombre, qui varie de 5.000 à 15.000 par seconde,
traverse sans ségarer en route limmensité
de la masse terrestre qui nous sépare. Chacune delle
est de lordre des infiniment petits et aucune delle
nest perdue !
Nous continuons léchange des transmissions, chiffres,
signaux, phrases, et jai le plaisir, après trois
quarts dheure de stupéfiantes communications, de
clore la conversation, en adressant à M. Maiche, au moyen
de son appareil, les vives félicitations du Monde Illustré.
La nuit est presque venue. Et nous rentrons au château,
dans le recueillement silencieux qui suit toujours les fortes
émotions.
Avant de quitter le château, où nous attendait
une collation dans la splendide salle à manger de lancienne
demeure des ducs de Lorraine, le prince de Monaco veut bien
nous annoncer quil met à la disposition de M.
Maiche, son yacht, la Princesse Alice, qui lui servit si
souvent pour ses recherches sous-marines, pour y continuer très
prochainement ses expériences en Méditerranée.
Le lendemain de notre retour à Paris, nous apprenions,
par une dépêche officielle, que M. Maiche, à
laide des mêmes appareils et sans en augmenter la
puissance électrique, avait pu renouveler, en présence
du prince de Monaco, les mêmes expériences que
nous venons de décrire, à une distance de sept
kilomètres.
Fernand Fos.
|
sommaire
Témoignage du capitaine X, de la revue Armée et
Marine du 9 février 1902
| La télégraphie et
la téléphonie sans fil Communications par la terre
et par l'eau. Applications en campagne.
On a beaucoup parlé, depuis quelques
mois, de la téléphonie sans fil. On a surtout
beaucoup raconté... Une nouvelle sensationnelle avait
couru le monde : un signal, disaient les journaux anglais, avait
été transmis à travers l'Atlantique !...
Puis, peu à peu, le calme s'est f'ail et, si l'on en
croit les dernières communications de la presse quotidienne,
la nouvelle était au moins prématurée.
L'avenir dira quelles seront les applications pratiques de la
télégraphie sans fil par les ondes herziennes.
Au poinl de vue militaire, son utilisation parait encore problématique
pour plusieurs raisons :
1" Les transmissions, tributaires des variations atmosphériques
et de la température, sont irrégulières
;
2" Les dimensions des antennes les rendenl trop visibles
en cas de guerre, et le poids du matériel présente
de gros Inconvénients pour les transports ;
3° L'énorme quantité d'énergie électrique
employée constitue un danger permanent pour les télégraphistes
militaires, souvent inexpérimentés, qui seraient
chargés des transmissions.
Personne n'ignore l'importance du rôle
que doit jouer, dans la prochaine guerre, le service de la télégraphie
militaire. Chaque armée, chaque corps d'armée,
reliés entre eux, avec les divisions d'avant-garde et
avec le services de l'arrière, pourront, si ce service
est convenablement assuré, éviter bien des surprises,
bien des fatigues surtont.
Tel qu'il est organisé, il fonctionne aussi bien que
possible, mais les Installations sonl longues à établir,
en raison des kilomètres de fils qui doivent être
déroulés, puis enroulés à chaque
stationnement. A tel point que, bien souvent, ainsi qu'on a
pu s'en rendre compte aux grandes manoeuvres, on a du renoncer,
faute de temps, à établir des communications télégraphiques,
que remplaçaient avantageusement des vélocipédes,
des estafettes ou des postes de correspondance.
On peut donc trouver mieux que ce qui existe aujourd'hui et
c'est aux savants qui poursuivent l'étude du problème
de la télégraphie sans fil qu'il appartiendra
de doter l'armée de l'outil idéal qui lui manque
encore pour assurer facilement ses communications rapides.
Les très intéressantes expériences que
nous avons eu la bonne fortune de suivre dernièrement,
à Marchais, près de Laon, nous ont donné
l'impression que nous étions très près
d'atteindre cet idéal.
Il ne s'agit plus ici des ondes herziennes, mais d'une tout
autre méthode, d'un moyen simple et pratique de télégraphier
et de téléphoner sans lil, par la terre el par
l'eau, en employant une source d'électricité très
faible et un appareil assez peu volumineux pour être porté
à la main.
C'est à M. Louis Maiche, ingénieur
civil cl savant bien connu, que revient l'honneur de cette découverte
considérable.
Depuis longlemps déjà M. Maiche étudiait
le phénomène de la transmission des ondes électriques
par le sol et les résultats qu'il obtient aujourd'hui
ne sonl que la juste conséquence de plus de trente années
de recherches et de travaux incessants.
En 1867, en effet, il faisait connaître officiellement
à M. du Moncel, alors sous-directeur des posles et télégraphes,
le résultat de ses premières expériences
sur la télégraphie sans fil, par la terre. Dix
ans plus tard, en 1877 el 1878, il confirmait ses premiers essais
par la transmission des signaux à 100 mètres environ
et communiquait ce résultat à la Société
des sciences et des arts de la Sarthc, dont il faisait partie.
Poussant plus loin celte étude, et passant de la télégraphie
à la téléphonie, il obtenail en 1893 un
premier échange de conversation sur une trentaine de
mètres, à travers plusieurs murs et fondations,
expérience renouvelée, en 1806, en présence
de sir William Crookcs, à SaintGermain,
C'est par un procédé, dont l'analogie nous parait
assez curieuse, qu'un autre chercheur français, dont
les récentes expériences étaient relatées
ici même, la semaine dernière, constata, à
la même distance, la réalisation d'un phénomène
du même ordre.
Dès 1890, les travaux de M. Louis Maiche prenant plus
d'importance, il transporta ses appareils dans la forêt
de Saint-Cermain et, progressivement, avec un succès
constant, il porta ses transmissions télégraphiques
et tcléphoniques de 600 à 800 mètres et
enfin à 1200 mètres.
Au mois de novembre dernier, sur la Seine, à Poissy,
il échangeait avec son chef de laboratoire et plusieurs
personnes présentes, des conversations complètes,
la voix arrivant avec son timbre naturel et la plus grande netteté.
Pour entre définitivement dans la pratique, il fallait
à l'inventeur des terrains plus vastes, une circonstance
heureuse s'offrit à lui.
S. A. S. le prince de Monaco, qui suivait avec intérêt
les progrès de la télégraphie sans fil,
avait eu connaissance des procédés spéciaux
employés par M. Maiche. Avec la bienveillance si encourageante
qu'il réserve aux savants et aux chercheurs, il mit gracieusement
à la disposition de l'inventeur son domaine de Marchais,
dont l'étendue se prêtait merveilleusement à
une démonstration définitive.
Les expériences se sont poursuivies pendant trois jours,
avec un plein succès, en présence du prince, de
son aide de camp, le baron Jean de Gail, de la baronne de Gai]
et de plusieurs invités. L'inventeur élait accompagné
de son chef de laboratoire, M. Jardin, el de ses collaborateurs,
M. Henri Farjas et le baron Henry Hulot.
Deux postes furent installés à la hâte.
A la fois transmetteurs et récepteurs, ils se composaient
chacun d'une batterie de piles d'une énergie électrique
de 7 volts.et d'un vingtième d'ampère, reliée
à l'appareil proprement dit, lequel comprenait une bobine,
un vibrateur ou diffuseur, un manipulateur Morse pour l'expédition
des signaux, un microphone pour la transmission de la parole
et un récepteur téléphonique.
L'appareil est mis en communication avec deux fils aboutissant
de part et d'autre à des plaques de cuivre qui sont,
suivant la nature du terrain, plongées dans l'eau ou
enfoncées dans le sol, transmettant ainsi les courants
électriques à la masse terrestre environnante
qui les absorbe et les propage au loin suivant une loi d'un
ordre tout nouveau prévue par M. Maiche, qu'il a bien
voulu nous expliquer et qui nous a paru un des points les plus
saillants de son système.
Nous ne nous étendrons pas sur les premières conversations
téléphoniques échangées à
Marchais, à des distances progressives, qui ont permis
de transmeltre la parole de là façon la plus nette,
ainsi que l'ont constaté toutes les personnes présentes,
à 1500 et à 3500 mètres; nous examinerons
surtout la dernière épreuve, la plus intéressante,
selon nous, au point de vue militaire, tant à cause de
la rusticité de l'installation qu'en raison de la distance
franchie.
Le fragment de la carte d'état - major au cinquante millième
qui est reproduite ici donne l'ensemble de la région
où cette expérience eut lieu.
Sept kilomètres séparaient les deux postes, choisis,
l'un (poste n° 2), à la ferme de Marengo, à
l'est de Marchais, l'autre (poste n° 1), à l'ouest,
aux confins du domaine, en pleine forêt de Samoussy, et.
entre eux s'étendaient des obslacles de toutes sortes
: bois, lignes d'eau, village, etc.

Les environs de Marchais, où ont eu lieu les expériences
de téléphonie sans fil. (D'aprés carte
de l'élat-major.)
Le Prince était à Marengo, pour
contrôler les résultats avec les amis de l'inventeur,.
M. Maiche et le baron de Gail étaient au poste n"
1.
Nous avons pu assister personnellemsnt à l'installation
de ce poste. Une simple carte et une boussole ordinaire ont
permis d'orienter les plaques dans la direction de Marengo avant
de les enfoncer dans le sol au moyen d'une petite tranchée;
un escabeau fut placé dans un endroit quelconque pour
recevoir les appareils... et c'était tout !
A l'heure fixée (trois heures quarante),
les premiers signaux téléphoniques partis de Marengo
arrivaient nettement à l'oreille, tantôt longs,
tantôt courts, et l'inventeur répondait aussitôt
par d'autres signaux reçus de la même façon
au poste n" 2.
Cette épreuve semble décisive et nous pensons
que le moment n'est plus éloigné où le
matériel actuel de nos télégraphistes mililaires
cédera la place à plus léger que lui.
Ce sera, à coup sûr, une amélioration importante,
dont on pourra étudier les avantages aux grandes manoeuvres,
mais, si l'on envisage la question à un point de vue
plus large, plus français peut-être, en raison
de ses conséquences immédiates, on est amené
à examiner la possibilité d'une utilisation prochaine
de ces nouveaux procédés pour relier le Sud algérien
avec les poslcs trop isolés de notre domaine africain.
Ce sujet était d'ailleurs de circonstance, car le baron
J. de Gail, capitaine de cavalerie, qui créa jadis le
peloton des méharistes soudanais, fut le premier qui
eut l'idée d'appliquer la télégraphie sans
fil à la traversée du Sahara.
Cette idée fait encore aujourd'hui l'objet do ses préoccupations
et il en entrevoit les suites avec plus de confiance, depuis
qu'il a constaté par lui-même, au posle téléphonique
de la forêt de Samoussy, l'avenir réservé
à une découverte dont les premiers résultais
lui ont paru considérables, eu égard à
la faiblesse des moyens mis en oeuvre.
On pourrait, pour commencer, relier entre eux les différents
postes du Soudan et du Congo qui n'ont actuellement aucun moyen
de communication rapide, puis il appartiendrait à une
mission d'étude de déterminer la meilleure voie
à suivre pour établir la ligne saharienne.
Celle-ci ne s'écarterait pas beaucoup sans doute de l'itinéraire
des caravanes qui descendent du.Touatà Tombouctou par
Akabli, Bou-Bernous, Gucttara, les rives de l'ouled Salem, Taodeni
et Araouan.
C'est là une idée bien française, car elle
affranchirait notre Ouest africain des câbles étrangers
dont elle ne peut se passer aujourd'hui; c'est en même
temps une idée pratique et nous souhaitons de tout coeur
qu'elle puisse se réaliser bientôt.
Capitaine X...
|
sommaire
Tous les journaux s'emparent rapidement de ses travaux , comme nous
le décrivont ci dessous.
En France dans le Bulletin mensuel / Association
des abonnés au téléphone on peut lire
l'article :
|
La nouvelle téléphonie.
Louis Maiche.
Par ces temps d'inventions plus sensationnelles les unes que
les autres, où l'on voit les omnibus marcher sans chevaux
et les aéroplanes lutter de vitesse avec les pigeons
voyageurs, les esprits les plus fermes ont tendance à
ne considérer que le fait du jour et à négliger
les origines des inventions qui frappent le plus.
C'est ainsi que, pour les expériences delà téléphonie
sans fil faites â la Tour Eiffel par MM. Colin et Jeance,
personne n'a songé à repérer le" terrain
parcouru.
C'est cependant un travail intéressant si nous en jugeons
par le plaisir qu'il nous a procuré et nous espérons
que les lecteurs du Bulletin de l'Association des abonnés
au téléphone le partageront.
De toutes les recherches auxquelles nous nous sommes livrés,
il apparaît bien nettement que la priorité de la
téléphonie sans fil appartient à Louis
Maiche.
En effet, en 1893, il obtenait une communication téléphonique
sans fil à une distance qui n'excédait pas, il
est vrai, 30 mètres et cela à travers
des obstacles accumulés. Poursuivant ses expériences,
Louis Maiche arrivait à parler à 1.500 mètres
dans la forêt de Saint-Germain en présence de MM.
Emile Gautier, le ministre des finances du Brésil et
plusieurs autres notabilités.
Le Figaro publiait le compte rendu des expériences
qui fut reproduit dans toute la presse.
En 1902, les 16, 17, 18 janvier, au château de Marchais
(Aisne), Louis Maiche téléphona sans fil à
7 kilomètres, en présence de S. A. S. le prince
de Monaco, de soft aide de camp le baron de Gail, du baron Hulot
et du secrétaire général de la Société
des Ingénieurs civils.
Les communications étaient obtenues par un système
de mise à terre.
Profitant du navire la Princesse Alice, à Toulon, pour
y installer une station à bord, en laissant un fil dans
l'eau, il communique avec une station à terre basée
à Ajaccio avec son fils Charles. Par le même
procédé, Louis Maiche parvint peu après
à communiquer entre Toulon et Ajaccio à la distance
de 314 kilomètres en se servant de la mer pour la transmission
des ondes.
Suivirent expérimentations et brevet jusqu'en 1906.
sommaire
En septembre 1906, L.Maiche réussi
à téléphoner sans fil, sans antennes,
sans mise à terre.
Le Matin, dans son numéro du 7 septembre,
rendait compte des expériences :
Téléphonie
sans fil "Le dernier cri de la, science".
Un jeune savant est en train de réaliser une grande idée
il établit des relations téléphoniques
entre Tôulon et Ajaccio sans fil conducteur.
Lorsque, il y a un peu moins de trente; ans, le savant américain
Graliam Bell réussit, pour la première fois, à
faire entendra sa voix d'une pièce à une autre
dans son appartement, on crut que ces merveilleuses expériences
ne sortiraient jamais du domaine des curiosités de laboratoire.
On sait cependant combien fut rapide la fortune de l'industrie
téléphonique, combien éclatante la révolution
sociale que créa le téléphone.
Quelque étonnante que soit cette découverte,
que le grand physicien anglais, lord, Kelvin, appelle la «merveille
des merveilles », on se l'explique aisément; on
comprend encore la télégraphie sans fil, où
des étincelles, partant d'un point, communiquent; à
l'éther des ondulations qui se transmettent de proche
en proche pour reproduire au loin. des signes conventionnels
mais imaginer que deux personnes puissent se parler, à
distance sans qu'un fil les relie, sans que la terre même
serve de lien conducteur, faire en un mot de la téléphonie
sans fil comme on fait de la télégraphie sans
fil, n'est-ce pas vraiment prodigieux ?
C'est ce prodige que nous avons. vu hier dans le calme jardin
d'une charmante villas sur les coteaux de Saint-Germain.
Mince et agile, la figure, barrée d'une moustache blanche,
la barbe en pointe, M, Maiche, qui,en ces derniers trente,
ans a remué un nombre considérable d'idées
et fait de remarquables travaux dans le domaiine de la chimie
et de l'électricité, ainsi, que sur la stérilisation
de l'eau, nous montra ses nouveaux appareils.
Ils sont d'une simplicité remarquable.
Sur une table, placée dans le jardin, un appareil téléphonique
relié à une batterie de piles, composée
seulement de trois éléments et à une bobine
d'induction particulière construite par M. Maiche. Le
courant, électrique passe dans un cadre formé
de l'enroulement de fils isolés. C'est tout.
Une installation analogue est disposée dans le cabinet
de travail de M. Maiche, qui donne sur la rue, à
l'extrémité opposée de la maison et du
jardin. Plusieurs épaisseurs de murs des portes et des
fenêtres séparent les deux postes situés
à une trentaine de mètres de distance.
Alors, on peut causer. Dans le récepteur
téléphonique, approché de mon oreille,
j'entendis compter un, deux, trois. jusque trente, des chiffres
dit au hasard, les modulations d'un sifflet. La voix, qui parvenait
ainsi à travers l'espace, était affaiblie et lointaine,
mais elle était d'une netteté parfaite les sons,
d'une pureté remarquable que ne connaissent point toujours
les appareils téléphoniques ordinaires. La preuve
était faite.
Je demandai alors à M. Maiche quelques
détails; Il me les donna volontiers.
Il y a cinq ans environ, à Saint-Germain, puis au château
de Marchais, chez la prince de Monaco, j'ai procédé
à des expériences de télégraphie
et de téléphonie sans fil en me servant de la
terre comme lien conducteur. Ces essais furent assèz
concluants, On a pu communiquer à plus de trois kilomètres
de distance.
Un an après ce sont Ià des expériences
inédites j'ai pu, ajoute M.Maiche, faire des communications
téléphoniques entre Toulon et Ajaccio, à
plus due trois cents kilomètres, de distance, en servant
dé la mer pour la transmission des ondes électriques
mais les expériences nouvelles auxquelles vous venez
d'assister me semblent plus importantes. Elle sont à
leur début, certes, et la distance que la parole peut
franchir ne dépasse pas trente ou quarante mètres,
mais les appareils dont je me sert sont d'une puissance infinie,
et nul perfectionnement n'a encore été fait.
Les utilisations pratiques de ce nouveau moyen de communication
sont des plus nombreuses.
Une application ne pourrait-elle être
faits aux sous-marin. Aujourd'hui, aucun moyen de communication
ne peut être établi entra des sous-marins. Ni la
télégraphie avec ou sans fil ni la téléphonie
ne peuvent les mettre en relation s'ils sont au fond de la mer.
La téléphonie sans fil peut remédier à
cet inconvénient qui peut avoir son importance en temps
de guerre, lorsqu une flottille de sous-marins doit manuvrer
dans les mêmes eaux et participer à une attaque
commune.
Cette découverte est à ses débuts,
nous disait son inventeur il est possible que la téléphonie
sans fil, hier un jouet, arrive, comme sa soeur aînée,
la télégraphie sans fil, à des résultats
importants et pratiques.
Le Matin est heureux de pouvoir annoncer le premier que la science
a fait un nouveau progrès et. que cette merveilleuse
découverte est due à un savant français.
|
Maiche crée sa dernière société la
Société Générale de Téléphonie
sans fil le 17 avril
1907, avec des captaux Anglais.
sommaire
Vu aussi dans la presse, avec un peu d'humour :
En 1906
Dans le journal Jean qui rit : un amusant dialogue avec
une demoiselle téléphone, de Léon Valbert
Un jeune savant français, M.Maiche est en train de réaliser
une grande idée : il établit des relations téléphoniques
entre Toulon et Ajaccio sans fil conducteur
Dans la Lanterne, un article reprend le même dialoque
: TÉLÉPHONE SANS FIL de Léon Valbert
Un jeune savant français, M. Maiche, est
en train de réaliser une grande idée : il établit
des relations téléphoniques entre Toulon et Ajaccio
sans fil conducteur.
A la première lecture de cette information, soucieux de
la compléter pour les lecteurs du Supplément, je
me suis précipité sur l'appareil téléphonique
de la rédaction et j'ai tourné le moulin à
café. Une sonnerie stridente a répondu à
mon appel (au bout d'une petite demi-heure). J'ai appliqué
fébrilement, les récepteurs contre mes esgourdes.
Après quoi :
MOI. - Aliô, allô ! Vous êtes là, mademoiselle
?
LA DEMOISELLE DU TÉLÉPHONE. - Allô, allô
! jTecoute ! - - - --
Moi. - Comment ?
LA DEMOISELLE DU TÉLÉPHONE. Pardon ! Je voulais
dire : « J'écoute» quel numéro demandez
vous ?
Moi. Aucun
l LA DEMOISELLE DU TÉLÉPHONE. Alors pourquoi
me sonnez-vous, espèce de fourneau ?
Moi. Permettez, mademoiselle. Je ne demande aucun numéro
parce que c'est avec vous même que je voudrais entrer en
communication.
LA DEMOISELLE DU TÉLÉPHONE. Ah ! bon. Eh
bien ! c'est entendu. Venez me prendre ce soir, à la sortie
du bureau, rue Gutenberg : vous me reconnaîtrez facilement.
J'ai un panama à plume, comme Polaire, un petit boléro
comme la beme Otéro, une trotteuse en laine flocon comme
la Lune et des chaussettes bleues comme Paméla.
Moi. Vous êtes fort aimable, mon enfant, et je ne
doute point que vous soyez charmante ainsi. mais la communication
que je désire obtenir de vous est une communication exclusivement
téléphonique.
LA DEMOISELLE DU TÉLÉPHONE, vexée.
A votre aise. Mais vous ne savez pas ce que vous perdez. Enfin.qu'est-ce
qu'il y a polir votre service.
Moi. Voibà. Vous avez lu sans doute que plusieurs
savants s'occupent à résoudre ce problème
: supprimer les fils télégraphiques et téléphoniques
qui dénaturent fâcheusement les paysages. Vous citerai-je
Marconi. ?
LA DEMOISELLE DU TÉLÉPHONE. Et mèche
Moi. Et Maiche, vous l'avez dit. Ce savant a, paraît-il,
résolu la partie la plus difficultueuse de la question
: la téléphonie sans fil. Jusqu'à présent,
pour téléphoner sans fil, y avait pas mèche.
Mais, maintenant qu'il y a Maiche, y a mèche !
LA DEMOISELLE OU TÉLÉPHONÉ. sur que
ce Maiche-là n'est pas moche
Moi. Sans compter qu'on voit assez souvent des mèches
qui filent pour se féliciter de rencontrer enfin un Maiche
sans fil !
LA DEMOISELLE DU TÉLÉPHONE. - Seulement, si c'est
tout ce que vous avez à me raconter, j'vas vous le couper,
le fil
Moi. Non, non. une minute encore. Il faut absolument que
je vous demande votre avis, mademoiselle, sur une modification
qu'entraînera nécessairement l'adoption, qu'on peut
prévoir prochaine. de la téléphonie sans
fil.
LA DEMOISELLE DU TÉLÉPHONE. Et c'est ?
Moi. C'est qu'à ce moment on ne vous appellera plus
seulement : « Les demoiselles du téléphone
». mais on dira de vous : « Les demoiselles du tédéphone
sans fil. »
LA DEMOISELLE DU TÉLÉPHONE. Qu'est-ce que
vous en savez, vieux cochon ?
La communication est interrompue brusquement. |
A peine un an plus tard, ne supportant plus les investisseurs
Anglais , il se retire des affaires, la société est
dissoute, mais L.Maiche resera comme le pionnier de la téléphonie
sans fil.
En 1910 Louis Maiche tombe malade et décède le 22
février 1910; il n'a alors que 67 ans.
sommaire
En Amérique, un article du Auckland Star du 6 mars 1907
présentait l'inventeur français Louis Maiche
Dans cet article, M. Maiche décrit comment tout a commencé
:
Mes premiers essais ont eu lieu en 1867, mais ils concernaient davantage
la télégraphie sans fil, et ce n'est qu'en 1893 que
j'ai échangé une conversation par téléphone
sans fil à une distance de 30 mètres ...

Dans Google Book, "le The Christian Work and the Evangelist,
Volume 82"
|
Un peu plus tôt, le New York Times
avait également publié un article sur M. Maiche
et son invention du téléphone sans fil.
Dans l'article, l'inventeur évoque ses expériences
réussies avec la télégraphie et décrit
ensuite son travail avec le téléphone sans fil :
« J'ai alors utilisé le sol comme moyen de transmission.
La découverte d'aujourd'hui me permet de supprimer tous
les moyens visibles de communication et de projeter les mots dans
une direction donnée sans risquer de les rayonner ailleurs;
et, plus intéressant encore, je le fais avec une dépense
infinitésimale d'électricité, tandis que,
comme vous le savez bien, d'autres systèmes télégraphiques
et téléphoniques sans fil dépensent d'énormes
quantités d'électricité rayonnaient dans
toutes les directions. "
Une fois perfectionné, mon appareil peut être utilisé
pratiquement à un coût insignifiant. Pour le moment,
il en est encore au stade du laboratoire et de l'expérimentation.
Vous voyez", dit M. Maiche, " que nos expériences
ont réussi malgré tous les obstacles. Ni l'eau,
ni les rochers, ni la glace ne peuvent interférer. Tout
ce que le télégraphe considère comme des
barrières insurmontables, nous le franchissons facilement.
Tout ce que nous avons fait jusqu'à présent, c'est
de pouvoir converser distinctement jusqu'à une distance
d'un peu plus de 1 800 pieds. Mais une fois le caractère
pratique de la théorie établi, alors le mécanisme
doit être perfectionné. "
"Elle se perfectionne jour après jour ... et nous
semble appelé à un destin très différent,
non comme aide à la guerre, mais comme aide à la
paix, comme sauveur de la vie humaine. |
Dans l'article d'Auckland Star, M. Maiche
donne quelques exemples de l'utilisation future de son téléphone
sans fil :
| " Imaginez deux paquebots naviguant dans
un brouillard. Avec mon petit appareil le capitaine peut dire
la direction prise par l'autre navire. En cas d'accident d'un
sous-marin, mon appareil permettrait à l'équipage
en danger de communiquer avec le remorqueur de convoi sans craindre
le rupture d'une ligne comme dans le cas d'une bouée téléphonique.
Les mineurs ensevelis après un désastre comme celui
de Courrières pouvaient communiquer avec l'équipe
de sauvetage. Deux corps d'armée effectuant une attaque
de nuit pouvaient rester en contact permanent sans risque d'interruption.
Le citoyen ordinaire pourrait l'avoir dans son salon, et ne dépendrait
plus des caprices du central téléphonique. " |
Les deux articles comprennent également quelques
descriptions techniques de l'utilisation du nouveau téléphone
sans fil de M. Maiche.
Il est possible que les théories de l'inventeur français
n'aient pas eu autant de succès qu'il le pensait lui-même.
sommaire
Maiche n'est pas le seul à travailler dans ce domaine, Citons
Villot, Pilsoudzki ...
Le téléphone tellurique-sans fil
D'autres Brevets (plus techniques) seront publiés comme
cette série (traduction google sans correction)
FR335990 Nouveau mode de transmission et de réception
sans fil des signaux électriques 22 février
1904.
L'objet de la présente invention est un nouveau procédé
de transmission et de réception de signaux électriques
sans fil.
Le moyen essentiel sur lequel repose le système est la production
transmet la position et utilise l'électricité du récepteur
de position se manifestant sous une nouvelle forme que l'on peut qualifier
de "vibration électrostatique" et qui est obtenue
comme cela sera expliqué plus loin par la modification d'un
inducteur à étincelle. Un des caractères distinctifs
de cette nouvelle manifestation de l'électricité est
qu'elle peut être transmise dans l'espace sans les antennes
auxiliaires et au sol à toutes les distances, et, sous la même
forme que le son, la lumière et la chaleur, c'est-à-dire
sans pôles.
|
L'inductance étant en communication avec
une source d'alimentation, une batterie par exemple, et un interrupteur
spécial qui sera décrit ci-dessous, chaque interruption
doit naître dans le courant d'induit donnant une étincelle,
et c'est cette dernière qui se transforme en " vibrations
électrostatiques. " L'armature de sortie du fil
de bobine après le dernier enroulement extérieur,
est à cet effet reliée à une grande surface
métallique qui peut être exposée à
l'air. Cette surface peut être constituée soit
par un cylindre creux ou plein, soit par une ou plusieurs feuilles
de fer, de cuivre ou de tout autre métal usuel plus ou
moins épais. La surface est de préférence
arrondie aux coins ou garnie d'une bordure tout autour pour
éliminer les pointes, comme dans les machines électrostatiques
conductrices.Il devrait être d'environ un mètre
carré par watt du courant circulant dans l'inducteur.
L'autre extrémité de l'armature est reliée
à une vis de réglage dont la pointe k en platine
ou en or se trouve à côté d'un bouton, également
en or ou en platine, porté sur la grande surface.
Les FIG. 1 et 2 des dessins annexés montrent
deux dispositions qui peuvent être adoptées 5 h
pour la préparation de la station émettrice.
les FIG. 3 et 4 montrent deux provisions et un récepteur.
|
 |
Une extrémité du fil d'armature de la
bobine -j est reliée au cylindre 3 arrondi à ses extrémités,
et l'extrémité k du fil est reliée à la
plaque 5 montée sur le support isolant 6 qui est fixé
au cylindre 3. La plaque 5 est traversée par une vis de pression
55 prévue au-delà de la pointe 7 en or ou en platine.
L'extrémité du fil induit k est celle par laquelle commence
à rouler sur une bobine. Le fil 8 communique avec la terre
ou la plaque 5 (Fig. I) est le cylindre 3 (Fig. A).
sommaire
GB190727157 Améliorations et relatives aux transformateurs
électriques. 29 octobre 1908
Comprend un grand nombre d'enroulements enroulés sous la forme
d'un câble a sur un châssis sans noyau b, et conduits
aux bornes 1 ... 10 et, adaptés pour être connectés
en quantité ou en tension au moyen d'un commutateur de sorte
que trois circuits indépendants ou plus peuvent être
réalisés.
SPÉCIFICATION COMPLÈTE.
 |
La présente invention concerne les transformateurs
électriques de la classe décrite par les cahiers
des charges N ° 821901 (Amberg), z1854 (Swinburne) et 4
/ I83 (Clerc) et elle concerne en particulier l'agencement des
enroulements.
L'invention est représentée sur
les dessins annexés;
Figs. 1 et 2, montrent respectivement une coupe et une vue de
face du transformateur amélioré.
Le transformateur qui n'a pas de noyau magnétique, est
simplement constitué d'un nombre convenable de fils isolés,
10 par exemple, qui sont unis pour former un câble a qui
est enroulé autour d'un cadre b. Les extrémités
du câble font saillie à travers deux trous du cadre
et les extrémités de chaque fil sont reliées
aux bornes 1 à 10 et 11 à 101 respectivement.
Sur les dessins, sont représentées 20 bornes,
dont les dix premières correspondent aux débuts
des 10 fils, et les dix autres correspondent aux extrémités
des mêmes fils.
On obtient ainsi un enroulement d'un certain nombre de fils
identiques qui sont tous enroulés en parallèle
et simultanément et qui peuvent être reliés
au moyen d'un commutateur de manière à former
des groupes à «faire varier selon les besoins;
de sorte qu'il se constitue ainsi trois circuits ou plus qui
sont entièrement indépendants l'un de l'autre
et dont la longueur peut être variée à volonté.
En joignant commodément les extrémités
libres de certains des fils, un enroulement primaire de faible
résistance est obtenu avec les fils du même assemblage
pour la quantité, tandis qu'un ou plusieurs des enroulements
secondaires sont joints pour la tension, fournissant ainsi toute
résistance requise.
La construction du transformateur au moyen d'un grand nombre
de fils séparés offre de nombreux avantages parmi
lesquels la facilité de connecter les fils séparés
à volonté pour constituer les circuits; l'agencement
permettant de dériver un circuit supplémentaire
en tout point desdits circuits; et l'indépendance réciproque
de ces circuits à grand nombre
|
sommaire
GB190721535 Améliorations et relatives aux transformateurs
électriques. 28 mai 1908
Les transformateurs pour la télégraphie et la télégraphie
sans fil sont fabriqués sans noyau magnétique, de faible
profondeur mais de grand diamètre. Ils ont l'enroulement primaire
e enfermé dans l'enroulement secondaire c, g, mais séparé
de celui-ci par une isolation d, f. Les enroulements peuvent être
formés en sections et couplés dans n'importe quel ordre
au moyen d'un commutateur.
|
SPÉCIFICATION COMPLÈTE.
La présente invention concerne les transformateurs électriques
dont la construction est améliorée pour obtenir
des courants d'induction de très courte périodicité.
Les courants, dont la durée est extrêmement courte,
possèdent des propriétés particulières
qui sont particulièrement utiles lorsqu'ils sont appliqués
en télégraphie et en téléphonie
sans fil.
Des transformateurs sans noyau magnétique et avec l'enroulement
secondaire enroulé autour du primaire, ou avec l'enroulement
primaire enfermé dans un matériau isolant autour
duquel est enroulé l'enroulement secondaire de sorte
que l'ensemble forme un câble, ont été fournis,
et mon invention est limitée à la forme et la
construction du transformateur comme indiqué ci-après.
Mon transformateur électrique amélioré
contient son fil primaire dans un câble des fils secondaires
sous la forme d'une seule bobine de faible épaisseur
mais de très grand diamètre, mètre, ladite
bobine ou câble étant appliqué à
un corps de transformateur en forme d'anneau.
Le dessin ci-joint montre mon transformateur
électrique amélioré.
La figure 1 est une coupe selon la ligne AB de la figure 2 et
La figure 2 est un plan du transformateur en forme d'anneau.
Comme on le verra sur les dessins, le transformateur
a est de diamètre comparativement grand qui peut être
de plusieurs mètres.
Sur le dessin, le transformateur est représenté
de section circulaire, il pourrait cependant être de section
carrée ou autre. Ce transformateur est très court
car tous les fils de l'enroulement sont situés à
sa périphérie dans un creux ou une rainure b approprié.
|
 |
Pour la fabrication du transformateur, je place autour
de la jante de ce type de roue ou de cadran: a, une première
couche de fil secondaire qui est recouverte d'un isolant approprié
d et sur cet isolant le fil primaire e est enroulé qui est
recouvert par un autre couche de matériau isolant f. Les deux
couches isolantes d et f sont connectées de manière
à ce que les fils primaires e soient bien isolés,et
la bobine est alors terminée par application d'un enroulement
extérieur de fil secondaire g, ce dernier entourant le primaire
de manière à former un câble. De cette manière,
on obtient un anneau de grand diamètre qui est composé
des fils secondaires c, g qui renferment un noyau de fils primaires
e convenablement isolés et entièrement entourés
et lequel anneau est appliqué à un corps de transformateur
en forme d'anneau ayant une rainure périphérique. de
section transversale appropriée.g qui renferme un noyau de
fils primaires e convenablement isolés et entièrement
entourés et lequel anneau est appliqué sur un corps
de transformateur en forme d'anneau ayant une rainure périphérique
de section transversale appropriée.g qui renferme un noyau
de fils primaires e convenablement isolés et entièrement
entourés et lequel anneau est appliqué sur un corps
de transformateur en forme d'anneau ayant une rainure périphérique
de section transversale appropriée.
L'appareil comprend quatre bornes h, dont deux servent à la
fixation des extrémités des fils secondaires, les deux
autres servant à la fixation des extrémités de
l'enroulement primaire.
On pourrait disposer plusieurs câbles ou anneaux indépendants
dans chacun desquels les fils secondaires entourent entièrement
les fils primaires et dans ce cas chacune des bornes serait remplacée
par un commutateur multiple permettant de relier les différents
fils secondaires ainsi que les différents primaires. fils soit
pour la tension, soit pour la quantité selon l'effet à
obtenir.
sommaire
GB190721252 Améliorations liées à la télégraphie
et à la téléphonie sans fil. 21 novembre
1907
Les circuits d'émission et de réception
d'une station pour un système inductif de téléphonie
ou de télégraphie sont agencés comme indiqué.
Une bobine a, constituée de quelques spires de fil épais,
est utilisée seule en émission, mais est connectée
en série avec une bobine b, constituée d'un grand nombre
de spires de fil fin, pour la réception; le circuit de la bobine
b est rompu automatiquement, lors de la transmission, au moyen d'une
clé Morse c. Le circuit de la bobine a comprend une batterie
n et un microphone o pour la téléphonie, ou un interrupteur
pour la télégraphie, et la bobine b est reliée
à un téléphone h.
|
On connaît des systèmes de télégraphie
et de téléphonie sans fils de liaison qui utilisent,
à la place des ondes hertziennes, les phénomènes
d'induction distante au moyen de vibrations électriques
de très courte durée, mais de grande amplitude.
Avec de tels systèmes, un seul et même enroulement
est utilisé pour l'envoi et la réception de la
fourrure; pour l'envoi il est mis en circuit avec une source
d'électricité (pile, accumulateur, etc.) et avec
un microphone ou un interrupteur destiné à produire
les vibrations en question. Le même enroulement est mis
en circuit avec un téléphone récepteur
pour recevoir les courants qui sont induits en a. distance de
l'enroulement émetteur de l'autre station.
Il est évident que ce single coil ne
peut pas aussi bien servir à l'envoi qu'à la réception.
Pour bien transmettre, il doit être fait de fil épais
et court, tandis que pour bien recevoir, il doit être
fait de fil long et fin.
Ce serait évidemment le plus simple de
doter chaque station de deux bobines différentes dont
l'une sert d'émetteur et l'autre de récepteur,
mais le lucre est une autre difficulté à considérer;
pour la réception, la bobine longue et mince doit être
fermée par le téléphone et dans cette condition
elle absorberait presque toute l'énergie qui devrait
être envoyée par l'émetteur.
La présente invention tourne vers un
procédé spécial de montage des pièces
constituant un poste afin de surmonter la difficulté
mentionnée ci-dessus; en outre, la méthode spéciale
de montage permet de joindre les deux bobines l'une derrière
l'autre pour la réception, ce qui augmente considérablement
la puissance de réception de la station.
Le dessin annexé représente schématiquement
une station selon la présente invention.
|
 |
a est le fil inducteur qui sert à transmettre
la fourrure; ce fil est épais et relativement court. b est
l'enroulement induit pour recevoir les vibrations induites de l'enroulement
inducteur de la station émettrice; cet enroulement est constitué
d'un fil fin d'une longueur considérable. c est un. Morse-manipulateur
dont le levier est relié par le contact laissé avec
une extrémité du fil a, son connecteur e est par le
contact f relié par l'une des extrémités du fil;
le fil g qui relie le contact f au fil b comprend le récepteur
téléphonique h, l'autre connecteur i de l'appareil Morse
est connecté par borne avec les extrémités libres
des deux fils a et b qui sont réunis en ce point. Le fil de
liaison m qui sert à cet effet,comprend la batterie n et le
microphone o.
On comprend aisément qu'en position de repos de la clé
Morse (comme représenté sur les dessins) les deux bobines
et b forment un circuit fermé sur le téléphone
h. Cette position est la position de réception. Pour la transmission,
la touche est enfoncée et mise en contact avec le connecteur
grâce à quoi la bobine b est ouverte tandis que la bobine
a est fermée sur le microphone et la batterie.
Il est entendu que la station décrite sert à la transmission
de sons. Pour la transmission de signaux télégraphiques,
le microphone o est remplacé par un interrupteur-vibreur approprié
et l'appareil est actionné par la touche Morse comme d'habitude.
sommaire
GB190712529 Améliorations et relatives à la télégraphie
et à la téléphonie inductives. 12
mars 1908
Dans un système de télégraphie
ou de téléphonie par induction magnétique, les
bobines sont placées verticalement et la même bobine
est utilisée pour l'émission et la réception.
La bobine b est enroulée sur un cadre a de toute forme appropriée,
qui peut être doublé de fer. Une borne de la bobine b
est connectée à une touche f dont un contact est connecté
via un microphone p et une batterie o à l'autre borne d de
la bobine. Un téléphone m est connecté aux bornes
de la bobine par un autre contact de la touche f, et son circuit est
normalement terminé pour recevoir des messages téléphoniques
ou télégraphiques. La télégraphie est
effectuée en manipulant le kev f pour compléter le circuit
de la batterie o; au téléphone, la touche est enfoncée
et le microphone p est utilisé.Un alternateur haute fréquence
peut être utilisé à la place de la batterie o,
et un écran composé de feuilles de papier imbibées
de paraffine, de vernis ou de colle peut être placé derrière
le cadre.
 |
La présente invention concerne des perfectionnements
dans cette classe de télégraphie et de téléphonie
à induction magnétique dans laquelle la transmission
est effectuée entre des bobines de fil similaires au
niveau des stations de réception et d'émission.
L'invention se caractérise par le fait que les émetteurs
et récepteurs sont réversibles, l'organe de transmission
des ondes étant le même que l'organe qui reçoit
les ondes.
Sur le dessin, un schéma d'une station
selon le système actuel est représenté.
L'émetteur et le récepteur des ondes électriques
sont constitués d'un. cadre en bois (a) de dimensions
assez grandes; par exemple 4 mètres carrés pour
une distance de 20 kilomètres. Sur le dessin, le cadre
est représenté comme étant carré
mais il peut être de toute autre forme géométrique
ayant pour centre un rectangle un losange, un cercle, etc. La
paroi du cadre est munie d'une rainure (b) dans laquelle une
isolation un fil conducteur est placé qui est connecté
aux bornes (c) et (d). Ce fil est enroulé a. faire varier
le nombre de fois autour de la trame pour qu'elle soit de longueur
suffisante en fonction de la puissance de transmission requise
de l'appareil.
Le cadre (a) doit être de dimensions suffisamment
grandes pour éviter que les courants générés
en sens opposés sur les côtés du cadre ne
tendent à se neutraliser.
Chaque station comprend en plus un manipulateur Morse (e), dont
le commutateur est connecté à l'une des bornes
(c) du châssis (a) par le fil, ses bornes (r) et (h) étant
connectées à l'autre borne ( d) du cadre (a).
|
Un récepteur téléphonique ordinaire
(m) est inséré dans, le circuit (k) qui mène de
la borne (h.) Du manipulateur au châssis, et dans l'autre circuit
(n), reliant la borne (g) du manipulateur avec. le cadre, une batterie
(o) est insérée près du cadre et un microphone
(p) est inséré près du manipulateur.
Lorsque le manipulateur (c) est au repos (position représentée
sur le dessin) la station est prête à recevoir les émissions,
le circuit électrique (a, c, i, f, m, k, d, a) entourant le châssis
et le téléphone -être fermé. Il suffit de
tenir le téléphone contre l'oreille pour percevoir tous
les courants qui sont induits dans le cadre (a).
Le téléphone (m) est mis hors circuit lorsque le commutateur
(f) est enfoncé, tandis que le circuit sera fermé sur
le châssis (a.) Et la batterie (o). La station est ainsi devenue
émettrice 11, la batterie envoyant des courants variables dans
la trame en fonction de la nature de la transmission à effectuer.
Pour télégraphier selon l'alphabet Morse on manipule le
commutateur (f) de la manière habituelle, le téléphone
(m) de l'autre poste permettant de percevoir distinctement les points
et les tirets. L'opérateur donne simplement un contact pour le
point et deux contacts se succédant rapidement pour un tiret.
Dans ce cas le microphone (p) est superflu mais il ne dérange
pas. Quand cependant on veut téléphoner,le contact (g)
doit être maintenu fermé et on parle devant ou dans le
microphone (p); le téléphone (in.) de l'autre station
reproduira les sons.
La source d'électricité (o) peut être une batterie
ou un générateur électromagnétique donnant
des courants alternatifs de haute fréquence. Les courants qui
sont ainsi envoyés dans la trame (a) de la station émettrice
n'ont aucun effet appréciable sur les récepteurs télégraphiques
qui pourraient être fournis à cette station; ils n'influencent
même pas l'aiguille de l'aimant en raison de leur mauvais état.
Pour établir la communication entre deux stations, les deux cadres
(a) doivent être placés dans des plans parallèles,
perpendiculaires à la ligne qui relierait leurs centres, ce qui
peut être effectué par divers moyens. L'action (si l'un
des cadres sur l'autre est effectué à travers quelque
obstacle que ce soit, aucune connexion à la terre ou à
l'air n'est nécessaire.
L'action réciproque des cadres peut être augmentée
en garnissant le fond de la rainure (b) sur toute sa longueur avec une
tôle douce, la garniture étant continue ou interrompue.
Le châssis deviendra ainsi une sorte d'électro-aimant dont
la proportion est juste l'inverse de ceux généralement
utilisés.
Pour communiquer à de très grandes distances, plusieurs
cadres (n,) sont assemblés, les fils étant assemblés
en série ou pour tension.
L'efficacité peut être considérablement augmentée
et le sens de transmission localisé en évitant la dispersion
sur les côtés ou derrière le châssis, au moyen
d'un écran épais composé de feuilles de papier
superposées imbibées de paraffine; le papier pourrait
également être imprégné de vernis, de colle
ou de tout autre matériau équivalent.
sommaire
GB190126600 Améliorations des systèmes télégraphiques
et téléphoniques et s'y rapportant. 6 novembre
1902
Se rapporte à la disposition des circuits dans
les systèmes télégraphiques et téléphoniques.
Sur la figure 1, un microphone b est représenté sur
une ligne principale a, et au niveau de la station de réception
est connecté au milieu d'une batterie divisée f, g,
deux récepteurs l, m étant connectés entre la
batterie et la terre. Lorsque des bobines d'induction sont utilisées,
deux primaires séparées remplacent les récepteurs
de la figure, et le récepteur utilisé est placé
dans un secondaire commun. Dans une autre modification, l'émetteur
est ponté sur deux circuits fermés parallèles,
comprenant des primaires et des batteries, le secondaire formant le
circuit de ligne.
La présente invention concerne les systèmes
télégraphiques et téléphoniques et a pour
objet certaines améliorations ci-après plus particulièrement
mentionnées et enfin signalées dans les revendications.
Comme cela est bien connu, afin d'éviter une surchauffe des
appareils de réception et d'émission dans les installations
téléphoniques ou télégraphiques, il est
nécessaire d'empêcher un courant très fort de
les traverser. Il peut cependant, dans certains cas, être nécessaire
de fournir des courants d'énergie variable dans des limites
assez grandes, et cette invention a pour objet de fournir un dispositif
simple qui permettra aux courants de toute force de passer à
travers des appareils télégraphiques et téléphoniques
sans la moindre risque de détérioration de ces appareils.
|
Afin que mon invention puisse être facilement
comprise et mise en uvre, je vais maintenant la décrire
entièrement en référence aux dessins annexés
dans lesquels sont schématisés plusieurs méthodes
de réalisation de mon. invention en pratique.
Sur les dessins: la figure 1 montre le principe
de mon agencement amélioré, et les figures 2 et
3 sont des agencements modifiés.
Mon système amélioré consiste
essentiellement en une ligne a de toute longueur convenable
dans laquelle est interpolé un microphone b ou un autre
appareil de transmission approprié. Une extrémité
de cette ligne est reliée à la masse en c et l'autre
extrémité est connectée en d à un
fil e adapté pour mettre en communication les pôles
opposés des deux sources d'électricité
de puissance égale, que, pour plus de clarté,
j'ai représenté deux piles simples f et g. Ces
deux batteries sont respectivement reliées à la
terre en h et i. Dans les fils de terre j et k sont des récepteurs
télégraphiques ou téléphoniques
interpolés l, m, de toute construction convenable. Dans
l'exemple représenté sur le dessin, les récepteurs
et m sont indiqués comme étant des récepteurs
téléphoniques.
Ayant ainsi décrit la disposition générale
du système, je vais maintenant expliquer la fonction
des divers appareils du système.
En supposant que le fil a est inexistant et que la communication
de la batterie f et g avec la terre a été établie,
un courant passe du pôle positif de la batterie f à
la terre par le fil puis revient à travers le fil k,
batterie 9 et enfin à travers le fil e jusqu'au pôle
négatif de la batterie f. Ainsi, un circuit fermé
est établi. En admettant maintenant que le fil a soit
connecté au fil e en d et que l'émetteur b fonctionne,
le courant unique généré dans le cas précédent
sera remplacé, par deux courants qui circulent dans le
même sens.
L'un de ces courants part du pôle positif de la batterie
f à travers le fil passant par la terre de h à
c en passant par l'émetteur b, fil a et fil e jusqu'au
pôle négatif de la batterie f.
L'autre courant part du pôle positif de la batterie 9
à travers les 'fils e et a, l'émetteur b, à
travers la terre de c à i et le fil k au pôle négatif
de la batterie g.
|
 |
On voit ainsi que le fil a et l'émetteur b sont
traversés simultanément par deux courants égaux
en sens inverse.
Sur la figure 2 j'ai représenté un émetteur
télégraphique ou touche b mais la disposition générale
du système est la même que celle précédemment
décrite à l'exception que les fils j et k forment les
conducteurs primaires des transformateurs n et o. Le conducteur secondaire
p, commun aux deux transformateurs, conduit, vers l'appareil récepteur
q, par exemple un instrument récepteur télégraphique.
Chaque contact éjecté avec la touche b produit, comme
expliqué précédemment une double dérivation
agissant par soustraction d'intensité sur les deux transformateurs
n et o, produit un courant induit qui est reproduit en totalité
dans l'appareil récepteur q. Dans le cas d'une transmission
téléphonique, la clé doit être remplacée
par un microphone comme représenté sur la figure 1,
tandis que de plus le récepteur q serait également un
récepteur téléphonique.
En prolongeant le même principe je peux, comme indiqué
sur la figure 3, remplacer les deux fils de terre par deux conducteurs
et k réunis en r après avoir traversé les transformateurs
x et o. Le courant induit peut alors être acheminé vers
l'instrument récepteur t sur deux lignes, ou comme dans l'exemple
précédent sur une ligne s et deux prises de terre u
et v, placées plus ou moins éloignées l'une de
l'autre.
On remarquera que le microphone b fait partie des conducteurs neutres.
Il agit exactement comme sur la figure 1. Les différences de
résistance produites par ses vibrations influencent les deux
bobines x et o, et il est facile de comprendre que, quelle que soit
l'intensité des deux sources électriques f et g, le
microphone n'est jamais exposé au risque de surchauffe du fait
qu'il est parcouru par deux courants égaux dans des sens opposés.
On comprendra ainsi que les émissions seront rendues perceptibles
dans les récepteurs par les différences d'intensité
du courant électrique; les différences étant
dues aux différences de résistance du conducteur neutre
qui, en recevant deux courants égaux en sens opposés,
ne s'en ressent pas beaucoup.
sommaire
GB190117711 Améliorations relatives à la transmission
des signaux télégraphiques et téléphoniques.
19 février 1901
Les circuits locaux de chaque station sont doublement
mis à la terre en e, f, j, k symétriquement autour d'une
ligne droite joignant les stations. Les terres peuvent être
formées de pots poreux contenant de l'eau dans lesquels les
extrémités des conducteurs sont immergées, ou
des fossés profonds remplis de coke gazeux peuvent être
utilisés. Les écrans isolants peuvent être placés
dans des fossés profonds creusés derrière la
terre.
La présente invention concerne un procédé
amélioré de transmission de signaux électriques
télégraphiques et téléphoniques d'un point
à un autre sans l'emploi de fils reliant les deux points.
Dans mon système de transmission amélioré,
les deux pôles de la station d'émission sont mis à
la terre et les deux conducteurs, sur lesquels l'appareil de réception
est monté, sont également tous deux mis à la
terre; les signaux émis par l'appareil émetteur sont
transmis à la station de réception uniquement par la
terre.
Afin que mon invention puisse être facilement
et clairement comprise, j'ai représenté dans le dessin
annexé, à titre d'exemple uniquement, une vue schématique
de mon appareil dans son ensemble.
 |
Comme montré sur le dessin, la station
émettrice comprend un émetteur dont l'une des
bornes est électriquement connectée à l'un
des pôles d'une source d'électricité b tandis
que l'autre pôle communique avec la terre; le deuxième
pôle de la source d'électricité est également
acheminé vers la terre et avec cet objet les deux conducteurs
cd se terminent par deux pots poreux ef noyés dans le
sol et remplis d'eau.
La station de réception comprend un récepteur
9 tel qu'un téléphone par exemple, les conducteurs
hi qui sont mis à la terre par l'intermédiaire
de deux pots poreux jk similaires à ceux de la station
émettrice.
Les pots poreux de la station de réception doivent être
disposés sur une ligne parallèle à celle
qui relie les deux pots poreux de la station d'émission,
et ils doivent être équidistants d'un axe passant
par le point médian de cette ligne et perpendiculairement
audit axe. .
Les pots poreux peuvent avantageusement être remplacés
par des fossés profonds creusés dans la terre
humide, remplis de charbon gazeux ou de coke et contenant en
leur centre une plaque de carbone bon conducteur, sur laquelle
sont respectivement fixés les fils de transmission et
de réception.
Lorsque le contact est établi par manipulation l'émetteur
a, le circuit électrique passant par la source d'électricité
b, le conducteur c, le pot poreux e relié à la
terre à l'autre pot poreux f le conducteur d et l'émetteur
a, est fermé. Le courant ainsi produit provoque un changement
d'état du sol; tout autour des pots poreux se produit
un rayonnement électrique dont la polarité est
celle du conducteur correspondant; sa densité diminue
à mesure qu'elle s'éloigne du point de départ.
Ce rayonnement est infini par rapport à l'espace si rien
ne gêne son passage.
Le rayonnement s'étend d'autant plus loin que la distance
entre les deux pots poreux de la station émettrice est
plus grande.
Ces rayonnements, à partir respectivement des pots poreux
ef créent ainsi deux zones dont l'une est positive et
l'autre négative, dont l'intersection constitue la ligne%
absolument neutre. Il en découle que les pots poreux
de la station de réception doivent être disposés
de chaque côté de l'axe neutre, car si ces deux
connexions à la terre étaient du même côté,
elles collecteraient toutes deux du fluide de même polarité,
et dans ces conditions le récepteur ne serait traversé
par aucun courant.
|
Afin de collecter le maximum de courant à la
station de réception, les deux pots de réception poreux
doivent être aussi près que possible équidistants
de l'axe neutre, comme si l'un des deux pots poreux est plus proche
que l'autre, la différence de séparation de celui ce
qui est le plus éloigné est non seulement perdu mais
préjudiciable car il provoque des résistances inutiles
sans rien ajouter à l'effet.
L'expérience a démontré que la disposition qui
fournit le maximum de réception est celle qui consiste à
disposer les pots poreux du récepteur au même intervalle
que sépare les pots poreux de la station émettrice.
Pour installer ma méthode de transmission électrique,
il faut tout d'abord tracer une droite ay reliant les deux stations
et ensuite produire sur chacune de ces stations une ligne partant
de cette ligne xy à angle droit, ladite perpendiculaire les
lignes sont de longueur égale.
Les appareils d'émission et de réception peuvent être
disposés en tout point approprié sur le conducteur qui
relie les pots poreux.
Afin que l'ensemble du rayonnement émis puisse être utilisé
à la station de réception, la propagation de ce rayonnement
est empêchée (à la station d'émission du
côté opposé à celui sur lequel la station
de réception est située en enfouissant dans le sol un
écran isolant l qui peut être en verre, en tissu goudronné,
en ébonite ou autre, ou en creusant un fossé suffisamment
profond avec ou sans écran isolant.
Chaque fois que le contact est établi à l'émetteur
a, un coup sec est audible à `` le téléphone
récepteur g ; un deuxième coup se fait entendre lorsque
le circuit est coupé.
Il est évident qu'il peut être agencé à
la fois au niveau de la station d'émission et de réception
des appareils d'émission et de réception de la plus
grande sensibilité possible, soit pour servir de relais à
des fins télégraphiques, soit pour recevoir et enregistrer
directement les signaux; par exemple un siphon d'encre monté
sur un cadre galvanométrique, ou tout autre dispositif approprié.
Ma méthode de transmission permet également la transmission
de la parole; il suffit de remplacer l'émetteur par un microphone
ordinaire interposé soit directement sur le circuit, soit disposé
sur le primaire d'une bobine d'induction, dont le fil secondaire se
termine à chaque extrémité des deux pots poreux.
On comprendra bien entendu qu'en pratique chaque station comprend
à la fois un émetteur et un récepteur.
sommaire
GB190108906 Améliorations relatives à la transmission
des courants électriques 30 avril 1901
Les systèmes télégraphique et
téléphonique sont agencés avec le fil de ligne
a connecté au point central d'une batterie c, c, dont les pôles
opposés sont mis à la terre et shuntés par une
touche de circuit normalement fermé g ou un microphone. Les
connexions à la terre se font à travers des cellules
non polarisables f, f, contenant par exemple deux plaques de cuivre
immergées dans une solution de sulfate de cuivre. Le récepteur
est ponté entre une terre et un interrupteur h par lequel l'émetteur
est normalement connecté à la ligne. Le microphone peut
être inséré dans le primaire d'une bobine d'induction
dont les deux secondaires s'opposent et sont connectés aux
deux masses et ligne. Les deux prises de terre peuvent être
rapprochées par le récepteur et basculer dans le primaire
de la bobine d'induction,de sorte que cette bobine agit à la
fois pour recevoir et pour émettre selon la position de l'interrupteur
h. Le microphone est disposé dans le primaire d'une seconde
bobine d'induction.
La présente invention concerne des améliorations
dans la transmission des courants électriques et est plus particulièrement
adaptée pour les lignes télégraphiques et téléphoniques,
grâce à quoi la condensation dans le câble est
évitée, tout en "écoutant" la ligne
en un point quelconque de celle-ci, à cet effet. il est impossible
de déterminer la signification du message en cours de transmission.
Mon système de transmission amélioré comprend
un seul fil de ligne entre les deux stations et branché à
ces deux stations au point zéro d'un circuit dont les deux
extrémités sont reliées à la terre ou
à la mer; le courant fourni à chaque station par une
source locale d'électricité étant envoyé
à travers le circuit au moyen de tout appareil de transmission
commode, (tel qu'une clé Morse, un microphone ou autre) soit
directement soit par induction.
Chaque station est équipée parmi d'autres appareils,
avec un appareil de réception constitué d'un instrument
clé connecté au fil de ligne et permettant au courant
envoyé dans la ligne depuis la station d'émission, de
passer dans un conducteur menant directement à l'un des fils
en cours d'exécution. à la terre et auquel est connecté
le récepteur proprement dit.
Afin d'éviter la polarisation des fils de terre, chacun de
ces fils est connecté à un conducteur conduisant à
une lame de cuivre ou autre lame métallique immergée
dans une solution saline impolarisable dans laquelle est disposée
une seconde lame similaire connectée à la terre ou à
la mer.
Dans les dessins d'accompagnement: La figure 1 est un schéma
montrant mon système amélioré appliqué
à la télégraphie
|
La figure 2 est un schéma montrant la
même chose appliquée à la téléphonie.
La figure 3 montre le système de la figure 2 avec un
courant induit. ' La figure 4 montre une disposition modifiée.
Sur toutes les figures, les mêmes lettres de référence
désignent les mêmes pièces.
En référence à la figure 1 les deux stations
sont reliées par un seul fil de ligne a, ramifié
au point zéro b de la batterie formée des différents
éléments c dont les pôles d'extrémité
sont reliés à la terre, ou à la mer, par
un conducteur de conduisant à une plaque de cuivre ou
autre f métallique immergée dans un liquide de
bonne conductivité, comme par exemple une solution d'un
sulfate de cuivre, dans laquelle une autre plaque de cuivre
f1 est placée reliée à la terre, ou à
la mer par un conducteur d1.
|
 |
Un appareil émetteur g de toute construction commode,
tel qu'un instrument Morse- key, est connecté avec les deux pôles
d'extrémité de la batterie de telle manière que
dans sa position de repos, il ferme le circuit de ce dernier en établissant
un court-circuit afin qu'aucun courant ne passe, (ou tout au plus très
faible) à travers la ligne de fil a ou à travers les fils
de terre.
Pour envoyer un courant à la station de réception, la
touche 9 est enfoncée après quoi le court-circuit est
interrompu et le courant est amené à passer simultanément
à travers le fil de ligne a et les fils de terre d dl ee *. Le
fil de ligne est en réalité traversé par deux courants
dans des directions opposées, de sorte qu'il est dans un état
apparemment neutre, et donc aucune interception des messages ne peut
être effectuée pour la raison que si un récepteur
est interpolé, en tout point de . la ligne, ledit récepteur
recevrait deux courants dans des sens opposés qui se neutraliseraient.
Chaque station est également équipée d'un appareil
de réception constitué d'un commutateur h connecté
au fil de ligne a et permettant, lorsqu'il est enfoncé, le courant
de l'émetteur de passer dans un fil i menant directement à
l'un des fils de terre (d1 pour exemple) et dans lequel est interpolé
l'instrument récepteur j.
Pour recevoir des signaux envoyés depuis la station émettrice,
il est nécessaire que le levier de commutation h soit maintenu
enfoncé, de manière à faire passer le courant de
la station émettrice dans le fil en liaison avec l'instrument
récepteur.
Les connexions peuvent également être établies de
telle manière que lorsque le commutateur h est dans sa position
normale, il coupe le fil (et connecte le fil avec la partie dudit fil
qui mène à l'autre station; dans ce cas, pour émettant
un signal, il est nécessaire d'appuyer au préalable sur
le levier de commutation h pour rétablir la continuité
du fil de ligne et l'opérateur agit alors sur le levier à
clé g comme indiqué ci-dessus.
Mon agencement s'applique également aux messages téléphoniques
comme cela sera maintenant expliqué en référence
à la figure 2, l'instrument émetteur g est dans ce cas
remplacé par un microphone g1 et l'instrument récepteur
j est remplacé par un récepteur téléphonique
j 1 le fonctionnement de l'agencement est exactement le même que
celui décrit ci-dessus.
Les vibrations du microphone coupent le court-circuit et le courant
provenant de la source locale d'électricité passe alors
sur le fil de ligne a et les fils de terre d d1 c el comme indiqué
précédemment.
Le message téléphonique est reçu de la même
manière que précédemment grâce à l'intervention
du commutateur h qui fait passer le courant, émis depuis la station
émettrice; à l'instrument de réception téléphonique
jl.
Le fil de ligne peut également être actionné par
des courants d'induction a3 est indiqué à la figure 3.
Le circuit local dans lequel l'appareil émetteur (par exemple,
le microphone g1) est inséré comprend un enroulement primaire
k entourant un noyau central en fer doux, ou faisceau de fils, 1 qui
est en outre pourvu de deux enroulements secondaires mm dans des directions
opposées. Le fil de ligne a est connecté à chacun
de ces enroulements secondaires aux deux extrémités m1
n1 de polarité opposée et les extrémités
opposées ms p2 sont connectées aux fils de terre ddc posés
de la manière déjà expliquée.
Lors du fonctionnement de l'appareil émetteur ou en parlant dans
le microphone 0 par exemple, des courants d'induction sont générés
dans les enroulements secondaires mn et ils affectent alors l'appareil
récepteur jl au niveau de la station de réception comme
déjà indiqué.
L'enroulement primaire et les deux enroulements secondaires peuvent
avoir les trois fils enroulés dans le même sens sur le
noyau de fer doux et les deux extrémités des circonvolutions
primaires sont connectées au circuit local dans lequel est interpolé
l'émetteur tandis que deux extrémités de polarités
opposées de les circonvolutions secondaires sont reliées
à la ligne et les deux osiers à la terre comme expliqué
précédemment.
Dans mon arrangement de transmission amélioré, les deux
fils de terre à `` chaque station doivent être plus séparés
l'un de l'autre, plus la distance est longue entre les deux stations
de sorte que la résistance de la terre entre lesdits fils de
terre soit suffisante pour provoquer l'unique ligne-fil à traverser
par la plus grande quantité possible de courant.
Afin de réduire au maximum la distance entre les fils de terre,
le début de l'unique fil a et les fils rl rl 'menant à
la terre sont avantageusement à rm distance de l'instrument émetteur
et de l'instrument récepteur respectivement au poste télégraphique
ou téléphonique et permettent ainsi de rapprocher les
deux liaisons à la terre des deux stations télégraphiques
ou téléphoniques.
La station télégraphique ou téléphonique
est alors divisée et l'instrument émetteur est relié
à l'aimant avec ses prises de terre et son fil de ligne a 'par
deux fils conducteurs kl k2 reliés aux extrémités
des convolutions k qui génèrent des courants d'induction
dans les enroulements secondaires mn ( Figure 4).
Le courant envoyé dans les fils conducteurs k1 k2 et. passant
par les circonvolutions k peut être lui-même un courant
induit généré dans la bobine k3 lorsqu'un courant
provenant de la source d'électricité c traverse le. bobine
primaire o par l'action du microphone émetteur gl par exemple.
Dans le cas où `` la distance de la station d'émission
télégraphique ou .téléphonique de ses connexions
à la terre n'est pas trop excessive, le courant traversant les
conducteurs k1 1.:2 au lieu d'être un courant d'induction peut
être fourni directement par la source d'électricité
de cette station, et naturellement l'instrument émetteur, (microphone
ou 'clé), et la source d'électricité sont alors
placés directement dans le circuit; 1 k2.
Un interrupteur A interposé dans le conducteur kl permet de couper
le circuit en conduisant à la bobine secondaire k3 et de fermer
le circuit pour le conducteur i conduisant au conducteur k 2 dans lequel
est interpolé 'l'instrument récepteur j.
Ainsi la bobine k est soit inductrice, soit induction selon qu'il y
a émission ou réception.
Il doit être bien entendu que mon système de transmission
est entièrement indépendant de la nature de l'appareil
télégraphique ou téléphonique utilisé
avec celui-ci, et que la source d'électricité aux stations
peut être de tout type convenable, soit dérivée
d'une batterie, d'accumulateurs, dynamo, machine magnéto-électrique
ou similaire.
SPÉCIFICATION COMPLÈTE.
Cette invention vise à améliorer la transmission des
courants électriques et est plus particulièrement adaptée
pour les lignes télégraphiques et téléphoniques,
grâce à quoi la condensation dans le câble est
évitée, tout en "écoutant" la ligne
en tout point de celle-ci, dans le but de déterminer le but
du message en cours de transmission est rendu impossible.
Mon système de transmission amélioré comprend
un seul fil de ligne entre les deux stations et ramifié à
ces deux stations au point zéro d'un circuit dont les deux
extrémités sont reliées à la terre ou
à l'ensemble; le courant fourni à chaque station par
une source locale d'électricité étant envoyé
à travers le circuit au moyen de tout appareil de transmission
commode (tel qu'un microphone à clé Morse ou autre)
soit directement soit par induction.
Chaque station est équipée, entre autres appareils,
d'un appareil de réception composé d'un instrument à
clé connecté, avec le fil de ligne et permettant au
courant envoyé dans la ligne de la station émettrice,
de passer dans un conducteur menant directement à l'un des
fils reliés à la terre et auxquels est connecté
le récepteur proprement dit.
Afin d'éviter la polarisation des fils de terre, chacun de
ces fils est connecté à un conducteur conduisant à
une lame de cuivre ou autre lame métallique immergée
dans une solution saline impolarisable dans laquelle est disposée
une seconde lame similaire connectée à la terre ou à
la mer.
Afin que mon invention puisse être clairement comprise et facilement
mise en uvre, je vais maintenant la décrire plus en détail
en faisant référence aux dessins accompagnant ma Spécification
provisoire dans lesquels:.
La figure 1 est un diagramme montrant mon système amélioré
appliqué à la télégraphie.
La figure 2 est un schéma montrant la même chose appliquée
à la téléphonie.
La figure 3 montre le système de la figure 2 avec un courant
induit.
La figure 4 montre une disposition modifiée.
Sur toutes les figures, les mêmes lettres de référence
désignent les mêmes pièces.
En se référant à la figure 1, les deux stations
sont reliées par un seul fil de ligne a ramifié au point
zéro b de la batterie formée des différents éléments
c de «dont» les pôles d'extrémité
sont reliés à la terre, ou à la mer, par un conducteur
de conduisant à une plaque de cuivre ou autre f immergée
dans un liquide de bonne conductivité, comme par exemple une
solution de sulfate de cuivre, dans laquelle une autre plaque de cuivre
f1 est placée reliée à la terre, ou à
la mer par a. conducteur d1 e1.
Un appareil émetteur q de toute construction convenable, tel
qu'un instrument à clé Morse, est connecté aux
deux pôles d'extrémité de la batterie de telle
manière qu'en position de repos il ferme le circuit de cette
dernière en établissant un court-circuit afin qu'aucun
courant ne passe, (ou tout au plus très faible) à travers
la ligne de fil a ou à travers les fils de terre.
Pour envoyer un courant à la station de réception, la
touche g est enfoncée, après quoi le court-circuit est
interrompu et le courant est amené à passer simultanément
à travers le fil de ligne a et les fils de terre d dl e el.
Le fil de ligne est en réalité parcouru par deux courants
dans des sens opposés, de sorte qu'il est dans un état
apparemment neutre, et donc la non-interception des messages peut
être effectuée pour la raison que si un récepteur
est interpolé en tout point de la ligne , ledit récepteur
recevrait deux courants dans des sens opposés qui se neutraliseraient
Chaque station est également équipée d'un appareil
de réception constitué d'un commutateur h relié
au fil de ligne a et le permettant, lorsqu'il est enfoncé.
le courant de l'émetteur pour passer dans un fil i conduisant
directement à l'un des fils de terre (d1 par exemple) et dans
lequel est interpolé l'instrument récepteur j.
Pour recevoir des signaux émis par la station émettrice,
il est nécessaire que le levier de commutation h soit maintenu
enfoncé, de manière à faire passer le courant
de la station émettrice dans le fil i en liaison avec l'instrument
récepteur.
Les connexions peuvent également être établies
de telle manière que lorsque le commutateur h est dans sa position
normale, il coupe le fil 'a et relie le fil i à la partie dudit
fil qui mène à l'autre poste; dans ce cas, pour émettre
un signal, il est nécessaire d'appuyer au préalable
sur le levier de collecteur h afin de rétablir la continuité
du fil de ligne et l'opérateur agit alors sur le levier à
clé comme indiqué ci-dessus.
Mon agencement s'applique également aux messages téléphoniques
comme cela sera maintenant expliqué en référence
à la figure 2. L'instrument émetteur g est dans ce cas
remplacé par un microphone 1 et l'instrument récepteur
j est remplacé par un récepteur téléphonique
il le fonctionnement de l'agencement est exactement le même
que celui décrit ci-dessus.
Les vibrations du microphone coupent le court-circuit et le courant
de la source locale d'électricité passe sur le fil de
ligne a et les fils de terre d d1e e1 comme indiqué précédemment,
Le message téléphonique est reçu de la même
manière que précédemment grâce à
l'intervention du commutateur h qui fait passer le courant émis
de la station émettrice à l'instrument de réception
téléphonique j1.
Le fil de ligne peut également être alimenté par
des courants d'induction comme indiqué sur la figure 3.
Le circuit local dans lequel se trouve l'appareil émetteur
(par exemple, le microphone g1). est inséré, un enroulement
primaire k entourant un noyau central en fer doux ,, ou faisceau de
fils, 1 qui est en outre pourvu de deux enroulements secondaires mn
dans des sens opposés. Le fil de ligne a est connecté
à chacun de ces enroulements secondaires aux deux extrémités
en n1 de polarité opposée et les extrémités
opposées m2 n2 sont connectées aux fils de terre clt
c ex de la manière déjà expliquée.
Lors du fonctionnement de l'appareil émetteur ou lors de la
prise de parole dans le microphone par exemple, des courants d'induction
sont générés dans les enroulements secondaires
mn et ils affectent alors l'appareil de réception 1 au poste
de réception comme déjà indiqué. L'enroulement
primaire et les deux enroulements secondaires peuvent avoir les trois
fils enroulés dans le même sens sur le noyau de fer doux
et les deux extrémités des circonvolutions primaires
sont connectées au circuit local dans lequel est interpolé
l'émetteur tandis que deux extrémités de polarités
opposées de les circonvolutions secondaires sont reliées
à la ligne et les deux autres à la terre comme expliqué
précédemment.
Dans ma transmission améliorée, arrangez le. deux fils
de terre à chacun. la station doit être d'autant plus
éloignée l'une de l'autre que la distance est longue
entre les deux stations pour que la résistance de la terre
entre lesdits fils de terre soit suffisante pour faire traverser le
seul fil de ligne par la plus grande quantité possible de le
courant.
Afin de réduire au maximum la distance entre
les fils de terre, le début du fil de ligne unique a et les
fils d d1 menant à la terre sont avantageusement écartés
à distance avant l'instrument émetteur et l'instrument
récepteur respectivement au niveau télégraphique
ou téléphonique. et permettre ainsi de rapprocher les
deux liaisons terrestres des deux stations télégraphiques
ou téléphoniques.
La station télégraphique ou téléphonique
est alors divisée et l'instrument émetteur est relié
à l'aimant avec ses prises de terre et le fil de ligne z par
deux fils conducteurs k 'k2 reliés aux extrémités
des convolutions qui génèrent des courants d'induction
dans les enroulements secondaires mn (Figure 4).
Le courant envoyé dans les fils conducteurs k1 k2 .et, traversant
les circonvolutions k peut être lui-même un courant induit
généré dans la bobine k3 lorsqu'un courant provenant
de la source d'électricité c traverse la bobine primaire
ou par l'action de l'émetteur microphone f / I par exemple.
Dans le cas où la distance de la station émettrice télégraphique
ou téléphonique à ses prises de terre n'est pas
trop excessive, le courant traversant les conducteurs k le2 au lieu
de. étant un courant d'induction peut être fourni directement
par la) source, d'électricité de cette station, et l'instrument
émetteur naturellement (microphone ou clé) et la source
d'électricité sont alors placés directement dans
le circuit leI kS.
Un interrupteur Il interpolé dans le conducteur k1 permet de
couper le circuit en conduisant à la bobine secondaire k3 et
de fermer le circuit pour dans le conducteur i conduisant au conducteur
3 dans lequel est interpolé l'instrument récepteur j1.
Ainsi la bobine k est soit inductrice, soit induction selon qu'il
y a émission ou réception.
Il doit être bien entendu que mon système de transmission
est entièrement indépendant de la nature de l'appareil
télégraphique ou téléphonique utilisé
avec celui-ci, et que la source d'électricité aux stations
peut être de toute nature convenable,
sommaire
GB189706773 Améliorations des connexions des instruments
téléphoniques et télégraphiques aux lignes
conductrices. 15 mars 1897
Les lignes télégraphiques et téléphoniques
sont agencées de telle sorte que toute paire de lignes portant
des instruments puisse être utilisée comme fil ou retour
pour un autre ensemble d'instruments sans interférence. Ainsi,
à titre d'exemple, quatre circuits métalliques transportent
individuellement quatre ensembles d'instruments séparés
mais peuvent avoir des circuits A et B, C et D, utilisés comme
d'autres circuits métalliques, ou A et B peuvent former un
conducteur et C et D un retour pour un septième circuit métallique.
La spécification décrit les instruments téléphoniques
utilisés sur les circuits métalliques et les instruments
télégraphiques ou téléphoniques insérés
dans les circuits de retour à la terre. La figure 1 montre
une paire de lignes L <1>, L <2> formant un circuit métallique
et pouvant être utilisées comme ligne avec un retour
de terre par L <3>, L <3>, les lignes L <2>étant
connecté à la boucle au centre de la bobine secondaire
S ', S <2> de la bobine d'induction X. L'instrument récepteur
est représenté dans un pont, tel que Z. Les positions
des instruments émetteurs T et récepteurs R peuvent
être inversé. Chaque côté d'une boucle métallique
peut également être utilisé comme ligne avec un
retour de terre.
La présente invention concerne la connexion
d'instruments téléphoniques et télégraphiques
à des lignes conductrices de telle sorte que plusieurs messages
téléphoniques et télégraphiques puissent
être transmis simultanément sans interférer les
uns avec les autres.
 |
La figure 1 des dessins annexés montre
schématiquement des connexions pour un téléphone
et également pour un autre téléphone ou
télégraphe à une double ligne conductrice.
La figure 2 montre une modification. La figure 3 montre comment
sept ensembles de connexions peuvent être appliqués
à quatre doubles lignes conductrices. La figure 4 montre
les connexions pour un téléphone et un télégraphe
à une seule ligne avec retour de terre. La
figure 5 montre les connexions pour téléphoner
sur deux lignes télégraphiques dont l'une forme
un retour métallique.
En se référant d'abord à la figure 1, les
deux lignes Ll L2 sont à chaque extrémité
connectées comme montré en X à travers
deux bobines secondaires égales 8 1 et s 2 enroulées
avec une bobine primaire P qui est en circuit avec un émetteur
téléphonique T et une batterie locale B.
Les lignes L1 L2 sont ainsi reliées aux bobines secondaires
8 1 s 2 que les courants induits dans les lignes par l'émetteur
téléphonique sont toujours de sens opposés.
Le récepteur téléphonique R, comme montré
en Z, est en circuit avec une bobine secondaire 8 3 enroulée
avec une bobine primaire p reliant les deux lignes L1 L2.
En un point l intermédiaire des bobines s1 s2 une troisième
ligne L3 est connectée, cette ligne étant utilisée
pour la transmission téléphonique ou télégraphique.
Lorsque l'un ou l'autre des émetteurs téléphoniques
T est utilisé, les courants induits traversent la bobine
primaire p provoquant ainsi l'action des récepteurs R.
Mais si un courant circule par L3, il doit circuler dans des
sens opposés à travers 8 1 et s2, et donc dans
le même sens le long des lignes L1 L2 afin qu'il ne puisse
pas influencer les récepteurs R ni les émetteurs
T. A chaque extrémité une ligne L3 peut être
connecté comme indiqué par Y, Fig.2, au point
la intermédiaire à deux bobines primaires égales
p1 p2 qui relient les lignes Ll LO et sont enroulées
avec le secondaire S3 de chaque récepteur téléphonique
R.
Avec des connexions ainsi disposées, tout courant circulant
dans le même sens à travers les bobines pl p 2
actionne les récepteurs téléphoniques R,
tandis qu'un courant de L3 circule dans des sens opposés
à travers les bobines pl p 2 et est donc inefficace sur
les récepteurs R. En combinant plusieurs émetteurs
ordinaires T et plusieurs des agencements de récepteur
marqués Y sur la figure 2 avec un certain nombre de lignes
doubles comme montré sur la figure 3, un certain nombre
de messages peuvent être envoyés sur ces lignes
sans interférer les uns avec les autres.
|
En se référant ainsi à la figure
3, l'émetteur 1 fonctionne sur la paire de lignes Ll de la manière
habituelle, l'une de ces lignes servant de retour métallique.
De la même manière, l'émetteur 2 fonctionne sur
la paire L2, l'émetteur 4 sur la paire L 4 et l'émetteur
5 sur la paire L 5. Là encore, l'émetteur 3 fonctionne
à travers la paire de lignes L 3 et les deux paires L 1 et L
2, une de ces paires servant de retour métallique.
De la même manière, l'émetteur 6 fonctionne à
travers la paire de lignes L 6 et à travers les deux paires L
4 L 5. Enfin l'émetteur 7 fonctionne à travers les paires
de lignes L 7 et à travers les deux paires L 3 et L 6 et le.
quatre paires L 1 L 2 L 4 et L 5, deux de ces paires telles que L 4
et L 5 servant de retour métallique.
Il est évident que ce système peut être dupliqué
et redoublé de sorte qu'un émetteur peut être amené
à fonctionner sur 8 paires ou 16 paires de lignes ou autre multiple
de 4.
Comme le montre la figure 4, un téléphone et un télégraphe
sont connectés à une ligne L ayant retour de la terre.
Dans ce cas, X et Z sont les agencements téléphoniques
ainsi marqués sur la Fig.1, K est la clé, C la batterie
et D le récepteur pour télégraphier dans la connexion
de Z à la terre il y a une résistance réglable
F pour équilibrer celle de la ligne . Comme montré sur
la figure 5, deux ensembles des connexions télégraphiques
illustrées sur la figure 4 et deux lignes Ll L2 qui peuvent être
tous deux à un endroit ou chacun à un endroit différent
avec retour de terre sont combinés avec un agencement téléphonique.
L'émetteur T par son primaire P induit des courants dans les
secondaires $ 1 89 à la fois dans le même sens et donc
dans des sens opposés dans les lignes Ll L2. Les courants étant
de même sens en p1 et p2 agissent sur les secondaires 1 3 des
récepteurs 1 ,. Les courants du télégraphe gi se
divisant en 11 passent dans des sens opposés à travers
sl et pl et n'affectent donc pas les récepteurs téléphoniques.
Et de même les courants du télégraphe K2 sont inefficaces
sur les récepteurs.
Dans un souci de clarté, les bobines primaire et secondaire ont
été présentées sous la forme de nombreuses
lignes côte à côte.
Il doit être entendu cependant qu'ils sont enroulés dans
chaque cas sur une seule bobine.
Dans les Fig. 3,4 et 5, les dispositions ne sont représentées
qu'à une seule extrémité des lignes conductrices.
Il doit être entendu cependant qu'ils sont symétriquement
répétés à l'autre extrémité
comme le montrent les Fig. 1 et 2.
SPÉCIFICATION COMPLÈTE.
La présente invention concerne la connexion d'instruments téléphoniques
et télégraphiques à des lignes conductrices de
telle sorte que plusieurs messages téléphoniques et
télégraphiques puissent être transmis simultanément
sans interférer les uns avec les autres.
La figure 1 des dessins accompagnant mon cahier des charges provisoire
montre schématiquement les connexions pour un téléphone
et également pour un autre téléphone ou télégraphe
à une double ligne conductrice. La figure 2 montre une modification.
La figure 3 montre comment sept ensembles de connexions peuvent être
appliqués à quatre doubles conducteurs. lignes: La figure
4 montre les connexions pour un téléphone et un télégraphe
à une seule ligne avec retour de terre. La figure 5 montre
les connexions pour téléphoner sur deux lignes télégraphiques
dont l'une forme un retour métallique.
1 . En se référant d'abord à la figure 1, les
deux lignes Ll L2 sont à chaque extrémité connectées
comme montré en X à travers deux bobines secondaires
égales s1 et 8 2 enroulées avec une bobine primaire
P qui est en circuit avec un émetteur téléphonique
T et une batterie locale B.
Les lignes Ll L 2 sont connectés de telle sorte aux bobines
secondaires 8 1 s '"que les courants induits dans les lignes
par l'émetteur téléphonique sont toujours en
sens inverse.
Le récepteur téléphonique R, comme montré
en Z, est en circuit avec une bobine secondaire s3 enroulé
avec une bobine primaire p de haute résistance reliant les
deux lignes L1 L2.
Au point intermédiaire des bobines sr s 2 est connectée
une troisième ligne L3, cette ligne étant utilisée
pour la transmission téléphonique ou télégraphique.
Lorsque l'un ou l'autre des émetteurs téléphoniques
T est utilisé, les courants induits traversent la bobine primaire
p, provoquant ainsi l'action des récepteurs R. Mais si un courant
circule par L3, il doit circuler dans des sens opposés à
travers sl et s2, et donc dans le même sens le long des lignes
Ll L2 afin qu'il ne puisse pas influencer les récepteurs It
ni les émetteurs T.A chaque extrémité une ligne
L3 peut être , connecté comme indiqué par Y, figure
2, au point intermédiaire à deux bobines primaires égales
p1 p2 qui relient les lignes L1 L2 et sont enroulées avec le
secondaire 8 3 de chaque récepteur téléphonique
R.Avec des connexions ainsi agencées, tout courant circulant
dans le même sens à travers les bobines yx actionne les
récepteurs téléphoniques R, tandis qu'un courant
de L3 circule dans des sens opposés à travers les bobines
p1 p2 et est donc inefficace sur les récepteurs R. En combinant
plusieurs émetteurs ordinaires T et plusieurs des agencements
récepteurs marqués Y sur la figure 2 avec un certain
nombre de lignes doubles comme montré sur la figure 3, un certain
nombre de messages peuvent être envoyés sur ces lignes
sans interférer les uns avec les autres.En combinant plusieurs
émetteurs ordinaires T et plusieurs des agencements de récepteur
marqués Y sur la figure 2 avec un certain nombre de lignes
doubles comme montré sur la figure 3, un certain nombre de
messages peuvent être envoyés sur ces lignes sans interférer
les uns avec les autres.En combinant plusieurs émetteurs ordinaires
T et plusieurs des agencements de récepteur marqués
Y sur la figure 2 avec un certain nombre de lignes doubles comme montré
sur la figure 3, un certain nombre de messages peuvent être
envoyés sur ces lignes sans interférer les uns avec
les autres.
Ainsi en référence à la figure 3 l'émetteur
1 fonctionne sur la paire de lignes L 1 de manière usuelle,
l'une de ces lignes servant de retour métallique. De la même
manière l'émetteur 2 fonctionne sur la paire L 2, l'émetteur
4 sur la paire L 4 et l'émetteur 5 sur la paire L 5. Là
encore, l'émetteur 3 fonctionne à travers la paire de
lignes L 3 et les deux paires L 1 et L 2, l'une de ces paires servant
de retour métallique.
De la même manière, l'émetteur ti fonctionne à
travers la paire de lignes JLA b et à travers les deux paires
L 4 L 5. Enfin l'émetteur 7 fonctionne à travers les
paires de lignes L 7 et à travers les deux paires L 3 et L
6 et les quatre paires L 1 L 2 L 4 et L 5, deux de ces paires telles
que L 4 et L 5 servant de retour métallique.
Il est évident que ce système peut être dupliqué
et redoublé de sorte que) un émetteur peut être
amené à fonctionner sur 8 paires ou 16 paires de lignes
ou autre multiple de 4.
Comme le montre la figure 4, un téléphone et un télégraphe
sont connectés à une ligne L ayant retour de la terre.
Dans ce cas, X et Z sont les agencements téléphoniques
ainsi repérés sur la figure 1, K est la clé,
C la batterie et D le récepteur pour la télégraphie.
Dans la connexion de p à la terre, il existe
une résistance réglable F pour équilibrer celle
de la ligne. Comme montré sur la figure 5, deux ensembles des
connexions télégraphiques illustrées sur la figure
4 et deux lignes Ll L2 qui peuvent être à la fois à
un endroit ou chacune à un endroit différent avec retour
de terre sont combinés avec un seul agencement téléphonique.
L'émetteur T par son primaire P induit des courants dans les
secondaires sl S2 à la fois dans le même sens et donc
dans des sens opposés dans les lignes L1 L2. Les courants étant
de même sens en pI et pS agissent sur les secondaires i1 des
récepteurs It.
Les courants du télégraphe K1 se divisant en 1 1 passent
en sens opposés par sl et I> I et n'affectent donc pas les
récepteurs téléphoniques. Et de même les
courants du télégraphe K2 sont inefficaces sur les récepteurs.
Les connexions de p1 et p2 à la terre peuvent avoir des résistances
appropriées comme montré en F sur la figure 4.
Par souci de clarté, les bobines primaire et secondaire ont
été représentées sous la forme de nombreuses
lignes côte à côte.
Il doit être entendu cependant qu'ils sont enroulés dans
chaque cas sur une seule bobine.
Sur les figures 3, 4 et 5, les agencements sont représentés
à une seule extrémité des lignes conductrices.
Il doit être entendu cependant qu'ils sont répétés
symétriquement à l'autre extrémité comme
le montrent les figures 1 et 2.,
sommaire
FR382386 Perfectionnements aux bobines d'induction
5 février 1908
La présente invention concerne une bobine d'induction
améliorée afin d'obtenir des courants d'induction dans
des périodes très courtes. Ces courants, dont les durées
sont extrêmement courtes 5, bénéficient de propriétés
particulières qui trouvent application principalement dans
la télégraphie et la téléphonie sans fil.
Cette bobine d'induction se caractérise
par l'absence du noyau magnétique et du mode d'enroulement
de l'inducteur et de l'armature sur une bobine de courte longueur,
mais d'un très grand diamètre, la bobine d'inductance
étant pratiquement noyée au 1er mai le bobinage
d'induit.
Le schéma de dessin annexé représente par
exemple une bobine d'induction selon la présente invention.
figure. 1 est une coupe selon la ligne A-B de la Fig. 2;
figure. 2 est un plan.
Comme le montrent ces dessins, cette bobine a un très grand
diamètre pouvant aller jusqu'à plusieurs mètres;
26 dessine le rond, mais il pourrait également être
carré ou affecter toute autre forme polygonale. Cette bobine
est très longue car tous les fils d'enroulement sont logés
à sa périphérie dans une rainure b appropriée;
on comprendra par 3o que l'on commence à enrouler sur le
rebord de ce genre de poulie une première couche de fil
induit E puis recouverte d'un isolant approprié et d on
enroule sur cette couche isolante le fil inducteur E qui est recouvert
d'une autre 35 couche isolée; on réuuïi uêUi
les couches isolantes d et f, de manière à isoler
les inductances e et termine la bobine par un enroulement externe
en fil d'armature g. ko
On réalise de cette manière un anneau de gros diamètre
composé de fils induits c, g, contenant un noyau central
d'un fils d'inductances adéquatement isolés.
La machine comporte quatre bornes 5 h dont deux sont utilisées
pour fixer les extrémités de l'enroulement d'induit
et les deux autres extrémités de l'enroulement d'inducteur.
On peut disposer plusieurs fils induits et fils plus inducteurs;
dans ce cas, chaque borne 5o h sera remplacée par un interrupteur
multiple qui réunira les différentes armatures allumées,
et les différentes inductances allumées, en tension
ou au contraire en quantité, suivant les effets que l'on
souhaite obtenir. |
 |
sommaire
FR377785 Dispositif de transmission téléphonique
14 septembre 1907
Système de transmission téléphonique
de montage de chaque émetteur de station et / ou de récepteurs
en série et pour amener les deux stations par trois fils de
ligne, y compris 5o premier deux respectivement ensemble les pôles
des deux stations et le troisième est monté dérivation
en un point de chaque station prise entre les émetteurs et
le ou les récepteurs, un voire deux de ces trois fils peuvent
être remplacés par des atterrissages équivalents.
La présente invention propose un moyen d'augmenter la distance
à laquelle il est possible d'appeler ou d'augmenter l'intensité
du son émis à une distance 5 donnée.
 |
Lors de l'installation d'une ligne
téléphonique ordinaire, il est d'usage d'amener
les deux postes à l'aide de deux fils, un pour le second
tour pour le retour; en-10 il n'y a pas d'induction de peur des
lignes voisines, une reliant les deux stations par un fil seul
et retour par le sol à chaque station.
figure. 1 du dessin annexé montre la
disposition la plus simple 15 d'une ligne régulière
à deux fils; il y en a un à chaque poste de téléphone
magnétique, a1 rencontré par les deux fils des
lignes c et d; lorsque vous parlez au téléphone,
le téléphone est un récepteur 30 a1 et
vice versa; cette disposition est tout à fait satisfaisante
du point de vue de la transmission proprement dite, mais elle
présente l'inconvénient évident que les
deux parties ne peuvent pas interrompre l'interférence,
chacune écoutant nécessairement pendant que l'autre
parle.
Pour pallier cet inconvénient, il a tout
de suite proposé d'avoir à chaque poste émetteur
un téléphone ou a 1 et un récepteur ou
téléphone b bl, permettant 3 aux deux interlocuteurs
de parler tout en écoutant. Cette solution souffre d'un
inconvénient du point de vue de la transmission; en fait,
comme le montre la Fig.2, les quatre téléphones
a, b, a}, bx 3 sont montés en série sur la ligne
cd, de sorte que le son émis par un émetteur a
ou a1 voyage nécessairement en plus intéressant
b1 ou b récepteur les deux autres téléphones
du circuit. Le circuit téléphonique h présente
donc inutilement une résistance élevée
qui réagit de manière désavantageuse soit
sur la longueur possible de la ligne cd, soit sur l'intensité
du son transmis à une longueur de ligne donnée.
La présente invention a pour objet un
dispositif easy positif h permettant de remédier aux
inconvénients tant des deux systèmes de transmission
selon les figures 1 et 2 que de réaliser un nouveau système
de transmission téléphonique offrant à
la fois les avantages des 5 deux systèmes connus.
Comme le montre la figure 3, cette invention
consiste simplement à disposer entre les deux stations
un troisième fil de ligne e se terminant à chaque
station entre l'émetteur téléphonique 5
tor a ou a1 et le téléphone récepteur b
ou bl. Dans ces conditions le mur envoyé par "sera
entièrement reçu par b1 sans franchir inutilement
b et a1 la résistance et inversement la parole transmise
par a1 sera entièrement reçue par b."
|
La nécessité d'une ligne à trois
fils c, d, e 5 est requise lorsque la ligne est autour d'autres transmissions;
mais lorsqu'il est isolé, il peut simplifier la transmission
comme le montre la Fig. k ou 5.
Selon la Fig. 6, la ligne filaire dérivée o-tion e est
supprimée et remplacée par une masse f et f1 prise à
chaque station entre l'émetteur et le récepteur.
Dans des cas particuliers, il est même possible de réduire
la ligne à un seul fil e en '5 avec chaque station deux atterrissages
g, h et # 1, h1), le récepteur et l'émetteur étant
chacun disposés station en série entre les deux atterrissages;
dans ces conditions, les deux conducteurs c et d sont formés
par o la masse et il n'y a plus un seul fil de ligne e.
Dans ce qui précède, pour simplifier la description
et les dessins, nous avons supposé l'utilisation exclusive
de téléphones magnétiques; 5 La Fig. 6 montre
le schéma de circuit dans le cas des téléphones
à induction. Dans ce cas chaque position i comprend une batterie,
un microphone émetteur et primaire k d'une bobine d'induction,
montés en série o sur un circuit fermé; le circuit
de ligne c, d comprend des écouteurs en série b, b et
b1, b1 et côté et ll de la bobine. Dans ce
Si l'invention consiste à attacher le fil de ligne e dérivé
entre les deux récepteurs b, b ou i1, A1 d'une part et le secondaire
ou ll 35 d'autre part, comme le montre la fig. 6.
Le résultat de ces dispositions se résume à la
possibilité de quadrupler l'intensité de la réception
pour une longueur de ligne donnée, ou la longueur de la ligne
Zio en conservant la même intensité.
Nouveau mode de transmission sans fils des courants
télégraphiques et téléphoniques en employant
comme conducteurs la terre et l'eau
FR320267 5 décembre 1902
Pour comprendre notre invention, il est bon de se
rappeler que dans une ligne télégraphique ordinaire
un fil, plus ou moins isolé, d'un point à un autre,
communique avec la terre à chaque extrémité.
Une source d'alimentation; et une unité émettrice est
prise en sandwich entre la ligne de départ et la terre. À
l'arrivée, un récepteur communique également
avec la ligne et la terre.
On sait que chacun des poteaux supportant la ligne
laisse passer une petite quantité de puissance qui se perd
dans le sol. Une grande quantité de courant est maintenant
perdue plus 1 grand 5que la distance entre les stations est elle-même
plus grande et, par conséquent, le nombre de pôles est
plus élevé. La perte peut devenir considérable,
sans empêcher les transmissions. Il peut même arriver
que le fil ao sans être rompu, traîne sur terre là
pendant une certaine longueur de fils'parcours et continue à
permettre le courant d'un passage à un autre, quoique très
faiblement, l'expérience nous a prouvé que le conducteur
non isolé pourrait même, pour certaines distances, être
simplement placé au sol et que les transmissions seraient néanmoins
possibles.
on est capable de continuer, transmettre des signaux est grandement
augmenté si, à chaque extrémité, le fil
non isolé touchant le sol, se rencontre dans un fil bien isolé
qui prolonge la ligne jusqu'à une masse jusqu'au point où
sont donc émetteurs et récepteurs.
On comprend que le sol à l'extrémité d'une partie
isolée oblige le courant de retour à s'enfoncer dans
les profondeurs de la terre ho et que, par conséquent, il y
a un point de fermeture infiniment petit où le fil non isolé
touche le sol. En d'autres termes, la perte subie au contact du sol,
le fil non isolé, est encore inférieure à chaque
extrémité du fil non isolé, donc un fil isolé
du sol à une plus grande distance.
Par conséquent, si le fil de plomb, au lieu du fer, est constitué
d'un matériau beaucoup moins conducteur, le charbon, par exemple,
tout serait de la même manière. Nous avons également
reconnu que même lorsque le fer, le charbon ou tout autre matériau
similaire, sont remplacés par de l'eau placée, du sel
si possible, et, par conséquent, par une étendue de
mer ou toute autre partie de mer dont la disposition géographique
se prête à ce genre d'installation.
Lorsqu'il s'agit de franchir un bras de mer, le prolongement de ligne
isolé est placé de préférence dans le
sens de la ligne droite passant par les deux points à relier.
Dans le cas d'une transmission sur un rôle, les ligues isolées
seront perpendiculaires à la ligne droite joignant les deux
stations.
Les lignes isolées ne seront pas trop longues et, par conséquent,
fourniront non seulement d'un océan à l'autre, mais
entre deux points à l'intérieur des terres. L'épaisseur
de la couche d'eau salée étant à des profondeurs
encore plus grandes, seulement environ l'épaisseur de la masse
terrestre, les proportions restent entre l'eau et la terre adéquate
pour que l'eau joue exactement le même rôle que le conducteur
non isolé touchant le sol.
Pour rendre nos explications aussi
claires que possible, nous avons schématisé, dans
le dessin annexé, une installation dans laquelle notre
invention est appliquée.
A est la mer (Fig. I) et 13 b sont les deux rives, c et d les
deux stations, e et f isolées, et les plaques situées
dans l'eau, i et il met à jour la terre.
On voit que la mer est une extension isolée des fils e
et f, et qu'elle joue le rôle d'un conducteur non isolé
reposant sur le plancher.
Pour clarifier comment 3 o opère la propagation des courants
électriques, nous supposons une ligne isolée (Fig.
A) à moins de deux m et n mis à la terre. Si le
courant se déplace dans la direction du llèche,
l'électricité arrivant à terre dans n sphères
fleuries 3.) concentriques o, p, q, etc., tous les points de chaque
sphère recevant simultanément la même quantité
d'électricité si le milieu de propagation est uniforme.
Être à la terre en r donc recevoir le courant le
long de la terre m, r et si cette terre est reliée par
une ligne par t, s la terre à une autre, même très
proche d'elle, le courant trouvant moins de résistance
dans la ligne isolée au milieu ( Jun sépare les
deux réseaux terrestres, suivra cette ligne, comme indiqué
en llèche a. Il sera ainsi possible d'établir une
communication sans fil entre tout point de la ligne / sur lequel
se trouvent des appareils émetteurs, et tout point sur
la ligne T qui sera récepteurs appareds .
Pour établir simultanément sur chacune des ligues
et t, un émetteur de position et un récepteur nécessiteront
que la ligne soit de la même longueur que la ligne 1, JJ
comme indiqué sur la figure 3.
Si le support s'avère être deux fois plus conducteur
entre h et r entre m et n d'une part, et entre r et s d'autre
part, les lignes l et t peuvent avoir la moitié de la longueur
de la distance entre les points n et r (fig.û).
Bien sûr, les transmissions basées sur le principe
que nous avons indiqué, peuvent être faites en prenant
comme con bo différents producteurs, non seulement la terre
et l'eau de mer, mais la terre et l'air, la terre dans ce cas,
agissant comme un meilleur conducteur apporté par l'air;
le fil isolé de la terre conduit à l'air à
chaque poste 7. tion à une distance plus ou moins éloignée
en fonction de la distance que cela prendrait. Il est évident
que cette dernière disposition, la mer et l'eau douce remplacent
avantageusement la terre. 7 ° |
 |
En résumé, nous revendiquons comme propriété
exclusive, le nouveau procédé, décrit ci-dessus,
la transmission sans courants télégraphiques et téléphoniques,
ledit mode de transmission consistant à faire passer dans un
milieu conducteur le courant émis par la station de base et
à recevoir à l'arrivée dans ce courant un fil
isolé de longueur appropriée, qui sont pris en sandwich
les récepteurs et aboutissant à un deuxième milieu
dont la conductivité spécifique est inférieure
à celle du premier milieu, mais passe la quantité totale
d'électricité en raison de sa masse qui est supérieure
à ce premier milieu, un isolé fil, sur lequel les dispositifs
de transmission conduisent également dans le second support,
de sorte que le premier support est une extension de deux lignes isolées,
et le second support fait office de fil de retour,les deux lignes
isolées à utiliser à la fois pour l'expédition
et pour la réception.
sommaire
Un nouveau mode de transmission et de réception des courants
télégraphiques et téléphoniques sans autre
conducteur que la terre ou l'eau
FR318007 3 octobre 1902
Dans un circuit électrique composé d'une
source d'alimentation et d'un conducteur métallique dont les
extrémités sont mises à la terre, ce qui ferme
le circuit, la terre agit comme 5 conducteur non seulement une ligne
droite entre les deux paliers, mais sur une étendue presque
infinie ; Cependant, avec une densité de puissance décroissant
proportionnellement à la distance.
Si des parties du sol sont de meilleurs conducteurs que d'autres (à
cause de l'humidité, de la salinité de l'eau ou de toute
autre cause), le courant passe de préférence à
travers ces parties en décrivant des courbes ou des virages
comme le fait une rivière qui suit les pentes du terrain.
Il s'ensuit que si, sur une partie du terrain servant de conducteur
de retour, elle crée artificiellement une meilleure ligne conductrice
que la terre, elle sera traversée par le courant de préférence
à toute autre partie inférieure conductrice.
L'effet est beaucoup plus complet et permet de capter le courant et
de constater son existence lorsque la meilleure ligne conductrice
est isolée de la terre et communique avec elle par ses extrémités.
Le courant qui aurait traversé le terrain en trouvant un sage
pas plus facile par le fil suit de préférence et restaure
beaucoup plus rapidement la neutralité électrique du
sol. Il est isolé en coupant la ligne en tout point qui peut
être inséré au cours des instruments courants
(récepteurs télégraphiques ou téléphoniques)
qui peuvent détecter son existence.
On comprend que si la ligne artificielle isolée est un très
bon conducteur, si ses extrémités sont reliées
à des surfaces métalliques suffisamment grandes en contact
avec le sol, la fermeture du circuit amènera la masse à
être dans un état de neutralité électrique
absolue.
Dans ces conditions, si un courant électrique est envoyé
par intermittence dans la ligne métallique, chargez la terre,
pour chaque émission, une certaine quantité d'électricité
se décharge instantanément dans la ligne artificielle
isolée.
L'expérience a montré que ces phénomènes
peuvent se produire même lorsqu'il n'y a presque pas d'écart
entre la station émettrice des deux atterrissages ou entre
deux plaques qui collectent la diatribe de couleur traversant la ligne
isolent la station de réception, à la condition qu'à
chaque station les plaques qui mènent à les deux plages
sont soigneusement isolées l'une de l'autre au moyen d'une
séparation isolante suffisamment épaisse pour qu'aucun
effet d'induction ou de condensation l'une sur l'autre ne puisse se
produire, et assez grande par rapport aux dimensions des plaques pour
éviter que le courant ne se referme sur lui-même trop
près du commencer. Le courant est tellement obligé de
s'épanouir «à droite et à gauche des atterrissages,
et le point où les ondes électriques positives et négatives
commencent à atteindre est considérablement lié.Je
peux encore augmenter l'effet recherché en minimisant la fermeture
actuelle sur elle-même grâce à un certain nombre
de parois isolantes disposées sous les plaques pour éviterferme-i
o ture du circuit par la profondeur de la terre, du côté
opposé à celui où la transmission doit être
reçue et, si nécessaire, au-dessus des plaques.
En général, les plaques seront placées verticalement
de part et d'autre d'une paroi isolante, leurs plus petites dimensions
étant tournées dans la position opposée.
Je peux aussi utiliser un large tube isolant divisé en deux
par une paroi épaisse normale aux générateurs
isolés. Les plaques seront placées dos à dos
de part et d'autre de cette cloison à l'intérieur du
tube et mises en communication avec le conducteur extérieur
par l'intermédiaire de fils isolés .
Le tube peut être rectiligne, ou être constitué
de deux parties formant entre elles un angle correctement calculé
pour que le circuit fermé par la terre se fasse presque entièrement
dans le 3 o où le courant est envoyé.
Il est évident que l'installation est complétée
par des émetteurs et des récepteurs télégraphiques
ou téléphoniques qui peuvent être quelconques,
comme source d'électricité.
Je revendique comme ma nouvelle propriété
exclusive ci-dessus décrite la transmission et la réception
des courants télégraphiques et téléphoniques
sans autre conducteur que la terre ou l'eau, ledit système
de séparation des deux paliers à chaque position par
un matériau isolant établi pour éviter la production
de phénomènes d'induction de condensation et du circuit
se fermant sur ou par la profondeur de la terre, et forcer l'air à
s'épanouir à droite et à gauche, de sorte qu'ils
puissent commencer à se rapprocher et à s'éloigner
de la station émettrice, les deux mis à la terre de
chaque position peuvent ainsi sans inconvénients, se déplacer
vers un une autre jusqu'à ce qu'ils s'adaptent de chaque côté
du même mur isolant.
1911 D'Arsonval et Ferrié participent aux
premières émissions de TSF et aux premiers essais de
téléphone sans fil.
sommaire
La lampe diode, appelée audion par son inventeur
Lee de Forest, permettant de moduler le signal radio, sera perfectionnée
par les militaires et les industriels en lampe à trois électrodes.
Au Japon, le premier appareil sans fil permettant aux gens de parler
à une autre personne éloignée était le
radiotéléphone TYK. Il a été créé
par Annaka Electric Co., le précurseur d'Anritsu, en 1914.
  
Radio-téléphone T.Y.K. vers. 1915, Annaka Electrical
Works, Tokyo, réalisé par les inventeurs Torikata, Yokoyama
et Kitamura -
À cette époque, lindustrialisation était
en cours au Japon et le transport maritime devenait ainsi une industrie
encore plus cruciale.
Les premières installations radiotéléphoniques
TYK ont donc été implantées autour de la baie
d'Ise dans la préfecture de Mie, avec des équipements
installés dans la ville côtière de Toba et sur
deux îles voisines, Kami-shima et Toshi-jima. Les premiers mots
prononcés furent : « Le temps est clair aujourd'hui.
Le temps d'aujourd'hui est clair. C'est Toba. C'est Toba, Kami-shima,
Kami-shima. Le système était principalement utilisé
pour les notifications de passage des navires voyageant dans la baie,
ce qui garantissait une plus grande sécurité. Notre
première technologie de radiotéléphone TYK reste
une partie importante de l'histoire des télécommunications
: il s'agissait du premier appareil de télécommunication
vocale sans fil au monde et du précurseur des appareils mobiles
que nous utilisons aujourd'hui.
Puis a triode équipe à partir de 1915
de nombreux appareils de détection et damplification
et sera à lorigine de nombreux progrès en radiodiffusion.
Dès 1921 aux Etats-Unis, et dès 1922 en France, commencent
les premières émissions régulières de
radiodiffusion.
Le développement de la radiotélégraphie apparut
comme un remède permettant à la France de s’affranchir de la tutelle
étrangère. la station intercontinentale de Saint-Assise, près
de Melun dont l'exploitation fut assurée par la société «Radio-France
» vit le jour en 1921.
Le
château de Sainte-Assise, devenu le centre radioélectrique
en 1921.
Il comporte trois stations : une pour les communications européennes
(station continentale), une pour les communications transocéaniques
(station transcontinentale) et une pour les communications avec Londres
et Madrid (station à lampes). Cest alors lémetteur
le plus puissant au monde.
Cest dailleurs à partir de celui-ci quest
réalisée la première émission radiophonique
de France, le 26 novembre 1921, avec linterprétation
spectaculaire de la Marseillaise par Yvonne Brothier suivie de la
diffusion des émissions régulières du poste de
la tour Eiffel, lhistoire de la radio saccélère.
Le trafic radiotélégraphique originaire de France avoisinera les 2
millions et demi de télégrammes en 1919. et remonte en 1937 (2,8
millions) pour tomber à 1 million en 1940, par suite de la guerre.
Ainsi s’amorca le processus de disparition des câbles télégraphiques
sous-marins
Pendant la seconde guerre mondiale, lémetteur de
Sainte-Assise est occupé par la Marine allemande pour communiquer
avec ses sous-marins et nest victime daucun bombardement.
Après la Libération, le centre radioélectrique
est repris par ladministration des Postes, Télégraphes
et Téléphones. En 1991, une parcelle du domaine de Sainte-Assise
est vendue à la Marine Nationale et devient un territoire militaire.
Le reste du domaine, cédé par la société
Orange à la région Île-de-France, est une réserve
naturelle depuis 2009.
Un peu plus d'histoire
|
Par une Convention du 29 octobre 1920, la Compagnie
Générale de Télégraphie Sans Fil
avait obtenu du Secrétaire d'Etat de l'époque,
M Deschamps, une concession pour l'exploitation de liaisons
internationales "avec les Sociétés privées
ou Administrations d'Etat avec lesquelles la Société
avait conclu ou viendrait à conclure des accords de trafic".
Les stations d'émission du centre de Sainte-Assise, avec
leurs antennes, couvrent une superficie de 450 hectares.
sommaire
Le contrat auquel était assignée
une durée de 30 ans, partant du 1er janvier de l'année
qui devait suivre l'achèvement des travaux, prévoyait
l'érection, par la Compagnie, dans un délai de
deux ans, après la signature de celui-ci, de deux stations
distinctes : l'une pour les liaisons avec les pays d'Europe,
l'autre pour les liaisons avec les pays hors d'Europe.Il était
stipulé qu'en fin de Convention, la totalité des
immeubles de la Société aussi bien que les installations
réalisées pour l'exécution du contrat reviendraient
gratuitement à l'Etat.
Après l'adoption du site de Sainte-Assise,
d'une superficie de 450 hectares, la Compagnie Générale
de Télégraphie Sans Fil décida d'y réunir
les deux stations dénommées par la suite Transcontinentale
et Continentale, mais qui, dans le projet initial, avaient été
conçues comme entièrement distinctes; les installations
d'énergie de secours, par exemple, étaient indépendantes
les unes des autres. Elle créa, en outre, pour lui être
substituée dans l'exécution du contrat, une filiale
spécialisée sous le nom de Radio-France.
Remarquablement organisés et de surcroît favorisés
en 1921 par un été exceptionnel, les travaux permirent
d'aboutir à la mise en service de la Station Continentale
en octobre 1921 et à celle de la Station Intercontinentale
le 7 août 1922. Entre temps, la Compagnie avait obtenu
l'autorisation d'ouvrir un service radiotélégraphique
avec Londres et un émetteur à lampes de quelques
centaines de watts, installé provisoirement dans les
communs de Sainte-Assise, pouvait fonctionner en permanence
à partir du printemps de 1921. Vers 1925, Radio-France
disposait ainsi de cinq postes de transmission commandés
chacun directement par la table de trafic de la liaison correspondante
du Bureau Central de la Compagnie à Paris :
- Le poste de transmission Paris-Londres : 3 chevaux, 2.000
à 3.000 mètres de longueur d'onde.
- Un poste double à la Station Continentale permettant
deux liaisons simultanées pour l'Europe et l'Asie Mineure:
25 kW par élément et 9.000 à 10.000 mètres
de longueur d'onde.
- Un poste double à la Station Transcontinentale permettant
deux liaisons simultanées pour l'Amérique du Nord
et l'Amérique du Sud, la Chine et le Japon : 2 éléments
de 250 kW et 2 éléments de 500 kW, 15.000 mètres
et 20.000 mètres de longueur d'onde, l'un servant de
secours à l'autre. A l'apparition des ondes courtes et
en marge du contrat, la Compagnie fit l'acquisition de 6 émetteurs
à ondes courtes; quatre émetteurs étaient
du type double à autoexcitation de la Société
Française de Radioélectricité, un cinquième
provenant de la compagnie anglaise Marconi Wireless était
du même modèle que ceux avec lesquels cette compagnie
avait équipé le réseau impérial
britannique. Le sixème émetteur fabriqué
par la Société Française de Radioélectricité
et stabilisé par un oscillateur à quartz vint
s'y ajouter vers 1929. Les puissances rayonnées étaient
de l'ordre d'une dizaine de kilowatts. Les longueurs d'onde
allaient de quinze à soixante mètres. Par la suite,
d'autres émetteurs appartenant à la Compagnie
Générale de T.S.F. et dont Radio-France assurait
l'exploitation en régie, avaient été installés
dans les locaux des Stations Continentale et Transcontinentale;
ils étaient affectés à des liaisons radiotéléphoniques
vers l'Amérique du Sud et l'ExtrêmeOrient.
Aux alentours de 1936, les émetteurs à autoexcitation
furent remplacés par des émetteurs pilotés
par quartz de conception simple et de réalisation robuste
construits par RadioFrance à l'atelier de Sainte-Assise.
En 1939, à la déclaration de guerre, le Centre
d'émission de Sainte-Assise assurait les communications
radiotélégraphiques avec l'Amérique du
Sud, la Chine, le Japon, le ProcheOrient et les principales
capitales d'Europe. En radiotéléphonie, mais sous
le couvert d'accords extracontractuels entre la Compagnie Générale
de Télégraphie Sans Fil et l'Administration, les
liaisons étaient assurées avec Buenos-Aires, Rio
de Janeiro, Saigon, Le Caire et les paquebots du Sud-Atlantique
pendant toutes leurs traversées.
Au moment de la Libération, les Allemands détruisirent
complètement la grande Station Transcontinentale, bâtiment
compris. Ils n'avaient toutefois fait qu'endommager superficiellement
le matériel des autres stations, mettant cependant le
Centre dans l'incapacité provisoire d'assurer une seule
liaison. Cet état de choses ne dura pas longtemps car,
en moins de quinze jours, deux liaisons à ondes courtes
pour New York et Londres étaient utilisées par
le G.Q.G. allié et la liaison commerciale reprenait avec
l'Angleterre grâce à la remise en état de
deux postes à lampes de 3 kilowatts à ondes moyennes.
Petit à petit, les émetteurs à ondes courtes
étaient reconstitués et permettaient une augmentation
progressive du nombre des voies exploitées. L'exploitation
sur ondes moyennes avait de même été rétablie
avec deux émetteurs à lampes et deux alternateurs
haute fréquence de 25 kW sur 9.000 à 10.000 mètres
de longueur d'onde; un émetteur appartenant à
l'Administration et qui avait été installé
successivement à la station de Pontoise puis à
celle de Croix d'Hins était venu s'y ajouter.
De 1945 à 1954, le nombre des émetteurs à
ondes courtes de télégraphie fut porté
à 18, auquel s'ajoutaient deux émetteurs de modèle
ancien, susceptibles de travailler en téléphonie
ainsi qu'un émetteur à bande latérale unique
(BLU) du type 1944-47 à cinq longueurs d'ondes préréglées.
Au titre des travaux de reconstruction, financés par
le Ministère de la Reconstruction et de l'Urbanisme,
la Compagnie équipa, de 1950 à 1953, la Station
à ondes longues de deux alternateurs 250 kW Bethenod-Latour,
pouvant fonctionner jusqu'à 20 kHz (15.000 mètres
de longueur d'onde), ainsi qu'un émetteur à ondes
moyennes de 45 kW. En même temps, étaient également
installés un émetteur de 150 kW et un deuxième
de 45 kW appartenant l'un et l'autre à l'Administration.
Deux des 17 pylônes de 250 mètres existant avant
la guerre avaient été endommagés, douze
d'entre eux ont été maintenus à leur hauteur
initiale tandis que trois autres étaient déplacés
et raccourcis à 180 mètres pour supporter les
antennes des nouveaux émetteurs à ondes moyennes.
L'antenne principale est actuellement constituée par
quatre pyramides renversées, à base carrée
de 400 mètres de côté. Elle couvre, à
elle seule, une superficie de 64 hectares. Dès avant
et depuis la cessation des activités de la Compagnie
Radio-France, les dispositions prévues par la Direction
des Services Radioélectriques ont été orientées
vers l'adoption de solutions radicales; celles-ci visaient à
accélérer en matière d'exploitation, l'intégration
de Sainte-Assise dans le programme général d'entraide,
de développement et de modernisation des Stations du
Service. Deux ans avant la date prévue pour l'expiration
du contrat, l'exploitation des liaisons radiophototélégraphiques
pour le compte de la Compagnie Générale de T.S.F.
avait été interrompue; celle des liaisons radiotéléphoniques
le fut un an plus tard, soit au 1er janvier 1953, tandis que
la construction du bâtiment d'émission Nord-Ouest,
pour le compte de l'Administration, était amorcée.
Dans le courant de 1954, une partie des liaisons télégraphiques
de la Compagnie Radio-France fut transférée sur
les émetteurs plus modernes des autres Stations de l'Administration;
il fut ainsi possible d'interrompre complètement l'exploitation
de l'ancienne Station Continentale au moment même où
la livraison des premiers émetteurs BLI type 1954 permettait
d'ouvrir au service permanent le bâtiment Nord-Est de
Sainte-Assise; l'exploitation radiotéléphonique,
entièrement concentrée à Pontoise pendant
près de deux ans, fut répartie entre les deux
Centres.On devait opérer de même en 1956, en réduisant
l'exploitation du groupe des bâtiments Sud-Est à
l'entrée en service du bâtiment Nord-Ouest; ce
bâtiment était achevé et ouvert à
l'exploitation au mois de mars 1956. Le programme de construction
d'habitations, d'ateliers et de magasins adéquats était
exécuté et le troisième bâtiment
d'émission Sud-Ouest fut ouvert au service à partir
de 1959. Entre temps, les installations d'alimentation d'énergie
avaient été sensiblement améliorées
et renforcées.Une ligne haute tension entièrement
souterraine avait été mise en service entre Sainte-Assise
et le poste de sectionnement de l'Electricité de France
dit du "Pont de Mée", près de Melun.
La puissance de la centrale thermique a été portée
à 2.200 kW. L'ancien câble aéroporté
a été abandonné. Le nombre des circuits
de liaisons avec Paris a été augmenté et
ils ont été répartis entre deux puis trois
câbles souterrains entièrement distincts.En juillet
1970, le nombre des émetteurs installés est de
70 répartis comme suit :
Bâtiment Ondes Longues ou Nord-Est :
- 2 émetteurs, ondes myriamétriques de 125 kilowatts.
- 4 émetteurs, ondes kilométriques de 60 à
150 kilowatts.
- 6 émetteurs B.L.I., ondes décamétriques
de 35 kilowatts.
Bâtiment Nord-Ouest :
- 6 émetteurs B.L.I. ondes décamétriques
de 60 kilowatts.
- 15 émetteurs B.L.I. ondes décamétriques
de 35 kilowatts.Bâtiment Sud-Ouest :
- 23 émetteurs B.L.I. ondes décamétriques
de 20 kilowatts.Groupe Sud-Est (trois petits bâtiments)
:
- 14 émetteurs ondes décamétriques - télégraphie
mono-onde de 10 kilowatts. Tout en poursuivant l'extension des
installations, on s'attachait à maintenir la plus grande
homogénéïté possible dans l'équipement
général des bâtiments et, sauf impossibilité,
à la respecter rigoureusement à l'intérieur
de chaque salle. Pour les émetteurs du Groupe Sud-Est
enfin, on a poussé au maximum la recherche de la sécurité
de fonctionnement afin d'en rendre possible l'exploitation télécommandée
depuis le Bâtiment Sud-Ouest.Enfin, et parallèlement,
on entreprenait non seulement le développement des moyens
de contrôle afin d'en rendre l'utilisation instantanée
et de les mettre à la portée des exploitants,
mais encore celui des dispositifs de surveillance avec signalisation
automatique des défauts, tout ceci dans le cadre d'un
programme d'entraide méthodique et d'amélioration
commun aux différents Centres du Service. Parmi les principales
innovations apportées sur le plan technique, on citera
encore :
- Le développement systématique des grilles bifilaires
600 ohms de répartition des aériens et des losanges
doubles concentriques suivant la technique amorcée au
Centre de Pontoise.
- L'utilisation d'émetteurs à sortie coaxiale
avec passage de 60 ohms dissymétriques à 600 ohms
symétriques par des lignes exponentielles avec ligne
d'équilibrage et capacités série. Cette
technique doit permettre une commutation émetteurs-aériens
plus rapide et totalement indépendante du reste du trafic.
Le trafic du Centre de Sainte-Assise, étroitement associé
à celui des trois autres centres d'émission, comprend
:
Trafic point à point :
émissions radiotéléphoniques; émissions
radiotélégraphiques de type F1 F6 (duoplex); multiplex
harmoniques, TOR et MUX en direction de l'Afrique du Nord et
Centrale, des deux Amériques et de l'Asie.
Trafic de diffusion :
Ce trafic est utilisé par : les Agences de presse; la
Météorologie Nationale. bulletin et cartes météorologiques
(fac-similé); le Centre National d'Etudes Spatiales et
le Centre National d'Etudes des Télécommunications
pour des émissions spéciales à caractère
scientifique.
Il concerne plus particulièrement les ondes longues dont
les caractéristiques de propagation se prêtent
particulièrement bien à ce genre d'utilisation.
Quelques chiffres :
- une superficie de 450 hectares.
- 70 émetteurs de 10 à 250 kilowatts.
- des liaisons avec 45 pays répartis dans le monde entier.
- 132 antennes supportées par 377 pylônes de 25
à 250 mètres, reliées aux bâtiments
par 110 kms de feeders bifilaires.
- 11.000 mètres de bâtiments techniques.
- 14 kms de réseau routier dont 7 kms goudronnées.
Plus près de nous...
Le 4 août 1984, le lancement du premier satellite géostationnaire
de télécommunication français Télécom
1A fait entrer le centre de Saint Assise dans l'histoire de
la transmission par satellite, tandis que les transmissions
dites à ondes longues disparaissent peu à peu.
Le centre prend en charge l'exploitation et la maintenance de
stations terriennes du réseau de transmission de données
Télécom 1.
Le 31 décembre 1990, les deux derniers circuits radio-téléphoniques
avec les îles Commores sont arrêtés et l'exploitation
de la partie transmission ondes longues restante est donnée
à la Marine Nationale. L'antenne, supportée par
les 10 pylônes de 250 mètres est désormais
à l'usage exclusif de la Force Océanique Stratégique.
Le 1er novembre 1992, le Centre de Télécommunications
par Satellite de Saint Assise est créé, remplaçant
le Centre de Transmission Radio Electrique. La mise en service
d'une première station équipée d'une antenne
parabolique de 13 mètres de diamètre permet la
mise sur orbite du "bouquet" de programmes de télévision
sur le satellite Télécom 2A. 11 programmes de
télévision, dont 2 dans le format 16/9, sont à
destination des réseaux câblés et des antennes
de réception directe installées chez les particuliers.
L'installation de nouvelles stations va élargir le domaine
d'activité du centre.
Aujourd'hui, outre les satellites français de la génération
Télécom, des programmes TV sont émis vers
les satellites des organisations internationales Eutelsat, Intelsat
et la Société Européenne de Satellite (SES).
C'est près de 40 programmes de télévision
et 15 programmes de radio qui sont émis depuis Saint
Assise. Depuis quelques mois, le centre de Saint Assise s'est
spécialisé dans les procédés de
transmission de TV numérique, ce qui le place dans une
position privilégiée dans le développement
de ces technologies d'avant-garde. C'est le premier centre à
émettre sur satellite des programmes de télévision
en numérique à destination du grand public.
Le Centre de Télécommunications
par Satellite se spécialise aussi dans la construction
et la mise en service de réseaux d'entreprise par satellite
tant dans le domaine de l'audiovisuel que dans les transmissions
de données. Un laboratoire de développement et
de mise au point permet de tester les nouvelles technologies
qui arrivent sur le marché international et de réparer
les équipements venant du territoire national. Des stations
transportables de reportage, aérotransportables ou embarquées
sur camions, sont exploitées par une équipe du
Centre de Saint Assise. Intervenant dans le monde entier, elles
ont permis de suivre en direct les grands événements
de notre époque, aussi divers que : le tremblement de
terre en Arménie, la guerre du Golfe, la guerre du Rwanda,
les accords de paix du Proche Orient, ou les événements
sportifs tels le tour de France, le rallye Paris-Dakar, les
grands prix de Formule 1, le tournoi de Roland Garros, la coupe
du monde de football, etc...
Ainsi le CTS de Saint Assise est encore en mutation,
et se place toujours à la pointe des technologies modernes
de communications. Signe de cette mutation et sa place à
la pointe des technologies de communications, il y a quelques
mois à peine, le Centre de Télécommunications
par Satellite est devenu "TéléPort de St
Assise".
|
sommaire
Le 27 mars 1899, Marconi réalisa
la première communication transmanche entre Douvres et Wimereux,
près de Boulogne-sur-Mer, avec envoi d'un télégramme
historique à Branly. Deux ans plus tard, il établit
une liaison entre la Corse et le continent.
En décembre 1901, il réussit la première
liaison transatlantique sans fil.
En 1902, il observe que la portée des transmissions
augmente durant la nuit. Il expérimente un détecteur
magnétique de son invention qui rend possible la réception
du son.
En 1904, Marconi découvre la propriété
directive des antennes horizontales et commence à utiliser
la valve de Fleming. Celle-ci lui permet de créer dix ans plus
tard le premier service de radiotéléphonie en Italie.
Les données météorologiques puis des prévisions
commencèrent à être transmises par télégraphie
sans fil aux navires en mer et les données provenant de ces
derniers le furent dès 1905.
En 1916, Marconi montre la supériorité
des ondes courtes, dont il s'attache à développer
l'emploi.
En 1918, Marconi peut ainsi envoyer le premier message
radio de l'Angleterre vers l'Australie.
Alors que commence l'épopée de la radio,
Marconi est devenu un riche industriel comblé d'honneurs, membre
d'un grand nombre d'académies et d'instituts scientifiques.
Lauréat, en 1909, avec l'Allemand Karl Ferdinand Braun, du
prix Nobel de physique, pour sa contribution au développement
des communications par radio, il est élu sénateur en
1914, anobli en 1929 .
Au milieu des années 1910, les communications
radio étaient une réalité.
En 1925 C'est la première communication radiotéléphonique
intercontinentale sur ondes courtes par G. Marconi (entre Londres
et Sydney).
Puis il accède, en 1930, à la présidence de l'Académie
royale d'Italie.
Lorsqe Marconi l meurt, le 20 juillet 1937, toutes les stations de
radio du monde lui rendent hommage en observant deux minutes de silence.
Les émissions de radio commerciales ont commencé dans
les années 1920, mais le développement des communications
radio reste une priorité pour les militaires. La communication
à l'aide d'appareils appelés talkies-walkies est rapidement
devenue partie intégrante des combats quotidiens pendant la
Seconde Guerre mondiale.
Des choses se passaient également dans le secteur civil, mais
en 1946, AT&T reçut l'autorisation de construire et d'exploiter
le premier service de téléphonie mobile au monde à
St. Louis, dans le Missouri. Le système consistait en une station
de base avec un émetteur à six canaux. Les téléphones
étaient installés dans les voitures et utilisaient de
grosses batteries cachées dans le coffre. Le système
s'est répandu rapidement et, en quelques années, il
a été utilisé par environ 1 000 abonnés
dans 25 villes au total.
Il y avait cependant de nombreux inconvénients.
Le matériel était encombrant, lourd et coûteux.
La qualité de la transmission était inégale et
souvent très mauvaise. Mais le plus gros problème était
quil ny avait pas suffisamment de fréquences radio
disponibles pour permettre au système dêtre utilisé
par un grand nombre dabonnés. Il a fallu de nombreuses
années avant que les autorités chargées de l'attribution
des fréquences soient disposées à accorder des
fréquences pour la téléphonie mobile.
Le problème était que les fréquences disponibles
pour la téléphonie mobile ne pouvaient pas être
utilisées de manière suffisamment efficace. Rares sont
les utilisateurs qui consomment trop de bande passante. Cependant,
en 1947, AT&T a introduit le concept cellulaire selon lequel des
zones géographiques plus vastes étaient divisées
en cellules, chacune avec sa propre station de base et ses propres
canaux. Les fréquences disponibles pourraient être utilisées
en parallèle dans différentes cellules sans se perturber
mutuellement ni empiéter sur d'autres fréquences.
La téléphonie mobile pouvait désormais
en théorie gérer un grand nombre d'abonnés, mais
la technologie faisait encore défaut. Il a fallu attendre le
développement des transistors et des microprocesseurs pour
disposer de la technologie permettant de mettre en uvre le concept
cellulaire.
Il y avait aussi un obstacle politique. Dans la plupart
des pays, la téléphonie a longtemps été
le domaine des monopoles dÉtat. Cela garantissait souvent
un service téléphonique peu coûteux et fiable,
mais l'intérêt pour le développement et le changement
était limité.
Même dans les pays où les services téléphoniques
étaient exploités par des entreprises privées,
il existait souvent une situation de monopole et ce n'est que lorsque
cette situation a été modifiée que la téléphonie
mobile a pu réaliser une percée.
sommaire
Cest après le cataclysme de la Grande
Guerre que les radiocommunications se transforment en radiodiffusion
et que les ondes entrent dans les foyers pour se muer en technologie
du quotidien. Quelques pionniers, initiés aux communications
militaires, bricolent déjà des postes durant leurs loisirs.
Il faut attendre les années 1920 pour voir apparaître
les premières stations aux États-Unis et en Europe.
En Pennsylvanie, la Westinghouse Electric Co Manufacturing Company
KDK est crée le 2 novembre 1920.
Restée dans les mémoires comme la première station
commerciale de lhistoire, elle émet une heure tous les
soirs pour soutenir les ventes de postes récepteurs.
En France, cest également lenjeu de la sortie de
guerre et de la reconversion des moyens militaires qui explique lapparition
dune offre radiophonique civile. Comme nous l'avons vu, le 24
décembre 1921, le poste de la tour Eiffel émet pour
la première fois. Lauditeur apparaît, lamateur
sans-filiste se marginalise; sempiternelle victoire de la massification
et du grand public sur les rares passionnés des premiers jours.
Avec la structuration dune offre plus adaptée au grand
public qui ne souhaite pas « bricoler » son poste, mais
simplement écouter ce quil reçoit, les années
1930 voient se mettre en place une offre de programmes qui senrichit
et se stabilise. La musique, les retransmissions sportives et les
soap operas font leur apparition. Ces derniers, sponsorisés
aux États-Unis par des marques en quête de notoriété
où les marchands de produits dentretien se taillent la
part du lion, créent une habitude découte qui
donne la sensation à lauditeur davoir rendez-vous
avec son programme, dêtre devenu un fidèle des
aventures dAmos et Andy ou, en France, de la famille Duraton,
feuilleton diffusé sur Radio Cité à partir de
1937.
Aux Etats Unis, la radio connait son heure de gloire en 1938 avec
le célèbre canular radiodiffusé d' Orson Welles,
qui met l'Amérique en émoi. Avec le transistor et la
modulation de fréquence (FM), le succès de la radio
devient planétaire. Malgré l'arrivée du numérique,
la radio reste populaire, particulièrement en France, ou elle
est une source d'information privilégiée ...
Dès la fin de la guerre, l'information directe, rapide et sûre,
apparut à toutes les nations comme l'un des facteurs essentiels
de leur vie économique, de leur rayonnement intellectuel et
de leur sécurité.
La nécessité de multiplier et de perfectionner les moyens
de communiquer à distance s'imposa dès la reprise des
échanges de toutes sortes, qui prit rapidement d'autant plus
d'ampleur que le déséquilibre matériel et moral
créé par la guerre avait été plus profond.
La télégraphie par les câbles sous-marins assurait
avant la guerre la presque totalité des relations rapides à
travers les océans. L'Angleterre et les États-Unis possédaient
chacune environ 40 p. 100 de ces câbles, alors que la longueur
des câbles français atteignait à peine 8 p. 100.
La France se trouvait donc en état d'infériorité,
on devrait dire de servitude, vis-à-vis de l'étranger,
non seulement pour ses communications avec les autres pays, mais aussi
pour ses liaisons avec plusieurs de ses propres colonies et notamment
l'Indochine.
Par ailleurs, on devait reconnaître très vite que le
réseau mondial des câbles était loin de suffire
aux besoins. Dès 1920, les câbles, surchargés
de trafic, ne parvenaient plus à l'écouler. La situation
des réseaux de lignes terrestres n'était pas meilleure.
Aussi les délais de transmission des messages étaient-ils
excessifs. Chaque jour des milliers de télégrammes restaient
en souffrance. La reprise des relations internationales et, notamment
de l'activité économique, risquait d'être entravée
du fait de l'insuffisance des communications télégraphiques.
Les nations qui possédaient les réseaux de câbles
les plus étendus s'organisaient aussitôt pour faire face
à cette situation et pour conserver leur quasi-monopole de
fait. L'Angleterre et les États-Unis demandaient à la
télégraphie sans fil, dont la guerre avait fait ressortir
les prodigieuses possibilités, d'apporter un remède
efficace" à une situation dont la gravité s'accroissait
de jour en jour. Les industriels radio-électriques de ces deux
pays entreprenaient un effort technique considérable, et bientôt
l'Angleterre et les États-Unis pouvaient disposer de stations
puissantes et ouvrir de nouveaux services radiotélégraphiques
internationaux.
Après avoir été assujettie aux câbles étrangers,
la France allait-elle être forcée de s'en remettre, encore
une fois, à l'industrie étrangère du soin d'assurer
ses communications ? Ou bien son industrie nationale allait-elle lui
donner le pouvoir de posséder, chez elle, des stations puissantes
lui permettant de communiquer directement avec les autres pays et
avec ses propres colonies ?
Les techniciens français n'avaient pas manqué d'étudier
les problèmes soulevés par la création de radiocommunications
rapides et sûres à grande distance.
Ceux qui avaient si bien donné la mesure de leurs capacités
d'invention et de réalisations pendant la guerre pouvaient
proposer dès 1919 des procédés et du matériel
complètement au point et dont les qualités éminentes
devaient se confirmer par la suite.
En l'état de la technique en 1919, on ne pouvait envisager,
pour les radiocommunications à grande distance, que les ondes
longues de l'ordre de plusieurs miliers de mètres.
Les ondes inférieures, et notamment les ondes courtes, avaient,
à vrai dire, été employées dès
les premières expériences de T.S.F. Les petits appareils
dont on disposait alors les produisaient naturellement. Mais, dès
que l'on voulut, afin d'augmenter les portées, accroître
la puissance des émetteurs, il fallut employer des ondes de
plus en plus longues auxquelles s'adaptaient beaucoup mieux les dispositifs
qu'on possédait. Au surplus, on avait constaté que les
ondes courtes se comportaient de façon très irrégulière
et qu'elles étaient le siège de phénomènes
très particuliers dont on n'avait pas encore pu dégager
les lois et qui compromettaient la sécurité des liaisons
à grande distance.
La propagation des ondes longues était beaucoup mieux connue
et l'on savait qu'elle pouvait s'effectuer à peu près
régulièrement jour et nuit. Pour établir une
bonne communication permanente entre deux points, la difficulté
consistait surtout à mettre en jeu, avec un rendement acceptable,
une puissance élevée.
Ainsi, les ingénieurs recherchaient la solution du problème
des radiocommunications à grande distance dans la réalisation
de postes émetteurs très puissants et à ondes
très longues.
On eut recours d'abord au principe de l'arc de Poulsen. La Société
Française Radio-Électrique en avait, pour sa part, établi
une bonne réalisation. Mais l'arc offrait un grave inconvénient
inhérent à sa nature même, celui de produire des
harmoniques très nombreux et très intenses. Le rendement
de ce procédé était donc médiocre; la
puissance mise en jeu n'était effectivement utilisée
que pour une faible part sur l'onde de travail, le reste étant
gaspillé dans des radiations secondaires qui, d'ailleurs, causaient
des perturbations à d'autres liaisons.
Dès 1912, la Société allemande Telefunken avait
construit un ensemble comportant un alternateur et des transformateurs
de fréquence (selon le principe de l'ingénieur français
Maurice Joly) qui émettait des oscillations de haute fréquence
dans une antenne, il est vrai avec un médiocre rendement. Pourdissiper
l'énergie calorifique, les transformateurs devaient être
refroidis par des circulations d'eau.
En 1913, l'ingénieur allemand Rudolf Goldschmidt avait réalisé,
selon un principe dû à notre éminent compatriote
le professeur Boucherot, des alternateurs engendrant des courants
de haute fréquence. Mais ces machines, fort délicates,
avaient donné de graves mécomptes et, dès le
commencement de l'année 1913, à la Société
Française Radio-Électrique, un projet d'alternateur
plus simple avait été conçu.
La réalisation de ce projet soulevait alors des difficultés
mécaniques considérables : pour obtenir directement
des fréquences élevées, qui devaient atteindre
au moins 500 fois celles des alternateurs industriels, on était
entraîné à l'adoption de vitesses périphériques
inusitées, de pas polaires très faibles et d'entrefers
extrêmement réduits.
Or une vitesse trop grande accroît les pertes par frottement
et provoque des efforts anormaux dans les parties tournantes, donc
des déformations élastiques importantes et des trépidations
dangereuses qui risquent de produire le décollement des enroulements.
Si l'entrefer est très petit, la précision de la construction
doit être extraordinaire pour que le rotor ne vienne pas au
contact du stator.
Les efforts persévérants et conjugués de la Société
Française Radio-Électrique et de la Société
Alsacienne de Constructions Mécaniques de Belfort ont résolu
ce difficile problème avec un succès inégalé.
Malheureusement, la guerre étant venue interrompre ce genre
de travaux, ce n'est qu'en 1915 que la première machine (d'une
puissance de 5 kilowatts) fut réalisée et mise en service
au poste de Lyon (La Doua).
Fin 1918 , un alternateur de 125 kilowatts était installé
à la station de Lyon (Il y tourne encore après dix-sept
ans de service. Ce n'est donc pas sans "humour" qu'on se
reporte aux rapports d'expertise qui prédisaient une vie courte
et pénible, cinq ans tout au plus, à notre alternateur,
aujourd'hui vieux serviteur lyonnais qui a contenté tous ses
maîtres).
L'alternateur français à haute fréquence et à
grande puissance était créé, et ses qualités
dépassaient les espérances les plus optimistes (Les
ingénieurs qui ont spécialement contribué à
ce grand succès sont MM J. Bethenod et Marius Latour, à
la Société Française Radio-Électriques,
MM. Roth, Belfils et Bilieux, à la Société Alsacienne
et Constructions Mécaniques. Le régulateur spécial
a été l'uvre de M. Thury).
Son fonctionnement se révélait impeccable, l'onde émise
était très pure, tout à fait dépourvue
d'harmoniques et très stable.
Ce type d'alternateur a été construit pour des puissances
diverses, depuis 25 kilowatts jusqu'à 500 kilowatts, et pour
des longueurs d'ondes de 8 000 à 20 000 mètres. La vitesse
de rotation de ces machines, variant de 2 500 tours par minute pour
l'alternateur de 500 kilowatts à 6 000 tours par minute pour
l'alternateur de 25 kilowatts, était maintenue rigoureusement
constance par un régulateur à action très rapide,
quelles que fussent les variations de charge auxquelles elles pouvaient
être soumises.
Tournant dans une atmosphère raréfiée pour éviter
les pertes par ventilation, énergiquement refroidi par une
circulation d'huile sous pression d'une réalisation très
ingénieuse, l'alternateur à haute fréquence offrait
un rendement très élevé : plus de 84 p. 100 pour
la machine de 500 kilowatts.
Quand à la manuvre de ces alternateurs, elle était
d'une simplicité extrême.
Dès que fut achevée la réalisation définitive
de l'alternateur à haute fréquence, la Société
Française Radio-Électrique se préoccupa d'ajouter
aux remarquables qualités de la machine elle-même, des
procédés susceptibles d'en augmenter la facilité
et la souplesse d'exploitation.
A cette fin, fut étudié le système du couplage
électrique en parallèle grâce auquel les alternateurs
d'une station pouvaient débiter en parallèle sur l'antenne
pour augmenter ainsi, selon les nécessités du trafic,
la puissance de l'émission.
De même, le problème de la transmission "en multiplex",
pour permettre à plusieurs alternateurs à haute fréquence
d'une même station de transmettre simultanément, sur
le même réseau d'antennes, plusieurs télégrammes
différents sur des longueurs d'ondes différentes, en
évitant les réactions mutuelles de toutes ces émissions
les unes sur les autres, fut l'objet de recherches très poussées
qui aboutirent à la réalisation d'un dispositif supprimant,
par un procédé de compensation, les influences mutuelles
électromagnétiques et électrostatiques et permettant
à chaque alternateur de transmettre indépendamment.
Grâce à ces deux dispositions, la même station
pouvait donc se comporter, suivant les nécessités de
son exploitation, ou bien comme une station unique de puissance égale
à la somme des puissances des alternateurs qu'elle possédait,
ou bien comme autant de stations différentes qu'elle comprenait
d'alternateurs.
Il convient de rappeler encore une belle réalisation des laboratoires
de la Société Française Radio-Électrique
: le multiplicateur statique de fréquence. Nous avons vu plus
haut que les alternateurs à haute fréquence avaient
été conçus pour permettre l'utilisation de longueurs
d'ondes comprises entre 8 000 et 20 000 mètres, favorables
aux communications à grande distance. Cependant, pour des portées
réduites, il pouvait être, dans certains cas, plus avantageux
d'utiliser des ondes moins longues. Les multiplicateurs de fréquence
furent conçus pour cet objet. Cet appareils, fondés
sur la génération artificielle des harmoniques par des
circuits magnétiques constitués par des tôles
d'un alliage spécial au nickel, étaient intercalés
entre l'alternateur et l'antenne. L'alternateur débitait son
courant de haute fréquence et le multiplicateur doublait ou
triplait automatiquement cette fréquence. L'émission
s'effectuait ainsi sur une longueur d'onde qui n'était que
la moitié ou le tiers de la longueur d'onde de l'alternateur.
La mise au point de ces multiplicateurs de fréquence avait
exigé des recherches longues et variées. Il était
indispensable en effet que l'action de cet organe intermédiaire
n'apportât pas une réduction de la puissance utile. Cette
condition obligea les ingénieurs à de nombreux travaux
sur les alliages métalliques pour la composition des tôles
des circuits du multiplicateur. On parvint ainsi à réaliser
des doubleurs et des tripleurs de fréquence dont le rendement
atteignait 90 p. 100. Toutefois pour les postes puissants, nous avons
accordé la préférence à la solution de
l'alternateur débitant directement à la fréquence
finale.
En France : Les stations à
ondes longues suivantes ont été équipées
avec les machines à haute fréquence de la Société
Française Radio-Électrique :
la station de Croix-d'Hins (près de Bordeaux) : 1 alternateur
de 500 kilowatts.
la station de La Doua (près de Lyon) : 1 alternateur de 125
kilowatts.
le grand centre radio-électrique de Sainte-Assise : 4 alternateurs
de 25 kilowatts pour le trafic européen, 2 alternateurs de
500 kilowatts,2 alternateurs de 250 kilowatts pour le trafic transocéanique.
Dans les colonies françaises :
la station de Bamako : 2 alternateurs de 125 kilowatts. la station
d'Hanoï :1 alternateurs de 25 kilowatts. la grande station de
Saïgon :
2 alternateurs de 500 kilowatts. 1 alternateurs de 200 kilowatts.
1 alternateurs de 25 lkilowatts.
la station de Tananarive : 2 alternateurs de 150 kilowatts.
En Europe :
Belgique : la station de Ruysselde : 3 alternateurs de 250 kilowatts.
Italie :
la station de Coltanoe : 1 alternateurs de 500 kilowatts. 1 alternateur
de 250 kilowatts. 1 alternateur de 25 kilowatts.
la station de Milan : 2 alternateurs de 25 kilowatts.
Roumanie : la station de Bucarest : 2 alternateurs de 50 kilowatts.
Tchécoslovaquie : la station de Podebrady, près de Prague
: 2 alternateurs de 50 kilowatts.
Turquie : la station d'Istamboul : 2 alternateurs de 25 kilowatts.
Yougoslavie : la station de Belgrade : 2 alternateurs de 25 kilowatts.
Hors d'Europe :
Brésil : la station de Rio de Janeiro : 1 alternateur de 500
kilowatts.
Chine : la station de Yunnan Fou : 1 alternateur de 25 kilowatts.
Japon : la station de Funoboshi : 3 alternateurs de 250 kilowatts.
2 alternateurs de 50 kilowatts. 2 alternateurs de 25 kilowatts.
Syrie : la station de Beyrouth : 2 alternateurs de 25 kilowatts.
Turquie : la station d'Ankara : 1 alternateurs de 250 kilowatts.
Parallèlement à l'étude des alternateurs,
les ingénieurs de la Société Française
Radio-Électrique poursuivaient leurs recherches dans la voie
qu'avaient ouverte le professeur Fleming et Lee de Forest par leurs
travaux sur les valves.
A la suite des perfectionnements apportés pendant la guerre
aux lampes à trois électrodes, qui avaient révolutionné
la technique des récepteurs, on avait pu constater que ces
lampes constituaient d'excellents générateurs d'oscillations
entretenues.
Ce fut le point de départ d'une technique nouvelle dont les
immenses perspectives se découvrirent peu à peu.
En fait, c'est l'utilisation des lampes à trois électrodes
comme générateurs d'ondes entretenues qui allait conduire
en quelques années à la radiodiffusion, à l'emploi
des ondes courtes, à la télévision, etc.
En 1919, la lampe n'apparaissait encore que comme un organe permettant
d'engendrer simplement et facilement des ondes aussi parfaitement
entretenues que celles produites par les alternateurs de haute fréquence,
mais avec une puissance relativement faible.
Pour des liaisons régulières, de l'ordre d'un millier
de kilomètres, on hésitait entre deux solutions : ou
bien construire de tout petits alternateurs, ou bien créer
des lampes beaucoup plus puissantes que celles dont on disposait.
On sait que la solution préférée fut la seconde.
On savait fabriquer des triodes d'une puissance utile de 500 watts,
mais la réalisation d'une puissance supérieure se heurtait
à de graves difficultés.
En couplant plusieurs lampes en parallèle, la Société
Française Radio-Électrique réussissait, à
la fin de l'année 1920, à établir un émetteur
d'une puissance utile de 2 kilowatts et demi.
Installé dans les laboratoires de Levallois, ce poste fonctionnant
sur l'onde de 2 300 mètres communiquait avec la station anglaise
de Chelmsford, près de Londres, au début de janvier
1921, et procurait des résultats tout à fait remarquables
: on parvenait à réaliser une vitesse de manipulation
de 160 mots à la minute. Aussi, le 8 janvier 1921, l'Administration
Française des P.T.T. qui ne pouvait suffire au moyen des lignes
et câbles à écouler tout le trafic Paris-Londres
avait recours à cet émetteur pour assurer un service
public radiotélégraphique avec la Grande-Bretagne.
Un modèle identique était installé au centre
de Sainte-Assise, au mois de mars de la même année. Les
résultats obtenus avec ce nouvel appareil confirmaient absolument
les qualités du prototype.
Perfectionnés chaque année, au fur et à mesure
que la technique des lampes réalisait des progrès, les
émetteurs à ondes entretenues de la Société
Française Radio-Électriques devaient affirmer leur succès,
non seulement pour les radiocommunications entre points fixes, mais
aussi, comme nous le verrons plus loin, pour les liaisons radio-électriques
de la Marine et de l'Aéronautique.
Parmi les stations de grand trafic équipées avec les
émetteurs à lampes, à ondes moyennes, de la Société
Française Radio-Électrique, on peut citer :
le centre de Sainte-Assise, de la Compagnie Radio-France, qui utilise
ces appareils pour les liaisons avec Londres et Madrid,
la station italienne de Milan,
la station lithuanienne de Kaunas,
les stations turques d'Ankara et d'Istamboul,
la station chilienne de la Quinta Normal (Santiago de Chili)
etc..
L'utilisation de très grandes longueurs d'onde et la mise en
uvre de grosses puissances devaient conduire à développer
considérablement les antennes. En particulier, il était
nécessaire d'augmenter leur capacité pour éviter
que les tensions ne puissent dépasser la limite de 150 000
volts efficaces, au-dessus de laquelle l'isolement devenait difficile
et les pertes par effluves trop importantes.
En second lieu, il y avait intérêt à dégager
ces antennes de tous les obstacles naturels (mouvements de terrain,
végétation, etc.) susceptibles de former écran
et d'absorber une partie de l'énergie rayonnée.
Pour ces principales raisons, on était conduit à réaliser
de véritables nappes de fils couvrant une grande superficie
de terrain et aussi élevées que possible.
Le problème qui se posait ainsi aux techniciens présentait
deux aspects.
L'un, d'ordre mécanique, comportait l'étude des procédés
et des dispositifs susceptibles de donner à un tel ensemble
un équilibre et une résistance à l'épreuve
des efforts dûs aux vents;
L'autre, d'ordre électrique, consistait dans la recherche des
moyens propres à assurer un excellent rendement à l'antenne
en réduisant au minimum les pertes de toute nature auxquelles
un pareil réseau aérien parcouru par des courants intenses
était exposé.
La nécessité de soutenir à des hauteurs de plus
de deux cents mètres des antennes formées de nappes
horizontales de fils et mesurant jusqu'à 3 kilomètres
de long sur plusieurs centaines de mètres de large, allait
déterminer la création d'une technique spéciale
à cette sorte de construction métalliques.
Dans ce domaine, on connaissait déjà le cas très
simples des lignes de transport d'énergie électrique.
Celles-ci sont soutenues par des pylônes de faible hauteur (généralement
30 mètres, quelquefois 50 mètres, rarement davantage).
Pour les grandes stations radio-électriques on avait besoin
de supports de 250 mètres de hauteur, capables de résister
normalement à des efforts de traction de l'ordre de 10 000
kilogrammes (traction horizontale appliquée au sommet).
Les Américains avaient adopté un système de tour
métallique établi sur le même principe que la
Tour Eiffel. On construisait une poutre à treillis de forme
pyramidale, supportée généralement par trois
ou quatre jambes, également à treillis. L'ouvrage reposait
sur des massifs en béton dans lesquels étaient scellées
les membrures inférieures. La résistance mécanique
d'un tel ensemble ne pouvait être obtenue qu'au prix d'un tonnage
de fer très élevé. Au reste, le montage était
long et difficile. Pour des tours de grande hauteur, par exemple celles
qui furent construites à la station de Croix-d'Hins par la
Marine américaine, il fallait commencer par édifier
un pylône de montage. En outre, les travaux d'érection
étaient fort dangereux. Le montage des tours de Croix-d'Hins
fut marqué par plusieurs accidents mortels.
Aussi, la Société Française Radio-Électrique
avait-elle éliminé la solution du genre Tour Eiffel
en donnant, dès avant la guerre, sa préférence
aux pylônes haubanés.
Un tel pylône se compose d'une poutre à treillis, généralement
de section constante du sommet à la base. Cette section est
très faible eu égard à la hauteur. Par exemple,
les pylônes qui supportent l'antenne de Sainte-Assise ont une
section carrée de 2 mètres de côté pour
une hauteur de 250 mètres.
Des haubans en câble d'acier sont fixés d'une part aux
membrunes, à différentes hauteurs, et d'autre part,
par l'intermédiaire de tendeurs réglables, à
des massifs de béton qui les ancrent au sol.
Ces haubans, constitués par des aciers à haute résistance
mécanique, dont la charge de rupture atteint 200 kilogrammes
par millimètre carré, ont un diamètre très
faible, ce qui contribue à réduire leur poids et leur
prise au vent.
La base du pylône repose sur un massif en béton auquel
elle est fixée pour éviter le glissement.
On conçoit facilement que ce type de pylône, grâce
à sa section très réduite, à la finesse
de ses membrures et à ses haubans, ait déjà,
sur les tours encastrées dont nous avons parlé plus
haut, le gros avantage d'économiser un poids de fer considérable.
Pour en donner une idée, une tour de 250 mètres de Croix-d'Hins
pèse 560 tonnes, tandis qu'un pylône haubané de
250 mètres n'atteint pas 120 tonnes, charpente métallique
et haubans compris.
Par ailleurs, les pièces du pylône haubané peuvent
être usinées en série, tandis que celles de la
tour encastrée sont plus diverses, avec des assemblages plus
compliqués, donc d'une fabrication plus coûteuse.
On ne s'étonnera donc pas que le prix d'établissement
d'un pylône haubané, de 250 mètres, soit cinq
fois moins fort que celui d'une tour de Croix-d'Hins.
Quant au montage du pylône haubané, il présente
la même simplicité que celui des pièces d'un "meccano".
Sans entrer dans des considérations qui sortiraient du cadre
de cet ouvrage, on peut remarquer qu'un support d'antenne de T.S.F,
est soumis à deux sortes d'efforts : un effort au sommet exercé
par la nappe de fils d'antenne et un effort sur les éléments
du support exercé par le vent. Pour les supports de grande
hauteur, les efforts du vent sont considérablement plus grands
que l'effort dû à l'antenne qui, dans bien des cas, peut
être considéré comme négligeable devant
le premier. Cette remarque permet d'apprécier la supériorité
mécanique du pylône haubané sur une tour sans
haubans. D'abord la prise au vent du premier est très inférieure
à celle de la seconde. En outre, la tour, n'ayant comme appui
que son scellement de base, sera l'objet d'efforts dont le bras de
levier ira en augmentant jusqu'à atteindre la hauteur totale,
tandis que la charge d'un pylône haubané maintenu par
ses cours de haubans en plusieurs points, de la base au sommet, restera
toujours très limité.
A ce jour, la Société Française Radio-Électrique
a installé plus de 250 pylônes représentant une
hauteur totale de 35 000 mètres. Certains d'entre eux, en service
depuis près de vingt ans, ont eu à supporter en France,
aux colonies et à l'étranger, tous les efforts statiques
et dynamiques auxquels de tels ouvrages peuvent être soumis
(orages, tornades, surcharges de neige ou de glace, etc.). Cette épreuve
du temps vaut encore mieux que les démonstrations techniques.
Nous n'avions d'ailleurs pas manqué d'administrer celles-ci
en proposants ces travaux assez hardis, dont les projets ne furent
pas toujours approuvés d'emblée par les organismes de
contrôle. En général, ceux-ci estiment, d'ailleurs
à juste titre, que leur responsabilité est moins exposée
quand on a recours à des dispositifs consacrées par
l'usage.
Avant de quitter la question des pylônes, il convient d'ajouter
que, l'avènement des ondes courtes dans le domaine des radiocommunications,
dont nous parlerons plus loin, ayant entraîné la constitution
d'antennes différentes de celles qui nous occupent ici, il
a fallu, dans la suite, créer des pylônes de types adéquats
aux nouveaux réseaux aériens.
La Société Française Radio-Électrique
a construit pour cet objet un pylône spécial dont la
hauteur peut atteindre jusqu'à 100 mètres et qui s'apparente
au pylône haubané, dont il a gardé tous les avantages
.
Le fait de disposer, dans l'antenne, d'une grande
puissance à haute fréquence ne suffit pas à assurer
à l'émission toute l'efficacité désirable.
Il faut encore que cette énergie soit effectivement rayonnée.
Les causes de déperditions d'énergie dans une antenne
sont diverses. En premier lieu, il y a l'effet Joule : dissipation
d'énergie sous forme de chaleur dans les fils d'antenne. On
réduit ces pertes en donnant aux conducteurs une section suffisante
et en multipliant le nombre de fils.
Les isolateurs peuvent être aussi, si l'on n'y prend garde,
le siège de pertes importantes par hystérésis
diélectrique et par effluves. Ces pertes ont pu être
limitées, d'une part, à la suite d'études sur
les isolateurs et, d'autres part, en utilisant des répartiteurs
de potentiel. En outre l'on s'est astreint à ne pas dépasser,
dans l'antenne, des tensions de l'ordre de 150 000 volts.
Enfin, les pylônes et leurs haubans contribuent aussi à
absorber de l'énergie par suite notamment des effets électrostatiques.
Ici, le problème était plus difficile, les isolateurs
ayant à supporter des efforts mécaniques considérables.
Les ingénieurs sont parvenus, néanmoins, à réaliser
des dispositifs isolants pouvant être intercalés dans
les haubans et dont la charge de rupture dépasse 250 tonnes.
La Société Française Radio-Électrique
a réussi également à isoler ses pylônes
haubanés en appuyant l'élément de base, par l'intermédiaire
d'une rotule, sur une pile de galettes isolantes reposant elles-mêmes
sur le massif de fondation. On peut voir les derniers modèles
de pylônes ainsi isolés à la station de radiodiffusion
du Poste Parisien (pylônes de 120 mètres) et à
la station radiotélégraphique de la Crau (pylônes
de 250 mètres).
Enfin, il y a une autre cause de pertes qui réside
dans la prise de terre si l'on ne prend pas de précautions.
Le sol qui s'étend sous l'antenne et les végétations
qui le recouvrent sont de mauvais conducteurs ou, si l'on veut, de
mauvais isolants. Il peut donc y avoir dans ce milieu une forte dissipation
d'énergie à la fois par effet Joule, courants de Foucault
et hystérésis diélectrique.
Pour y remédier, on s'était contenté tout d'abord
d'enfouir dans le sol des plaques de cuivre ou de zinc. Mais la surface
de ces plaques, qui de pouvait dépasser quelques centaines
de mètres carrés en raison du prix de revient, était
généralement très inférieure à
la superficie couverte par l'antenne. Un grand grand nombre de lignes
de force issues de l'antenne ne rencontraient pas cette armature métallique.
Les pertes restaient considérables.
On avait préconisé ensuite l'emploi d'un réseau
métallique placé entre l'antenne et le sol et appelé
contrepoids. Les premiers résultats avaient été
médiocres, la technique n'ayant pas eu, tout d'abord, sur le
rôle exact de ces organes une opinion bien assise. Après
des études systématiques on est parvenu à de
bons résultats en donnant à ces écrans une grande
surface et une forte densité de fils. Mais ces contrepoids
ont l'inconvénient de coûter très cher, notamment
en raison de la nécessité de les isoler d'une façon
parfaite. Leur emploi doit donc se limiter aux cas où leur
surface n'est pas très grande. Mais, pour des antennes très
développées, couvrant une superficie de 50 à
100 hectares, un tel procédé n'est pas recommandable.
On eut aussi l'idée d'améliorer la prise de terre en
enterrant sous l'antenne un réseau de fils de cuivre. Dans
les premières installations de ce genre, les fils étaient
peu nombreux et leur action n'était pas très efficace.
On fut donc amené à en augmenter la densité pour
réaliser une véritable armature métallique sous
l'antenne. Mais cela coûte cher tout en ne supprimant pas les
pertes par courants de Foucault.
En raison des inconvénients de tous ces procédés,
la Société Française Radio-Électriques
entreprit de longs travaux sur la question et adopta un système
de "terres multiples" consistant dans un réseau de
fils métalliques tel que celui dont nous venons de parler,
mais dont on amène directement au poste les courants de terre
qui y circulent par des conducteurs aériens, qui relient ainsi
différents points de la prise de terre à la station.
Ces canalisations aériennes offrent aux courants de haute fréquence
des chemins de moindre résistance que la terre, et les pertes
en sont considérablement réduites. Cette disposition,
dont le principe peut paraître simple, avait cependant nécessité
des essais de mise au point assez délicats pour déterminer
la meilleure disposition des terres multiples, la constitution des
lignes, les conditions de leur équilibrage par self-inductance
et capacités. Ce procédé, mis en service, pour
la première fois à la station de Sainte-Assise, permettait
d'abaisser la résistance de l'antenne à 0,5 ohm , alors
qu'en déconnectant les lignes de terre cette résistance
atteignait près de 2 ohms, soit quatre fois plus.
sommaire
En 1922 la revue "La science et la vie"
de février-mars, raconte :
LES DERNIERS PERFECTIONNEMENTS DE LA TÉLÉPHONIE SANS
FIL Par Jean MARCHAND INGÉNIEUR I. E. G.
Presque tous les grands quotidiens ont relaté les résultats
remarquables obtenus par la téléphonie sans fil, non
plus au cours dexpériences longuement préparées,
mais dans le domaine des applications pratiques.
Cest ainsi quon a pu signaler les services rendus par
ce nouveau mode de communication appliqué aux avions commerciaux.
Les avions « Goliath », de la Compagnie des Grands Express
Aériens, partis de laérodrome du Bourget et se
dirigeant sur Lausanne, ont pu se tenir constamment en liaison téléphonique
avec lun ou lautre de ces deux terrains datterrissage.
Lan dernier, exactement le
12 novembre 1921, le paquebot Paris, de la Compagnie Générale
Transatlantique, ayant à son bord des délégués
du gouvernement français se rendant à la conférence
de Washington, et muni au dernier moment dun petit poste
radiotélégraphique davion de la Société
Française radioélectrique, a pu communiquer, par
téléphonie sans fil, soit avec la devant le microphone
de la station de sainte-assise côte française, soit
avec la côte américaine, à lires de 1.000
kilomètres.
Tous les journaux ont reproduit un long message destiné
à M. Paul Laffont, sous-secrétaire dEtat des
Postes et Télégraphes, quun passager du Paris
a téléphoné le 13 novembre alors que le paquebot
était à 163 kilomètres de la côte française.
Le Paris, continuant sa route, conservait sans interruption
la communication avec la France et on lentendait encore
parler, alors quil en était éloigné
de 953 kilomètres (515 milles).
Le poste français correspondant était identique
au poste du Paris et avait été installé
au dernier moment à Ouessant.
Toute la presse a rendu également compte dune démonstration
particulièrement. intéressante qui a eu lieu le
20 novembre 1921 à Paris. Les convives dun banquet
donné à lhôtel Lutetia par la Société
amicale des Ingénieurs de lEcole supérieure
délectricité, ont pu entendre, par téléphonie
sans fil, un concert vocal qui avait lieu à la station
de T. S. F. de Sainte-Assise (Scine-cl-Marne).
Les auditeurs, enthousiasmés, ont applaudi la Marseillaise,
la valse de Mireille et un air du Barbier de Séville, chantés
par Mlle Brothier, de l'Opéra-Comique, à 40 kilomètres
de la salle du banc]net.
La voix était entendue de tom avec une grande il lensité
et une netteté parfaite. Ce concert, fut entendu par de
nombreuses stations radioélectriques françaises
et étrangères, dans un rayon de plus de 1.000 kilomètres. |
 |
fig. 1. Mlle brothier, de lopéra-comique,
chante. Sa voix fut entendue dans un rayon de 1.600 kilomètre.
Enfin, le 9 décembre 1921, les souverains belges purent entendre
nettement, à Bruxelles, plusieurs artistes français chantant,
devant un tout petit microphone du poste démission de la
tour Eiffel.
On sait que le fonctionnement, du téléphone ordinaire
est basé sur les modulations dun courant continu par la
voix agissant sur un microphone, modulations qui sont transmises intégralement
par la ligne à lécouteur téléphonique.
La radiotéléphonie utilise les mêmes phénomènes,
à lexception du transport par ligne. Celle-ci est remplacée
par les ondes électromagnétiques qui, en se propageantà
travers léther, transportent avec elles les vibrations
caractéristiques de la voix.
Ces ondes prennent, naissance chaque fois quune antenne est parcourue
par un courant à haute fréquence, et elles se propagent
dans lespace à la vitesse de la lumière, soit 300.000
kilomètres à la seconde.
Pour émettre des signaux de télégraphie sans fil,
il suffit dinterrompre et de rétablir, avec; un manipulateur,
le courant électrique dc haute fréquence circulant dans
lantenne en suivant la cadence des points et des traits constituant
des iettres de lalphabet Morse.
Pour déceler le passage dans lantenne réceptrice
des courants de haute fréquence qui y prennent naissance, le
procédé le plus employé consiste à faire
agir ces courants sur un récepteur téléphonique
du modèle utilisé pour la téléphonie avec
fil, en intercalant dans le circuit qui contient ce récepteur
lappareil dont le rôle est bien connu actuellement et nommé
« détecteur ».
Cette condition étant remplie, on entendra une série de
bruits cadencés, brefs ou longs, représentant les lettres
ou les chiffres du Morse; la télégraphie sans fil est
dès lors complètement réalisée.
Pour faire de la radiotéléphonie, il faut laisser le manipulateur
fermé et émettre dune façon ininterrompue
des ondes électromagnétiques allant vers lantenne
du poste récepteur. Cette émission dondes remplace
la ligne métallique qui relie les deux correspondants dans le
cas ordinaire de la téléphonie avec fil. Tandis que, dans
cette dernière, on « module » un courant continu
par laction du microphone, en radiotéléphonie ce
sont les ondes électromagnétiques, seul lien entre les
deux correspondants, qui seront « modulées » par
la voix.
Pour obtenir ce résultat, il suffit de faire agir le courant
modulé du circuit microphonique sur la, source de courants de
haute fréquence qui alimente lantenne émettrice.
Les ondes rayonnées par lantenne du poste émetteur,
modulées par laction du microphone, portent donc lempreinte
des vibrations sonores et la conservent pendant tout leur parcours à
travers léther. Lorsquelles frappent lantenne
réceptrice, elles font naître des courants de haute fréquence
qui parviennent au récepteur téléphonique après
avoir été « redressés » par le détecteur,
mais ces courants de haute fréquence ne sont plus de grandeur
constante, comme dans le cas des signaux de télégraphie
sans fil.
Les ondes modulées sont, en effet, comparables à une série
de vagues de hauteurs inégales les unes sont hautes, les autres
sont plus basses; en venant frapper lantenne réceptrice,
elles produisent des leur hauteur.
On s'explique dès lors pourquoi les antenne pourquoi lès
courants engendrés dans l'antenne, portent eux aussi, lempreinte
des vibrations sonores. Ces courants, comme dans le cas de la téléphonie
avec fil, produiront, en passant dans les petites bobines de laimant
de lécouteur téléphonique, des attractions
plus ou moins fortes de la membrane vibrante qui reproduira, finalement
le mot prononcé dans" le microphone du poste émetteur.
Dans le cas de la radiotéléphonie, il ny a plus
à craindre les effets de «distorsion » des courants
téléphoniques qui se manifestent souvent en cours de la
transmission par fil. L éther transmet fidèlement, sans
les altérer, toutes les modulations de la voix; ceci explique
la grande netteté dune réception radiotéléphonique
obtenue avec des appareils bien étudiés ; on peut presque
toujours discerner le timbre de la voix, qui est très souvent
déformé par la téléphonie avec fil.
La production dondes amorties ou dondes entretenues a été
expliquée en détail dans les numéros 41, 50, 52,
54, 58 de La Science et l vie . Mais la radiotéléphonie
exige que les ondes qui servent de véhicule aux vibrations sonores
soient parfaitement régulières et parfaitement pures.
On conçoit, en effet, que toute irrégularité préexistant
dans les ondes, indépendamment de la modulation microphonique,
produise sur lantenne réceptrice un effet parasitaire qui
« brouille » la réception des vibrations sonores
et dénature les sons émis.
Cette condition exclut, par conséquent, les ondes amorties rayonnées
par les postes à étincelles et exige lemploi des
ondes entretenues engendrées par un arc électrique, un
alternateur à haute fréquence ou une lampe à trois
électrodes appelée ordinairement « audion ».
 |
TYPE COURANT D'AUDION
La lampe à trois électrodes a fait accomplir à
la téléphonie sans fil d'énormes progrès.
Placée sur l'appareil au moiyen des broches B, elle réalise
un détecteur très sensible, un amplificateur puissant
ou un générateur d'ondes entretenues très
pures, grâce aux courants qui circulent entre le filament
F et la plaque P modifiés suivant l'étalt électrique
de la grille G influencée par les vibrations.
Malgre la portée de 1.200 kilomètres obtenue en
1912 par le professeur Vanni, au cours dessais entre Rome
et Tripoli, on doit considérer que larc na
pas réalisé les espoirs quon avait fondés
sur lui comme générateur dondes pour la radiotéléphonie.
Dans un avenir prochain, les alternateurs à haute fréquence,
que lon construit maintenant industriellement et développant
jusquà 500 kilowatts de puissance, permettront de
réaliser, de façon pratique, la radiotéléphonie
à très grande distance. Ainsi que lantenne
émettrice en accouplant par induction cette dernière
à la lampe au moyen dun transformateur statique.
La mise en pratique, peu de mois avant la guerre, des nombreux
modèles de lampes à trois électrodes, devait
faire accomplir en quelques années des progrès considérables
à la radiotéléphonie. Le fonctionnement de
ce générateur dondes pures, a été
décrit dans La Science et la Vie, n° 52, page 248.
|
Pour utiliser les oscillations qui prennent naissance
dans une lampe génératrice il suffit de les faire passer
dans lantenne émettrice en accouplant par induction cette
dernière à la lampe (au moyen dun transformateur
statique).
Les premiers postes émetteurs à lampes datent de 1913.
Pendant la guerre, il en fut fait un large emploi par la radiotélégraphie
aux armées. De faible puissance au début, on a réussi
à réaliser ces postes pour des puissances considérables,
nous lexposerons plus loin, on a, en effet, trouvé le moyen
de « moduler » par laction dun petit microphone
ordinaire les puissances, considérables en utilisant plusieurs
lampes à trois électrodes de grand modèle, fonctionnant
à haut voltage (jusquà 25.000 volts) et donnant
chacune dans lantenne des puissances supérieures à
un kilowatt.
La mise au point de ce matériel nouveau devait faire accomplir,
pendant les trois dernières années, des progrès
rapides à la radiotéléphonie et lamener à
un degré de perfectionnement quelle navait jamais
pu atteindre jusqualors. En effet, non seulement lemploi
des lampes à trois électrodes a résolu le problème
de la production dondes entretenues très pures, mais il
a fourni aussi une solution très élégante de limportante
question de l'emploi du microphone.
Jusqualors, on avait rencontré de très grosses difficultés
pour « moduler » par la parole les courants de haute fréquence
engendrés dans lantenne, dès que la puissance mise
en jeu devenait un peu importante. Le microphone à grenaille
de charbon est, en effet, un appareil très sensible mais incapable
de supporter des courants dépassant quelques dixièmes
dampère. Si lon essaie de le faire agir sur des courants
trop intenses, il chauffe exagérément, les grains de charbon
se soudent entre eux et lappareil devient très rapidement
inutilisable. Malgré linvention de microphones spéciaux,
tels que les microphones à liquide, très ingénieux,
mais trop facilement déréglables, on nétait
pas parvenu à moduler, dune façon satisfaisante,
la puissance oscillante dun émetteur capable de réaliser
des portées supérieures à 1.000 kilomètres.
La lampe à trois électrodes a permis dutiliser le
microphone avec des courants intenses, non plus directement, mais par
lintermédiaire de relais amplificateurs successifs.
Pour les communications aux moyennes distances, cest le système
démission dondes entretenues par lampe à trois
électrodes qui prévaut actuellement.
Dès que lénergie dépasse une dizaine de kilowatts,
lalternateur à haute fréquence, plus industriel,
plus mécanique, reprend et conserve un grand avantage.
Si lon emploie un poste émetteur dune puissance déterminée,
la portée quil permettra datteindre en téléphonie
sera, en général, inférieure de moitié à
celle qui pourra être réalisée en envoyant des signaux
Morse. Ceci tient à ce que le manipulateur agit par « tout
ou rien » sur lémission des ondes, les laissant passer
avec leur pleine intensité, ou les supprimant totalement dans
lintervalle des signaux Morse, tandis quen radiotéléphonie,
les vibrations sonores affectent les ondes dune façon très
inégale par lintermédiaire du microphone. Certaines
de ces vibrations sont de très faible intensité et ne
laissent quune empreinte très peu profonde sur londe
émise. Lorsque celle-ci saffaiblit en voyageant à
travers léther, cette faible empreinte satténue
elle-même beaucoup plus vite que londe qui la porte et elle
peut devenir incapable dagir sur le récepteur téléphonique
à larrivée. Or,pour que la voix soit reçue
dune façon compréhensible, il faut que toutes ses
modulations arrivent à lantenne réceptrice. On sexplique
donc que la portée dun poste de téléphonie
sans fil soit déterminée, non pas seulement comme en télégraphie,
par la puissance des ondes, mais bien par la fraction de cette puissance
qui correspond à la vibration sonore la plus faible dans le mot
prononcé.
Les courants microphoniques agissent sur la grille de la lampe génératrice
par l'intermédiaire des bobines de couplage S1 S2. Le circuit
de plaque de cette lampe, où se produisent les oscillations,
est couplé par le transformateur S2 S4 avec les grilles des cinq
lampes amplificatrices dont une seule est figurée, les autres
étant montées en parallèle avec la première.
Les vibrations amplifiées passent dans l'antenne var le transformateur
S5 S6.
Fig 6
FIG. 6. POSTE EMETTEUR DE RADIOTELEPHONIE DE PETITE PUISSANCE
EMPLOYE SURLES NAVIRES ET SUR LES AVIONS
FIG. 8. -- SCHÉMA DE LAPPAREIL REPRÉSENTÉ
FIGURE 6
Fig 8 Fig 9 
FIG. 9. - SCHÉMA DU POSTE RÉCEPTEUR DE RADIOTÉLÉPHONIE
CORRESPONDANT A lAPPAREIL FIGURE 6
Les vibrations reçues par Vantenne sont d'abord a détectées
» par la première lampe à trois électrodes,
puis amplifiées par une ou plusieurs lampes amplificatrices montées
en parallèle.
Les six lampes utilisées sont fixées sur la boîte
de lappareil. Sur la face avant on distingue, à gauche,
te commutateur d'allumage des lampes ; au centre, l'ampèremètre
d'antenne ; à droite, le commutateur de changement d'onde : en
bas, la commande de l'accouplement variable avec l'antenne. Le combiné
micro-téléphonique placé à côté
permet de se rendre compte des dimensions restreintes de ce poste. Le
bouton-poussoir a établit les connexions nécessaires pour
passer automatiquement de la parole à l'écoute.
La figure 6 représente la boîte qui renferme les prin-cipaux
organes de lémetteur. Cet ensemble, peu encombrant (il
mesure 33 centimètres dans sa plus grande dimension), permet
de le placer facilement dans la carlingue dun avion. Les lampes
à trois électrodes quon aperçoit à
la partie supérieure sont au nombre de six dont une génératrice.
Sur la face avant de la boîte, se trouvent un commutateur qui
permet dallumer ou déteindre les six lampes, le cadran
dun ampèremètre thermique indiquant lintensité
des courants de haute fréquence dans lantenne, un deuxième
commutateur à trois plots servant à donner à lémission
la longueur donde choisie qui peut avoir 600, 800 ou 900 mètres,
et, enfin, une manette qui agit sur le couplage par induction de lantenne
avec le circuit doscillations.
Les postes montés sur les avions Goliath et sur le paquebot Paris,
ont permis dobtenir les résultats pratiques intéressants
mentionnés au début de cet article. Leur portée
est très variable, suivant la hauteur des mâts du navire
qui déterL mine celle de lantenne; elle varie aussi suivant
les avions ; elle est, en moyenne, de 150 kilomètres dans les
conditions normales.
Le « combiné » microtéléphonique, analogue
au modèle de certains appareils téléphoniques avec
fil, est relié par un cordon souple à lappareil.
Il comprend essentiellement un microphone à grenaille de charbon
très sensible avec son cornet, et le récepteur téléphonique
à membrane.
La source dénergie nécessaire pour alimenter le
poste est constituée par une petite machine électrique
dune puissance totale de 300 watts (moins de 1/2 HP). Cest
une dynamo à courant continu comportant deux induits et, par
conséquent, deux collecteurs. Lun deux fournit le
courant à basse tension (7 volts) pour le chauffage des filaments
des lampes, lautre donne du courant à 700 volts pour lalimentation
des circuits de plaque. Un régulateur-conjoncteur, analogue à
celui dune dynamo déclairage dautomobile, maintient
la tension constante malgré les variations de vitesse. Une petite
batterie daccumulateurs de trois éléments est placée
« en tampon » sur le collecteur à 7 volts ; elle
a pour but de régulariser le débit du courant de chauffage
et aussi dalimenter (sous 4 volts) les filaments des lampes de
lappareil de réception.
Fig 10 
FiG. 10. - POSTE ÉMETTHU H ET RÉCEPTEUR UTILISÉ
SUR LES AVIONS
Le combiné microtéléphonique est remplacé
par un casque à deux récepteurs pour l'écoute et
un microphone maintenu par un collier à hauteur de la bouche
du pilote de l'aéroplane.
Lorsque le poste est monté à bord dun avion, la
génératrice ( fig. 7 ), revêtue dun capot
fuselé, pour diminuer la résistance au vent, est fixée
sur le bord antérieur dune des ailes de lavion. Lextrémité
de son arbre porte une hélice qui se met à tourner, sous
laction du déplacement dair produit par le mouvement
de lavion en vol, à une vitesse de 4.500 tours par minute
environ.
Le principe du fonctionnement de cet appareil est représenté
par le schéma 8. Une première lampe, dite génératrice,
produit des oscillations dans son circuit de plaque couplé par
l'intermédiaire dun transformateur S3-S4 avec les grilles
dun groupe de cinq autres lampes qui amplifient les oscillations
et les font passer dans lantenne grâce au transformateur
S5-S6. Nous navons figuré sur notre schéma quune
seule lampe amplificatrice, les quatre autres sont, en effet, montées
« en parallèle » avec la première, cest-à-dire
que les cinq grilles sont reliées ensemble et les cinq plaques
également. Cette disposition a pour effet de multiplier par 5
la puissance dune lampe et ne change rien au principe du fonctionnement.
Trois condensateurs fixes (non figurés) et montés en dérivation
sur la bobine S3, permettent dobtenir lune ou lautre
des trois longueurs dondes différentes précitées.
Le microphone agit sur la grille de la lampe génératrice
par lintermédiaire des bobines de couplage S1 et S2.
Les courants de haute fréquence engendrés par la première
lampe, sont donc « modulés » par la parole avant
dêtre ampli liés par les cinq autres lampes.
Le récepteur, séparé de lappareil, que nous
venons de décrire, est contenu dans une boîte plus petite.
Il comporte trois petits audions. La première lampe amplifie
les oscillations de haute fréquence reçues dans lantenne,
la seconde les détecte et la troisième amplifie les oscillations
détectées qui sont envoyées finalement, au moyen
de deux fils, dans les bobines agissant sur la membrane du récepteur
téléphonique du « combiné » que nous
avons décrit plus haut.
Le courant de chauffage des filaments est donné par deux éléments
de la batterie daccumulateurs de 6 volts mentionnée plus
haut.
La tension nécessaire pour alimenter les plaques est fournie
par une batterie daccumulateurs ou de piles de 80 volts. Ce récepteur
permet de recevoir dans de bonnes conditions les émissions faites
sur les longueurs dondes comprises entre .300 et 1.000 mètres.

FIG. 11. -- LA CABINE DE TÉLÉPHONIE
SANS FIL A BORD üUN AVION «GOLIATH»
Sur la tablette se trouve Vémetteur radiotéléphonique
comportant six lampes à trois électrodes protégées
par un capot. A gauche, en haut, le variomètre servant à
ajuster la longueur donde démission. Au-dessous, le tableau
de contrôle de la génératrice de courant continu.
En bas le manipulateur pour la T. S. F.

FIG. 12. -- VUE PARTIELLE DE LA CABINE DE T. S. F. DU « PARIS
»
Au premier plan et à gauche, se trouve l'émetteur de
téléphonie sans fil; au-dessus, un variomètre
d'accord; au fond, par terre, on voit le récepteur. Les autres
appareils de la cabine sont destinés à la télégraphie
sans fil. Ce poste a déjà réalisé, au
cours dune traversée récente, une portée
de plus de 900 kilomètres.
La figure 12 montre, parmi dautres appareils appartenant au
poste principal, les appareils provisoires de radiotéléphonie
du paquebot Paris. On reconnaît, à gauche de la photographie,
sur une tablette, lémetteur dont nous avons parlé;
ses lampes sont recouvertes'dun capot protecteur. Un peu pins
à droite, sur la table, se trouve lappareil récepteur
dun modèle un peu différent de celui que nous
avons décrit. Ici, la dynamo à deux collecteurs donnant
les courants à 6 volts et 700 volts pour lalimentation
de lémetteur, est entraînée par un moteur
électrique qui l'onctionne sur le courant à 110 volts
de la distribution du bord. L'antenne utilisée sur le Paris
est constituée par deux fils parallèles, longs de 130
mètres, soutenus par les mâts du paquebot à 23
mètres au-dessus de la cabine de télégraphie
sans fil.
Pour les postes destinés à réaliser de plus longues
portées et nécessitant des puissances plus grandes afin
dengendrer les courants de haute fréquence dans lantenne,
on est conduit à employer des lampes à trois électrodes
de plus grandes dimensions que celles que nous avons décrites
jusquici.

F1G. 13. - POSTE ÉMETTEUR RADIOTELEPIIONIQUE ULTRA-MODERNE
D'une portée de 350 kilomètres, ce poste est enfermé
dans un meuble élégant. Il utilise trois lampes ayant
chacune une puissance de 200 watts, placées à la partie
inférieure et à l'intérieur du meuble. Le manipulateur,
placé sur la tablette, permet de transmettre des signaux de
télégraphie sans fil.
Le poste ultra-moderne représenté par la figure 13 utilise
trois lampes de 200 watts placées à la partie inférieure
et à lintérieur du meuble.
On naperçoit que les organes de commande et de contrôle
placés à lextérieur. Cet appareil, qui
permet également la télégraphie (le manipulateur
est situé sur la tablette), peut être utilisé
soit à bord dun navire, soit sur un gros avion pour réaliser
des portées exceptionnellement grandes, soit sur un dirigeable,
soit enfin dans une station fixe. La portée, extrêmement
variable, suivant ces différents emplois, est, en moyenne,
voisine de 360 kilomètres pour la radiotéléphonie.
Fig 14 Fig 15

FIG. 14. -- POSTE RADIOTÉLEFIIONIQUE ÉMETTEUR DE LA
STATION DE SAINTE-ASSISE
Ce poste permet de réaliser des portées de 1.600 kilomètres.
Il utilise, pour la production des ondes entretenues, huit lampes
de 500 xoatts. Le courant d'alimentation des circuits de plaque de
ces lampes est fourni par un alternateur de 5 kilowatts, produisant
des courants à 600 périodes par seconde.
FIG.15 TYPE D AMPLIFICATEUR DETECTEUR A RÉSONANCE
Cet appareil a été utilisé le 26 novembre 1921
à l'occasion d'un banquet organisé par la Société
Amicale des Ingénieurs de l'Ecole supérieure d'Electricité
pendant lequel les convives ont entendu Mne Brothier, de l'Opéra-Comique,
qui chantait devant un microphone à la station de Saint-Assise
à 40 kilomtres de Paris.
Lappareil, installé actuellement dans
les dépendances de la station de Sainte-Assise (fig. 14), utilise,
pour la production des ondes, huit lampes dune puissance unitaire
de 500 watts. Les quatre premières sont des « valves
» qui redressent le courant dalimentation fourni par un
alternateur de 5 kilowatts, à 600 périodes par seconde.
Le courant redressé, sensiblement continu, alimente les plaques
des uatre dernières lampes qui jouent le rôle de lampes
génératrices.
Le circuit du microphone, alimenté par une batterie daccumulateurs
de 6 volts, agit, par lintermédiaire dun transformateur,
sur la grille dune petite lampe à 3 électrodes.
Les courants microphoniques, accrus par cette petite lampe, sont amplifiés
à nouveau par une nouvelle lampe dune puissance plus
grande. Ils agissent finalement sur les grilles dun groupe de
quatre lampes en parallèle de 500 watts qui modifient la tension
dalimentation des lampes génératrices.
Ce poste permet des portées de 1.000 à 1.600 kilomètres.
Il peut être monté sur un paquebot ou être employé
pour réaliser une station fixe. Il a servi en dernier lieu
pour les démonstrations de radiotéléphonie et
de transmission de chants et de musique à distance, organisées
le 26 novembre 1921 au cours dun banquet et, le 15 décembre,
à loccasion du « Gala de la T. S. F. », donné
par le Radio-Club au théâtre des Champs-Elysées.
Lémission était reçue à Paris sur
une petite antenne en T de 30 mètres de longueur, placée
sur la terrasse du bâtiment ; la prise de terre était
faite sur une conduite deau. Le dispositif de réception
comprenait un résonateur destiné à « syntoniser
» la réception avec la longueur donde de 2.800
mètres utilisée (fig. 15). Comme il sagissait
de faire entendre les émissions radiotéléphoniques
à tous les auditeurs dune vaste salle, un dispositif
amplificateur très puissant avait été prévu.
Il comprenait un premier amplificateur à résonance à
quatre lampes donnant trois degrés successifs damplification
et détectant les courants de réception. Un deuxième
amplificateur à six lampes, installé à la suite
du premier, donnait encore six degrés damplification.
Enfin, un récepteur téléphonique haut-parleur,
muni dun pavillon analogue à celui dun phonographe,
était place à la sortie du deuxième amplificateur.
Ce dispositif amplifiait environ dix millions de fois la puissance
des oscillations recueillies par lantenne réceptrice,
de sorte que la parole et les chants étaient reproduits avec
une fidélité remarquable et étaient perçus
très distinctement par tous les auditeurs.
Outre ces applications artistiques, la radiotéléphonie
apporte la solution dun problème qui intéresse
au plus haut point lexploitation des transports de force par
lignes électriques à haute tension.
La question des liaisons téléphoniques sur les réseaux
de distribution de courant électrique est primordiale.
Létablissement dune ligne téléphonique
sur les poteaux qui servent au transport de force se heurte à
de très grandes difficultés. En effet, linduction
due à la proximité des conducteurs à haute tension
rend toute conversation pratiquement impossible et, bien que des études
sérieuses aient été faites pour éliminer
les troubles dus à linduction, le problème nest
pas encoi'e complètement résolu.
Même sil létait complètement, il nen
resterait pas moins un danger assez sérieux pour le personnel.
On a cité, notamment, le cas dun accident mortel survenu
à un homme qui sétait enroulé dans un fil
tombé à terre dune ligne téléphonique
placée sous un transport de force à 45.000 volts. De
plus, en cas de coupure de la ligne, la communication devient impossible
au moment où elle serait le plus utile.
Certaines sociétés ont été amenées
à construire des lignes téléphoniques spéciales
utilisant des supports différents de ceux du transport dénergie,
mais le coût détablissement de telles intallations
sest très élevé pour les longues distances et
les grands frais engagés sont loin de donner une sécurité
complète.
On a trouvé récemment une solution très élégante
dans lemploi de petits postes de radiotéléphonie
de très faible puissance. Equipés avec des antennes
dune hauteur moyenne de 15 mètres, leur puissance est
suflisante pour assurer une communication sûre dans un rayon
atteignant une trentaine de kilomètres.
Mais cette portée peut être accrue cousidérablement
si lon utilise leffet directeur des ondes par les fils
de transport dénergie. En plaçant lantenne
démission au voisinage de la ligne, les ondes, modulées
au préalable par le microphone, sont rayonnées par lantenne
et collectées par la ligne qui les conduit sous forme de courants
à haute fréquence jusquau poste correspondant.
A larrivée, une antenne réceptrice, placée
également au voisinage de la ligne, est induite par les courants
de haute fréquence qui agissent enfin sur le récepteur.
Dans un tel dispositif, les courants de haute fréquence se
superposent aux courants du transport de force sans quil en
résulte aucune gêne à la réception, leffet
de ces derniers pouvant être facilement éliminé.
La transmission de la parole reste assurée, bien entendu, même
si les lignes du réseau sont rompues accidentellement et tombées
à terre ; les ondes quittent la ligne coupée, franchissent
lespace et rejoignent lautre tronçon. On peut,
par ce procédé, réaliser des portées de
lordre dune centaine de kilomètres.
Le matériel nécessaire pour réaliser ce système
de communication est dun fonctionnement extrêmement simple;
la figure 17 représente tous les appareils démission,
de réception et dappel à lexclusion des
accumulateurs et dun petit convertisseur pour lalimentation
des lampes.
FIG. 17
- POSTE ÉMETTEUR ET RÉCEPTEUR DE RADIOTÉLÉPHONIE
AVEC APPEL ASSURANT LES COMMUNICATIONS ENTRE LES CENTRALES
ET LES SOUS-STATIONS DUN RÉSEAU DE DISTRIBUTION DÉLECTRICITÉ
OU DE TRANSPORT DE FORCE L'émetteur placé à gauche,
utilise à volonté une ou deux lampes à trois
électrodes, suivant la portée à réaliser.
Au centre, se trouve F appareil récepteur et, à droite,
est placé F annonciateur qui avertit le poste appelé
par une sonnerie ou une lampe.
La figure schématique 18 montre la disposition des circuits
émetteurs et récepteurs ainsi que lagencement
des antennes par rapport à la ligne.
Les variations de courant produites par les paroles prononcées
devant le microphone M modulent, par l'intermédiaire du transformateur
T2, les courants de haute fréquence engendrés et amplifiés
par les lampes I1 L2. L'antenne est accouplée à l'appareil
au moyen du transformateur Tj. L'interrupteur I permet de mettre à
volonté une ou deux, lampes en circuit. Le schéma de
réception, situé à gauche, est constitué
par un transformateur T3, une lampe détectrice et un écouteur
téléphonique A. La bobine de self induction S permet
d'obtenir l'accord voulu.
Le poste comprend deux antennes, lune pour lémission,
lautre pour la réception. Toutes deux sont constituées
par deux fils tendus parallèlement à la
ligne de transport dénergie sur
une longueur de 80 à 120 mètres, à un écartement
de 1 à 2 mètres, de façon quelles ne puissent,
en aucun cas, même accidentellement, venir en contact avec les
fils du réseau à très haute tension.
Lémetteur utilise à volonté une ou deux
petites lanqies à trois électrodes, suivant la portée
à réaliser. Le circuit microphonique agit ici simplement
par absorption sur lantenne. Lémetteur permet lemploi
de sept ondes différentes qui correspondent aux trous disposés
sur la face avant. Lénergie nécessaire pour faire
fonctionner le poste est fournie par un petit groupe convertisseur
alimenté soit directement par le réseau, soit par des
accumulateurs, afin que linstallation puisse fonctionner, même
en cas de panne du secteur de distribution.
Le récepteur ne comporte quune seule lampe servant à
la fois de détecteur et damplificateur. Il est complété
par un annonciateur avec sonnerie, qui avertit lorsque le poste est
appelé. La sonnerie est déclenchée par une simple
émission sur londe pour laquelle le récepteur
est accordé, mais, pour celle-ci seulement. Dans le cas où
le poste peut être appelé par plusieurs correspondants
différents, il est nécessaire que lappel soit
accompagné dune indication désignant le poste
appelant. Un appareil ingénieux nommé « indicateur
dappel », a été créé à
cet effet ; il provoque lallumage dune petite lampe indicatrice
du poste radiotéléphonique qui a fait lappel.
Le croquis 16 représente schématiquement un réseau
comprenant, en A, B et C, trois postes fixes pouvant communiquer deux
à deux. Sur la ligne est placé un poste mobile qui peut
être installé dans le camion de léquipe
de réparation et qui, mis en station en un point quelconque
de la ligne, permet aux surveillants de communiquer avec lun
quelconque des postes du réseau.
Les premiers essais du système que nous venons de décrire
ont eu lieu lété dernier sur le réseau
de la Compagnie Electrique du Nord ; des postes étaient installés
à Hirson et à Beautor. Les résultats ont été
pleinement satisfaisants et plusieurs autres secteurs électriques
sont maintenant munis de ces appareils qui sont appelés à
supplanter à bref délai les liaisons à fil ,
pour lexploitation des réseaux de distribution de courant.
Une application intéressante de ces dispositifs est à
envisager également pour lexploitation des chemins de
fer. Ils permettront de réaliser dune façon sûre
les liaisons entre stations, entre trains et gares, et entre trains
en marche. On dispose, en effet, le plus souvent le long dune
voie ferrée, de nappes de fils métalliques parallèles
à la voie qui peuvent être utilises pour canaliser les
ondes magnétiques émises par les petits postes cjue
nous venons de décrire.
Malgré les résultats merveilleux et vraiment pratiques
de la radiotéléphonie, il ne semble pas quelle
puisse supplanter la téléphonie avec fil dans les communications
entre abonnés dune même ville ou dun même
pays. La gamme de longueurs dondes utilisables pour la radiotéléphonie
nest pas infinie, et si lon considère quil
faut laisser une marge suffisante pour quelles ne risquent pas
de se brouiller mutuellement à la réception, on saperçoit
que le nombre de communications possibles serait loin dêtre
suffisant pour faire face à tous les besoins dune exploitation
intensive dans la même région. Il ne faut pas oublier,
dautre part, que léther est déjà
traversé par les ondes de nombreux postes de télégraphie
sans fil qui ne parviennent à éviter le brouillage que
grâce à une réglementation judicieuse ; or, les
longueurs dondes utilisées par ces postes ne sont, évidemment,
plus disponibles pour la radiotéléphonie.
Mais il existe nombre dapplications pour lesquelles la radiotéléphonie
permettra de réaliser des liaisons jusqualors à
peu près impossibles ou malaisées par dautres
procédés.
Des postes fixes permettront de relier entre elles, dans les régions
dépourvues de communications, des fermes ou des châteaux
éloignés, des usines ou des chantiers appartenant à
la même entreprise; des stations de montagne souvent isolées
par les neiges.
Des stations plus puissantes installées dans les capitales
ou les villes importantes pourront téléphoner à
heures fixes des messages dinformation, cours de bourses, résultats
sportifs, etc... que recevront un très grand nombre de postes
récepteurs placés chez les abonnés de toute une
région.
Le nombre des abonnés pourra être multiplié
dautant mieux que le matériel dun poste récepteur
est relativement peu coûteux. On disposera ainsi dun moyen
ultra-rapide pour diffuser dans tout un pays les nouvelles et les
idées.
Ces mêmes stations pourront être employées à
donner à leurs abonnés des auditions de musique, de
chants, ou à leur faire entendre une pièce de théâtre.
Des postes plus puissants encore, équipés avec les alternateurs
à haute fréquence dont nous avons parlé, permettront
de communiquer entre continents partout où les câbles
sous-marins sont incapables de transporter la voix. On sait, en effet,
que les câbles dune certaine longueur ne peuvent transmettre
les courants téléphoniques qui sont très rapidement
affaiblis par la grande « capacité » que possèdent
les deux armatures du câble, nécessaires pour sa solidité.
Les particuliers pourront utiliser eux-mêmes ces liaisons radiotéléphoniques
transcontinentales avec la plus grande facilité. On a, en effet,
réussi à actionner à distance une station radiotéléphonique
au moyen dune ligne téléphonique à fil
ordinaire. Un abonné quelconque du réseau
dÉtat pourra, en demandant la communication avec la station
radiotéléphonique, parler de chez lui avec un correspondant
habitant lAlgérie, par exemple. Il entendra sa réponse
dans son propre récepteur, exactement comme sil téléphonait
à un autre abonné de la même ville. Ce nouveau
mode de liaison paraît convenir tout spécialement à
nos possessions du nord de lAfrique et à la Corse avec
lesquelles on ne peut téléphoner actuellement. Il suffirait
dinstaller deux stations radiotéléphoniques, de
puissance appropriée à la distance, lune sur la
côte française et lautre sur la côte algéricnne.
La station française serait reliée par fil au réseau
téléphonique de la métropole et la station algérienne
serait reliée au réseau local. Un abonné parisien
pourrait être mis en communication avec la station française
côtière, les courants modulés par son microphone,
transportés par le lil, agiraient sur lémission
de* cette dernière et traverseraient la Méditerranée
,sous forme doncles modulées. La station algérienne
recueillerait ces ondes, les transformerait en courants téléphoniques
qui parviendraient par fil au récepteur dun abonné
quelconque du réseau algérien.
Enfin, sur mer, la radiotéléphonie permettra aux passagers
de se tenir constamment en communication avec la côte.
Dailleurs, si lon envisage encore 1emploi de stations
côtières servant de relais avec le réseau téléphonique
de lEtat, ainsi quil vient dêtre expliqué,
les particuliers pourront téléphoner très facilement
d'une ville quelconque et de chez eux avec un navire en pleine mer.
Enfin, par temps de brouillard, les bateaux pourront être guidés
au moyen des indications qui leur seront téléphonées
de la côte où des postes radio-goniométriques
auront permis au préalablé de déterminer leur
position. On pourra ainsi conduire de la côte un navire et ramener
au port en toute sécurité.
Rappelons lutilisation que font les avions des postes radiotéléphoniques
pour parler avec le sol, signaler leur approche aux terrains datterrissage
et en recevoir les avis intéressant la navigation aérienne
tels que vitesse et direction du vent, arrivée dune bourrasque,
brume, etc...
On voit que, malgré la restriction que nous avons faite au
début, un champ extrêmement vaste souvre pour les
applications pratiques de la radiotéléphonie. Les agriculteurss
pourront facilement recevoir des prévisions régionales
du temps de lOffice national météoroloique, au
moment même où elles sont élaborées. En
effet, une installation de téléphonie sans fil de la
Tour Eiffel permettra de téléphoner directement, de
lOffice national météorologique, des prévisions
régionales qui pourront être entendues dans toute la
France. Il suffira, pour écouter ces transmissions, de posséder
chez soi à peu de frais et utilisé sans aucune instruction
préalable de lecture au son, ce qui écarte la difficulté
principale de la vulgarisation de la T. S. F
Jean Marchand
sommaire
La Réception
En dépit de la puissance qu'on pouvait mettre
en jeu dans les grandes stations radio-électriques, l'intensité
de leurs signaux devenait très faible à une distance
de plusieurs milliers de kilomètres. Si l'on veut bien remarquer
que l'antenne d'émission d'un poste à ondes longues
rayonne dans toutes les directions, on comprend aisément que
le correspondant ne recueille qu'une très faible part de l'énergie
dispersée.
On dispose, il est vrai, de la possibilité de correspondre
avec des stations réceptrices dans tous les azimuts.
A ce premier inconvénient, venait s'en ajouter un second, celui
des parasites atmosphériques. L'antenne d'un poste de réception
est exposée non seulement à recueillir les ondes de
la station d'émission, mais aussi à collecter toutes
les oscillations électriques qui lui parviennent de toutes
les directions. En outre, les oscillations engendrées par des
phénomènes locaux d'électricité atmosphérique
peuvent se manifester, suivant la latitude et suivant la saison, avec
une intensité excessivement variable. On sait que, dans les
pays tropicaux, les parasites sont extrêment violents. On conçoit
que, dans ces conditions, le signal déjà faible d'une
station d'émission éloignée puisse être
couvert par un parasite dont l'intensité est supérieure
à la sienne et que l'appareil récepteur amplifie dans
les mêmes proportions.
Augmenter encore la puissance de l'émission, afin d'avoir,
aux très grandes distances, des signaux nettement plus forts
que les parasites locaux, il n'y fallait guère songer. Les
énergies mises en jeu étaient devenues relativement
considérables. Les accroître encore eût obligé
à augmenter exagérément les dimensions des antennes
et eût conduit à dépasser la tension de 150 000
volts, dont nous avons dit plus haut qu'elle était la limite
pratique pour un bon isolement. D'autre part, tout cela eût
entraîné à des frais inadmissibles.
Il fallait donc résoudre la difficulté du côté
de la réception en recherchant comment éteindre le parasite,
ou, au moins, en diminuer fortement l'intensité par rapport
à celle du signal.
Un premier procédé consistait à établir
l'antenne de réception de façon qu'elle pût être
influencée seulement par les oscillations électriques
provenant de la direction du correspondant. La question des antennes
directives avait fait l'objet en France et à l'étranger
de nombreuses recherches, et l'on avait trouvé des systèmes
d'aériens répondant dans une certaine mesure à
cette condition (antennes Beverage, cadres rectangulaires, etc.).
Ce procédé, étant sans effet sur les parasites
provenant soit de la direction de l'émetteur, soit du zénith,
ne pouvait constituer qu'un palliatif. Il était donc nécessaire
de s'attaquer à l'élimination des oscillations atmosphériques
dans le récepteur lui-même.
Avec la collaboration de M. Regnault de Bellescize, la Société
Française Radio-Électrique a réalisé un
ensemble de "réception sélective et antiparasite"
comportant un aérien unique formé par la combinaison
de cadres et d'une antenne et pouvant actionner simultanément
plusieurs récepteurs. Cet ensemble, permettant la réception
automatique à grande vitesse jusqu'à 150 mots à
la minute, mis en service pour la première fois à la
station de Villecresnes (de la Compagnie Radio-France), a équipé,
par la suite, un grand nombre de stations étrangères.
Les Ondes Courtes.
Le problème de l'émission.
Nous avons vu que l'utilisation des ondes longues nécessite,
pour les radiocommunications à grande distance, la mise en
jeu de grosses puissances, dont une fraction seulement se propage
vers le correspondant.
Par ailleurs, le développement des radiocommunications dans
le monde entraînant la multiplication des stations d'émission,
il apparut bien vite que la gamme des ondes longues était beaucoup
trop étroite.
Sous l'empire de cette nécessité, les techniciens étaient
amenés à envisager l'emploi des ondes courtes et à
reprendre les études sur ces ondes, qui avaient été
à peu près abandonnées, avant la guerre, à
cause des difficultés que soulevait leur utilisation et que
la technique était alors impuissante à résoudre.
Mais, depuis cette époque, la radio-électricité
avait enrichi ses moyens d'un organe merveilleux qui devait permettre
aux ingénieurs de reprendre leurs travaux sur les ondes courtes
avec plus de chances de succès.
Cet organe, la lampe à trois électrodes, dont l'emploi
venait d'être rendu possible peu avant la guerre, devait connaître
pendant et après la guerre des perfectionnements incessants.
Parmi les qualités étonnantes qu'elle révélait,
tant pour la génération des oscillations électriques
que pour leur réception, elle manifestait celle de pouvoir
produite, avec assez de facilité, les ondes très courtes.
C'est la raison pour laquelle de nombreux amateurs purent s'exercer
à réaliser des communications sur ondes courtes.
Grâce aux nouveaux dispositifs à lampes, des résultats
remarquables furent obtenus. Des portées considérables
furent atteintes avec des appareils rudimentaires et des puissances
excessivement faibles (quelques watts seulement).
Certains furent alors tentés de croire que les radiocommunications
sur ondes courtes étaient réalisées et qu'on
allait pouvoir tout de suite utiliser ces ondes commercialement, avec
des appareils très simples et peu coûteux.
En fait, les premières expériences n'apportaient que
des espoirs nouveaux, mais elles ne permettaient encore de formuler
aucune technique précise. Elle faisaient ressortir, au contraire,
les anomalies, les irrégularités de propagation de ces
ondes telles qu'on les avait déjà observées au
début de la T.S.F. et dont il fallait absolument s'affranchir
dans des services publics.
Il était apparu que la propagation des ondes courtes suivait
des lois extrêmement complexes et qu'elle dépendait de
nombreuses variables, telles que la fréquence de l'onde, la
forme de l'antenne, la distance du récepteur à l'émetteur,
la situation géographique de l'émetteur, celle du récepteur,
les conditions d'éclairage solaire du trajet présumé
de la transmission, les circonstances atmosphériques, la saison,
etc...
Ainsi, telle émission sur une onde déterminée
qui était reçue très fortement à des milliers
de kilomètres devenait inaudible brusquement, sans que rien
n'eût varié à l'émetteur ni au récepteur.
La disparition des signaux pouvait aussi se produire d'un jour à
l'autre, à des heures différentes ou identiques.
Telle émission reçue à très grande distance
ne pouvait être entendue par des correspondants rapprochés.
Et, circonstance aggravante, à ce phénomène de
"disparition" des ondes suivant l'heure de la journée
ou de la nuit, on devait ajouter le phénomène de l'évanouissement
dit "fading", consistant dans de très grandes et
rapides variations de l'intensité des signaux, qui se produisait
d'une façon continue, mais avec une périodicité
très variable.
En outre, de grosses difficultés se rencontraient pour la réalisation
des émetteurs à ondes courtes notamment dans la construction
des lampes et dans celle des circuits.
La capacité interne des triodes devenait supérieure
à celle des organes d'oscillation, de telle sorte que des courants
de haute fréquence très intenses traversaient les organes
des lampes en produisant des échauffements considérables.
Il y avait aussi les pertes diélectriques dans les isolants,
qui étaient énormes.
Enfin, de faibles écarts dans les caractéristiques de
l'antenne, par exemple sous l'effet du vent, des variations de température
dans les circuits, ou de tension dans les sources d'alimentation,
des phénomènes internes dans les lampes, entraînaient
une grande instabilité de la fréquence des ondes émises.
En face d'un problème d'une telle complexité, il était
apparu à la Société Française Radio-Électrique
que seule une expérimentation méthodique, entreprise
sur une très vaste échelle, avec des moyens techniques
puissants, permettrait d'effectuer des observations nombreuses et
coordonnées, indispensables pour déterminer et les possibilités
d'utilisation pratique des ondes courtes et les meilleures solutions
pour leur emploi.
Aussi, après avoir effectué les premières études
au laboratoire, les services techniques de la Société
Française Radio-Électrique installaient en 1924 deux
stations expérimentales, l'une à Clichy, l'autre à
Sainte-Assise, spécialement conçues pour l'étude
comparative de divers types d'antennes, de diverses formes de rayonnement
et de leur efficacité à toutes distances et aux différentes
heures du jour et de la nuit.
L'organisation de ces deux stations avait nécessité
la mise en uvre d'un matériel fort important et la construction
de bâtiments spéciaux. Les aériens soumis à
l'expérimentation couvraient une surface de 20 hectares et
comprenaient des antennes de tous modèles : fils verticaux
de 15 mètres à 130 mètres de long, alignements
d'antennes, nappes verticales en éventails, etc., qu'on modifiait
sans cesse selon les résultats obtenus.
Les émissions expérimentales étaient effectuées
nuit et jour. Elles comportaient des séries d'essais exécutés
selon des programmes méthodiques et des horaires précis,
arrêtés à l'avance, avec des postes de réception
installés en France et en Europe pour l'étude des phénomènes
à petite et moyenne distance, aux États-Unis, en Argentine,
en Indochine, en Syrie etc., pour l'étude des phénomènes
à très grande distance. Tous ces correspondants faisaient
connaître télégraphiquement les résultats
de leurs observations.
Commencées avec des ondes de l'ordre de 200 mètres,
les expériences se poursuivaient sur des ondes de plus en plus
courtes jusqu'à 10 mètres.
On reconnaissait bientôt que, tandis que l'emploi d'ondes de
10 à 25 mètres favorisait la propagation diurne, les
communications nocturnes étaient plus satisfaisantes avec des
ondes de 30 à 60 mètres.
On constatait aussi qu'avec deux ou trois ondes convenablement choisies,
on pouvait franchir des distances considérables, dépassant
10 000 kilomètres, à peu près à toutes
heures de jour et de nuit.
Contrairement à l'opinion trop sommaire qui s'était
répandue à la suite des résultats sensationnels
obtenus avec des énergies infimes et dans des circonstances
très favorables, par les premiers expérimentateurs,
l'influence de la puissance fut nettement mise en évidence
par ces essais et l'on dut reconnaître qu'il était indispensable,
pour les radiocommunications à ondes courtes, de mettre en
jeu une puissance suffisante afin de remédier aux variations
d'amplitude provoquées par les phénomènes de
propagation.
Il apparut également qu'une condition essentielle d'une bonne
communication à ondes courtes était la rigoureuse stabilité
de l'onde émise, faute de quoi toute réception rapide
devenait impossible.
Enfin les expériences devaient permettre de dégager
le rôle important des divers types d'antennes à rayonnement,
dirigé ou non, et de mettre en évidence la grande efficacité
des antennes multiples, à effet directif, fonctionnant comme
réflecteur.
De tous ces résultats d'expérience, la Société
Française Radio-Électriques allait tirer la juste formule
de l'exploitation commerciale des ondes courtes : émetteurs
suffisamment puissants, d'une très grande stabilité,
alimentant des antennes dirigées
Il fallut passer à la réalisation. Celle-ci devait soulever
des difficultés multiples. En premier lieu, l'établissement
de puissants générateurs à ondes courtes posait
le problème de la construction de lampes et de circuits. Lorsqu'on
met en jeu une énergie de plusieurs kilowatts, la capacité
des triodes atteint le même ordre que celle des organes d'exploitation
proprement dits et elle est souvent même supérieure.
Les triodes constituent des circuits oscillants secondaires qui peuvent
être traversés par des courants très intenses,
produisant des échauffements considérables dans leurs
différents éléments. En outre, les pertes diélectriques,
qui augmentent avec la fréquence, contribuent encore à
l'échauffement de certains organes, ce qui rend très
difficile de souder l'ampoule de verre aux armatures métalliques.
Il faut ajouter à cela l'influence, sur le degré du
vide de la lampe, du phénomène oscillatoire extrêmement
rapide des ondes courtes. On conçoit donc que la réalisation
de fortes lampes pour la génération des ondes courtes
n'ait pu être obtenue qu'après de longues et délicates
recherches.
La question de la stabilité offrait aussi de grosses difficultés.
Les laboratoires de la Société Française Radio-Électriques,
en vue d'aboutir à une réalisation technique aussi simple
que possible, s'étaient d'abord proposé de constituer
les émetteurs à ondes courtes par une lampe puissante,
montée en auto-excitation. Cette solution permettait de changer
la longueur d'onde aisément et de choisir facilement, dans
chaque cas, l'onde la mieux appropriée à la liaison
à desservir.
Afin d'assurer la stabilité de fréquence d'un tel générateur,
on avait réalisé un régulateur de fréquence
d'une conception tout à fait originale. Cet appareil, fondé
sur les phénomènes de saturation d'un circuit magnétique,
constitué avec des tôles spéciales, permettait
de commander l'émetteur à ondes courtes par un émetteur
auxiliaire de faible puissance et d'une stabilité rigoureuse,
en maintenant fixe la différence entre la fréquence
de l'émetteur principal et celle de l'émetteur auxiliaire.
Cette régulation de fréquence, qui ne mettait en jeu
que des phénomènes électromagnétiques
s'opérait sans aucune inertie autre que celle des circuits.
Ce régulateur permettait en outre d'effectuer très simplement
la manipulation à grande vitesse.
Dès 1925, un type d'émetteur propre à l'exploitation
commerciale avait été réalisé par la Société
Française Radio-Électrique. Installé à
la station de Sainte-Assise, de la Compagnie Radio-France, il permettait
d'obtenir immédiatement, avec une puissance antenne de 6 à
8 kilowatts, sur des ondes de 25 à 40 mètres, des résultats
extraordinaires pour l'époque.
Un trafic commercial régulier pouvait être établi
le 1er octobre 1925 avec Buenos-Aires (11 000 kilomètres) à
une vitesse dépassant 60 mots à la minute.
De même, une communication pouvait être réalisée
avec New-York à la vitesse de 120 et même 150 mots à
la minute.
Les signaux de ce poste étaient reçus au Japon (11 000
kilomètres), à Nouméa (16 700 kilomètres).
On ne saurait mieux préciser l'importance du résultat
technique auquel avaient atteint les laboratoires de la Société
Française Radio-Électrique qu'en citant la lettre adressée
le 20 octobre 1925 par le chef du trafic d'une des plus grandes compagnies
étrangères :
La force des signaux de Sainte-Assise ondes courtes est beaucoup plus
grande que celle de n'importe quel autre transmetteur européen
à ondes courtes écouté par nous jusqu'ici. En
fait, c'est à présent la seule émission que montre
des promesses d'utilisation commerciale.
De même, le chef du centre d'écoute de Buenos-Aires écrivait
le 1er novembre 1925 :
J'ai fait avec Sainte-Assise ondes courtes de l'enregistrement automatique
à 60 mots à la minute. C'est la première fois
que je peux arriver à cette vitesse en ondes courtes et j'en
suis bien content. Jusqu'ici des variations combinées de fréquence
et d'intensité empêchaient l'inscription. Avec Sainte-Assise
ondes courtes, la réception est parfaite pendant des heures
sans qu'aucune retouche ou presque soit nécessaire.
Grâce à sa simplicité de construction, à
sa grande souplesse d'utilisation et à son efficacité
en trafic, ce type d'émetteur fut adopté pour l'équipement
de nombreuses stations à ondes courtes notamment à Sainte-Assise,
Beyrouth, Santiogo-du-Chili, Téhéran, Saïgon, Tomioka,
Shanghaï, etc.
Toutefois, en dépit de toutes ses qualités, cet émetteur
qui avait été étudié seulement en vue
de la radiotélégraphie allait se révéler
insuffisant quand on voulut étendre le champ d'exploitation
des ondes courtes à la radiotéléphonie.
La modulation téléphonique sur un émetteur à
autogénération produit, en effet, des réactions
qui se traduisent à grande distance par une distorsion susceptible
de rendre la parole inintelligible.
Cet inconvénients ont conduit à l'étude d'un
nouveau type d'émetteur à ondes courtes tout à
fait différent et dont la fréquence est engendrée
et commandée par un oscillateur de très faible puissance
stabilisé par un cristal de quartz piézo-électrique.
L'utilisation de ce procédé a, bien entendu, entraîné
des difficultés nouvelles et compliqué un peu la réalisation
technique de l'émetteur.
D'abord il est nécessaire que le cristal de quartz soit maintenu
à une température rigoureusement constante à
quelques dixièmes de degrés près, ce qui a été
réalisé en enfermant le quartz à l'intérieur
d'une boite métallique en acier, maintenue à température
constance par un thermostat. Ensuite, il a fallu prévoir des
étages spécieux pour multiplier la fréquence
propre du quartz. On sait, en effet, que la longueur l'onde d'un quartz
est d'environ 120 mètres par millimètre d'épaisseur.
Il faut donc, pour obtenir des ondes de l'ordre de 10 à 50
mètres, avec des quartz d'épaisseur pratiquement admissible,
multiplier leur fréquence propre.
Enfin, en raison de la puissance très faible de ce générateur
d'oscillations, il est indispensable d'amplifier les courants de haute
fréquence en prenant toutes les précautions nécessaires
pour ne pas introduire de causes d'instabilité.
Le nouvel émetteur réalisé par la Société
Française Radio-Électrique, qui a pris place dans les
stations radio-électriques modernes à grand trafic commercial,
a été établi pour des puissances antenne de 10
kilowatts à 25 kilowatts. Il permet, à la fois, de réaliser
des liaisons radio-télégraphiques à des vitesses
de manipulation qui dépassent 200 mots à la minute et
des communications radio-téléphoniques à plus
de 10 000 kilomètres.
La Société Française Radio-Électriques
a fourni de tels émetteurs pour l'équipement des stations
de Sainte-Assise, Buenos-Aires, Pontoise (centre radio-électrique
de l'Administration française des P.T.T.), Saïgon, Tananarive,
Prangins (centre radio-électrique de la Société
des Nations); etc.
Les Aériens Projecteurs.
Parallèlement au générateur d'ondes courtes,
les ingénieurs de la Société Française
Radio-Électrique mettaient au point un système aérien
directif dont les remarquables qualités techniques devaient
s'affirmer dès sa mise en service.
Nous avons vu plus haut qu'on était arrivé à
concentrer les ondes courtes en des faisceaux étroits susceptibles
d'être dirigés vers le poste correspondant. On augmente
encore cet effet de concentration en disposant au poste de réception
un système projecteur analogue.
Le principe suivant lequel sont construits les aériens projecteurs
consiste à disposer leurs différents éléments
de telle manière que les courants qui les traversent ajoutent
leurs effets dans une direction déterminée et les annulent
dans les autres directions. On obtient ainsi une concentration d'énergie
dans une direction perpendiculaire au plan de l'aérien.
Il y avait une grosse difficulté dans la réalisation
d'un pareil dispositif, celle de l'alimentation des différents
éléments. Dans certains systèmes, mis au point
dans d'autres pays, l'antenne est constituée par un grand nombre
de fils verticaux alimenté deux à deux par les dérivations
successives d'un feeder relié au poste émetteur. Cette
antenne est accompagnée d'un déflecteur, qui est disposé
parallèlement, derrière elle et qui comprend un nombre
double de fils verticaux. L'alimentation des fils d'antenne nécessite
une symétrie absolue, de façon que la longueur du feeder
entre chaque brin d'antenne et l'émetteur soit constance. De
plus, des dispositions mécaniques très rigoureuses doivent
être prises pour assurer la tension des fils verticaux et maintenir
leur parallélisme. Ces complications mécaniques et électriques
conduisent à des réglages délicats assez longs.
Il faut ajouter aussi qu'un tel aérien ne peut projeter d'énergie
que dans un seul sens, en avant de l'antenne; si l'on veut transmettre
dans l'autre sens, il est nécessaire d'adjoindre un second
rideau d'antenne symétrique du premier par rapport au rideau
réflecteur.
Le système d'aérien mis au point par la Société
Française Radio-Électrique est d'une extrême simplicité
(M Chireix, ingénieur en chef des études et recherches,
en est l'inventeur. M le professeur Mesny avait lui-même émis
les idées qui ont facilité les études de M Chireix.
Aussi avons-nous appelé ce système d'aérien le
"Chireix/Mesny" ou "C.M", afin d'honorer ces deux
savants.). Constitué par des éléments en "dents
de scie", l'alimentation est faite en un seul point, au centre
du rideau.
L'élément réflecteur est identique à l'élément
émetteur, ce qui fait qu'un tel aérien peut projeter
l'énergie à volonté dans un sens ou dans l'autre,
chaque rideau pouvant jouer successivement le rôle d'antenne
et de réflecteur.
En outre, la simplicité mécanique de cet aérien
est très grande. Sa mise en place peut être effectuée
en quelques heures. Enfin, l'effet directif est considérable
: par exemple, en comparant l'effet d'un tel aérien composé
de deux baies de 75 mètres de longueur à celui d'une
antenne simple alimentée à la même puissance,
on a trouvé que le projecteur Chireix/Mesny multiplie l'énergie
à la réception par 70 environ par une seule baie et
par plus de 100 avec les deux baies.
La Réception des Ondes Courtes.
Pour la réception des ondes courtes, on a
d'abord utilisé, comme on le faisait à l'émission,
des montages très simples : une lampe détectrice à
réaction suivie d'étages d'amplification à basse
fréquence. Mais ce dispositif, dont un défaut essentiel
était le manque de stabilité, s'est vite révélé
insuffisant. On a eu recours ensuite au procédé du changement
de fréquence qui apportait une amélioration sensible
pour la réception des émissions radiotélégraphiques,
mais qui se prêtait mal à la radiotéléphonie.
Le défaut de tous ces récepteurs résidait surtout
dans l'insuffisance de l'amplification à haute fréquence
dont la réalisation soulevait en effet de grosses difficultés
techniques pour les ondes courtes.
Les ingénieurs de la Société Française
Radio-Électrique, profitant des enseignements que leur avaient
apportés leurs travaux sur les amplificateurs à très
haute fréquence destinés aux émissions radiotéléphoniques,
ont repris l'étude de la réception à ondes courtes
et ont réussi à réaliser des récepteurs
d'une remarquable efficacité tant pour le trafic télégraphique
que pour le trafic téléphonique.
Ces récepteurs comportent, à l'entrée, une amplification
considérable des ondes reçues, suivie d'un seul changement
de fréquence qui fonctionne ainsi sur un signal de grande amplitude,
ce qui réduit le bruit de fond à une valeur pratiquement
négligeable. Un système antifading commande automatiquement
l'amplification à haute fréquence suivant l'amplitude
du signal reçu et permet ainsi d'obtenir une réception
d'intensité constante en dépit de variations, même
très importantes, dans l'amplitude des signaux. Autrement dit,
si l'amplitude de ces signaux, du fait des phénomènes
de propagation, tend à diminuer, l'amplification du récepteur
s'accroît dans la même proportion et inversement. Grâce
à ce dispositif, les communications radio-téléphoniques
s'échangent sans qu'il soit pratiquement possible de distinguer
de variations dans l'intensité de la voix des usagers.
Le Multiplex.
Les nécessités de l'exploitation ont
entraîné les ingénieurs de la Société
Française Radio-Électrique à apporter à
leur matériel de nouveaux perfectionnements pour en augmenter
le rendement et les facilités d'utilisation.
Au nombre de ces perfectionnements, il convient de citer le système
de transmission multiplex qui a pour objet de réaliser avec
un seul émetteur et un seul récepteur deux communications
radiotéléphoniques et une communication radiotélégraphique
sur la même longueur d'onde.
Il semble a priori que les trois émissions doivent interférer
les unes avec les autres et se brouiller mutuellement. Mais il n'en
est rien grâce à un procédé ingénieux,
dont voici le principe.
On module l'onde porteuse de l'émetteur par la combinaison
de trois bandes de fréquence correspondant chacune à
l'une des communications. Les appareils de réception opèrent
la sélection de ces bandes de fréquence en restituant
à chacune d'elle la forme qu'elle avait au départ. Pour
les communications radiotéléphoniques, les fréquences
acoustiques de chacun des deux courants microphoniques sont, au moyen
de modulateurs de fréquence spécialement conçus,
l'une transposée, l'autre transposée et inversée
dans deux bandes de fréquences distinctes et plus élevées.
Quant à la communication radiotélégraphique,
elle est effectuée sur deux fréquences plus élevées
que celles des bandes radiotéléphoniques. A la réception,
on fait subir aux communications les opérations inverses et
on retrouve à la sortie des appareils les courants microphoniques
convenablement séparés et reconstitués et la
transmission télégraphique.
Ce procédé, dont on aperçoit l'importance pour
augmenter le rendement d'une liaison à ondes courtes, présente
en même temps un gros intérêt pour la radiotéléphonie.
Il permet en effet de réaliser le secret de la communication
par téléphonie sans fil, puisque les fréquences
acoustiques des conversations téléphoniques ayant été
transposées à l'émission, un récepteur
qui n'est pas établi pour opérer la reconstitution des
fréquences d'origine, ne laissera entendre que des sons inintelligibles
dont le déchiffrement sera impossible.
sommaire
La Téléphonie Sans Fil.
La radiotéléphonie à grande
distance, rendue pratique grâce aux ondes courtes, constitue
un progrès d'une telle importance, au point de vue technique
comme au point de vue économique, qu'il convient de souligner
spécialement ici la grande part qu'a prise l'industrie française
dans sa réalisation.
Il est utile, tout d'abord, de dissiper une équivoque.
Certains s'étonnent parfois qu'il ait été nécessaire
d'attendre l'avènement des ondes courtes pour donner au problème
de la radiotéléphonie une solution satisfaisante. La
radiodiffusion, dit-on, avait été réalisée
depuis longtemps sur les ondes longues et les ondes moyennes, donc
la radiotéléphonie l'était du même coup,
celle-ci n'étant qu'un cas particulier de celle-là.
C'est inexact. La technique de la téléphonie
sans fil est distincte de celle de la radiodiffusion.
L'objet de la radiodiffusion consiste, en effet, à faire entendre
au même instant à un nombre illimité d'auditeurs,
distribués au hasard dans le rayon d'action de la station,
les mêmes informations, les mêmes concerts. La communication
entre l'auditorium de radiodiffusion et les auditeurs est "unilatérale".
D'autre part, cette communication s'établit à des heures
fixées à l'avance. Enfin, si, pour une raison quelconque,
un auditeur éprouvait des difficultés de réception,
le préjudice ne serait pas bien grave.
Au contraire, la radiotéléphonie, tout comme la téléphonie
sans fil, doit permettre, à tout instant, d'établir
rapidement entre deux personnes, dont l'une habite, par exemple, Paris
et l'autre Buenos-Aires et qui désirent entrer en communication,
une liaison bilatérale qui leur permette de tenir conversation.
Et il est désirable que cette conversation radiotéléphonique
ne puisse pas être surprise par tout auditeur de T.S.F.
Pour ne pas limiter l'usage de la radiotéléphonie à
quelques privilégiés, il est indispensable aussi que
les usagers puissent employer, pour l'émission et la réception,
leurs appareils ordinaires d'abonnés au réseau téléphonique
avec fil. Ainsi une conversation entre deux correspondants doit pouvoir
s'échanger aux distances les plus grandes avec autant de commodité
que s'il s'agissait d'une communication entre deux abonnés
d'un même réseau.
Enfin, quels que soient les deux correspondants et l'instant de leur
communication, il est indispensable que l'audition ne soit troublée
ni par des parasites atmosphériques ni par des variations dans
l'intensité de la voix.
On aperçoit maintenant quelques-uns des problèmes délicats
que la radiodiffusion n'avait pas connus et que la radiotéléphonie
allait poser.
Certes, on avait bien cherché, avant que la technique des ondes
courtes ne fût au point, à résoudre le problème
de la radiotéléphonie en utilisant les ondes longues.
Mais celles-ci, comme nous l'avons déjà dit dans le
chapitre qui leur est réserve, offrent de gros inconvénients
dont peut s'accommoder dans une certaine mesure le trafic télégraphique,
mais qui sont absolument intolérables pour un trafic téléphonique
commercial. En premier lieu, elles sont sujettes aux parasites atmosphériques
qui sont particulièrement intenses dans certains pays. Ensuite,
étant donné qu'une antenne d'un poste à ondes
longues rayonne son énergie dans toutes les directions et que
seulement une faible partie de cette énergie se propage vers
le correspondant, il faut, pour assurer un service satisfaisant avec
les ondes longues, mettre en jeu des puissances considérables.
Le rendement économique est donc excessivement faible et les
correspondants sont obligés d'acquitter des taxes extrêmement
élevées.
C'est pourquoi les services techniques de la Société
Française Radio-Électrique ont travaillé pendant
plusieurs années au problème de la radiotéléphonie
commerciale par ondes courtes.
La mise au point de l'aérien projecteur S.F.R Chireix/Mesny,
que nous avons décrit plus haut, et qui permet de concentrer
en un faisceau étroit, dirigé vers le poste correspondant,
la totalité de l'énergie émise par le poste émetteur
et, par conséquent, d'obtenir aux grandes distances une énergie
considérable avec une puissance d'émission relativement
faible, allait rendre possible la mise au point définitive
de la radiotéléphonie.
Dès le mois de mars 1928, la Société Française
Radio-Électrique effectuait une démonstration officielle
de son système, au cours de laquelle, le ministre du Commerce
et des P.T.T (M. Bokanowski) et plusieurs hauts fonctionnaires pouvaient
communiquer de leur bureau ou de leur appartement, avec le gouverneur
de l'Algérie et plusieurs personnalités d'Alger qui
les écoutaient au moyen de leur téléphone d'abonnés.
Les résultats remarquables de cette expérience avaient
été obtenus en utilisant un poste expérimental
établi par les services techniques de la Société
Française Radio-Électrique à Sainte-Assise, et
qui pouvait être commandé par l'un quelconque des appareils
téléphoniques du réseau français, avec
une puissance de l'émission d'environ 10 kilowatts. La longueur
d'onde de la transmission avait été choisie de 30 mètres.
La station de réception était installée dans
les environs immédiats d'Alger et reliée au réseau
téléphonique Nord-Africain.
Les ingénieurs de la Société Française
Radio-Électrique, poursuivant leurs essais, entreprenaient
au mois de juin 1928 de démontrer la possibilité d'une
liaison radiotéléphonique commerciale avec Saïgon
et le Japon d'une part, la République Argentine d'autre part.
Le 21 juin, la communication téléphonique était
établie entre Paris et le gouverneur du Cambodge à Pnom-Penh,
qui était relié à la station de réception
de Saïgon par un circuit téléphonique de 250 kilomètres.
Au cours de ces démonstrations expérimentales, il n'avait
pas été possible de réaliser des liaisons bilatérales
faute d'installations d'émission dans les pays correspondants.
La communication se faisait donc dans un seul sens.
Pour démontrer complètement la valeur de son procédé
et de ses appareils la Société Française Radio-Électrique
organisait, à partir du mois de juillet 1928, une nouvelle
série d'essais de communications radiotéléphoniques,
bilatérales cette fois, avec Buenos-Aires où l'on disposait
des installations nécessaires. A cette fin, deux antennes projecteurs
S.F.R Chireix/Mesny étaient installées à Sainte-Assise
et orientées vers Buenos-Aires; en outre, une antenne directive
pour la réception était établie à Villecresnes.
La liaison était réalisée, en Argentine, par
l'intermédiaire du centre de Monte Grande pour l'émission,
et de Villa Elisa pour la réception. Les longueurs d'onde utilisées
étaient respectivement de 15m,55 du côté français
et de 15m,03 du côté argentin. Cette différence
de longueur d'onde, cependant faible, permit de réaliser une
liaison bilatérale dans des conditions excellentes.
Au cours de cette expérience, les ingénieurs de la Société
Française Radio-Électrique pouvaient achever la mise
au point d'un dispositif spécial dit "antiécho",
dont le rôle est de supprimer un phénomène d'écho
téléphonique fort gênant, suivant lequel les correspondants
s'entendaient parler avec un certain retard.
Les résultats des essais étaient à ce point remarquables
que, dès le 13 août, le directeur de la Transradio Internacional,
compagnie qui exploite les liaisons radio-électriques en Argentine,
écrivait à la Société Française
Radio-Électrique "qu'à son avis l'inauguration
commerciale du service radiotéléphonique entre la France
et l'Argentine devait être envisagée dans des délais
aussi courts que possible".
Toutefois, la Société Française Radio-Électrique,
soucieuse de ne rien laisser au hasard et de n'ouvrir cette liaison
que dans des conditions de sécurité complète,
entreprenait de nouveaux perfectionnement à ses appareils.
Les essais furent repris en décembre 1928 et janvier 1929 et
donnèrent des résultats définitifs. La communication
radiotéléphonique bilatérale Paris-Buenos-Aires
était assurée avec une très grande sécurité,
les conversations s'échangeaient avec facilité et sans
répétition.
Au cours de ces conversations, aucun affaiblissement ni aucun éclat
n'étaient constatés dans la voix des correspondants.
Cette expérience avait un tel retentissement que de nombreuses
personnalités françaises et étrangères
utilisaient la communication à titre de démonstration
pendant le mois de décembre et le mois de janvier.
Le 17 décembre, notamment M. Philippe Berthelot, secrétaire
général du Ministère des Affaires Étrangères
à Paris, s'entretenait avec M. Clinchant, ambassadeur de France
à Buenos-Aires.
Au mois de janvier, un abonné du réseau de Berne était
mis en communication avec la Légation Suisse à Buenos-Aires.
Ces diverses expériences permettaient de conclure à
la mise au point définitive du procédé technique
de la Société Française Radio-Électrique
pour la radiotéléphonie transocéanique et à
la possibilité d'ouvrir immédiatement la communication
radiotéléphonique bilatérale non seulement entre
la France et Buenos-Aires, mais encore entre l'Europe et l'Argentine.
Le 31 janvier 1929, ce service radiotéléphonique était
officiellement inauguré par M Briand, ministre des Affaires
Étrangères, et par M. Germain-Martin, ministre des P.T.T.
qui entraient en conversation avec leurs collègues argentins.
Au cours de l'entretien, M. Briand fit à son correspondant
la réflexion suivante :
"Je vous entends parfaitement, aussi bien que si vous étiez
dans mon cabinet; il n'est pas possible que 11 000 kilomètres
nous séparent, la carte doit mentir."
Dès le 1er février, le service radiotéléphonique
France-Argentine était ouvert au public et l'on inaugurait
en même temps le service radiotéléphonique entre
Berne et Buenos-Aires par l'intermédiaire de Paris.
En 1930, la Société Française Radio-Électrique
équipait la station de Saïgon et, le 11 avril de la même
année, la liaison radiotéléphonique entre la
France et sa grande colonie d'Extrême-Orient était ouverte
au public.
En même temps, on se préoccupait de relier par la téléphonie
sans fil la France avec ses possessions nord-africaines. L'Office
des P.T.T. de l'Empire Chérifien faisait installer, par la
Société Française Radio-Électrique, à
Rabat, une station émettrice-réceptrice à ondes
courtes pour la télégraphie et la téléphonie
sans fil, et les services avec la France pouvaient être ouverts
en 1931. Ils étaient effectués d'abord avec la station
de Sainte-Assise de la Compagnie Radio-France, en attendant que l'Administration
française des P.T.T. possédât elle-même
un centre radiotéléphonique à ondes courtes.
Cette Administration chargeait, de son côté, la Société
Française Radio-Électrique, d'étudier et de réaliser
l'installation d'un grand centre radiotélégraphique
et radiotéléphonie à ondes courtes à Pontoise
destiné, en particulier, à assurer le service téléphonique
sans fil avec l'Afrique du Nord, ainsi que d'un poste analogue destiné
à Alger.
Toutes ces installations ont été mises en service en
1934.
Les grandes stations équipées
par la Société Française Radio-Électrique.
La description des stations radio-électriques
équipées par la Société Française
Radio-Électrique serait d'une lecture fastidieuse. Nous nous
limiterons à fournir quelques renseignements essentiels sur
quelques centre radio-électriques importants.
Stations Françaises.
Centre radio-électrique de Sainte-Assise (Compagnie
Radio-France)
Le 9 janvier 1921, était posée la première pierre
du grand centre radio-électrique de la Compagnie Radio-France,
situé à Sainte-Assise (près de Melun). Il comprenait,
dès l'origine, deux grandes stations d'émission, indépendantes
l'une de l'autre.
La station transcontinentale, destinée au service radiotélégraphique
à très grande distance avec :
L'Amérique du Nord;
L'Amérique Centrale;
L'Amérique du Sud;
L'Asie, etc...
La station continentale pour les liaisons radiotélégraphique
dans un rayon d'environ 3 000 kilomètres.
- La station transcontinentale comporte deux machines
à haute fréquence de 500 kilowatts-antenne et deux machines
de 250 kilowatts-antenne, pouvant fonctionner séparément
ou couplées électriquement deux à deux.
La manipulation, commandée à partir du Bureau Central
de Radio-France (BCR) à Paris, 166, rue Montmartre, peut être
effectuée à une vitesse de plus de 100 mots par minute.
L'antenne, soutenue par 16 pylônes de 250 mètres de hauteur,
forme une nappe double de 3 kilomètres de longueur qui couvre
une superficie de 1 200 000 mètres carrés.
Cette antenne a exigé la mise en uvre de 70 000 mètre
de fil d'antenne proprement dit et de 16 000 mètres de câble
d'acier.
La prise de terre, du système dit "à terres multiples",
comprend 80 000 mètres de lignes enterrées. Elle couvre
une surface de 1 800 000 mètres carrés.
L'alimentation en énergie électrique de la station est
assurée soit par le Sud-Lumière, soit par deux groupes
Diesel de 1 400 - 1 800 HP.
- La station continentale comprend 2 machines à
haute fréquence de 25 kilowatts antennes, 2 émetteurs
à lampes et une usine thermique d'alimentation de 320 HP.
L'antenne du type en parapluie est supportée par un pylône
de 250 mètres de hauteur.
La prise de terre, qui est complétée par un contrepoids,
a exigé 50 000 mètres de fil de cuivre.
Ces installation qui constituent le centre d'émission à
ondes longues de Sainte-Assise furent inaugurées officiellement
le 7 août 1922, par un message adressé par M. Millerand,
président de la République, à M. Harding, président
des États-Unis.
Cette inauguration eut un retentissement considérable et le
centre de Sainte-Assise apparut comme la plus audacieuse entreprise
du domaine de la radio-électricité. La construction
du matériel et des bâtiments et tous les montages et
mises au point avaient duré un an et demi, délai remarquable,
surtout à une époque où les moyens de production
étaient assez limités pour certaines fournitures. Tous
les travaux avaient été dirigés selon la méthode
graphique : le délai prévu fut observé exactement
et le dépassement sur le devis initial annexé au projet
n'atteignit pas 2 p. 100.
Les premières émissions de la nouvelle station se révélaient
d'une qualité technique exceptionnelle.
Au premier appel lancé par la station de Sainte-Assise, le
4 juillet 1922, le poste de Marion aux États-Unis répondait
aussitôt dans les termes suivants :
"Vos signaux sont très forts, votre manipulation est très
bonne, régularité aussi. Prière transmettre à
80 mots par minute".
De son côté, M. Marconi qui se trouvait à bord
de son yacht "Elettra", en rade de New-York, adressait galamment
à la station de Sainte-Assise le résultat de ses observations.
"Vos premiers signaux observés sur yacht "Elettra"
sont nettement beaucoup plus forts que Carnarvon, régulation
et manipulation excellentes, bande à 80 mots par minute très
satisfaisante".
Le lendemain, M. Marconi complétait ses observations de la
veille par ses plus chaleureuses félicitations, "Nous
avons reçu les signaux de votre nouvelle station française
sur les appareils de mon yacht "Elettra" maintenant à
New-York, je vous envoie de plus grand cur congratulations pour
la puissance, la qualité et la netteté des signaux indiquant
un succès marqué dans l'étude de l'établissement
de la station".
Au cours de ces essais, la station de réception de l'Agence
Havas établie à Buenos-Aires adressait ses observations
par le télégramme suivant :
"Avons entendu hier soir et ce matin Sainte-Assise, à
tout moment, avec force supérieure à toutes autres stations
du monde et incomparablement plus fort que Bordeaux, fonctionner à
grande vitesse avec l'Amérique-Nord".
Ces quelques attestations permettent d'apprécier quel degré
de perfection avait atteint, déjà en 1922, la technique
de la Société Française Radio-Électrique.
Les stations à ondes courtes - Les progrès
dans l'emploi des ondes courtes pour la radiotélégraphie
et la radiotéléphonie ont déterminé, en
1926-1927, la Compagnie Radio-France à doter son centre d'émission
de Sainte-Assise de postes à ondes courtes :
Deux émetteur doubles radiotélégraphiques permettant
d'effectuer 4 émissions simultanées,
Un émetteur à maître oscillateur à quartz
prévu pour deux longueurs d'onde utilisables successivement
et pouvant fonctionner indifféremment en télégraphie
ou en téléphonie.
La puissance totale absorbée par ce centre à ondes courtes
est de 200 kilowatts environ.
Les émetteurs ci-dessus actionnent 16 aériens réflecteurs
qui sont orientés respectivement vers l'Amérique du
Sud, l'Extrême-Orient, les États-Unis, la Syrie, l'Indochine,
la Chine, le Japon et l'Europe Orientale.
Le développement de l'exploitation a conduit à installer,
en outre, dans le bâtiment de la station transcontinentale un
émetteur à ondes courtes à maître oscillateur
à quartz, pouvant fonctionner soit en radiotélégraphie,
soit en radiotéléphonie.
Cet émetteur alimente deux antennes réflecteurs orientées
respectivement vers l'Amérique et vers l'Indochine.
Enfin, l'ouverture du service radiotéléphonique avec
l'Amérique du Sud a nécessité la création
d'une station spéciale équipée avec un émetteur
à quartz alimentant un réflecteur orienté vers
Buenos-Aires.
sommaire
Les Faiseaux herzien :
Dès la Libération en Mai 1945, la France entreprend
la réalisation d'une nouvelle manière de transmettre
les conversations téléphoniques à distance. L'étude
ayant débuté discrètement sous l'occupation en
1941, par des expériences de propagation des ondes centimétriques
dans les environs de Toulon. Pour ce faire, elle s'inspire de la technologie
du radar améliorée par nos amis britanniques dès
le début de la seconde guerre mondiale (nos amis ayant en cela
bénéficié des résultats prometteurs menés
par la France et brevetés à partir de 1934, que nous
avions transférés en Grande-Bretagne in-extremis avant
notre invasion - ce qui permit à la Grande-Bretagne de ne pas
s'effondrer sous le poids de la Luftwaffe.
Le 19 avril 1946, ont lieu pour la première
fois en France les premiers essais de téléphonie transmise
par Faisceau Hertzien en ondes ultra-courtes entre Paris et Montmorency,
en présence de M. le Ministre des PTT - Jean Letourneau qui
inaugure le dispositif installé dans la forêt de Montmorency.
Les travaux réalisés en 1946 s'avérant concluants,
l'Administration des PTT s'engage dans la construction de la première
liaison hertzienne d'exploitation courante en France en 1949 sous
l'impulsion de M. le Directeur Général des Télécommunications
- Charles Lange.
La
suite à la page faisceaux herzien
sommaire
|